Sold
€ {{ product.price.replace(/\B(?=(\d{4})+(?!\d))/g, ".") }} {{ __(product.price_condition) }}
Photo’s
{{ product.images.length }}
Floorplan
{{ product.plans.length }}
360° photo’s {{ product.panoramas.length }}
Video’s {{ product.videos.length }}
Maps
All media
House for sale Benzenraderweg 115 Heerlen
€ {{ product.price.replace(/\B(?=(\d{4})+(?!\d))/g, ".") }} {{ __(product.price_condition) }}
Sold
Description
WELKOM BIJ BENZENRADERWEG 115 IN HEERLEN!
Instapklaar, karaktervol en verrassend ruim wonen in het geliefde Bekkerveld!
Welkom aan de Benzenraderweg 115 in Heerlen – een smaakvol gerenoveerde, halfvrijstaande woning die moderne luxe combineert met authentieke charme. Deze instapklare woning ligt in de geliefde wijk Bekkerveld, op een steenworp afstand van het stadscentrum en biedt verrassend veel ruimte, comfort en sfeer.
Stap binnen in de stijlvolle woonkamer met een warme eikenhouten plankenvloer en grote raampartijen die zorgen voor een zee aan licht. De living aan de voorzijde is uitgerust met audiovisuele aansluitingen en vormt een ideale plek om te ontspannen. Aan de achterzijde is de eetkamer gesitueerd, met openslaande tuindeuren naar het terras – perfect voor lange avonden binnen-buiten leven.
De halfopen keuken in de achterbouw is een ware blikvanger. De strakke hoogglans witte inbouwkeuken met granieten werkblad biedt veel kastruimte en directe toegang tot de tuin. De authentieke hal met vestibule, trappenhuis en modern gastentoilet met fonteintje maken het plaatje compleet.
Op de eerste verdieping bevinden zich twee ruime slaapkamers. De hoofdslaapkamer aan de achterzijde is voorzien van airconditioning en dubbele muurkast; de slaapkamer aan de voorzijde beschikt over een stijlvolle wandkast met loftdeur.
De moderne badkamer is strak afgewerkt en voorzien van een inloopdouche, badkamermeubel en tweede toilet. Daarnaast is er een aparte wasruimte met witgoedaansluitingen.
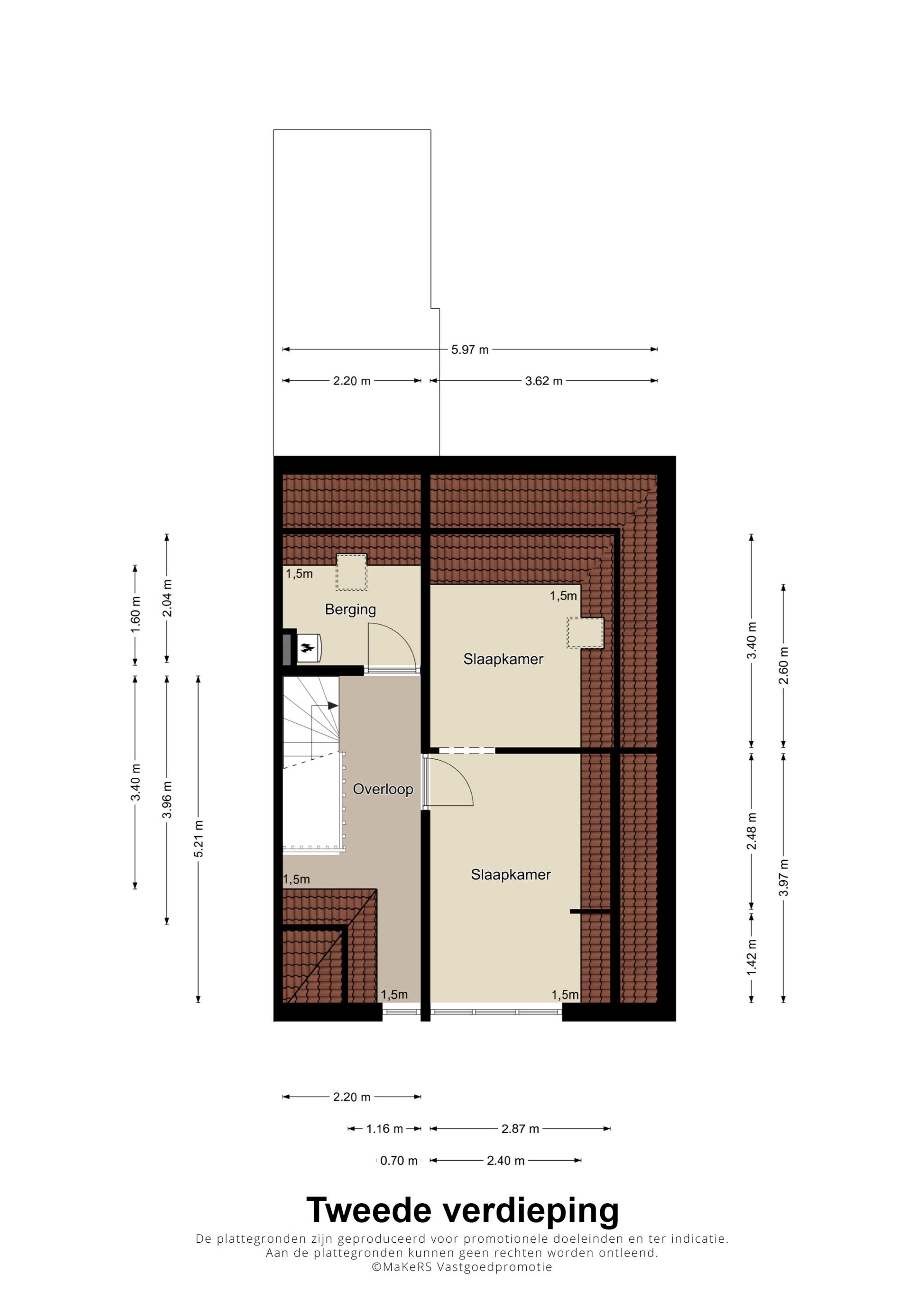
De zolderverdieping, bereikbaar via een vaste trap, telt nog twee slaapkamers – momenteel in gebruik als logeerkamer en hobby-/werkkamer. Ook is hier een bergruimte met de opstelling van de CV-combiketel.
In het souterrain is een praktische provisiekelder, waar ook de omvormer van de zonnepanelen is geplaatst.
De geheel omsloten tuin biedt volop privacy en sfeer, met een royaal terras, gazon, sierborders, een stenen tuinberging en een sfeervol prieel met overdekt vlonderterras – bereikbaar via een handige zij-ingang.
Deze woning ligt in een rustige, gewilde woonomgeving met het centrum van Heerlen op loopafstand. Scholen, winkels, sportaccommodaties en horeca zijn dichtbij. Bovendien is de ligging ideaal ten opzichte van uitvalswegen en openbaar vervoer, met een snelle aansluiting op de A76 richting Maastricht, Aken en Eindhoven.
Benieuwd naar deze unieke woning met karakter en comfort? Maak snel een afspraak voor een bezichtiging!
INDELING:
KELDER:
Voorraad-/provisiekelder met opslagruimte toegankelijk vanuit de gang, waar geplaatst de omvormer voor de zonnepanelen.
BEGANE GROND:
Entree/vestibule, gang en klassiek trappenhuis naar de verdieping. Meterkast met 9 groepsinstallatie / 2x aardlekschakelaar / aparte groep voor zonnepanelen / digitale meters en dag-/nachtstroomaansluiting. Geheel betegeld modern gastentoilet met zwevend wandcloset en fonteintje. Toegang tot de woonkamer.
Ruime sfeervolle woonkamer met veel lichtinval via grote raampartijen, voorzien van een houtenplankenvloer, met aan de voorzijde de living/lounge voorzien van audio-/visuele-aansluitingen. Achter gelegen eetkamer waar dubbele openslaande tuindeuren toegang biedt tot het terras, doorgang naar de keuken.
Halfopen keukenruimte met vloerverwarming, in achterbouw, waar geplaatst een moderne inbouwkeuken in L-opstelling, voorzien van apparatuur, te weten: 6 pits gascomfort / RVS wandschouwafzuigkap / combimagnetron / wasbak / vaatwasmachine / koelkast met vriesvak / granieten blad en veel opbergruimte. Loopdeur naar de achtertuin.
Geheel omsloten onderhoudsvriendelijke achtertuin gesitueerd op het noordoosten, met uitstekende bezonning. Terras / gazon / borders met aanplanting en een aangebouwde stenen tuinberging. Achtergelegen prieel met overkapping en ruim vlonderterras. Bereikbaar via een gemeenschappelijk zij-/achterpad.
VERDIEPING:
Authentiek trappenhuis, overloop met toegang tot wasruimte, slaapkamers en badkamer.
Rechtsachter vindt men de hoofdslaapkamer voorzien van airconditioning en dubbele muurkasten met opbergruimte.
Strakke eigentijdse badkamer voorzien van een inloopdouche / wastafel in een badkamermeubel / handdoekradiator / mechanische ventilatie en tweede toilet.
Voorgelegen kinderslaapkamer met wandkast voorzien van een steigerhouten loftdeur.
Wasruimte met witgoedaansluitingen voor wasmachine en droger.
Alle slaapvertrekken zijn voorzien van een Vinyl-vloer
ZOLDER:
Vaste trap naar de zolder. Overloop met toegang tot de achtergelegen bergruimte met standplaats voor de gehuurde Remeha Calenta CV-Combiketel (Bouwjaar 2013 / Eigendom).
Twee ruime slaapkamers onder de geïsoleerde dakconstructie, waarbij de achterste in gebruik is al logeerkamer.
De voorgelegen slaapkamer doet dienst als hobby-/studeerkamer.
BIJZONDERHEDEN:
* VERRASSEND RUIM HALFVRIJSTAAND WOONHUIS MET 4 SLAAPKAMERS OP CENTRUMLOCATIE
* WOONKAMER VOORZIEN VAN LOUNGE/LIVING MET ZITHOEK AAN DE VOORZIJDE
* EETKAMER AAN DE ACHTERZIJDE MET DUBBELE OPENSLAANDE TUINDEUREN NAAR HET TERRAS
* HALFOPEN KEUKENRUIMTE VOORZIEN VAN MODERNE INBOUWKEUKEN MET APPARATUUR EN VLOERVERWARMING
* RUIM GEHEEL BETEGELD GASTENTOILET MET ZWEVEND WANDCLOSET EN FONTEINTJE
* AUTHENTHIEK TRAPPENHUIS NAAR DE VERDIEPINGEN MET BORDESTRAP
* 2 SLAAPKAMERS OP DE EERSTE VERDIEPING, WAARVAN HOOFDSLAAPKAMER MET AIRCO
* WASRUIMTE MET WITGOEDAANSLUITINGEN VOOR WASMACHINE EN DROGER
* STRAKKE EIGENTIJDSE BADKAMER MET INLOOPDOUCHE, WASTAFEL IN EEN MEUBEL EN TWEEDE TOILET
* 2 SLAAPKAMERS OP ZOLDER
* BERGRUIMTE MET STANDPLAATS VOOR DE CV-COMBIKETEL
* KELDERRUIMTE WAAR GEPLAATST DE OMVORMER VOOR DE ZONNEPANELEN
* ONDERHOUDSVRIENDELIJKE ACHTERTUIN MET TERRAS, GAZON EN BORDERS MET AANPLANTING
* AANGEBOUWDE STENEN BERGING
* RUIM PRIEEL MET OVERDEKT VLONDERTERRAS
* TOEGANG VIA GEMEENSCHAPPELIJK ZIJ-/ACHTERPAD
* DUBBELE BEGLAZING IN DEELS HOUTEN EN DEELS KUNSTSTOF KOZIJNEN
* REMEHA CALENTA CV-COMBIKETEL (BOUWJAAR 2013 / EIGENDOM)
* 12 ZONNEPANELEN (BOUWJAAR 2022 / EIGENDOM)
* AIRCONDITIONING
* ENERGIELABEL "C"
DEZE WONING IS INSTAPKLAAR, KEURIG ONDERHOUDEN EN MAAKT EEN ZEER VERZORGDE INDRUK. DEELS VOORZIEN VAN HOUTEN EN DEELS KUNSTSTOF KOZIJNEN MET DUBBELE BEGLAZING. AIRCONDITIONINGSINSTALLATIE EN 12 ZONNEPANELEN. REMEHA CALENTA CV-COMBIKETEL. SEPARATE WASRUIMTE. 4 SLAAPKAMERS. GEHEEL OMSLOTEN ONDERHOUDSVRIENDELIJKE ACHTERTUIN MET EEN TERRAS, GAZON, BORDERS MET AANPLANTING EN EEN PRIEEL MET RUIM OVERDEKT VLONDERTERRAS. AANGEBOUWDE STENEN TUINBERGING, BEREIKBAAR VIA EEN GEMEENSCHAPPELIJK ZIJ-/ACHTERPAD.
HET GEHEEL IS GELEGEN IN DE POPULAIRE EN GELIEFDE WOONOMGEVING VAN DE WIJK "BEKKERVELD" NABIJ HET STADSHART VAN HEERLEN. ALLE VOORZIENINGEN, WINKELS, RESTAURANTS, EEN BASISSCHOOL, VOORTGEZET ONDERWIJS, SPORTFACILITEITEN IN DE DIRECTE OMGEVING EN EEN WANDELGEBIED IS OP LOOPAFSTAND BEREIKBAAR.
GOEDE ONTSLUITING RICHTING MAASTRICHT, EINDHOVEN EN AKEN MIDDELS UITVALSWEGEN, DE AUTOSNELWEG (A76) EN PARKSTANDRING (N300) EN AANSLUITING OP HET OPENBAAR VERVOER.
Ter bescherming van de belangen van zowel koper als ook verkoper wordt uitdrukkelijk gesteld dat een koopovereenkomst met betrekking tot deze onroerende zaak eerst dan tot stand komt nadat koper en verkoper de koopovereenkomst hebben ondertekend (schriftelijkheidsvereiste).
De waarborgsom/bankgarantie is 10% van de koopsom. De koper dient deze binnen 2 weken nadat het financieringsvoorbehoud is verlopen bij de desbetreffende notaris te deponeren.
Indien cv-ketel en/of warmwatervoorziening een huurtoestel is, dient koper de huurovereenkomst over te nemen. Dit is eveneens van toepassing indien dit zonnepanelen betreft.
Alle door ons kantoor verstrekte informatie omtrent onroerende zaken, moet beschouwd worden als een uitnodiging om in onderhandeling te treden en is geheel vrijblijvend! Alle vermelde maten en afmetingen zijn slechts bij benadering. Een (eventueel) bijgevoegde plattegrond dient uitsluitend als globale indicatie/visualisatie. Aan deze beperkte informatie kunnen geen rechten worden ontleend.
Indien in enige documentatie of op enige website informatie staat die niet overeen komt met de werkelijkheid, dan geldt de feitelijke situatie waarin de woning zich bevindt, zoals koper deze tijdens de bezichtiging heeft kunnen waarnemen, en wordt de woning in deze feitelijke situatie/staat verkocht
Instapklaar, karaktervol en verrassend ruim wonen in het geliefde Bekkerveld!
Welkom aan de Benzenraderweg 115 in Heerlen – een smaakvol gerenoveerde, halfvrijstaande woning die moderne luxe combineert met authentieke charme. Deze instapklare woning ligt in de geliefde wijk Bekkerveld, op een steenworp afstand van het stadscentrum en biedt verrassend veel ruimte, comfort en sfeer.
Stap binnen in de stijlvolle woonkamer met een warme eikenhouten plankenvloer en grote raampartijen die zorgen voor een zee aan licht. De living aan de voorzijde is uitgerust met audiovisuele aansluitingen en vormt een ideale plek om te ontspannen. Aan de achterzijde is de eetkamer gesitueerd, met openslaande tuindeuren naar het terras – perfect voor lange avonden binnen-buiten leven.
De halfopen keuken in de achterbouw is een ware blikvanger. De strakke hoogglans witte inbouwkeuken met granieten werkblad biedt veel kastruimte en directe toegang tot de tuin. De authentieke hal met vestibule, trappenhuis en modern gastentoilet met fonteintje maken het plaatje compleet.
Op de eerste verdieping bevinden zich twee ruime slaapkamers. De hoofdslaapkamer aan de achterzijde is voorzien van airconditioning en dubbele muurkast; de slaapkamer aan de voorzijde beschikt over een stijlvolle wandkast met loftdeur.
De moderne badkamer is strak afgewerkt en voorzien van een inloopdouche, badkamermeubel en tweede toilet. Daarnaast is er een aparte wasruimte met witgoedaansluitingen.
De zolderverdieping, bereikbaar via een vaste trap, telt nog twee slaapkamers – momenteel in gebruik als logeerkamer en hobby-/werkkamer. Ook is hier een bergruimte met de opstelling van de CV-combiketel.
In het souterrain is een praktische provisiekelder, waar ook de omvormer van de zonnepanelen is geplaatst.
De geheel omsloten tuin biedt volop privacy en sfeer, met een royaal terras, gazon, sierborders, een stenen tuinberging en een sfeervol prieel met overdekt vlonderterras – bereikbaar via een handige zij-ingang.
Deze woning ligt in een rustige, gewilde woonomgeving met het centrum van Heerlen op loopafstand. Scholen, winkels, sportaccommodaties en horeca zijn dichtbij. Bovendien is de ligging ideaal ten opzichte van uitvalswegen en openbaar vervoer, met een snelle aansluiting op de A76 richting Maastricht, Aken en Eindhoven.
Benieuwd naar deze unieke woning met karakter en comfort? Maak snel een afspraak voor een bezichtiging!
INDELING:
KELDER:
Voorraad-/provisiekelder met opslagruimte toegankelijk vanuit de gang, waar geplaatst de omvormer voor de zonnepanelen.
BEGANE GROND:
Entree/vestibule, gang en klassiek trappenhuis naar de verdieping. Meterkast met 9 groepsinstallatie / 2x aardlekschakelaar / aparte groep voor zonnepanelen / digitale meters en dag-/nachtstroomaansluiting. Geheel betegeld modern gastentoilet met zwevend wandcloset en fonteintje. Toegang tot de woonkamer.
Ruime sfeervolle woonkamer met veel lichtinval via grote raampartijen, voorzien van een houtenplankenvloer, met aan de voorzijde de living/lounge voorzien van audio-/visuele-aansluitingen. Achter gelegen eetkamer waar dubbele openslaande tuindeuren toegang biedt tot het terras, doorgang naar de keuken.
Halfopen keukenruimte met vloerverwarming, in achterbouw, waar geplaatst een moderne inbouwkeuken in L-opstelling, voorzien van apparatuur, te weten: 6 pits gascomfort / RVS wandschouwafzuigkap / combimagnetron / wasbak / vaatwasmachine / koelkast met vriesvak / granieten blad en veel opbergruimte. Loopdeur naar de achtertuin.
Geheel omsloten onderhoudsvriendelijke achtertuin gesitueerd op het noordoosten, met uitstekende bezonning. Terras / gazon / borders met aanplanting en een aangebouwde stenen tuinberging. Achtergelegen prieel met overkapping en ruim vlonderterras. Bereikbaar via een gemeenschappelijk zij-/achterpad.
VERDIEPING:
Authentiek trappenhuis, overloop met toegang tot wasruimte, slaapkamers en badkamer.
Rechtsachter vindt men de hoofdslaapkamer voorzien van airconditioning en dubbele muurkasten met opbergruimte.
Strakke eigentijdse badkamer voorzien van een inloopdouche / wastafel in een badkamermeubel / handdoekradiator / mechanische ventilatie en tweede toilet.
Voorgelegen kinderslaapkamer met wandkast voorzien van een steigerhouten loftdeur.
Wasruimte met witgoedaansluitingen voor wasmachine en droger.
Alle slaapvertrekken zijn voorzien van een Vinyl-vloer
ZOLDER:
Vaste trap naar de zolder. Overloop met toegang tot de achtergelegen bergruimte met standplaats voor de gehuurde Remeha Calenta CV-Combiketel (Bouwjaar 2013 / Eigendom).
Twee ruime slaapkamers onder de geïsoleerde dakconstructie, waarbij de achterste in gebruik is al logeerkamer.
De voorgelegen slaapkamer doet dienst als hobby-/studeerkamer.
BIJZONDERHEDEN:
* VERRASSEND RUIM HALFVRIJSTAAND WOONHUIS MET 4 SLAAPKAMERS OP CENTRUMLOCATIE
* WOONKAMER VOORZIEN VAN LOUNGE/LIVING MET ZITHOEK AAN DE VOORZIJDE
* EETKAMER AAN DE ACHTERZIJDE MET DUBBELE OPENSLAANDE TUINDEUREN NAAR HET TERRAS
* HALFOPEN KEUKENRUIMTE VOORZIEN VAN MODERNE INBOUWKEUKEN MET APPARATUUR EN VLOERVERWARMING
* RUIM GEHEEL BETEGELD GASTENTOILET MET ZWEVEND WANDCLOSET EN FONTEINTJE
* AUTHENTHIEK TRAPPENHUIS NAAR DE VERDIEPINGEN MET BORDESTRAP
* 2 SLAAPKAMERS OP DE EERSTE VERDIEPING, WAARVAN HOOFDSLAAPKAMER MET AIRCO
* WASRUIMTE MET WITGOEDAANSLUITINGEN VOOR WASMACHINE EN DROGER
* STRAKKE EIGENTIJDSE BADKAMER MET INLOOPDOUCHE, WASTAFEL IN EEN MEUBEL EN TWEEDE TOILET
* 2 SLAAPKAMERS OP ZOLDER
* BERGRUIMTE MET STANDPLAATS VOOR DE CV-COMBIKETEL
* KELDERRUIMTE WAAR GEPLAATST DE OMVORMER VOOR DE ZONNEPANELEN
* ONDERHOUDSVRIENDELIJKE ACHTERTUIN MET TERRAS, GAZON EN BORDERS MET AANPLANTING
* AANGEBOUWDE STENEN BERGING
* RUIM PRIEEL MET OVERDEKT VLONDERTERRAS
* TOEGANG VIA GEMEENSCHAPPELIJK ZIJ-/ACHTERPAD
* DUBBELE BEGLAZING IN DEELS HOUTEN EN DEELS KUNSTSTOF KOZIJNEN
* REMEHA CALENTA CV-COMBIKETEL (BOUWJAAR 2013 / EIGENDOM)
* 12 ZONNEPANELEN (BOUWJAAR 2022 / EIGENDOM)
* AIRCONDITIONING
* ENERGIELABEL "C"
DEZE WONING IS INSTAPKLAAR, KEURIG ONDERHOUDEN EN MAAKT EEN ZEER VERZORGDE INDRUK. DEELS VOORZIEN VAN HOUTEN EN DEELS KUNSTSTOF KOZIJNEN MET DUBBELE BEGLAZING. AIRCONDITIONINGSINSTALLATIE EN 12 ZONNEPANELEN. REMEHA CALENTA CV-COMBIKETEL. SEPARATE WASRUIMTE. 4 SLAAPKAMERS. GEHEEL OMSLOTEN ONDERHOUDSVRIENDELIJKE ACHTERTUIN MET EEN TERRAS, GAZON, BORDERS MET AANPLANTING EN EEN PRIEEL MET RUIM OVERDEKT VLONDERTERRAS. AANGEBOUWDE STENEN TUINBERGING, BEREIKBAAR VIA EEN GEMEENSCHAPPELIJK ZIJ-/ACHTERPAD.
HET GEHEEL IS GELEGEN IN DE POPULAIRE EN GELIEFDE WOONOMGEVING VAN DE WIJK "BEKKERVELD" NABIJ HET STADSHART VAN HEERLEN. ALLE VOORZIENINGEN, WINKELS, RESTAURANTS, EEN BASISSCHOOL, VOORTGEZET ONDERWIJS, SPORTFACILITEITEN IN DE DIRECTE OMGEVING EN EEN WANDELGEBIED IS OP LOOPAFSTAND BEREIKBAAR.
GOEDE ONTSLUITING RICHTING MAASTRICHT, EINDHOVEN EN AKEN MIDDELS UITVALSWEGEN, DE AUTOSNELWEG (A76) EN PARKSTANDRING (N300) EN AANSLUITING OP HET OPENBAAR VERVOER.
Ter bescherming van de belangen van zowel koper als ook verkoper wordt uitdrukkelijk gesteld dat een koopovereenkomst met betrekking tot deze onroerende zaak eerst dan tot stand komt nadat koper en verkoper de koopovereenkomst hebben ondertekend (schriftelijkheidsvereiste).
De waarborgsom/bankgarantie is 10% van de koopsom. De koper dient deze binnen 2 weken nadat het financieringsvoorbehoud is verlopen bij de desbetreffende notaris te deponeren.
Indien cv-ketel en/of warmwatervoorziening een huurtoestel is, dient koper de huurovereenkomst over te nemen. Dit is eveneens van toepassing indien dit zonnepanelen betreft.
Alle door ons kantoor verstrekte informatie omtrent onroerende zaken, moet beschouwd worden als een uitnodiging om in onderhandeling te treden en is geheel vrijblijvend! Alle vermelde maten en afmetingen zijn slechts bij benadering. Een (eventueel) bijgevoegde plattegrond dient uitsluitend als globale indicatie/visualisatie. Aan deze beperkte informatie kunnen geen rechten worden ontleend.
Indien in enige documentatie of op enige website informatie staat die niet overeen komt met de werkelijkheid, dan geldt de feitelijke situatie waarin de woning zich bevindt, zoals koper deze tijdens de bezichtiging heeft kunnen waarnemen, en wordt de woning in deze feitelijke situatie/staat verkocht
+ Read more
- Read less
Construction: {{
product.build_year }}
Construction: {{ product.build_period.start }} -
{{ product.build_period.end }}
House
, Single-family house
{{ product.rooms }} rooms
{{ product.bedrooms
}} bedrooms
Living space: {{
product.living_space }} m²
Plot: {{
product.plot_surface }} m²
Energy class: {{ product.energy_class }}
Energy index: {{ product.energy_index }}
Characteristics
{{ field.label }}
{{ field.value }}
+ Read more
{{ field.label }}
{{ field.value }}
- Read less
{{ product.company.name }}
Contact us
{{ product.company.phone.replace('-', ' ').substr(0, 7) }}...
{{ product.company.phone.replace('-', ' ') }}
Share:
Date