Sold
€ {{ product.price.replace(/\B(?=(\d{4})+(?!\d))/g, ".") }} {{ __(product.price_condition) }}
Photo’s
{{ product.images.length }}
Floorplan
{{ product.plans.length }}
360° photo’s {{ product.panoramas.length }}
Video’s {{ product.videos.length }}
Maps
All media

House for sale Spoorstraat 23 Landgraaf

€ {{ product.price.replace(/\B(?=(\d{4})+(?!\d))/g, ".") }} {{ __(product.price_condition) }}
Sold

Description

Gelegen in een rustige en groene woonwijk, is Spoorstraat 23 een charmante monumentale "mijnwerkerswoning" die veel te bieden heeft. Met zijn sfeervolle indeling, een ruime kelder, twee slaapkamers, garage en een zonnige tuin, is deze woning ideaal voor wie houdt van een combinatie van karakter en comfort. De woning biedt een uitstekende basis voor het creëren van jouw ideale thuis, met genoeg ruimte voor een gezin of als werk- en leefruimte.

Leuk om te weten:
- Bouwjaar: 1913 (conform BAG), perceel: 252 m² (conform kadaster);
- Woonoppervlakte: ca. 85 m² (NEN 2580 meetrapport aanwezig);
- Aanvaarding in overleg.

INDELING:
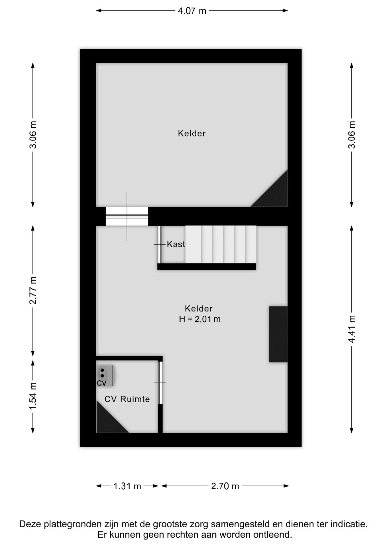
Souterrain:
In het souterrain vind je een kelder met 2 ruimtes (ca. 4,07 m x 4,41 m & ca. 4,07 x 3,06 m), die dienst doet als extra opbergruimte en de C.V.-installatie herbergt. De kelder biedt voldoende ruimte voor het bewaren van spullen die je niet dagelijks nodig hebt of voor het creëren van een hobbyruimte.

Begane grond:
De begane grond heeft een praktische indeling, met een hal die toegang biedt tot de toiletruimte en de badkamer ( ca. 1,20 m x 1,79 m), voorzien van een vaste wastafel en douche. De woonkamer (ca. 4,23 m x 3,36 m) is sfeervol en licht, met openslaande tuindeuren naar de tuin. De woonkamer is bovendien voorzien van een allesbrander, wat de ruimte een extra warme en gezellige sfeer geeft. Vanuit de woonkamer is er een trap naar de kelder. Bij deze trap bevindt zich ook de meterkast.

De eetkamer (ca. 2,87 m x 4,23 m) grenst direct aan de woonkamer, waardoor de benedenverdieping een open en ruime sfeer heeft. De gesloten keuken (ca. 2,57 m x 3,10 m) is voorzien van een afzuigkap. De keuken is betegeld, wat zorgt voor een praktische en onderhoudsvriendelijke ruimte.

Eerste verdieping:
Op de eerste verdieping bevindt zich een overloop die toegang biedt tot twee slaapkamers.

- Slaapkamer 1 (ca. 4,25 m x 3,55 m) biedt voldoende ruimte voor een groot bed en kasten.
- Slaapkamer 2 (ca. 4,25 m x 3,40 m) is van vergelijkbare grootte en ideaal voor een kinder- of logeerkamer.

Zolder:
De zolder (ca. 2,20 m x 8,04 m) is bereikbaar via een uitklapbare trap en biedt veel opbergruimte. Deze ruime bergzolder is ideaal voor het bewaren van spullen die je niet dagelijks nodig hebt, zoals vakantiespullen of seizoensgebonden artikelen. De zolder kan eenvoudig worden ingericht voor extra opbergruimte of als een gezellige hobbyruimte.

Tuin:
De tuin van de woning is goed onderhouden en biedt volop zon. De tuin is bereikbaar via de oprit, waar je ruimte hebt voor 2 auto's. De tuin beschikt over een terras met overkapping en plantenborders. Daarnaast is de garage ook uitstekend geschikt zijn voor het opbergen van tuingereedschap, fietsen of andere spullen.

De waarborgsom/bankgarantie is 10% van de koopsom. De koper dient deze, indien de verkoper en koper dit overeenkomen, binnen 2 weken nadat het financieringsvoorbehoud is verlopen bij de desbetreffende notaris te deponeren.
Ter bescherming van de belangen van zowel koper als ook verkoper wordt uitdrukkelijk gesteld dat een koopovereenkomst met betrekking tot deze onroerende zaak eerst dan tot stand komt nadat koper en verkoper de koopovereenkomst hebben getekend (schriftelijkheidsvereiste).

Alle door ons kantoor verstrekte informatie omtrent onroerende zaken, moet beschouwd worden als een uitnodiging om in onderhandeling te treden, en is geheel vrijblijvend! Alle vermelde maten en afmetingen zijn slechts bij benadering. Aan deze beperkte info kunnen geen rechten worden ontleend. Indien in enige documentatie of op enige website informatie staat die niet overeen komt met de werkelijkheid, dan geldt de feitelijke situatie waarin de woning zich bevindt, zoals koper deze tijdens de bezichtiging heeft kunnen waarnemen, en wordt de woning in deze feitelijke situatie/staat verkocht. Een (eventueel) bijgevoegde plattegrond dient uitsluitend als globale indicatie/visualisatie. Hieraan kunnen uitdrukkelijk geen rechten worden ontleend.

De makelaar Roy Ubachs nodigt u uit voor een bezichtiging.
+ Read more
- Read less
Construction: {{ product.build_year }}
Construction: {{ product.build_period.start }} - {{ product.build_period.end }}
House , Single-family house
{{ product.rooms }} rooms
{{ product.bedrooms }} bedrooms
Living space: {{ product.living_space }} m²
Plot: {{ product.plot_surface }} m²
Energy class:    {{ product.energy_class }}
Energy index: {{ product.energy_index }}

Characteristics

{{ field.label }}
{{ field.value }}

{{ field.label }}
{{ field.value }}
{{ product.company.name }}
Contact us
{{ product.company.phone.replace('-', ' ').substr(0, 7) }}...
{{ product.company.phone.replace('-', ' ') }}
Share:

Similar objects in the neighborhood