Available
€ {{ product.price.replace(/\B(?=(\d{4})+(?!\d))/g, ".") }} {{ __(product.price_condition) }}
Photo’s
{{ product.images.length }}
Floorplan
{{ product.plans.length }}
360° photo’s {{ product.panoramas.length }}
Video’s {{ product.videos.length }}
Maps
All media

House for sale Europastraat 3 Stramproy

€ {{ product.price.replace(/\B(?=(\d{4})+(?!\d))/g, ".") }} {{ __(product.price_condition) }}
Available

Description

Eindwoning met multifunctionele ruimte, serre en zonnige tuin in dorpskern!

Europastraat 3, Stramproy

Aan de Europastraat 3 in Stramproy ligt deze eindwoning met verrassend veel mogelijkheden. De woning beschikt over een extra grote multifunctionele ruimte, garage, een serre met veel lichtinval, drie slaapkamers met muurkasten en een bergzolder. Dankzij de zuidoost georiënteerde tuin, provisieruimte bij de keuken en de ligging in de dorpskern is dit een ideale woning voor wie graag wil moderniseren en tegelijkertijd wil profiteren van een praktische indeling en fijne woonomgeving.

Indeling

Begane grond

Je betreedt de woning via de hal, die toegang biedt tot de woonkamer, keuken, meterkast, toilet en trapopgang.

De woonkamer met eiken houten vloer is licht en biedt voldoende ruimte voor een comfortabele zithoek en eethoek. Aansluitend bevindt zich de keuken en een naastgelegen praktische provisieruimte. Vanuit de keuken heb je directe toegang tot de serre; een fijne, lichte ruimte die uitkijkt op de tuin en ideaal is als extra zitkamer, speelruimte of hobbyruimte.

Via de serre bereik je de zuidoost georiënteerde tuin, waar je vrijwel de hele dag van de zon kunt genieten.

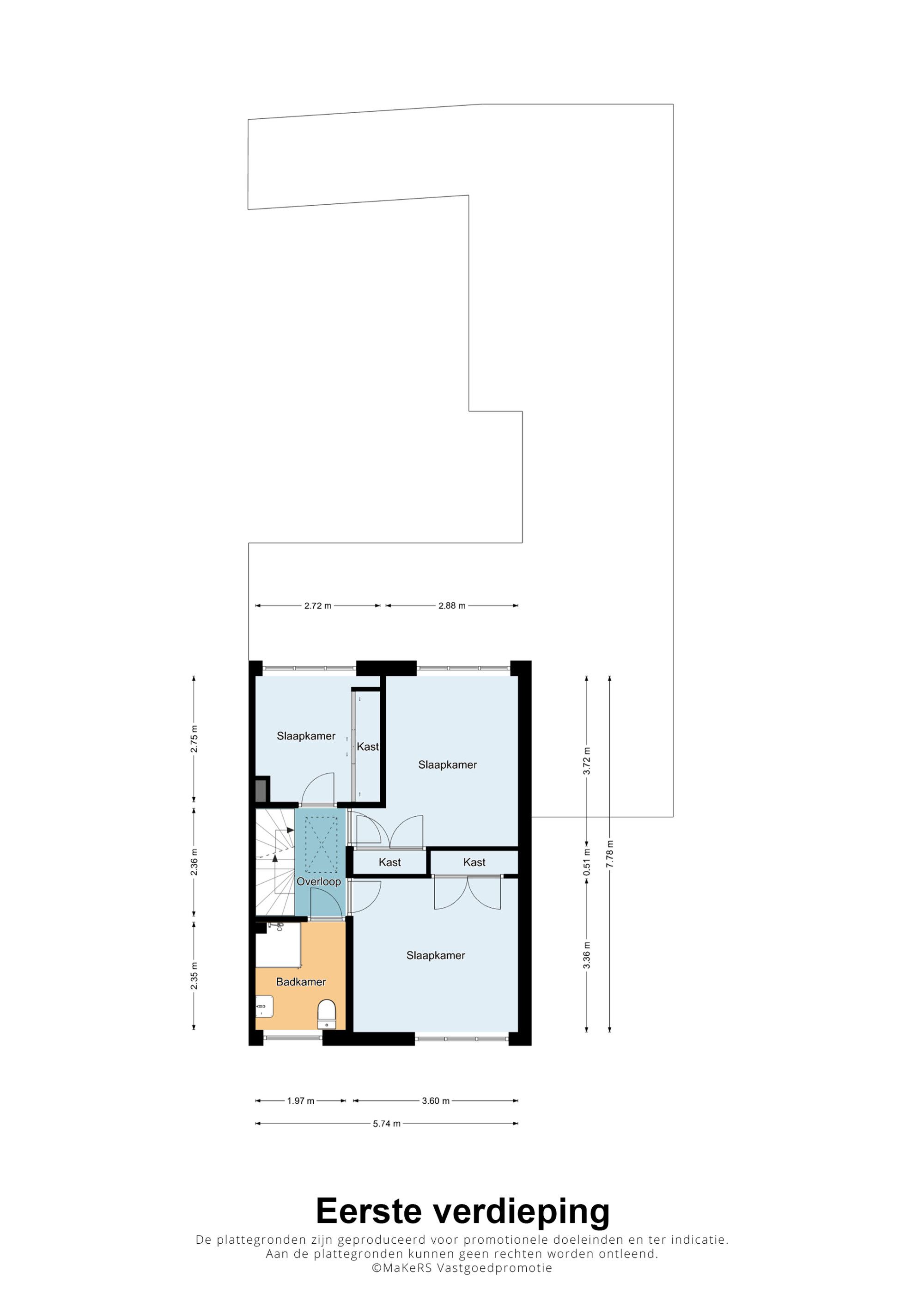
Eerste verdieping

Op de eerste verdieping bevinden zich drie slaapkamers, twee voorzien van muurkasten. Eén van de kamers beschikt daarnaast over een vaste kast met schuifdeuren. De kamers zijn praktisch ingedeeld en geschikt als slaap-, werk- of hobbyruimte.

De badkamer kan geheel naar eigen wens worden gemoderniseerd en is momenteel praktisch ingericht met toilet, douche, wastafel en meubel.

Zolder

Via een vlizotrap is de bergzolder bereikbaar. Deze verdieping biedt extra opslagruimte en mogelijkheden voor het opbergen van seizoensspullen.

Buitenruimte

De zuidoost georiënteerde tuin is een fijne plek om te ontspannen en biedt volop mogelijkheden voor tuinliefhebbers of het creëren van een terras. Momenteel is hier een aparte overkapping gerealiseerd en beschikt de tuin over een elektrisch bedienbare zonnewering.

De extra grote multifunctionele ruimte, gelegen achter de garage, is een groot pluspunt. Dankzij de royale afmetingen is deze ruimte geschikt voor meerdere doeleinden: van stalling tot hobbyruimte of werkplaats. Voor de garage ligt een ruime oprit met parkeergelegenheid op eigen terrein.


Bijzonderheden van deze woning:

- Gelegen in de dorpskern van Stramproy
- Eindwoning met extra grote multifunctionele ruimte, geschikt voor diverse doeleinden
- Keuken met praktische provisieruimte en directe toegang tot lichte serre
- Zuidoost georiënteerde tuin
- Drie slaapkamers met muurkasten, één met vaste kast
- Bergzolder bereikbaar via vlizotrap
- Garage met voorgelegen oprit
+ Read more
- Read less
Construction: {{ product.build_year }}
Construction: {{ product.build_period.start }} - {{ product.build_period.end }}
House , Single-family house
{{ product.rooms }} rooms
{{ product.bedrooms }} bedrooms
Living space: {{ product.living_space }} m²
Plot: {{ product.plot_surface }} m²
Energy class:    {{ product.energy_class }}
Energy index: {{ product.energy_index }}

Characteristics

{{ field.label }}
{{ field.value }}

{{ field.label }}
{{ field.value }}
{{ product.company.name }}
Contact us
{{ product.company.phone.replace('-', ' ').substr(0, 7) }}...
{{ product.company.phone.replace('-', ' ') }}
Share:

Similar objects in the neighborhood