Rented
€ {{ product.price_rental.replace(/\B(?=(\d{4})+(?!\d))/g, ".") }} {{ __(product.price_rental_condition) }}
Photo’s
{{ product.images.length }}
Floorplan
{{ product.plans.length }}
360° photo’s {{ product.panoramas.length }}
Video’s {{ product.videos.length }}
Maps
All media
Apartment for rent Joep Nicolasstraat 311 Roermond
€ {{ product.price_rental.replace(/\B(?=(\d{4})+(?!\d))/g, ".") }} {{ __(product.price_rental_condition) }}
Rented
Description
The "Herenhof" complex is located in the heart of Roermond, directly on Kloosterwandplein. The complex is therefore ideally situated, amidst all the amenities that Roermond's charming city center has to offer. Roermond Central Station and, of course, the charming station square with its various restaurants and cafes are just a stone's throw away.
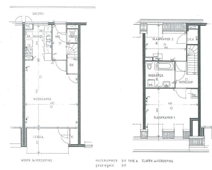
The "Herenhof" apartment complex comprises a total of 41 spacious apartments. The central entrance on Joep Nicolasstraat, where the doorbells, mailboxes, and elevator access are located, leads to the galleries. Each resident has a private, lockable storage unit in the basement. A shared bicycle shed is also located here.
Ground floor:
Central entrance with intercom system and mailboxes. Centrally located elevator and staircase.
The layout is as follows:
First floor:
You enter the apartment through the hallway, which provides access to the toilet, the living room, and the staircase to the upper floor. The apartment features a spacious living room (approx. 30m²) with an adjacent semi-open kitchen. The apartments are equipped with a neat kitchen layout, but no additional appliances (except an extractor hood).
Second floor:
The staircase leads to the landing. The bathroom is equipped with a bath, washbasin, second toilet, and washing machine connection. The apartment has two bedrooms, measuring 15m² and 10m² respectively. The master bedroom at the front also offers access to the balcony.
PLEASE NOTE: Photos shown are reference photos of a similar (mirrored) type of apartment.
Rental details:
- Rent: €882,- per month
- Service charges: €50,- per month (including water consumption);
- Deposit: €1764,-
- Minimum rental period: 25 months
- Not suitable for students or tenants under 23
- Pets are unfortunately not allowed.
We work according to the Pararius allocation protocol. More information can be found via this link: https://tinyurl.com/59s3pdsc
The "Herenhof" apartment complex comprises a total of 41 spacious apartments. The central entrance on Joep Nicolasstraat, where the doorbells, mailboxes, and elevator access are located, leads to the galleries. Each resident has a private, lockable storage unit in the basement. A shared bicycle shed is also located here.
Ground floor:
Central entrance with intercom system and mailboxes. Centrally located elevator and staircase.
The layout is as follows:
First floor:
You enter the apartment through the hallway, which provides access to the toilet, the living room, and the staircase to the upper floor. The apartment features a spacious living room (approx. 30m²) with an adjacent semi-open kitchen. The apartments are equipped with a neat kitchen layout, but no additional appliances (except an extractor hood).
Second floor:
The staircase leads to the landing. The bathroom is equipped with a bath, washbasin, second toilet, and washing machine connection. The apartment has two bedrooms, measuring 15m² and 10m² respectively. The master bedroom at the front also offers access to the balcony.
PLEASE NOTE: Photos shown are reference photos of a similar (mirrored) type of apartment.
Rental details:
- Rent: €882,- per month
- Service charges: €50,- per month (including water consumption);
- Deposit: €1764,-
- Minimum rental period: 25 months
- Not suitable for students or tenants under 23
- Pets are unfortunately not allowed.
We work according to the Pararius allocation protocol. More information can be found via this link: https://tinyurl.com/59s3pdsc
+ Read more
- Read less
Construction: {{
product.build_year }}
Construction: {{ product.build_period.start }} -
{{ product.build_period.end }}
Apartment
, Duplex
{{ product.rooms }} rooms
{{ product.bedrooms
}} bedrooms
Living space: {{
product.living_space }} m²
Plot: {{
product.plot_surface }} m²
Energy class: {{ product.energy_class }}
Energy index: {{ product.energy_index }}
Characteristics
{{ field.label }}
{{ field.value }}
+ Read more
{{ field.label }}
{{ field.value }}
- Read less
{{ product.company.name }}
Contact us
{{ product.company.phone.replace('-', ' ').substr(0, 7) }}...
{{ product.company.phone.replace('-', ' ') }}
Share:
Date