Sold
€ {{ product.price.replace(/\B(?=(\d{4})+(?!\d))/g, ".") }} {{ __(product.price_condition) }}
Photo’s
{{ product.images.length }}
Floorplan
{{ product.plans.length }}
360° photo’s {{ product.panoramas.length }}
Video’s {{ product.videos.length }}
Maps
All media
Apartment for sale Zeswegenlaan 237 Heerlen
€ {{ product.price.replace(/\B(?=(\d{4})+(?!\d))/g, ".") }} {{ __(product.price_condition) }}
Sold
Description
In de wijk Zeswegen staat het appartementencomplex "Het Hoefijzer". Het complex, gebouwd rond 1983, heeft de beschikking over een liftinstallatie en voldoende parkeergelegenheid om het complex. De ligging is nabij enkele winkelvoorzieningen en een basisschool. Het centrum Heerlen is binnen enkele minuten te bereiken.
Begane grond.
Prive berging. Centrale hal met bellentableau, intercom, trappenhuis en liftinstallatie.
Derde verdieping
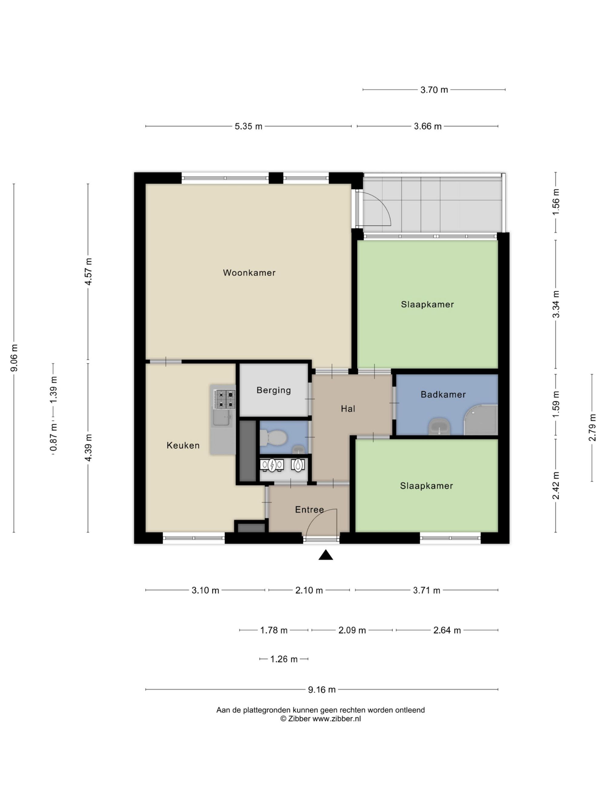
Via een galerij is het appartement te bereiken. Hal met doorloop naar de verschillende ruimten. Cv ruimte met Combi cv installatie (intergas HRE, eigendom). Separate keukenruimte voorzien van een eenvoudige keukeninstallatie. Woonkamer met toegang naar balkon op het westen. Eenvoudige badkamer met douche en wastafel. Inpandige berging. 2 slaapkamers
* deels voorzien van dubbele beglazing en kunststof kozijnen.
* starters appartement dat gemoderniseerd dient te worden.
* VvE bijdrage thans € 165,17 per maand
Aansprakelijkheid
Het bovenstaande behelst slechts een globale omschrijving van een object. De informatie berust deels op door derden aan onze kantoren verstrekte gegevens. Met de meeste zorg hebben wij deze informatie verwerkt doch kunnen ten aanzien van de juistheid van deze gegevens geen aansprakelijkheid aanvaarden. Aan deze brochure kunnen geen rechten worden ontleend.
Ontbinding
De termijn die wordt opgenomen voor eventuele (overeengekomen) ontbindende voorwaarden (b.v. financiering) is in de regel circa 4 weken na het sluiten van de mondelinge wilsovereenkomst.
Zekerheidsstelling
De waarborgsom/bankgarantie is 10% van de koopsom. De koper dient deze binnen 7 dagen na definitieve overeenkomst bij de desbetreffende notaris te deponeren.
Onderzoeksplicht van de koper
Koper is te allen tijde gerechtigd voor eigen rekening een bouwkundige keuring te (laten) verrichten dan wel andere adviseurs te raadplegen teneinde een goed inzicht te verkrijgen in de staat van onderhoud.
Begane grond.
Prive berging. Centrale hal met bellentableau, intercom, trappenhuis en liftinstallatie.
Derde verdieping
Via een galerij is het appartement te bereiken. Hal met doorloop naar de verschillende ruimten. Cv ruimte met Combi cv installatie (intergas HRE, eigendom). Separate keukenruimte voorzien van een eenvoudige keukeninstallatie. Woonkamer met toegang naar balkon op het westen. Eenvoudige badkamer met douche en wastafel. Inpandige berging. 2 slaapkamers
* deels voorzien van dubbele beglazing en kunststof kozijnen.
* starters appartement dat gemoderniseerd dient te worden.
* VvE bijdrage thans € 165,17 per maand
Aansprakelijkheid
Het bovenstaande behelst slechts een globale omschrijving van een object. De informatie berust deels op door derden aan onze kantoren verstrekte gegevens. Met de meeste zorg hebben wij deze informatie verwerkt doch kunnen ten aanzien van de juistheid van deze gegevens geen aansprakelijkheid aanvaarden. Aan deze brochure kunnen geen rechten worden ontleend.
Ontbinding
De termijn die wordt opgenomen voor eventuele (overeengekomen) ontbindende voorwaarden (b.v. financiering) is in de regel circa 4 weken na het sluiten van de mondelinge wilsovereenkomst.
Zekerheidsstelling
De waarborgsom/bankgarantie is 10% van de koopsom. De koper dient deze binnen 7 dagen na definitieve overeenkomst bij de desbetreffende notaris te deponeren.
Onderzoeksplicht van de koper
Koper is te allen tijde gerechtigd voor eigen rekening een bouwkundige keuring te (laten) verrichten dan wel andere adviseurs te raadplegen teneinde een goed inzicht te verkrijgen in de staat van onderhoud.
+ Read more
- Read less
Construction: {{
product.build_year }}
Construction: {{ product.build_period.start }} -
{{ product.build_period.end }}
Apartment
, Gallery flat
{{ product.rooms }} rooms
{{ product.bedrooms
}} bedrooms
Living space: {{
product.living_space }} m²
Plot: {{
product.plot_surface }} m²
Energy class: {{ product.energy_class }}
Energy index: {{ product.energy_index }}
Characteristics
{{ field.label }}
{{ field.value }}
+ Read more
{{ field.label }}
{{ field.value }}
- Read less
{{ product.company.name }}
Contact us
{{ product.company.phone.replace('-', ' ').substr(0, 7) }}...
{{ product.company.phone.replace('-', ' ') }}
Share:
Date