Sold
€ {{ product.price.replace(/\B(?=(\d{4})+(?!\d))/g, ".") }} {{ __(product.price_condition) }}
Photo’s
{{ product.images.length }}
Floorplan
{{ product.plans.length }}
360° photo’s {{ product.panoramas.length }}
Video’s {{ product.videos.length }}
Maps
All media
Apartment for sale De Heugden 111 Heerlen
€ {{ product.price.replace(/\B(?=(\d{4})+(?!\d))/g, ".") }} {{ __(product.price_condition) }}
Sold
Description
In het centrum van Heerlen gelegen keurig afgewerkt en verzorgd appartement op de 9de (en hoogste)verdieping met o.a. fijn ruim balkon, 2 ruime slaapkamers, riante woonkamer met half open keuken, keurige moderne badkamer, inpandige berging en parkeerplaats op afgesloten terrein.
Begane grond:
Rondom het appartementencomplex gelegen gezamenlijke ruime parkeerplaats met slagboom en parkeergelegenheid voor de bewoners.
Gezamenlijke entree met bellentableau, intercominstallatie en brievenbussen.
Toegang tot de lift, gezamenlijke fietsenstalling en het trappenportaal.
Appartement gelegen op de 9de verdieping:
Middels de ruime gang is het appartement te bereiken.
Entree.
Ontvangsthal.
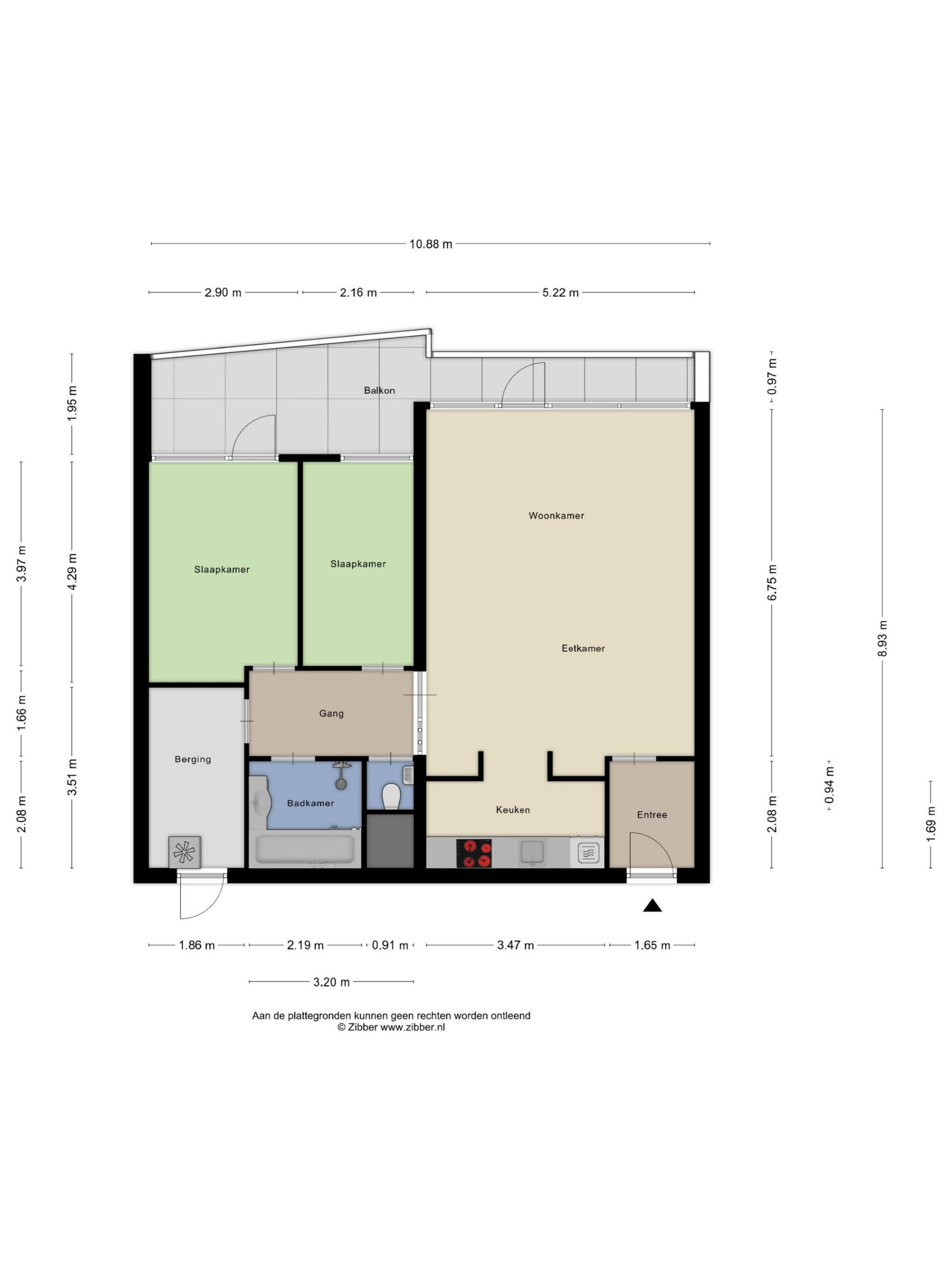
Riante woonkamer (6.50 x 5.23 m) met veel lichtinval, voorzien van mooie parketvloer, airco installatie en toegang tot het balkon.
Half open keuken (3.53 x 1.74 m) is voorzien van keurige keuken installatie en apparatuur te weten: koelkast, magnetron, inductie kookplaat, afzuiging en vaatwasser.
Verdeelhal .
Separaat geheel betegeld toilet met zwevende uitvoering en fontein.
2 Slaapkamers.
Slaapkamer 1(4.36 x 2.91 m) voorzien van parketvloer.
Slaapkamer 2(4.06 x 2.21 m) voorzien van parketvloer.
Betegelde modern afgewerkte badkamer (2.20 x 2.11 m) is voorzien van een ligbad, ruime inloopdouche en vaste wastafel met badmeubel.
Technische/bergruimte (3.55 x 1.89 m) met opstelling van de verwarmingsinstallatie (stadsverwarming) en aansluitingen voor was apparatuur. Deze berging is ook vanuit de centrale hal te bereiken.
Het zonnige en ruim gelegen balkon is bereikbaar vanuit de woonkamer en vanuit de slaapkamer.
Bijzonderheden:
Het appartement is gelegen in een prima appartementencomplex centraal gelegen op 5 minuten loopafstand van het station, Maankwartier en centrum van Heerlen.
Gelegen in de nabijheid van overige voorzieningen zoals scholen, winkels en dichtbij uitvalswegen.
Ruime parkeergelegenheid rondom het complex met slagbomen en pasjes voor bewoners.
Geheel voorzien van hardhouten kozijnen met isolerende beglazing.
Energielabel C.
Voorzien van rolluiken.
De woning wordt verwarmd middels stadsverwarming.
De VVE bijdrage is € 290,00 per maand inclusief voorschot warmwater en verwarming.
AANSPRAKELIJKHEID
Het bovenstaande behelst slechts een globale omschrijving van een object. De informatie berust deels op door derden aan onze kantoren verstrekte gegevens. Met de meeste zorg hebben wij deze informatie verwerkt doch kunnen ten aanzien van de juistheid van deze gegevens geen aansprakelijkheid aanvaarden. Aan deze brochure kunnen geen rechten worden ontleend.
ONTBINDING
De termijn die wordt opgenomen voor eventuele (overeengekomen) ontbindende voorwaarden (b.v. financiering) is in de regel circa 4 weken na het sluiten van de mondelinge wilsovereenkomst.
ZEKERHEIDSSTELLING
De waarborgsom/bankgarantie is 10% van de koopsom. De koper dient deze binnen 7 dagen na definitieve overeenkomst bij de desbetreffende notaris te deponeren.
ONDERZOEKSPLICHT VAN DE KOPER
Koper is te allen tijde gerechtigd voor eigen rekening een bouwkundige keuring te (laten) verrichten dan wel andere adviseurs te raadplegen teneinde een goed inzicht te verkrijgen in de staat van onderhoud.
Begane grond:
Rondom het appartementencomplex gelegen gezamenlijke ruime parkeerplaats met slagboom en parkeergelegenheid voor de bewoners.
Gezamenlijke entree met bellentableau, intercominstallatie en brievenbussen.
Toegang tot de lift, gezamenlijke fietsenstalling en het trappenportaal.
Appartement gelegen op de 9de verdieping:
Middels de ruime gang is het appartement te bereiken.
Entree.
Ontvangsthal.
Riante woonkamer (6.50 x 5.23 m) met veel lichtinval, voorzien van mooie parketvloer, airco installatie en toegang tot het balkon.
Half open keuken (3.53 x 1.74 m) is voorzien van keurige keuken installatie en apparatuur te weten: koelkast, magnetron, inductie kookplaat, afzuiging en vaatwasser.
Verdeelhal .
Separaat geheel betegeld toilet met zwevende uitvoering en fontein.
2 Slaapkamers.
Slaapkamer 1(4.36 x 2.91 m) voorzien van parketvloer.
Slaapkamer 2(4.06 x 2.21 m) voorzien van parketvloer.
Betegelde modern afgewerkte badkamer (2.20 x 2.11 m) is voorzien van een ligbad, ruime inloopdouche en vaste wastafel met badmeubel.
Technische/bergruimte (3.55 x 1.89 m) met opstelling van de verwarmingsinstallatie (stadsverwarming) en aansluitingen voor was apparatuur. Deze berging is ook vanuit de centrale hal te bereiken.
Het zonnige en ruim gelegen balkon is bereikbaar vanuit de woonkamer en vanuit de slaapkamer.
Bijzonderheden:
Het appartement is gelegen in een prima appartementencomplex centraal gelegen op 5 minuten loopafstand van het station, Maankwartier en centrum van Heerlen.
Gelegen in de nabijheid van overige voorzieningen zoals scholen, winkels en dichtbij uitvalswegen.
Ruime parkeergelegenheid rondom het complex met slagbomen en pasjes voor bewoners.
Geheel voorzien van hardhouten kozijnen met isolerende beglazing.
Energielabel C.
Voorzien van rolluiken.
De woning wordt verwarmd middels stadsverwarming.
De VVE bijdrage is € 290,00 per maand inclusief voorschot warmwater en verwarming.
AANSPRAKELIJKHEID
Het bovenstaande behelst slechts een globale omschrijving van een object. De informatie berust deels op door derden aan onze kantoren verstrekte gegevens. Met de meeste zorg hebben wij deze informatie verwerkt doch kunnen ten aanzien van de juistheid van deze gegevens geen aansprakelijkheid aanvaarden. Aan deze brochure kunnen geen rechten worden ontleend.
ONTBINDING
De termijn die wordt opgenomen voor eventuele (overeengekomen) ontbindende voorwaarden (b.v. financiering) is in de regel circa 4 weken na het sluiten van de mondelinge wilsovereenkomst.
ZEKERHEIDSSTELLING
De waarborgsom/bankgarantie is 10% van de koopsom. De koper dient deze binnen 7 dagen na definitieve overeenkomst bij de desbetreffende notaris te deponeren.
ONDERZOEKSPLICHT VAN DE KOPER
Koper is te allen tijde gerechtigd voor eigen rekening een bouwkundige keuring te (laten) verrichten dan wel andere adviseurs te raadplegen teneinde een goed inzicht te verkrijgen in de staat van onderhoud.
+ Read more
- Read less
Construction: {{
product.build_year }}
Construction: {{ product.build_period.start }} -
{{ product.build_period.end }}
Apartment
, Porch flat
{{ product.rooms }} rooms
{{ product.bedrooms
}} bedrooms
Living space: {{
product.living_space }} m²
Plot: {{
product.plot_surface }} m²
Energy class: {{ product.energy_class }}
Energy index: {{ product.energy_index }}
Characteristics
{{ field.label }}
{{ field.value }}
+ Read more
{{ field.label }}
{{ field.value }}
- Read less
{{ product.company.name }}
Contact us
{{ product.company.phone.replace('-', ' ').substr(0, 7) }}...
{{ product.company.phone.replace('-', ' ') }}
Share:
Date