Sold under reservation
€ {{ product.price.replace(/\B(?=(\d{4})+(?!\d))/g, ".") }} {{ __(product.price_condition) }}
Photo’s
{{ product.images.length }}
Floorplan
{{ product.plans.length }}
360° photo’s {{ product.panoramas.length }}
Video’s {{ product.videos.length }}
Maps
All media
Apartment for sale Drieoortsput 52 Heerlen
€ {{ product.price.replace(/\B(?=(\d{4})+(?!\d))/g, ".") }} {{ __(product.price_condition) }}
Sold under reservation
Description
Verkoopstart met OPEN HUIS op dinsdag 2 december van 15.30/16.30 uur bent u van harte welkom.
Bieden vanaf € 130.000,--
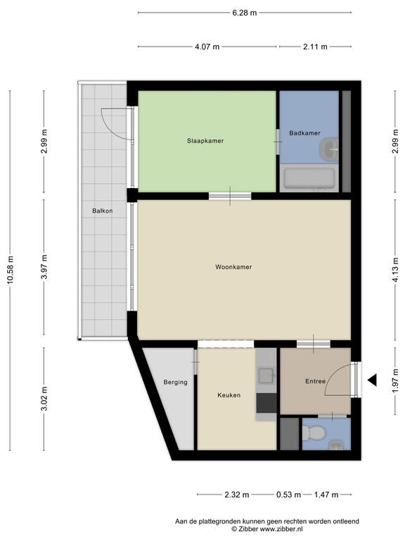
Op centrale woonlocatie gelegen 2-kamer appartement op de zevende verdieping met eigen parkeerplaats (nummer 11 in de parkeergarage) en eigen berging op de begane grond.
Het appartement heeft o.a. woonkamer met half open keuken met eenvoudige keukeninrichting, 1 slaapkamer, ruime badkamer en 2 balkons.
Bieden vanaf € 130.000,--
INDELING:
Begane grond:
Openbare parkeerplaatsen.
Centrale entree, fietsenberging, brievenbussen en 2 liften.
Eigen afgesloten berging (3.44 x 1.60 m).
Parkeerdek/garage met eigen parkeerplaats (nummer 11 in de parkeergarage).
Zevende verdieping appartement:
Verdeel hal met toegang tot alle appartementen.
Entree:
Ontvangsthal (3.46 x 1.11 m).
Deels betegelde closetruimte met duo closet en fonteintje.
Woonkamer (6.31 x 4.11 m) met laminaatvloer.
Half open keuken (3.04 x 2.36 m) met eenvoudige keukeninrichting.
Slaapkamer (4.00 x 3.00 m) met toegang tot het balkon (2.54 x 1.43 m).
Geheel betegelde badkamer (2.42 x 1.79 m) met douche, vaste wastafel en aansluiting voor wasautomaat.
Gehele appartement is voorzien van een laminaatvloer.
Algemeen:
Aanvaarding op korte termijn is mogelijk.
Voorzien van houten kozijnen met isolerende beglazing.
Energielabel E.
Gunstig gelegen t.o.v. doorgaande wegen (direct bij de autoweg). Winkels, scholen en openbaar vervoer zijn ook goed bereikbaar.
Bijdrage VvE appartement, berging en parkeerplaats € 273,00 inclusief stookkosten, water, opstalverzekering, dagelijks onderhoud, reserve meer jaren onderhoud, enz. VVE bijdrage berging € 10,-- per maand, VVE bijdrage parkeerplaats € 15,-- per maand.
AANSPRAKELIJKHEID
Het bovenstaande behelst slechts een globale omschrijving van een object. De informatie berust deels op door derden aan onze kantoren verstrekte gegevens. Met de meeste zorg hebben wij deze informatie verwerkt doch kunnen ten aanzien van de juistheid van deze gegevens geen aansprakelijkheid aanvaarden. Aan deze brochure kunnen geen rechten worden ontleend.
ONTBINDING
De termijn die wordt opgenomen voor eventuele (overeengekomen) ontbindende voorwaarden (b.v. financiering) is in de regel circa 4 weken na het sluiten van de mondelinge wilsovereenkomst.
ZEKERHEIDSSTELLING
De waarborgsom/bankgarantie is 10% van de koopsom. De koper dient deze binnen 7 dagen na definitieve overeenkomst bij de desbetreffende notaris te deponeren.
ONDERZOEKSPLICHT VAN DE KOPER
Koper is te allen tijde gerechtigd voor eigen rekening een bouwkundige keuring te (laten) verrichten dan wel andere adviseurs te raadplegen teneinde een goed inzicht te verkrijgen in de staat van onderhoud.
Bieden vanaf € 130.000,--
Op centrale woonlocatie gelegen 2-kamer appartement op de zevende verdieping met eigen parkeerplaats (nummer 11 in de parkeergarage) en eigen berging op de begane grond.
Het appartement heeft o.a. woonkamer met half open keuken met eenvoudige keukeninrichting, 1 slaapkamer, ruime badkamer en 2 balkons.
Bieden vanaf € 130.000,--
INDELING:
Begane grond:
Openbare parkeerplaatsen.
Centrale entree, fietsenberging, brievenbussen en 2 liften.
Eigen afgesloten berging (3.44 x 1.60 m).
Parkeerdek/garage met eigen parkeerplaats (nummer 11 in de parkeergarage).
Zevende verdieping appartement:
Verdeel hal met toegang tot alle appartementen.
Entree:
Ontvangsthal (3.46 x 1.11 m).
Deels betegelde closetruimte met duo closet en fonteintje.
Woonkamer (6.31 x 4.11 m) met laminaatvloer.
Half open keuken (3.04 x 2.36 m) met eenvoudige keukeninrichting.
Slaapkamer (4.00 x 3.00 m) met toegang tot het balkon (2.54 x 1.43 m).
Geheel betegelde badkamer (2.42 x 1.79 m) met douche, vaste wastafel en aansluiting voor wasautomaat.
Gehele appartement is voorzien van een laminaatvloer.
Algemeen:
Aanvaarding op korte termijn is mogelijk.
Voorzien van houten kozijnen met isolerende beglazing.
Energielabel E.
Gunstig gelegen t.o.v. doorgaande wegen (direct bij de autoweg). Winkels, scholen en openbaar vervoer zijn ook goed bereikbaar.
Bijdrage VvE appartement, berging en parkeerplaats € 273,00 inclusief stookkosten, water, opstalverzekering, dagelijks onderhoud, reserve meer jaren onderhoud, enz. VVE bijdrage berging € 10,-- per maand, VVE bijdrage parkeerplaats € 15,-- per maand.
AANSPRAKELIJKHEID
Het bovenstaande behelst slechts een globale omschrijving van een object. De informatie berust deels op door derden aan onze kantoren verstrekte gegevens. Met de meeste zorg hebben wij deze informatie verwerkt doch kunnen ten aanzien van de juistheid van deze gegevens geen aansprakelijkheid aanvaarden. Aan deze brochure kunnen geen rechten worden ontleend.
ONTBINDING
De termijn die wordt opgenomen voor eventuele (overeengekomen) ontbindende voorwaarden (b.v. financiering) is in de regel circa 4 weken na het sluiten van de mondelinge wilsovereenkomst.
ZEKERHEIDSSTELLING
De waarborgsom/bankgarantie is 10% van de koopsom. De koper dient deze binnen 7 dagen na definitieve overeenkomst bij de desbetreffende notaris te deponeren.
ONDERZOEKSPLICHT VAN DE KOPER
Koper is te allen tijde gerechtigd voor eigen rekening een bouwkundige keuring te (laten) verrichten dan wel andere adviseurs te raadplegen teneinde een goed inzicht te verkrijgen in de staat van onderhoud.
+ Read more
- Read less
Construction: {{
product.build_year }}
Construction: {{ product.build_period.start }} -
{{ product.build_period.end }}
Apartment
, Porch flat
{{ product.rooms }} rooms
{{ product.bedrooms
}} bedrooms
Living space: {{
product.living_space }} m²
Plot: {{
product.plot_surface }} m²
Energy class: {{ product.energy_class }}
Energy index: {{ product.energy_index }}
Characteristics
{{ field.label }}
{{ field.value }}
+ Read more
{{ field.label }}
{{ field.value }}
- Read less
{{ product.company.name }}
Contact us
{{ product.company.phone.replace('-', ' ').substr(0, 7) }}...
{{ product.company.phone.replace('-', ' ') }}
Share:
Date