Sold
€ {{ product.price.replace(/\B(?=(\d{4})+(?!\d))/g, ".") }} {{ __(product.price_condition) }}
Photo’s
{{ product.images.length }}
Floorplan
{{ product.plans.length }}
360° photo’s {{ product.panoramas.length }}
Video’s {{ product.videos.length }}
Maps
All media
Apartment for sale Holset 80 A en B Lemiers
€ {{ product.price.replace(/\B(?=(\d{4})+(?!\d))/g, ".") }} {{ __(product.price_condition) }}
Sold
Description
Buitenkans in het buitengebied!
2 Appartementen op een eigen kadastraal stuk in het prachtige Holset.
De ruwbouw is in 2013 gerealiseerd, vanaf 2022 zijn de beide appartementen afgebouwd. Bij de bouw is waar mogelijk gebruik gemaakt van de oorspronkelijke materialen (veldbrand stenen etc.) in combinatie met de eisen die aan een nieuwbouw gesteld worden. Beide appartementen zijn voorzien van vloerverwarming en beschikken over eigen buitenruimte en parkeerplaatsen. Ideaal voor dubbele bewoning of gedeeltelijke verhuur.
Ligging:
Holset is een klein rustig dorpje in het zuidoosten van Limburg, behorend bij de kern van Lemiers (gemeente Vaals), heeft ongeveer 160 inwoners en beschikt over een kerkje, diverse horecagelegenheden en het merendeel van de woningen zijn gevestigd in karakteristieke panden. Prachtige ligging in het buitengebied met uitzicht over het schilderachtige landschap met vergezichten tot en met het drielandenpunt. Perfecte plek voor het ervaren van rust en ruimte. 3 wandelminuten gelegen vanaf het Vijlenerbos. Een goede basis voor zowel woon- als recreatiedoeleinden. Alle voorzieningen zijn in Vaals gevestigd, gelegen op 5 autominuten. Aken en de autosnelweg zijn ook zeer goed bereikbaar.
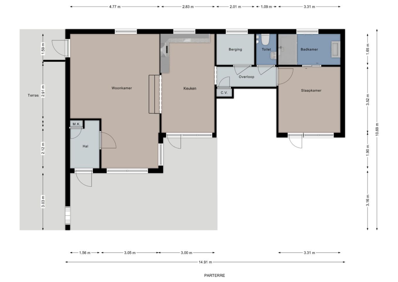
Indeling Appartement 80A (circa 70m2, parterre):
Via de hal met meterkast bereikt men de ruime woonkamer (circa 28m2) met toegang tot het terras en de moderne woonkeuken. De woonkamer en keuken hebben zeer veel lichtinval en contact met buiten. De keuken beschikt over alle benodigde apparatuur (vaatwasser, koelkast, oven, afzuigkap en inductie kookplaat) en is geplaatst in 2023. Ook de moderne badkamer en de toiletruimte zijn geplaatst in 2023 en zijn dan ook geheel nieuw. De slaapkamer is ruim en licht en geeft direct toegang tot de badkamer. Verder is er een ruime berging voor wasmachine en droger. Hier hangt ook de unit voor de mechanische ventilatie.
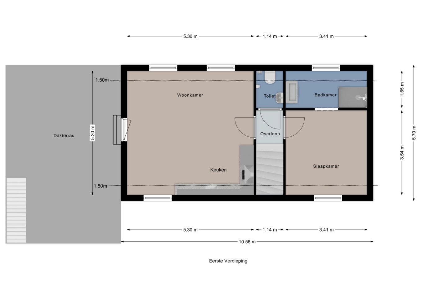
Indeling Appartement 80B (circa 60m2, BG en 1e verdieping):
Via de hal met meterkast en cv-ruimte bereikt men via de trap de overloop met toegang tot de grote woonkamer/keuken (circa 26m2), het toilet en de slaapkamer met ensuite badkamer. De woonkamer/keuken hebben zeer veel lichtinval en geven toegang tot het ruime dakterras. De keuken beschikt over alle benodigde apparatuur (vaatwasser, koelkast, diepvries, oven, afzuigkap en inductie kookplaat) en is geplaatst in 2023. Ook de moderne badkamer en de toiletruimte zijn geplaatst in 2023 en zijn dan ook geheel nieuw. De slaapkamer is ruim en licht en geeft direct toegang tot de badkamer.
Kenmerken:
-Prachtige ligging
-Energielabel 2 x A
-Kadastraal Vaals H 865 - 354 m2
-Wonen Holset 80A - circa 70 m2
-Wonen Holset 80B - circa 60 m2
-Geheel nieuw opgebouwd: nieuwe leidingen, elektra, vloerverwarming, Cv-Ketels Nefit eigendom, mechanische ventilatie etc.
-Keukens 2023
-Badkamers 2023
-Toiletten 2023
-Dakisolatie, spouwmuur en vloerisolatie
-HR+ glas in nieuwe kozijnen
2 Appartementen op een eigen kadastraal stuk in het prachtige Holset.
De ruwbouw is in 2013 gerealiseerd, vanaf 2022 zijn de beide appartementen afgebouwd. Bij de bouw is waar mogelijk gebruik gemaakt van de oorspronkelijke materialen (veldbrand stenen etc.) in combinatie met de eisen die aan een nieuwbouw gesteld worden. Beide appartementen zijn voorzien van vloerverwarming en beschikken over eigen buitenruimte en parkeerplaatsen. Ideaal voor dubbele bewoning of gedeeltelijke verhuur.
Ligging:
Holset is een klein rustig dorpje in het zuidoosten van Limburg, behorend bij de kern van Lemiers (gemeente Vaals), heeft ongeveer 160 inwoners en beschikt over een kerkje, diverse horecagelegenheden en het merendeel van de woningen zijn gevestigd in karakteristieke panden. Prachtige ligging in het buitengebied met uitzicht over het schilderachtige landschap met vergezichten tot en met het drielandenpunt. Perfecte plek voor het ervaren van rust en ruimte. 3 wandelminuten gelegen vanaf het Vijlenerbos. Een goede basis voor zowel woon- als recreatiedoeleinden. Alle voorzieningen zijn in Vaals gevestigd, gelegen op 5 autominuten. Aken en de autosnelweg zijn ook zeer goed bereikbaar.
Indeling Appartement 80A (circa 70m2, parterre):
Via de hal met meterkast bereikt men de ruime woonkamer (circa 28m2) met toegang tot het terras en de moderne woonkeuken. De woonkamer en keuken hebben zeer veel lichtinval en contact met buiten. De keuken beschikt over alle benodigde apparatuur (vaatwasser, koelkast, oven, afzuigkap en inductie kookplaat) en is geplaatst in 2023. Ook de moderne badkamer en de toiletruimte zijn geplaatst in 2023 en zijn dan ook geheel nieuw. De slaapkamer is ruim en licht en geeft direct toegang tot de badkamer. Verder is er een ruime berging voor wasmachine en droger. Hier hangt ook de unit voor de mechanische ventilatie.
Indeling Appartement 80B (circa 60m2, BG en 1e verdieping):
Via de hal met meterkast en cv-ruimte bereikt men via de trap de overloop met toegang tot de grote woonkamer/keuken (circa 26m2), het toilet en de slaapkamer met ensuite badkamer. De woonkamer/keuken hebben zeer veel lichtinval en geven toegang tot het ruime dakterras. De keuken beschikt over alle benodigde apparatuur (vaatwasser, koelkast, diepvries, oven, afzuigkap en inductie kookplaat) en is geplaatst in 2023. Ook de moderne badkamer en de toiletruimte zijn geplaatst in 2023 en zijn dan ook geheel nieuw. De slaapkamer is ruim en licht en geeft direct toegang tot de badkamer.
Kenmerken:
-Prachtige ligging
-Energielabel 2 x A
-Kadastraal Vaals H 865 - 354 m2
-Wonen Holset 80A - circa 70 m2
-Wonen Holset 80B - circa 60 m2
-Geheel nieuw opgebouwd: nieuwe leidingen, elektra, vloerverwarming, Cv-Ketels Nefit eigendom, mechanische ventilatie etc.
-Keukens 2023
-Badkamers 2023
-Toiletten 2023
-Dakisolatie, spouwmuur en vloerisolatie
-HR+ glas in nieuwe kozijnen
+ Read more
- Read less
Construction: {{
product.build_year }}
Construction: {{ product.build_period.start }} -
{{ product.build_period.end }}
Apartment
{{ product.rooms }} rooms
{{ product.bedrooms
}} bedrooms
Living space: {{
product.living_space }} m²
Plot: {{
product.plot_surface }} m²
Energy class: {{ product.energy_class }}
Energy index: {{ product.energy_index }}
Characteristics
{{ field.label }}
{{ field.value }}
+ Read more
{{ field.label }}
{{ field.value }}
- Read less
{{ product.company.name }}
Contact us
{{ product.company.phone.replace('-', ' ').substr(0, 7) }}...
{{ product.company.phone.replace('-', ' ') }}
Share:
Date