Available
€ {{ product.price.replace(/\B(?=(\d{4})+(?!\d))/g, ".") }} {{ __(product.price_condition) }}
Photo’s
{{ product.images.length }}
Floorplan
{{ product.plans.length }}
360° photo’s {{ product.panoramas.length }}
Video’s {{ product.videos.length }}
Maps
All media
Apartment for sale Rijksweg 259 Maasmechelen
€ {{ product.price.replace(/\B(?=(\d{4})+(?!\d))/g, ".") }} {{ __(product.price_condition) }}
Available
Description
Te renoveren duplexappartement op centrale locatie in Maasmechelen
📍 Rijksweg 259 bus 3, 3630 Maasmechelen
Dit te renoveren duplexappartement is centraal gelegen langs de Rijksweg in Maasmechelen, in de nabijheid van winkels, scholen en belangrijke verbindingswegen.
Het pand is momenteel ingericht als twee aparte woonentiteiten. Volgens de stedenbouwkundige voorschriften dient dit echter als één woongelegenheid te worden gebruikt.
Hiervoor werd reeds een vergunning bekomen om beide entiteiten samen te voegen tot één ruim duplexappartement. Deze vergunning is lopende en kan door de koper verder benut worden.
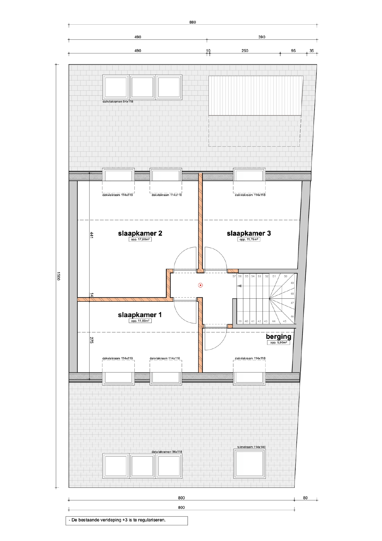
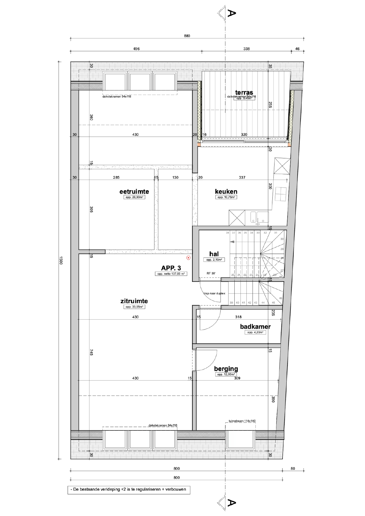
Na samenvoeging ontstaat een zeer ruim duplexappartement met een netto bewoonbare oppervlakte van ca. 137 m², voorzien van 3 slaapkamers, twee bergingen en één parkeerplaats.
Bovendien is dit een unieke investeringskans voor investeerders of perfect geschikt als startersappartement.
Vraagprijs: € 165.000,00
Voor bijkomende informatie omtrent de plannen, vergunning of om een bezoek in te plannen, kan u steeds contact opnemen.
📍 Rijksweg 259 bus 3, 3630 Maasmechelen
Dit te renoveren duplexappartement is centraal gelegen langs de Rijksweg in Maasmechelen, in de nabijheid van winkels, scholen en belangrijke verbindingswegen.
Het pand is momenteel ingericht als twee aparte woonentiteiten. Volgens de stedenbouwkundige voorschriften dient dit echter als één woongelegenheid te worden gebruikt.
Hiervoor werd reeds een vergunning bekomen om beide entiteiten samen te voegen tot één ruim duplexappartement. Deze vergunning is lopende en kan door de koper verder benut worden.
Na samenvoeging ontstaat een zeer ruim duplexappartement met een netto bewoonbare oppervlakte van ca. 137 m², voorzien van 3 slaapkamers, twee bergingen en één parkeerplaats.
Bovendien is dit een unieke investeringskans voor investeerders of perfect geschikt als startersappartement.
Vraagprijs: € 165.000,00
Voor bijkomende informatie omtrent de plannen, vergunning of om een bezoek in te plannen, kan u steeds contact opnemen.
+ Read more
- Read less
Construction: {{
product.build_year }}
Construction: {{ product.build_period.start }} -
{{ product.build_period.end }}
Apartment
, Duplex
{{ product.rooms }} rooms
{{ product.bedrooms
}} bedrooms
Living space: {{
product.living_space }} m²
Plot: {{
product.plot_surface }} m²
Energy class: {{ product.energy_class }}
Energy index: {{ product.energy_index }}
Characteristics
{{ field.label }}
{{ field.value }}
+ Read more
{{ field.label }}
{{ field.value }}
- Read less
{{ product.company.name }}
Contact us
{{ product.company.phone.replace('-', ' ').substr(0, 7) }}...
{{ product.company.phone.replace('-', ' ') }}
Share:
Date