Available
€ {{ product.price.replace(/\B(?=(\d{4})+(?!\d))/g, ".") }} {{ __(product.price_condition) }}
Photo’s
{{ product.images.length }}
Floorplan
{{ product.plans.length }}
360° photo’s {{ product.panoramas.length }}
Video’s {{ product.videos.length }}
Maps
All media
Apartment for sale Herdenkingsplein 50 D Maastricht
€ {{ product.price.replace(/\B(?=(\d{4})+(?!\d))/g, ".") }} {{ __(product.price_condition) }}
Available
Description
Instapklaar, modern en comfortabel appartement op de derde (top)verdieping aan het rustige Herdenkingsplein in het hart van het historische stadscentrum met twee slaapkamers en twee balkons (1 op het zuiden, 1 op het noorden).
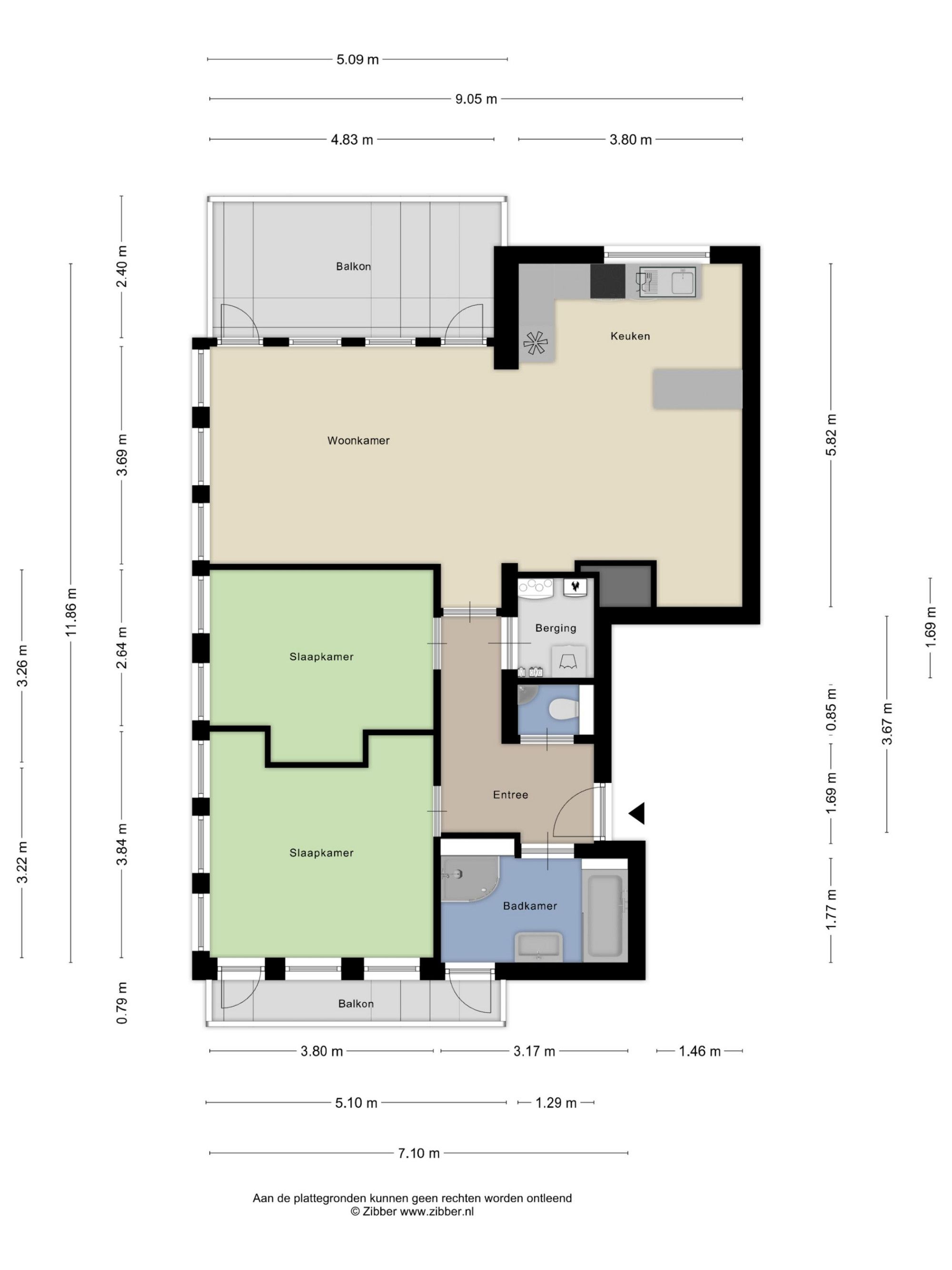
INDELING
Souterrain
Privé berging van ruim 9 m².
Begane grond
Gezamenlijke entree met brievenbussen, lift en trappenhuis.
Appartement / 3e (bovenste) verdieping
- Ontvangsthal met toegang tot de vertrekken.
- Gastentoiletruimte met wandcloset en hoekfontein.
- Luxe badkamer van bijna 6 m² met douchecabine, ligbad en wastafel.
- Twee slaapkamers van respectievelijk circa 14 m² en circa 11 m².
- Riante woonkamer met open keuken van in totaal circa 39 m², met toegang tot de op het zuiden gelegen balkon van circa 11 m².
- De keuken is voorzien van een L-inrichting en blok met extra berg-/werkruimte met diverse inbouwapparatuur: een koelkast met vriesvak, 4-pits keramische kookplaat, afzuigkap en vaatwasser.
Door de diverse raampartijen geniet u van een optimale lichtinval.
- Bergruimte met de HR combi-ketel (bouwjaar 2021), WTW-installatie en aansluiting/afvoer voor de wasmachine.
- Tweede balkon van circa 3m² aan de voorzijde, bereikbaar vanuit de grootste slaapkamer en de badkamer.
BIJZONDERHEDEN
- Geheel voorzien van laminaatvloeren en strak gestucte wanden.
- Het appartement is goed geïsoleerd middels o.a. dubbele beglazing (HR++) .
- Energielabel B.
- Fantastische locatie vlakbij het zeer geliefde Vrijthof en de Markt, doch in alle rust.
- Bijdrage aan de VvE: € 250,- per maand.
- Oplevering per direct mogelijk.
AANSPRAKELIJKHEID
Het bovenstaande behelst slechts een globale omschrijving van een object. De informatie berust deels op door derden aan onze kantoren verstrekte gegevens. Met de meeste zorg hebben wij deze informatie verwerkt doch kunnen ten aanzien van de juistheid van deze gegevens geen aansprakelijkheid aanvaarden. Aan deze brochure kunnen geen rechten worden ontleend.
ONDERHOUD
De staat van onderhoud en beoordeling van de bouwkundige staat geldt op basis van visuele waarnemingen, gerelateerd aan de ouderdom van het object. Een uitgebreide bouwkundige opname valt nadrukkelijk buiten het kader van deze presentatie. Dit behoort eventueel tot de onderzoeksplicht van de kandidaat-koper(s).
KOOPAKTE
De koopakte wordt opgesteld volgens model NVM.
TOELICHTINGSCLAUSULE NEN2580
De Meetinstructie is gebaseerd op de NEN2580. De Meetinstructie is bedoeld om een meer eenduidige manier van meten toe te passen voor het geven van een indicatie van de gebruiksoppervlakte. De Meetinstructie sluit verschillen in meetuitkomsten niet volledig uit, door bijvoorbeeld interpretatieverschillen, afrondingen of beperkingen bij het uitvoeren van de meting.
ONTBINDING
De termijn die wordt opgenomen voor eventuele (overeengekomen) ontbindende voorwaarden (b.v. financiering) is in de regel circa 6 weken na de mondelinge wilsovereenstemming.
ZEKERHEIDSSTELLING
De waarborgsom/ bankgarantie is 10% van de koopsom. De koper dient deze uiterlijk binnen 7 dagen na het verlopen van de ontbindende voorwaarden bij de desbetreffende notaris te deponeren.
ONDERZOEKSPLICHT VAN DE KOPER
Koper is te allen tijde gerechtigd voor eigen rekening een bouwkundige keuring te (laten) verrichten dan wel andere adviseurs te raadplegen teneinde een goed inzicht te verkrijgen over de staat van onderhoud.
INDELING
Souterrain
Privé berging van ruim 9 m².
Begane grond
Gezamenlijke entree met brievenbussen, lift en trappenhuis.
Appartement / 3e (bovenste) verdieping
- Ontvangsthal met toegang tot de vertrekken.
- Gastentoiletruimte met wandcloset en hoekfontein.
- Luxe badkamer van bijna 6 m² met douchecabine, ligbad en wastafel.
- Twee slaapkamers van respectievelijk circa 14 m² en circa 11 m².
- Riante woonkamer met open keuken van in totaal circa 39 m², met toegang tot de op het zuiden gelegen balkon van circa 11 m².
- De keuken is voorzien van een L-inrichting en blok met extra berg-/werkruimte met diverse inbouwapparatuur: een koelkast met vriesvak, 4-pits keramische kookplaat, afzuigkap en vaatwasser.
Door de diverse raampartijen geniet u van een optimale lichtinval.
- Bergruimte met de HR combi-ketel (bouwjaar 2021), WTW-installatie en aansluiting/afvoer voor de wasmachine.
- Tweede balkon van circa 3m² aan de voorzijde, bereikbaar vanuit de grootste slaapkamer en de badkamer.
BIJZONDERHEDEN
- Geheel voorzien van laminaatvloeren en strak gestucte wanden.
- Het appartement is goed geïsoleerd middels o.a. dubbele beglazing (HR++) .
- Energielabel B.
- Fantastische locatie vlakbij het zeer geliefde Vrijthof en de Markt, doch in alle rust.
- Bijdrage aan de VvE: € 250,- per maand.
- Oplevering per direct mogelijk.
AANSPRAKELIJKHEID
Het bovenstaande behelst slechts een globale omschrijving van een object. De informatie berust deels op door derden aan onze kantoren verstrekte gegevens. Met de meeste zorg hebben wij deze informatie verwerkt doch kunnen ten aanzien van de juistheid van deze gegevens geen aansprakelijkheid aanvaarden. Aan deze brochure kunnen geen rechten worden ontleend.
ONDERHOUD
De staat van onderhoud en beoordeling van de bouwkundige staat geldt op basis van visuele waarnemingen, gerelateerd aan de ouderdom van het object. Een uitgebreide bouwkundige opname valt nadrukkelijk buiten het kader van deze presentatie. Dit behoort eventueel tot de onderzoeksplicht van de kandidaat-koper(s).
KOOPAKTE
De koopakte wordt opgesteld volgens model NVM.
TOELICHTINGSCLAUSULE NEN2580
De Meetinstructie is gebaseerd op de NEN2580. De Meetinstructie is bedoeld om een meer eenduidige manier van meten toe te passen voor het geven van een indicatie van de gebruiksoppervlakte. De Meetinstructie sluit verschillen in meetuitkomsten niet volledig uit, door bijvoorbeeld interpretatieverschillen, afrondingen of beperkingen bij het uitvoeren van de meting.
ONTBINDING
De termijn die wordt opgenomen voor eventuele (overeengekomen) ontbindende voorwaarden (b.v. financiering) is in de regel circa 6 weken na de mondelinge wilsovereenstemming.
ZEKERHEIDSSTELLING
De waarborgsom/ bankgarantie is 10% van de koopsom. De koper dient deze uiterlijk binnen 7 dagen na het verlopen van de ontbindende voorwaarden bij de desbetreffende notaris te deponeren.
ONDERZOEKSPLICHT VAN DE KOPER
Koper is te allen tijde gerechtigd voor eigen rekening een bouwkundige keuring te (laten) verrichten dan wel andere adviseurs te raadplegen teneinde een goed inzicht te verkrijgen over de staat van onderhoud.
+ Read more
- Read less
Construction: {{
product.build_year }}
Construction: {{ product.build_period.start }} -
{{ product.build_period.end }}
Apartment
, Porch flat
{{ product.rooms }} rooms
{{ product.bedrooms
}} bedrooms
Living space: {{
product.living_space }} m²
Plot: {{
product.plot_surface }} m²
Energy class: {{ product.energy_class }}
Energy index: {{ product.energy_index }}
Characteristics
{{ field.label }}
{{ field.value }}
+ Read more
{{ field.label }}
{{ field.value }}
- Read less
{{ product.company.name }}
Contact us
{{ product.company.phone.replace('-', ' ').substr(0, 7) }}...
{{ product.company.phone.replace('-', ' ') }}
Share:
Date