Sold
€ {{ product.price.replace(/\B(?=(\d{4})+(?!\d))/g, ".") }} {{ __(product.price_condition) }}
Photo’s
{{ product.images.length }}
Floorplan
{{ product.plans.length }}
360° photo’s {{ product.panoramas.length }}
Video’s {{ product.videos.length }}
Maps
All media
House for sale Ploegbaas 15 Brunssum
€ {{ product.price.replace(/\B(?=(\d{4})+(?!\d))/g, ".") }} {{ __(product.price_condition) }}
Sold
Description
Welkom bij deze royale tweekapper aan de geliefde Ploegbaas 15 in Brunssum. Deze woning combineert de karakteristieke uitstraling van een jaren ’30 huis met het moderne comfort van vandaag. Hier woon je in een rustige, kindvriendelijke buurt op het populaire Emma II, met alle gemakken binnen handbereik. Ruimte, stijl én energiezuinig wonen gaan hier hand in hand: met drie (mogelijk vier) slaapkamers, een ruime garage, oprit voor meerdere auto’s, onderhoudsvriendelijke tuin én diverse recente vernieuwingen is dit een woning die je absoluut gezien moet hebben!
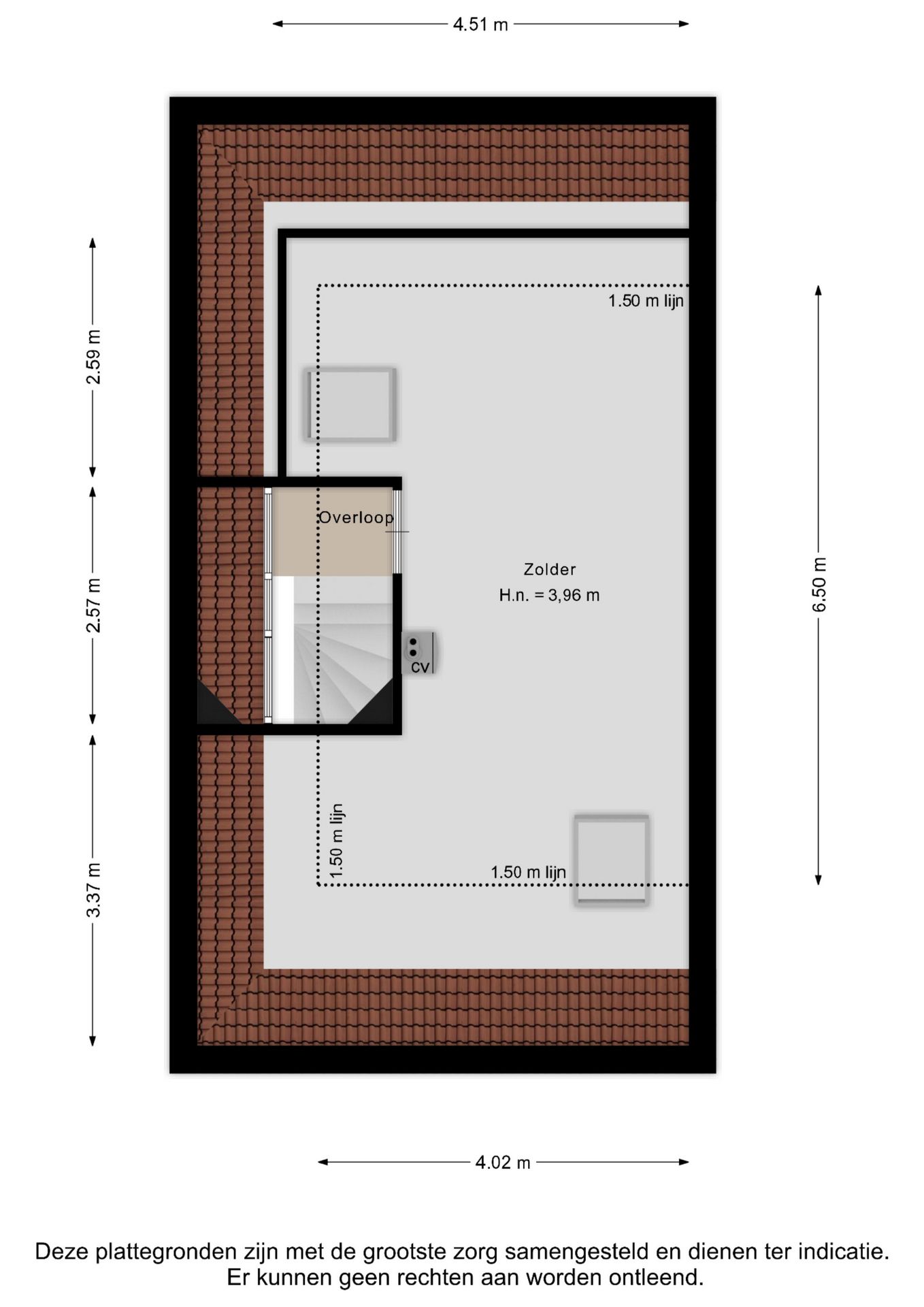
De maten van alle ruimtes vindt u terug in de plattegronden!
Leuk om te weten:
- Bouwjaar 2007 (conform BAG), eigen perceel: 248m² (conform kadaster);
- Woonoppervlakte ca. 143m², overige inpandige ruimte ca. 22m², (meetrapport aanwezig);
- 12 zonnepanelen (eigendom);
- Airconditioning op zowel de begane grond als de eerste verdieping (beide uit in 2023);
- Twee nieuwe kunststof dakramen (2023);
- Energiezuinig en uitstekend geïsoleerd (HR++ glas, hardhouten kozijnen, deels rolluiken);
- Moderne keuken (2023);
- Stijlvol vernieuwd sanitair (2023);
- Geïsoleerde woning met deels rolluiken op de eerste verdieping;
- Ruime oprit voor meerdere auto’s en inpandige garage met veel bergruimte;
- CV-combiketel (2007, eigendom).
Begane grond:
Bij binnenkomst stap je in de royale hal met garderobenis, moderne meterkast en een in 2023 vernieuwd toilet met hangend closet en een stijlvol fonteintje. Vervolgens kom je in de sfeervolle L-vormige woonkamer met erker, waar licht en ruimte prachtig samenkomen. In 2023 is hier een luxe PVC visgraatvloer gelegd die perfect past bij de klassieke uitstraling van de woning. De airco-unit (2023) zorgt voor een aangenaam binnenklimaat, het hele jaar door.
Aan de achterzijde ligt de halfopen keuken, eveneens volledig vernieuwd in 2023, met een moderne hoekopstelling voorzien van geïntegreerde inductiekookplaat met afzuiging, een combi-oven, koel-vriescombinatie, vaatwasser, spoelbak en bovenkasten. Een stijlvolle en functionele ruimte die koken tot een plezier maakt.
Aangrenzend vind je de praktische wasruimte met witgoedaansluitingen, toegang tot de inpandige garage én een deur naar de tuin. De geheel omsloten achtertuin op het zuiden biedt maximale privacy, uitstekende bezonning en voldoende ruimte voor ontspanning of spelende kinderen. De oprit voor meerdere auto's en de garage met kantelpoort maken het plaatje compleet.
Eerste verdieping:
De overloop biedt toegang tot drie ruime slaapkamers, waarvan de hoofdslaapkamer zich uitstrekt over de gehele voorzijde van de woning. Alle kamers zijn voorzien van een nette, dorpelloos gelegde laminaatvloer. Ook op deze verdieping is in 2023 een airco-unit geplaatst.
De badkamer werd in 2023 compleet vernieuwd en straalt stijl en luxe uit. Hier vind je een ruime inloopdouche, een dubbele wastafel in een modern meubel en een tweede toilet. De combinatie van materialen en kleuren is tijdloos en smaakvol gekozen – een echte meerwaarde!
Tweede verdieping:
Via een vaste trap bereik je de zolderverdieping. Deze is verrassend ruim dankzij de dakkapel op de overloop en biedt de mogelijkheid voor het realiseren van een vierde slaapkamer, werkruimte of hobbykamer. Onder de schuine kap is voldoende bergruimte aanwezig. Op zolder vind je ook de CV-combiketel (eigendom, bouwjaar 2007), de WTW-installatie en de mechanische ventilatiebox.
De waarborgsom/bankgarantie is 10% van de koopsom. De koper dient deze, indien de verkoper en koper dit overeenkomen, binnen 2 weken nadat het financieringsvoorbehoud is verlopen bij de desbetreffende notaris te deponeren.
Ter bescherming van de belangen van zowel koper als ook verkoper wordt uitdrukkelijk gesteld dat een koopovereenkomst met betrekking tot deze onroerende zaak eerst dan tot stand komt nadat koper en verkoper de koopovereenkomst hebben getekend (schriftelijkheids vereiste).
Indien c.v. ketel en/of warmwatervoorziening een huurtoestel is, dient koper de huurovereenkomst over te nemen.
Alle door ons kantoor verstrekte informatie omtrent onroerende zaken, moet beschouwd worden als een uitnodiging om in onderhandeling te treden, en is geheel vrijblijvend! Alle vermelde maten en afmetingen zijn slechts bij benadering. Aan deze beperkte info kunnen geen rechten worden ontleend. Indien in enige documentatie of op enige website informatie staat die niet overeen komt met de werkelijkheid, dan geldt de feitelijke situatie waarin de woning zich bevindt, zoals koper deze tijdens de bezichtiging heeft kunnen waarnemen, en wordt de woning in deze feitelijke situatie/staat verkocht. Een (eventueel) bijgevoegde plattegrond dient uitsluitend als globale indicatie/visualisatie. Hieraan kunnen uitdrukkelijk geen rechten worden ontleend.
Uw makelaar Roy Ubachs nodigt u graag uit voor een bezichtiging.
De maten van alle ruimtes vindt u terug in de plattegronden!
Leuk om te weten:
- Bouwjaar 2007 (conform BAG), eigen perceel: 248m² (conform kadaster);
- Woonoppervlakte ca. 143m², overige inpandige ruimte ca. 22m², (meetrapport aanwezig);
- 12 zonnepanelen (eigendom);
- Airconditioning op zowel de begane grond als de eerste verdieping (beide uit in 2023);
- Twee nieuwe kunststof dakramen (2023);
- Energiezuinig en uitstekend geïsoleerd (HR++ glas, hardhouten kozijnen, deels rolluiken);
- Moderne keuken (2023);
- Stijlvol vernieuwd sanitair (2023);
- Geïsoleerde woning met deels rolluiken op de eerste verdieping;
- Ruime oprit voor meerdere auto’s en inpandige garage met veel bergruimte;
- CV-combiketel (2007, eigendom).
Begane grond:
Bij binnenkomst stap je in de royale hal met garderobenis, moderne meterkast en een in 2023 vernieuwd toilet met hangend closet en een stijlvol fonteintje. Vervolgens kom je in de sfeervolle L-vormige woonkamer met erker, waar licht en ruimte prachtig samenkomen. In 2023 is hier een luxe PVC visgraatvloer gelegd die perfect past bij de klassieke uitstraling van de woning. De airco-unit (2023) zorgt voor een aangenaam binnenklimaat, het hele jaar door.
Aan de achterzijde ligt de halfopen keuken, eveneens volledig vernieuwd in 2023, met een moderne hoekopstelling voorzien van geïntegreerde inductiekookplaat met afzuiging, een combi-oven, koel-vriescombinatie, vaatwasser, spoelbak en bovenkasten. Een stijlvolle en functionele ruimte die koken tot een plezier maakt.
Aangrenzend vind je de praktische wasruimte met witgoedaansluitingen, toegang tot de inpandige garage én een deur naar de tuin. De geheel omsloten achtertuin op het zuiden biedt maximale privacy, uitstekende bezonning en voldoende ruimte voor ontspanning of spelende kinderen. De oprit voor meerdere auto's en de garage met kantelpoort maken het plaatje compleet.
Eerste verdieping:
De overloop biedt toegang tot drie ruime slaapkamers, waarvan de hoofdslaapkamer zich uitstrekt over de gehele voorzijde van de woning. Alle kamers zijn voorzien van een nette, dorpelloos gelegde laminaatvloer. Ook op deze verdieping is in 2023 een airco-unit geplaatst.
De badkamer werd in 2023 compleet vernieuwd en straalt stijl en luxe uit. Hier vind je een ruime inloopdouche, een dubbele wastafel in een modern meubel en een tweede toilet. De combinatie van materialen en kleuren is tijdloos en smaakvol gekozen – een echte meerwaarde!
Tweede verdieping:
Via een vaste trap bereik je de zolderverdieping. Deze is verrassend ruim dankzij de dakkapel op de overloop en biedt de mogelijkheid voor het realiseren van een vierde slaapkamer, werkruimte of hobbykamer. Onder de schuine kap is voldoende bergruimte aanwezig. Op zolder vind je ook de CV-combiketel (eigendom, bouwjaar 2007), de WTW-installatie en de mechanische ventilatiebox.
De waarborgsom/bankgarantie is 10% van de koopsom. De koper dient deze, indien de verkoper en koper dit overeenkomen, binnen 2 weken nadat het financieringsvoorbehoud is verlopen bij de desbetreffende notaris te deponeren.
Ter bescherming van de belangen van zowel koper als ook verkoper wordt uitdrukkelijk gesteld dat een koopovereenkomst met betrekking tot deze onroerende zaak eerst dan tot stand komt nadat koper en verkoper de koopovereenkomst hebben getekend (schriftelijkheids vereiste).
Indien c.v. ketel en/of warmwatervoorziening een huurtoestel is, dient koper de huurovereenkomst over te nemen.
Alle door ons kantoor verstrekte informatie omtrent onroerende zaken, moet beschouwd worden als een uitnodiging om in onderhandeling te treden, en is geheel vrijblijvend! Alle vermelde maten en afmetingen zijn slechts bij benadering. Aan deze beperkte info kunnen geen rechten worden ontleend. Indien in enige documentatie of op enige website informatie staat die niet overeen komt met de werkelijkheid, dan geldt de feitelijke situatie waarin de woning zich bevindt, zoals koper deze tijdens de bezichtiging heeft kunnen waarnemen, en wordt de woning in deze feitelijke situatie/staat verkocht. Een (eventueel) bijgevoegde plattegrond dient uitsluitend als globale indicatie/visualisatie. Hieraan kunnen uitdrukkelijk geen rechten worden ontleend.
Uw makelaar Roy Ubachs nodigt u graag uit voor een bezichtiging.
+ Read more
- Read less
Construction: {{
product.build_year }}
Construction: {{ product.build_period.start }} -
{{ product.build_period.end }}
House
, Single-family house
{{ product.rooms }} rooms
{{ product.bedrooms
}} bedrooms
Living space: {{
product.living_space }} m²
Plot: {{
product.plot_surface }} m²
Energy class: {{ product.energy_class }}
Energy index: {{ product.energy_index }}
Characteristics
{{ field.label }}
{{ field.value }}
+ Read more
{{ field.label }}
{{ field.value }}
- Read less
{{ product.company.name }}
Contact us
{{ product.company.phone.replace('-', ' ').substr(0, 7) }}...
{{ product.company.phone.replace('-', ' ') }}
Share:
Date