Sold under reservation
€ {{ product.price.replace(/\B(?=(\d{4})+(?!\d))/g, ".") }} {{ __(product.price_condition) }}
Photo’s
{{ product.images.length }}
Floorplan
{{ product.plans.length }}
360° photo’s {{ product.panoramas.length }}
Video’s {{ product.videos.length }}
Maps
All media
House for sale Rembrandtstraat 30 B Brunssum
€ {{ product.price.replace(/\B(?=(\d{4})+(?!\d))/g, ".") }} {{ __(product.price_condition) }}
Sold under reservation
Description
MOMENTEEL PLANNEN WIJ GEEN BEZICHTIGINGEN MEER VOOR DEZE WONING
Keurig en in goede staat van onderhoud verkerende halfvrijstaand geschakelde semi-bungalow met een inpandige bereikbare garage, omsloten onderhoudsvriendelijke tuin met overkapt terras en aangrenzende houten berging.
Indeling:
Begane grond:
Hal/entree met granieten plavuizenvloer incl. vloerverwarming, meterkast en toegangsdeur naar de inpandige garage v.v. tegelvloer en elektrisch bedienbare sectionaalpoort.
Woonkamer met granieten plavuizenvloer incl. vloerverwarming en schuifpui naar het terras en de tuin. Half open keuken met moderne keukeninstallatie incl. inbouwapparatuur, te weten, combi-oven, vaatwasser en wasemkap, inductie kookplaat en koelkast.
Vanuit de woonkamer heeft men toegang tot de verdeelhal met het trappenhuis, de geheel betegelde toiletruimte met inbouwreservoir en fonteintje en de geheel betegelde badkamer v.v. ruime douchecabine, badkamermeubel incl. dubbele wasbak.
1 royale slaapkamer v.v. granieten plavuizenvloer en ruime inbouw kledingkast.
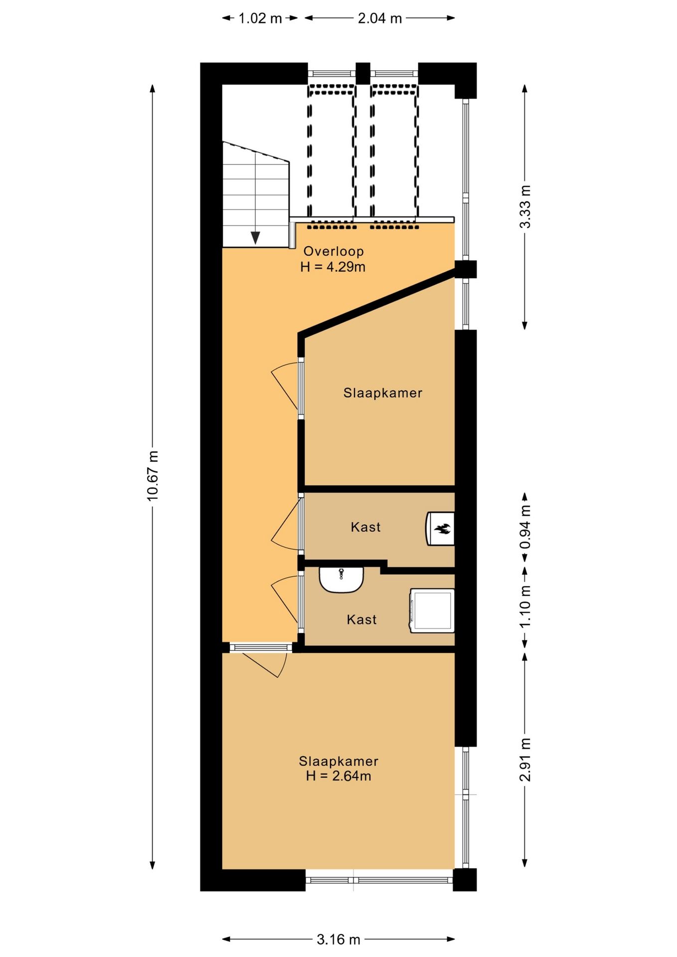
1e verdieping:
Overloop v.v. een laminaatvloer.
Slaapkamer 1 A/Z voorzien van een laminaatvloer (thans in gebruik als kleedruimte).
Slaapkamer 2 V/Z voorzien van een laminaatvloer.
Separate wasruimte v.v. aansluitpunt voor wasmachine en droger alsmede een wasbak en radiator.
C.v.-ruimte met combi-installatie (eigendom)
- Bouwjaar: 2004
- Keurig onderhouden woonhuis en daardoor instapklaar!
- Nagenoeg geheel v.v. kunststof kozijn werk en geheel v.v. dubbele beglazing
- M.u.v. de slaapkamer is de gehele begane grond v.v. vloerverwarming.
- Levensloopbestendig woonhuis
- Energielabel A
- Ruime inpandige garage
- Bruto inhoud woonhuis 471.7M3
- Woonoppervlak: 118M2 (NEN 2580 meetrapport aanwezig)
- Perceel_ 225M2. (conform Kadaster)
- Goed gelegen nabij openbaar vervoer en scholen en het centrum van Brunssum
- Aanvaarding: i.o.
De waarborgsom/bankgarantie is 10% van de koopsom. De koper dient deze, indien de verkoper en koper dit overeenkomen, binnen 2 weken nadat het financieringsvoorbehoud is verlopen bij de desbetreffende notaris te deponeren.
Ter bescherming van de belangen van zowel koper als ook verkoper wordt uitdrukkelijk gesteld dat een koopovereenkomst met betrekking tot deze onroerende zaak eerst dan tot stand komt nadat koper en verkoper de koopovereenkomst hebben getekend (schriftelijkheidsvereiste).
Indien c.v.ketel en/of warmwatervoorziening een huurtoestel is, dient koper de huurovereenkomst over te nemen.
Alle door ons kantoor verstrekte informatie omtrent onroerende zaken, moet beschouwd worden als een uitnodiging om in onderhandeling te treden, en is geheel vrijblijvend! Alle vermelde maten en afmetingen zijn slechts bij benadering. Aan deze beperkte info kunnen geen rechten worden ontleend. Indien in enige documentatie of op enige website informatie staat die niet overeen komt met de werkelijkheid, dan geldt de feitelijke situatie waarin de woning zich bevindt, zoals koper deze tijdens de bezichtiging heeft kunnen waarnemen, en wordt de woning in deze feitelijke situatie/staat verkocht. Een (eventueel) bijgevoegde plattegrond dient uitsluitend als globale indicatie/visualisatie. Hieraan kunnen uitdrukkelijk geen rechten worden ontleend.
Keurig en in goede staat van onderhoud verkerende halfvrijstaand geschakelde semi-bungalow met een inpandige bereikbare garage, omsloten onderhoudsvriendelijke tuin met overkapt terras en aangrenzende houten berging.
Indeling:
Begane grond:
Hal/entree met granieten plavuizenvloer incl. vloerverwarming, meterkast en toegangsdeur naar de inpandige garage v.v. tegelvloer en elektrisch bedienbare sectionaalpoort.
Woonkamer met granieten plavuizenvloer incl. vloerverwarming en schuifpui naar het terras en de tuin. Half open keuken met moderne keukeninstallatie incl. inbouwapparatuur, te weten, combi-oven, vaatwasser en wasemkap, inductie kookplaat en koelkast.
Vanuit de woonkamer heeft men toegang tot de verdeelhal met het trappenhuis, de geheel betegelde toiletruimte met inbouwreservoir en fonteintje en de geheel betegelde badkamer v.v. ruime douchecabine, badkamermeubel incl. dubbele wasbak.
1 royale slaapkamer v.v. granieten plavuizenvloer en ruime inbouw kledingkast.
1e verdieping:
Overloop v.v. een laminaatvloer.
Slaapkamer 1 A/Z voorzien van een laminaatvloer (thans in gebruik als kleedruimte).
Slaapkamer 2 V/Z voorzien van een laminaatvloer.
Separate wasruimte v.v. aansluitpunt voor wasmachine en droger alsmede een wasbak en radiator.
C.v.-ruimte met combi-installatie (eigendom)
- Bouwjaar: 2004
- Keurig onderhouden woonhuis en daardoor instapklaar!
- Nagenoeg geheel v.v. kunststof kozijn werk en geheel v.v. dubbele beglazing
- M.u.v. de slaapkamer is de gehele begane grond v.v. vloerverwarming.
- Levensloopbestendig woonhuis
- Energielabel A
- Ruime inpandige garage
- Bruto inhoud woonhuis 471.7M3
- Woonoppervlak: 118M2 (NEN 2580 meetrapport aanwezig)
- Perceel_ 225M2. (conform Kadaster)
- Goed gelegen nabij openbaar vervoer en scholen en het centrum van Brunssum
- Aanvaarding: i.o.
De waarborgsom/bankgarantie is 10% van de koopsom. De koper dient deze, indien de verkoper en koper dit overeenkomen, binnen 2 weken nadat het financieringsvoorbehoud is verlopen bij de desbetreffende notaris te deponeren.
Ter bescherming van de belangen van zowel koper als ook verkoper wordt uitdrukkelijk gesteld dat een koopovereenkomst met betrekking tot deze onroerende zaak eerst dan tot stand komt nadat koper en verkoper de koopovereenkomst hebben getekend (schriftelijkheidsvereiste).
Indien c.v.ketel en/of warmwatervoorziening een huurtoestel is, dient koper de huurovereenkomst over te nemen.
Alle door ons kantoor verstrekte informatie omtrent onroerende zaken, moet beschouwd worden als een uitnodiging om in onderhandeling te treden, en is geheel vrijblijvend! Alle vermelde maten en afmetingen zijn slechts bij benadering. Aan deze beperkte info kunnen geen rechten worden ontleend. Indien in enige documentatie of op enige website informatie staat die niet overeen komt met de werkelijkheid, dan geldt de feitelijke situatie waarin de woning zich bevindt, zoals koper deze tijdens de bezichtiging heeft kunnen waarnemen, en wordt de woning in deze feitelijke situatie/staat verkocht. Een (eventueel) bijgevoegde plattegrond dient uitsluitend als globale indicatie/visualisatie. Hieraan kunnen uitdrukkelijk geen rechten worden ontleend.
+ Read more
- Read less
Construction: {{
product.build_year }}
Construction: {{ product.build_period.start }} -
{{ product.build_period.end }}
House
, Bungalow
{{ product.rooms }} rooms
{{ product.bedrooms
}} bedrooms
Living space: {{
product.living_space }} m²
Plot: {{
product.plot_surface }} m²
Energy class: {{ product.energy_class }}
Energy index: {{ product.energy_index }}
Characteristics
{{ field.label }}
{{ field.value }}
+ Read more
{{ field.label }}
{{ field.value }}
- Read less
{{ product.company.name }}
Contact us
{{ product.company.phone.replace('-', ' ').substr(0, 7) }}...
{{ product.company.phone.replace('-', ' ') }}
Share:
Date