Available
€ {{ product.price.replace(/\B(?=(\d{4})+(?!\d))/g, ".") }} {{ __(product.price_condition) }}
Photo’s
{{ product.images.length }}
Floorplan
{{ product.plans.length }}
360° photo’s {{ product.panoramas.length }}
Video’s {{ product.videos.length }}
Maps
All media
House for sale Maastrichterstraat 46 Brunssum
€ {{ product.price.replace(/\B(?=(\d{4})+(?!\d))/g, ".") }} {{ __(product.price_condition) }}
Available
Description
Op een aantrekkelijke locatie nabij het centrum van Brunssum bieden wij deze ruime twee-onder-een-kapwoning met aanbouw en garage aan. De woning beschikt onder andere over drie slaapkamers en een stijlvolle, moderne badkamer.
Benieuwd naar deze charmante tweekapper? Neem gerust contact met ons op voor een vrijblijvende bezichtiging. Wij laten je de woning graag zien!
Algemeen:
Bouwjaar: 1950 (BAG)
Gebruiksoppervlakte wonen: 104 m²
Externe bergruimte: 27 m²
Perceeloppervlakte: 351 m²
Aanvaarding: in overleg
Energielabel: D
Voorzieningen:
Elektriciteit: 10 groepen en 2 aardlekschakelaars. Deels vernieuwd.
Kozijnen: aluminium en hout (voordeur)
Isolatie: dubbel glas, dakisolatie hoofddak (unidek), spouwmuurisolatie
Zonnepanelen: 10 (huur, uit 2014)
Installaties:
Centrale verwarming: c.v.-ketel Vaillant Ecotec Plus (huur, uit 2017)
Warm water voorziening: middels c.v.-ketel en boiler (keuken, eigendom)
Indeling:
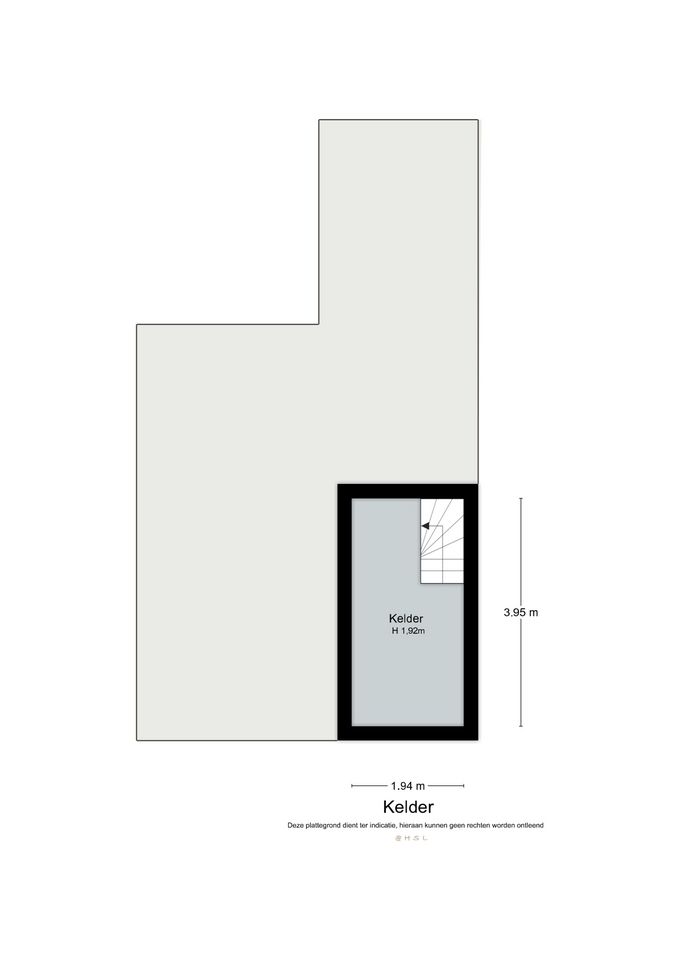
• Kelder
Vanuit de hal is een functionele provisiekelder (ca. 8 m²) bereikbaar, ideaal voor extra opslag.
• Begane grond
Binnenkomst via een nette entree/hal met een stijlvolle plavuizenvloer. Hier bevinden zich de volledig betegelde toiletruimte, met modern zwevende toilet met fontein en verwarming, evenals de meterkast, trapopgang naar de 1e verdieping en toegang tot de woonkamer.
De royale doorzonwoonkamer met klassieke parketvloer en karakteristiek Oud-Hollandse plafond straalt sfeer uit en geniet veel lichtinval. De woonkamer is L-vormig ingedeeld en beschikt over een charmante open haard met schouwpartij. Via de schuifpui aan de achterzijde van de woonkamer heb je direct toegang tot de zonnige achtertuin.
De halfopen keuken is gerealiseerd in de aanbouw en is opgesteld in een functionele U-vorm en voorzien van diverse inbouwapparatuur, waaronder een 5-pits keramische kookplaat, een elektrische oven, een afzuigkap en een koelkast. De keuken is afgewerkt met een grindvloer en biedt tijdens het koken zicht op de achtertuin.
• 1e verdieping
Ruime overloop met toegang tot twee comfortabele slaapkamers, een stijlvolle en grotendeels betegelde badkamer die is uitgerust met een modern ligbad, een royale inloopdouche, een hangend toilet en een strak vormgegeven wastafelmeubel met 2 wasbakken. De slaapkamers zijn ca. 14 m² en 4 m² en zijn beiden gelegen aan de achterzijde van de woning. De ouderslaapkamer beschikt over airconditioning. De voormalige badkamer is omgetoverd tot een praktische witgoedruimte of bergruimte, kortom een ideale ruimte voor extra opslag of wasvoorzieningen in huis.
• 2e verdieping
Ruime, via een vaste trap bereikbare derde slaapkamer, voorzien van een moderne laminaatvloer. Aan de achterzijde bevindt zich een groot kunststof dakkapel, wat zorgt voor veel natuurlijk lichtinval. De kamer beschikt over een praktische, ingebouwde kastenwand met stijlvolle wastafel. Aan de voorzijde is er extra bergruimte onder de schuine daklijn. Tevens is hier de energiezuinige omvormer voor de zonnepanelen geplaatst.
Bijgebouwen:
De ruime garage is direct vanuit de fraaie achtertuin toegankelijk. Je betreedt eerst een handige witgoedruimte, ideaal voor het plaatsen van wasmachine en droger. Vanuit hier kom je in de volledig uitgeruste garage, voorzien van een elektrisch bedienbare sectionaalpoort, verwarming, elektra en een wateraansluiting. De garage is tevens perfect voor gebruik als werkruimte, hobbyruimte of extra bergruimte. Aan de voorzijde van de garage biedt de oprit bovendien parkeergelegenheid op eigen terrein.
Tuin:
Direct achter de woning is een fraai terras gelegen. Aan de achterzijde van de tuin is een overdekt terras gesitueerd. Onderhoudsvriendelijke achtertuin met enkele plantenborders. Tuinberging aan voorzijde van de tuin en toegang tot de garage. Via voorzijde toegankelijk (naast de woning).
Ligging:
Brunssum is een levendige en groene gemeente in Zuid-Limburg, waar het prettig wonen is dankzij de uitstekende voorzieningen, de centrale ligging en de prachtige omgeving. De stad beschikt over diverse winkelcentra, supermarkten, horecagelegenheden en een gezellig centrum met een gevarieerd aanbod aan winkels en boetiekjes. Voor de dagelijkse boodschappen, een dagje shoppen of een hapje eten hoef je de stad niet uit.
Voor gezinnen met kinderen zijn er meerdere basisscholen, middelbare scholen en kinderopvangmogelijkheden in de directe omgeving. Ook op het gebied van sport en recreatie heeft Brunssum veel te bieden, met sportverenigingen, zwembaden, fitnesscentra en uitgebreide wandel- en fietsroutes in de nabijgelegen natuurgebieden zoals de Brunssummerheide, een prachtig heide en bosgebied dat geliefd is bij natuurliefhebbers.
De bereikbaarheid van Brunssum is uitstekend. Via de nabijgelegen uitvalswegen ben je binnen korte tijd in steden als Heerlen, Sittard, Maastricht en zelfs Aken (Duitsland). Ook het openbaar vervoer is goed geregeld, met diverse busverbindingen naar omliggende steden en NS-stations.
Kortom: Brunssum biedt de perfecte mix van rust, ruimte en stedelijke voorzieningen.
Kadastrale gegevens:
Het perceel is kadastraal bekend als gemeente Brunssum, sectie D, nummer 823, ter grootte van 351 m².
Inlichtingen:
Indien u meer wilt weten over het object of een bezichtiging wilt aanvragen, kunt u contact opnemen met ons kantoor te Voerendaal.
Deze informatie is door ons met de nodige zorgvuldigheid samengesteld. Onzerzijds wordt echter geen enkele aansprakelijkheid aanvaard voor enige onvolledigheid, onjuistheid of anderszins, dan wel de gevolgen daarvan.
Alle maten zijn bij benadering weergegeven. Deze aanbieding mag slechts worden gezien als een uitnodiging tot bezichtiging.
Benieuwd naar deze charmante tweekapper? Neem gerust contact met ons op voor een vrijblijvende bezichtiging. Wij laten je de woning graag zien!
Algemeen:
Bouwjaar: 1950 (BAG)
Gebruiksoppervlakte wonen: 104 m²
Externe bergruimte: 27 m²
Perceeloppervlakte: 351 m²
Aanvaarding: in overleg
Energielabel: D
Voorzieningen:
Elektriciteit: 10 groepen en 2 aardlekschakelaars. Deels vernieuwd.
Kozijnen: aluminium en hout (voordeur)
Isolatie: dubbel glas, dakisolatie hoofddak (unidek), spouwmuurisolatie
Zonnepanelen: 10 (huur, uit 2014)
Installaties:
Centrale verwarming: c.v.-ketel Vaillant Ecotec Plus (huur, uit 2017)
Warm water voorziening: middels c.v.-ketel en boiler (keuken, eigendom)
Indeling:
• Kelder
Vanuit de hal is een functionele provisiekelder (ca. 8 m²) bereikbaar, ideaal voor extra opslag.
• Begane grond
Binnenkomst via een nette entree/hal met een stijlvolle plavuizenvloer. Hier bevinden zich de volledig betegelde toiletruimte, met modern zwevende toilet met fontein en verwarming, evenals de meterkast, trapopgang naar de 1e verdieping en toegang tot de woonkamer.
De royale doorzonwoonkamer met klassieke parketvloer en karakteristiek Oud-Hollandse plafond straalt sfeer uit en geniet veel lichtinval. De woonkamer is L-vormig ingedeeld en beschikt over een charmante open haard met schouwpartij. Via de schuifpui aan de achterzijde van de woonkamer heb je direct toegang tot de zonnige achtertuin.
De halfopen keuken is gerealiseerd in de aanbouw en is opgesteld in een functionele U-vorm en voorzien van diverse inbouwapparatuur, waaronder een 5-pits keramische kookplaat, een elektrische oven, een afzuigkap en een koelkast. De keuken is afgewerkt met een grindvloer en biedt tijdens het koken zicht op de achtertuin.
• 1e verdieping
Ruime overloop met toegang tot twee comfortabele slaapkamers, een stijlvolle en grotendeels betegelde badkamer die is uitgerust met een modern ligbad, een royale inloopdouche, een hangend toilet en een strak vormgegeven wastafelmeubel met 2 wasbakken. De slaapkamers zijn ca. 14 m² en 4 m² en zijn beiden gelegen aan de achterzijde van de woning. De ouderslaapkamer beschikt over airconditioning. De voormalige badkamer is omgetoverd tot een praktische witgoedruimte of bergruimte, kortom een ideale ruimte voor extra opslag of wasvoorzieningen in huis.
• 2e verdieping
Ruime, via een vaste trap bereikbare derde slaapkamer, voorzien van een moderne laminaatvloer. Aan de achterzijde bevindt zich een groot kunststof dakkapel, wat zorgt voor veel natuurlijk lichtinval. De kamer beschikt over een praktische, ingebouwde kastenwand met stijlvolle wastafel. Aan de voorzijde is er extra bergruimte onder de schuine daklijn. Tevens is hier de energiezuinige omvormer voor de zonnepanelen geplaatst.
Bijgebouwen:
De ruime garage is direct vanuit de fraaie achtertuin toegankelijk. Je betreedt eerst een handige witgoedruimte, ideaal voor het plaatsen van wasmachine en droger. Vanuit hier kom je in de volledig uitgeruste garage, voorzien van een elektrisch bedienbare sectionaalpoort, verwarming, elektra en een wateraansluiting. De garage is tevens perfect voor gebruik als werkruimte, hobbyruimte of extra bergruimte. Aan de voorzijde van de garage biedt de oprit bovendien parkeergelegenheid op eigen terrein.
Tuin:
Direct achter de woning is een fraai terras gelegen. Aan de achterzijde van de tuin is een overdekt terras gesitueerd. Onderhoudsvriendelijke achtertuin met enkele plantenborders. Tuinberging aan voorzijde van de tuin en toegang tot de garage. Via voorzijde toegankelijk (naast de woning).
Ligging:
Brunssum is een levendige en groene gemeente in Zuid-Limburg, waar het prettig wonen is dankzij de uitstekende voorzieningen, de centrale ligging en de prachtige omgeving. De stad beschikt over diverse winkelcentra, supermarkten, horecagelegenheden en een gezellig centrum met een gevarieerd aanbod aan winkels en boetiekjes. Voor de dagelijkse boodschappen, een dagje shoppen of een hapje eten hoef je de stad niet uit.
Voor gezinnen met kinderen zijn er meerdere basisscholen, middelbare scholen en kinderopvangmogelijkheden in de directe omgeving. Ook op het gebied van sport en recreatie heeft Brunssum veel te bieden, met sportverenigingen, zwembaden, fitnesscentra en uitgebreide wandel- en fietsroutes in de nabijgelegen natuurgebieden zoals de Brunssummerheide, een prachtig heide en bosgebied dat geliefd is bij natuurliefhebbers.
De bereikbaarheid van Brunssum is uitstekend. Via de nabijgelegen uitvalswegen ben je binnen korte tijd in steden als Heerlen, Sittard, Maastricht en zelfs Aken (Duitsland). Ook het openbaar vervoer is goed geregeld, met diverse busverbindingen naar omliggende steden en NS-stations.
Kortom: Brunssum biedt de perfecte mix van rust, ruimte en stedelijke voorzieningen.
Kadastrale gegevens:
Het perceel is kadastraal bekend als gemeente Brunssum, sectie D, nummer 823, ter grootte van 351 m².
Inlichtingen:
Indien u meer wilt weten over het object of een bezichtiging wilt aanvragen, kunt u contact opnemen met ons kantoor te Voerendaal.
Deze informatie is door ons met de nodige zorgvuldigheid samengesteld. Onzerzijds wordt echter geen enkele aansprakelijkheid aanvaard voor enige onvolledigheid, onjuistheid of anderszins, dan wel de gevolgen daarvan.
Alle maten zijn bij benadering weergegeven. Deze aanbieding mag slechts worden gezien als een uitnodiging tot bezichtiging.
+ Read more
- Read less
Construction: {{
product.build_year }}
Construction: {{ product.build_period.start }} -
{{ product.build_period.end }}
House
, Single-family house
{{ product.rooms }} rooms
{{ product.bedrooms
}} bedrooms
Living space: {{
product.living_space }} m²
Plot: {{
product.plot_surface }} m²
Energy class: {{ product.energy_class }}
Energy index: {{ product.energy_index }}
Characteristics
{{ field.label }}
{{ field.value }}
+ Read more
{{ field.label }}
{{ field.value }}
- Read less
{{ product.company.name }}
Contact us
{{ product.company.phone.replace('-', ' ').substr(0, 7) }}...
{{ product.company.phone.replace('-', ' ') }}
Share:
Date