Available
€ {{ product.price.replace(/\B(?=(\d{4})+(?!\d))/g, ".") }} {{ __(product.price_condition) }}
Photo’s
{{ product.images.length }}
Floorplan
{{ product.plans.length }}
360° photo’s {{ product.panoramas.length }}
Video’s {{ product.videos.length }}
Maps
All media
House for sale Maastrichterstraat 130 B Brunssum
€ {{ product.price.replace(/\B(?=(\d{4})+(?!\d))/g, ".") }} {{ __(product.price_condition) }}
Available
Description
Op goede locatie gelegen keurig half vrijstaand geschakeld woonhuis met serre, ruime garage en tuin met vijverpartij en een achterom.
Indeling:
Begane grond:
Hal/entree v.v. plavuizenvloer, betegelde toiletruimte met fonteintje en Meterkast.
Doorzon woonkamer v.v. laminaatvloer, trapberging, airconditioning en knusse pellet kachel, open keuken met modern keukenblok inclusief apparatuur, te weten, combi-oven, inductie kookplaat, vaatwasser en wasemkap.
Fijne serre v.v. laminaatvloer, aluminium schuifpui en pellet kachel. Via de serre is de royale garage bereikbaar v.v. elektrisch bedienbare kantelpoort.
Geheel beklinkerde tuin met (KOI) vijver, houten tuinberging en een achterom.
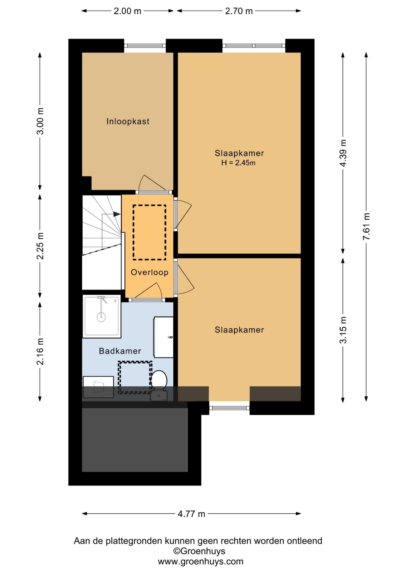
1e verdieping:
De gehele verdieping is voorzien van h/h houten kozijnwerk met dubbele beglazing voorzijde en enkel glas aan de achterzijde.
Overloop v.v. laminaatvloer.
Slaapkamer 1 v.v. laminaatvloer en rolluiken
Slaapkamer 2 v.v. laminaatvloer en rolluiken.
Slaapkamer 3 v.v. laminaatvloer en rolluiken.
Geheel betegelde badkamer v.v. douchecabine, vaste wastafel, 2e toilet en aansluitpunt voor een wasmachine
2e verdieping :
Via vlizotrap te bereiken geïsoleerde bergzolder met standplaats c.v.-combi (eigendom, 2011 Vaillant HR combi)
- Bouwjaar: 1986
- Woonopp: ca. 90m2
- Bruto inhoud woonhuis: 477m3
- Dakisolatie
- Gedeeltelijk v.v. dubbel glas in houten kozijnwerk.
- C.v-combi installatie (eigendom, 2011, Vaillant HR combi)
- Airconditioning (2023)
- Zonnepanelen (eigendom, 13 stuks)
- Energienota €60,- p/mnd.!
- Perceel: 164m2
Ter bescherming van de belangen van zowel koper als verkoper, wordt uitdrukkelijk gesteld dat een koopovereenkomst met betrekking tot deze onroerende zaak eerst dan tot stand komt nadat koper en verkoper de koopovereenkomst hebben getekend (“schriftelijkheidsvereiste”).
Indien er in de woning huurtoestellen aanwezig zijn zoals CV-ketel, boiler, zonnepanelen, mechanische ventilatie etc. dan dienen deze door de koper te worden overgenomen.
De termijn die wordt opgenomen voor eventuele (overeengekomen) ontbindende voorwaarden (bv. Financiering) is in de regel 4 tot 6 weken na het sluiten van de mondelinge wilsovereenkomst.
De waarborgsom/bankgarantie is 10% van de koopsom. De koper dient deze 3 dagen ná het vervallen van de ontbindende voorwaarden bij de desbetreffende notaris te deponeren.
Koper is te allen tijde gerechtigd voor eigen rekening een bouwkundige keuring te (laten) verrichten dan wel andere adviseurs te raadplegen teneinde een goed inzicht te verkrijgen over de staat van onderhoud.
Deze informatie is door ons, Zuyderhuys Makelaardij met de nodige zorgvuldigheid samengesteld. Onzerzijds wordt echter geen enkele aansprakelijkheid aanvaard voor enige onvolledigheid, onjuist of anderszins, dan wel de gevolgen daarvan. Alle opgegeven maten en oppervlakten zijn indicatief.
Indeling:
Begane grond:
Hal/entree v.v. plavuizenvloer, betegelde toiletruimte met fonteintje en Meterkast.
Doorzon woonkamer v.v. laminaatvloer, trapberging, airconditioning en knusse pellet kachel, open keuken met modern keukenblok inclusief apparatuur, te weten, combi-oven, inductie kookplaat, vaatwasser en wasemkap.
Fijne serre v.v. laminaatvloer, aluminium schuifpui en pellet kachel. Via de serre is de royale garage bereikbaar v.v. elektrisch bedienbare kantelpoort.
Geheel beklinkerde tuin met (KOI) vijver, houten tuinberging en een achterom.
1e verdieping:
De gehele verdieping is voorzien van h/h houten kozijnwerk met dubbele beglazing voorzijde en enkel glas aan de achterzijde.
Overloop v.v. laminaatvloer.
Slaapkamer 1 v.v. laminaatvloer en rolluiken
Slaapkamer 2 v.v. laminaatvloer en rolluiken.
Slaapkamer 3 v.v. laminaatvloer en rolluiken.
Geheel betegelde badkamer v.v. douchecabine, vaste wastafel, 2e toilet en aansluitpunt voor een wasmachine
2e verdieping :
Via vlizotrap te bereiken geïsoleerde bergzolder met standplaats c.v.-combi (eigendom, 2011 Vaillant HR combi)
- Bouwjaar: 1986
- Woonopp: ca. 90m2
- Bruto inhoud woonhuis: 477m3
- Dakisolatie
- Gedeeltelijk v.v. dubbel glas in houten kozijnwerk.
- C.v-combi installatie (eigendom, 2011, Vaillant HR combi)
- Airconditioning (2023)
- Zonnepanelen (eigendom, 13 stuks)
- Energienota €60,- p/mnd.!
- Perceel: 164m2
Ter bescherming van de belangen van zowel koper als verkoper, wordt uitdrukkelijk gesteld dat een koopovereenkomst met betrekking tot deze onroerende zaak eerst dan tot stand komt nadat koper en verkoper de koopovereenkomst hebben getekend (“schriftelijkheidsvereiste”).
Indien er in de woning huurtoestellen aanwezig zijn zoals CV-ketel, boiler, zonnepanelen, mechanische ventilatie etc. dan dienen deze door de koper te worden overgenomen.
De termijn die wordt opgenomen voor eventuele (overeengekomen) ontbindende voorwaarden (bv. Financiering) is in de regel 4 tot 6 weken na het sluiten van de mondelinge wilsovereenkomst.
De waarborgsom/bankgarantie is 10% van de koopsom. De koper dient deze 3 dagen ná het vervallen van de ontbindende voorwaarden bij de desbetreffende notaris te deponeren.
Koper is te allen tijde gerechtigd voor eigen rekening een bouwkundige keuring te (laten) verrichten dan wel andere adviseurs te raadplegen teneinde een goed inzicht te verkrijgen over de staat van onderhoud.
Deze informatie is door ons, Zuyderhuys Makelaardij met de nodige zorgvuldigheid samengesteld. Onzerzijds wordt echter geen enkele aansprakelijkheid aanvaard voor enige onvolledigheid, onjuist of anderszins, dan wel de gevolgen daarvan. Alle opgegeven maten en oppervlakten zijn indicatief.
+ Read more
- Read less
Construction: {{
product.build_year }}
Construction: {{ product.build_period.start }} -
{{ product.build_period.end }}
House
, Single-family house
{{ product.rooms }} rooms
{{ product.bedrooms
}} bedrooms
Living space: {{
product.living_space }} m²
Plot: {{
product.plot_surface }} m²
Energy class: {{ product.energy_class }}
Energy index: {{ product.energy_index }}
Characteristics
{{ field.label }}
{{ field.value }}
+ Read more
{{ field.label }}
{{ field.value }}
- Read less
{{ product.company.name }}
Contact us
{{ product.company.phone.replace('-', ' ').substr(0, 7) }}...
{{ product.company.phone.replace('-', ' ') }}
Share:
Date