Sold under reservation
€ {{ product.price.replace(/\B(?=(\d{4})+(?!\d))/g, ".") }} {{ __(product.price_condition) }}
Photo’s
{{ product.images.length }}
Floorplan
{{ product.plans.length }}
360° photo’s {{ product.panoramas.length }}
Video’s {{ product.videos.length }}
Maps
All media
House for sale Wieënweg 13 Brunssum
€ {{ product.price.replace(/\B(?=(\d{4})+(?!\d))/g, ".") }} {{ __(product.price_condition) }}
Sold under reservation
Description
WELKOM BIJ WIEENWEG 13 IN BRUNSSUM!
Aan de Wieënweg 13 in Brunssum ligt dit verrassend ruime, gerenoveerde en energiezuinige halfvrijstaande woonhuis, gelegen in de populaire en kindvriendelijke woonomgeving van de wijk Langeberg. Een ideale gezinswoning waar comfort, ruimte en duurzaamheid samenkomen.
De woning beschikt over een moderne en lichte doorzonwoonkamer met aan de voorzijde een sfeervolle living/lounge, voorzien van audio-/visuele aansluitingen.
Centraal in de woning bevindt zich de eetkamer met airconditioning en de opgang naar de verdieping, wat zorgt voor een prettige en logische indeling.
In de achterbouw is de gesloten keukenruimte gesitueerd, met veel lichtinval en een eigentijdse inbouwkeuken voorzien van diverse apparatuur. Via de dubbele openslaande tuindeuren staat u in directe verbinding met het overdekte terras, ideaal voor binnen- en buitenleven in elk seizoen.
Op de begane grond is tevens een apart, geheel betegeld gastentoilet aanwezig met zwevend wandcloset en fonteintje. De strak afgewerkte badkamer is modern uitgevoerd en voorzien van een inloop-regendouche, vaste wastafel in badkamermeubel, mechanische ventilatie en een design radiator.
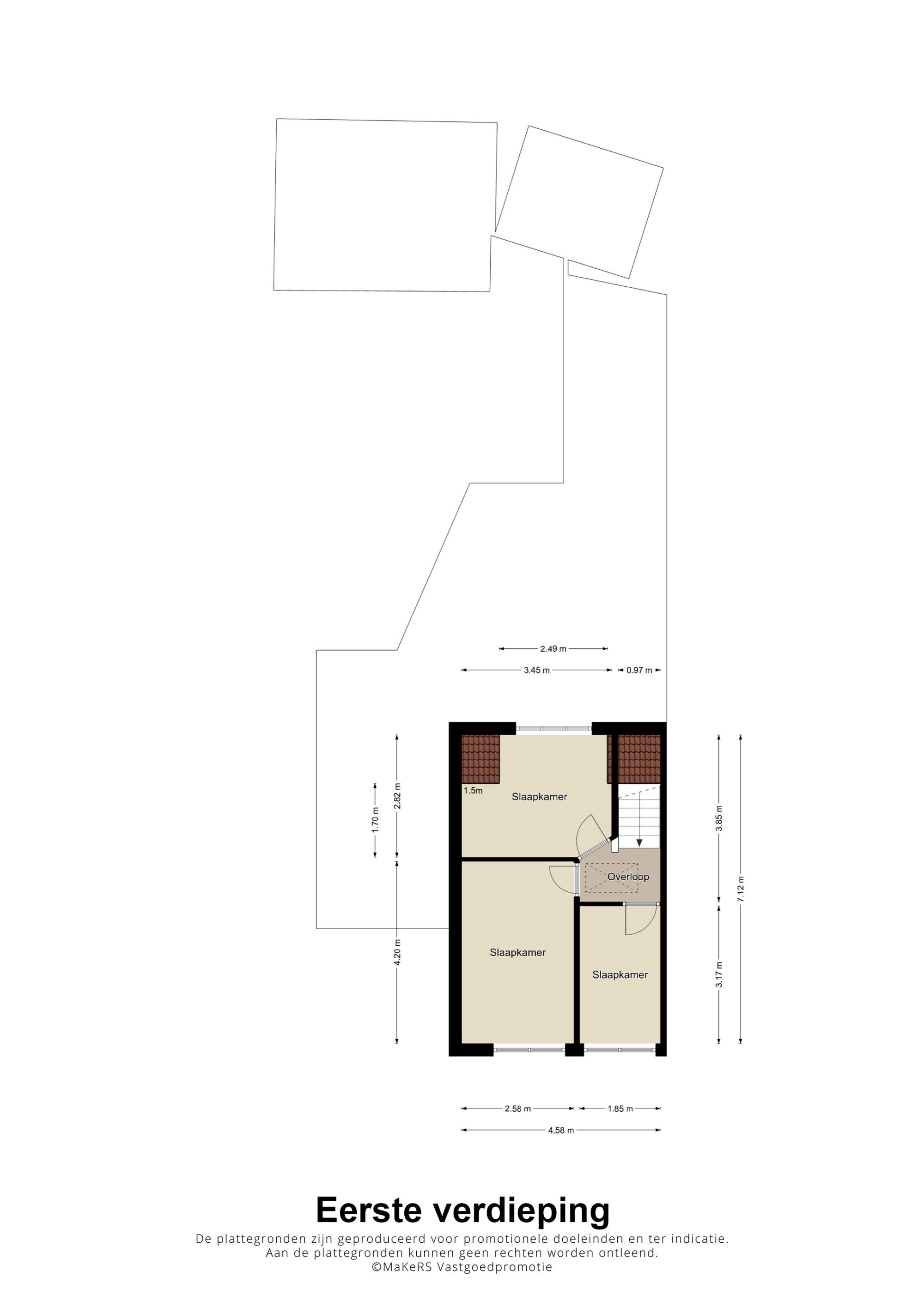
Op de verdieping bevinden zich drie slaapkamers en op de overloop is een airconditioning geplaatst voor extra comfort.
Via een vlizotrap is de bergzolder bereikbaar met extra opslagruimte onder de geïsoleerde dakconstructie.
Daarnaast is er een provisiekelder met witgoedaansluitingen en de omvormer van de zonnepanelen.
De geheel omsloten achtertuin is een echte plus: een ruim terras met overkapping voorzien van lichtkoepel en verandazeilen, borders met aanplanting, een stenen berging met standplaats voor de cv-combiketel, een extra berging én een houten prieel met gezellige zithoek.
De aangebouwde garage is uitgerust met een elektrisch bedienbare sectionaalpoort en biedt extra mogelijkheden, waaronder het plaatsen van witgoed.
Op de oprit is parkeergelegenheid voor meerdere voertuigen op eigen terrein. De achtertuin is bovendien bereikbaar via een gemeenschappelijk zijpad.
De woning is goed geïsoleerd met dak- en spouwmuurisolatie, kunststof kozijnen met dubbele beglazing en grotendeels rolluiken. Verder beschikt de woning over een Remeha Calenta cv-combiketel, twee airconditionings, 14 zonnepanelen en een energielabel B.
De ligging is ideaal: een basisschool met brede maatschappelijke voorziening en kinderopvang bevinden zich in de directe omgeving. Supermarkt, restaurants, sportfaciliteiten en het prachtige wandelgebied van de Brunssumer Heide liggen op loopafstand.
Daarnaast is er een goede bereikbaarheid via openbaar vervoer, uitvalswegen en de Parkstadring N300 richting Maastricht, Aken, Eindhoven en het Duitse achterland.
Een instapklare, complete gezinswoning op een uitstekende locatie – absoluut een bezichtiging waard!
INDELING:
KELDER:
Een voorraad-/provisiekelder voor opslag, waar geplaatst de witgoedaansluitingen voor wasmachine/-droger en de omvormer voor de zonnepanelen.
BEGANE GROND:
Hal / Entree toegang tot de woonkamer en de kelder. Meterkast voorzien van 7 groepsinstallatie / 2x aardlekschakelaar / aparte groep voor de zonnepanelen en digitale meters.
Ruime lichte woonkamer met voorgelegen living/lounge voorzien van audio-/visuele aansluitingen, afgewerkt met een laminaatvloer. Centraal geplaatste eetkamer met airconditioning en opgang naar de verdieping.
In achterbouw geplaatste keukenruimte, met plavuizenvloer en veel lichtinval, voorzien van een eigentijdse inbouwkeuken met apparatuur, te weten: 4 zones inductie kookplaat / RVS-wandschouw afzuigkap / elektrische oven / lady-vaatwasmachine / wasbak met close-in boiler / koelkast / veel bergruimte en dubbele openslaande tuideuren naar het overdekte terras.
Geheel betegeld gastentoilet met een zwevend wandcloset met fonteintje.
Achtergelegen strak afgewerkte badkamer voorzien van een inloopregendouche / vaste wastafel in een badkamermeubel / mechanische ventilatie en een design radiator.
Keurig verzorgde geheel omsloten achtertuin met terras voorzien van een overkapping met lichtkoepel en afsluitbaar middels verandazeilen en borders met aanplanting. Geheel beklinkerde binnenplaats met toegang tot het achtergelegen houten prieel, een tweetal bergingen en de garage. In de stenen berging is de standplaats voor voor de Remeha Calenta CV-Combiketel ( Bouwjaar 2011 / Eigendom), de ander is in gebruik als hobby-/opslagruimte.
Aangebouwde stenen garage voorzien van lichtkoepel, een elektrisch bedienbare sectionaal poort, verwarming en mogelijkheid tot het plaatsen van de witgoedvoorzieningen.
De ruime oprit biedt parkeergelegenheid aan meerdere voertuigen op eigen terrein. Naastgelegen gemeenschappelijk achterpad biedt toegang tot de achtertuin.
VERDIEPING:
Overloop, waar geplaatst een airconditioningsinstallatie, geeft toegang tot de slaapvertrekken.
Aan de rechter voorzijde gelegen slaapkamer doet dienst als logeerkamer.
Linksvoor gesitueerde hoofdslaapkamer.
De slaapkamer aan de achterzijde is voorzien van een dakkapel en is eveneens in gebruik als logeerkamer.
ZOLDER:
Zolderruimte bereikbaar middels een vlizotrap met veel bergruimte onder de geïsoleerde dakconstructie.
BIJZONDERHEDEN:
* GELEGEN IN GELIEFDE EN KINDVRIENDELIJKE WOONOMGEVING, INSTAPKLAAR!
* LICHTE WOONKAMER MET LIVING/LOUNGE AAN DE VOORZIJDE
* CENTRAAL GEPLAATSTE EETKAMER MET ARICO
* KEUKENRUIMTE VOORZIEN VAN EEN EIGENTIJDSE INBOUWKEUKEN MET APARATUUR
* SEPARAAT GEHEEL BETEGELD GASTENTOILET MET ZWEVEND WANDCLOSET EN FONTEINTJE
* BADKAMER MET INLOOPREGENDOUCHE / VASTE WASTAFEL IN EEN MEUBEL EN DESIGN RADIATOR
* OVERLOOP OP DE VERDIEPING MET AIRCONDITIONING
* DRIE SLAAPKAMERS
* ZOLDER MET BERGRUIMTE ONDER DE GEISOLEERDE DAKCONSTRUCTIE
* PROVISIEKELDER VOOR OPSLAG
* SPOUWMUUR- EN DAKISOLATIE
* KUNSTSTOF KOZIJNEN MET DUBBELE BEGLAZING
* GROTENDEELS ROLLUIKEN
* REMEHA CALENTA CV-COMBIKETEL (BOUWJAAR 2011 / EIGENDOM)
* 14 ZONNEPANELEN
* ONDERHOUDSVRIENDELIJKE ACHTERTUIN MET RUIM OVERDEKT TERRAS EN BORDERS MET AANPLANTING
* ACHTERGELEGEN HOUTEN PRIEEL
* 2 BERGINGEN BIEDEN EXTRA HOBBY- EN OPSLAGMOGELIJKHEDEN
* AANGEBOUWDE STENEN GARAGE MET ELEKTRUISCHE SECTIONAAL POORT
* OP DE OPRIT IN PARKEERGELEGENHEID VOOR MEERDERE VOERTUIGEN OP EIGEN TERREIN
* GEMEENSCHAPPELIJK ZIJPAD MET TOEGANG TOT DE ACHTERTUIN
* ENERGIELABEL "B"
VERRASSEND RUIM GERENOVEERD EN GOED ONDERHOUDEN HALFVRIJSTAAND WOONHUIS. VOORZIEN VAN SPOUWMUUR- EN DAKISOLATIE. KUNSTSTOF KOZIJNEN MET DUBBELE BEGLAZING EN GROTENDEELS ROLLUIKEN. REMEHA CALENTA CV-COMBIKETEL (BOUWJAAR 2011 / EIGENDOM). 2X AIRCONDITIONING EN 14 ZONNEPANELEN. 3 SLAAPKAMERS OP DE VERDIEPING EN EEN VOORRAADKELDER. ONDERHOUDSVRIENDELIJKE ACHTERTUIN MET RUIM OVERDEKT TERRAS, EEN PRIEEL EN TWEETAL BERGINGEN. GARAGE MET ELEKTRSCHE SECTIONAAL POORT BEREIKBAAR VIA OPRIT EN NAASTGELEGEN GEMEENSCHAPPELIJK ZIJPAD.
HET GEHEEL IS GELEGEN OP EEN POPULAIRE WOONLOCATIE IN DE WOONWIJK LANGEBERG. OP LOOPAFSTAND VAN EEN PARK, RESTAURANTS, DIVERSE SPORTFACILITEITEN EN SUPERMARKT. IN DIRECTE NABIJHEID VAN EEN BASISSCHOOL MET KINDEROPVANG. DE BRUSSUMER HEIDE IS OP ENKELE WANDELMINUTEN BEREIKBAAR.
GOEDE BEREIKBAARHEID MIDDELS OPENBAAR VERVOER, UITVALSWEGEN EN AANSLUITING OP DE PARKSTADRING (N300), RICHTING MAASTRICHT, AKEN EN EINDHOVEN, ALSMEDE HET DUITSE ACHTERLAND!
Ter bescherming van de belangen van zowel koper als ook verkoper wordt uitdrukkelijk gesteld dat een koopovereenkomst met betrekking tot deze onroerende zaak eerst dan tot stand komt nadat koper en verkoper de koopovereenkomst hebben ondertekend (schriftelijkheidsvereiste).
De waarborgsom/bankgarantie is 10% van de koopsom. De koper dient deze binnen 2 weken nadat het financieringsvoorbehoud is verlopen bij de desbetreffende notaris te deponeren.
Indien cv-ketel en/of warmwatervoorziening een huurtoestel is, dient koper de huurovereenkomst over te nemen. Dit geldt ook op het moment dat de installatie voor de zonnepanelen op huurbasis aanwezig is.
Alle door ons kantoor verstrekte informatie omtrent onroerende zaken, moet beschouwd worden als een uitnodiging om in onderhandeling te treden en is geheel vrijblijvend! Alle vermelde maten en afmetingen zijn slechts bij benadering. Een (eventueel) bijgevoegde plattegrond dient uitsluitend als globale indicatie/visualisatie. Aan deze beperkte informatie kunnen geen rechten worden ontleend.
Indien in enige documentatie of op enige website informatie staat die niet overeen komt met de werkelijkheid, dan geldt de feitelijke situatie waarin de woning zich bevindt, zoals koper deze tijdens de bezichtiging heeft kunnen waarnemen, en wordt de woning in deze feitelijke situatie/staat verkocht.
Aan de Wieënweg 13 in Brunssum ligt dit verrassend ruime, gerenoveerde en energiezuinige halfvrijstaande woonhuis, gelegen in de populaire en kindvriendelijke woonomgeving van de wijk Langeberg. Een ideale gezinswoning waar comfort, ruimte en duurzaamheid samenkomen.
De woning beschikt over een moderne en lichte doorzonwoonkamer met aan de voorzijde een sfeervolle living/lounge, voorzien van audio-/visuele aansluitingen.
Centraal in de woning bevindt zich de eetkamer met airconditioning en de opgang naar de verdieping, wat zorgt voor een prettige en logische indeling.
In de achterbouw is de gesloten keukenruimte gesitueerd, met veel lichtinval en een eigentijdse inbouwkeuken voorzien van diverse apparatuur. Via de dubbele openslaande tuindeuren staat u in directe verbinding met het overdekte terras, ideaal voor binnen- en buitenleven in elk seizoen.
Op de begane grond is tevens een apart, geheel betegeld gastentoilet aanwezig met zwevend wandcloset en fonteintje. De strak afgewerkte badkamer is modern uitgevoerd en voorzien van een inloop-regendouche, vaste wastafel in badkamermeubel, mechanische ventilatie en een design radiator.
Op de verdieping bevinden zich drie slaapkamers en op de overloop is een airconditioning geplaatst voor extra comfort.
Via een vlizotrap is de bergzolder bereikbaar met extra opslagruimte onder de geïsoleerde dakconstructie.
Daarnaast is er een provisiekelder met witgoedaansluitingen en de omvormer van de zonnepanelen.
De geheel omsloten achtertuin is een echte plus: een ruim terras met overkapping voorzien van lichtkoepel en verandazeilen, borders met aanplanting, een stenen berging met standplaats voor de cv-combiketel, een extra berging én een houten prieel met gezellige zithoek.
De aangebouwde garage is uitgerust met een elektrisch bedienbare sectionaalpoort en biedt extra mogelijkheden, waaronder het plaatsen van witgoed.
Op de oprit is parkeergelegenheid voor meerdere voertuigen op eigen terrein. De achtertuin is bovendien bereikbaar via een gemeenschappelijk zijpad.
De woning is goed geïsoleerd met dak- en spouwmuurisolatie, kunststof kozijnen met dubbele beglazing en grotendeels rolluiken. Verder beschikt de woning over een Remeha Calenta cv-combiketel, twee airconditionings, 14 zonnepanelen en een energielabel B.
De ligging is ideaal: een basisschool met brede maatschappelijke voorziening en kinderopvang bevinden zich in de directe omgeving. Supermarkt, restaurants, sportfaciliteiten en het prachtige wandelgebied van de Brunssumer Heide liggen op loopafstand.
Daarnaast is er een goede bereikbaarheid via openbaar vervoer, uitvalswegen en de Parkstadring N300 richting Maastricht, Aken, Eindhoven en het Duitse achterland.
Een instapklare, complete gezinswoning op een uitstekende locatie – absoluut een bezichtiging waard!
INDELING:
KELDER:
Een voorraad-/provisiekelder voor opslag, waar geplaatst de witgoedaansluitingen voor wasmachine/-droger en de omvormer voor de zonnepanelen.
BEGANE GROND:
Hal / Entree toegang tot de woonkamer en de kelder. Meterkast voorzien van 7 groepsinstallatie / 2x aardlekschakelaar / aparte groep voor de zonnepanelen en digitale meters.
Ruime lichte woonkamer met voorgelegen living/lounge voorzien van audio-/visuele aansluitingen, afgewerkt met een laminaatvloer. Centraal geplaatste eetkamer met airconditioning en opgang naar de verdieping.
In achterbouw geplaatste keukenruimte, met plavuizenvloer en veel lichtinval, voorzien van een eigentijdse inbouwkeuken met apparatuur, te weten: 4 zones inductie kookplaat / RVS-wandschouw afzuigkap / elektrische oven / lady-vaatwasmachine / wasbak met close-in boiler / koelkast / veel bergruimte en dubbele openslaande tuideuren naar het overdekte terras.
Geheel betegeld gastentoilet met een zwevend wandcloset met fonteintje.
Achtergelegen strak afgewerkte badkamer voorzien van een inloopregendouche / vaste wastafel in een badkamermeubel / mechanische ventilatie en een design radiator.
Keurig verzorgde geheel omsloten achtertuin met terras voorzien van een overkapping met lichtkoepel en afsluitbaar middels verandazeilen en borders met aanplanting. Geheel beklinkerde binnenplaats met toegang tot het achtergelegen houten prieel, een tweetal bergingen en de garage. In de stenen berging is de standplaats voor voor de Remeha Calenta CV-Combiketel ( Bouwjaar 2011 / Eigendom), de ander is in gebruik als hobby-/opslagruimte.
Aangebouwde stenen garage voorzien van lichtkoepel, een elektrisch bedienbare sectionaal poort, verwarming en mogelijkheid tot het plaatsen van de witgoedvoorzieningen.
De ruime oprit biedt parkeergelegenheid aan meerdere voertuigen op eigen terrein. Naastgelegen gemeenschappelijk achterpad biedt toegang tot de achtertuin.
VERDIEPING:
Overloop, waar geplaatst een airconditioningsinstallatie, geeft toegang tot de slaapvertrekken.
Aan de rechter voorzijde gelegen slaapkamer doet dienst als logeerkamer.
Linksvoor gesitueerde hoofdslaapkamer.
De slaapkamer aan de achterzijde is voorzien van een dakkapel en is eveneens in gebruik als logeerkamer.
ZOLDER:
Zolderruimte bereikbaar middels een vlizotrap met veel bergruimte onder de geïsoleerde dakconstructie.
BIJZONDERHEDEN:
* GELEGEN IN GELIEFDE EN KINDVRIENDELIJKE WOONOMGEVING, INSTAPKLAAR!
* LICHTE WOONKAMER MET LIVING/LOUNGE AAN DE VOORZIJDE
* CENTRAAL GEPLAATSTE EETKAMER MET ARICO
* KEUKENRUIMTE VOORZIEN VAN EEN EIGENTIJDSE INBOUWKEUKEN MET APARATUUR
* SEPARAAT GEHEEL BETEGELD GASTENTOILET MET ZWEVEND WANDCLOSET EN FONTEINTJE
* BADKAMER MET INLOOPREGENDOUCHE / VASTE WASTAFEL IN EEN MEUBEL EN DESIGN RADIATOR
* OVERLOOP OP DE VERDIEPING MET AIRCONDITIONING
* DRIE SLAAPKAMERS
* ZOLDER MET BERGRUIMTE ONDER DE GEISOLEERDE DAKCONSTRUCTIE
* PROVISIEKELDER VOOR OPSLAG
* SPOUWMUUR- EN DAKISOLATIE
* KUNSTSTOF KOZIJNEN MET DUBBELE BEGLAZING
* GROTENDEELS ROLLUIKEN
* REMEHA CALENTA CV-COMBIKETEL (BOUWJAAR 2011 / EIGENDOM)
* 14 ZONNEPANELEN
* ONDERHOUDSVRIENDELIJKE ACHTERTUIN MET RUIM OVERDEKT TERRAS EN BORDERS MET AANPLANTING
* ACHTERGELEGEN HOUTEN PRIEEL
* 2 BERGINGEN BIEDEN EXTRA HOBBY- EN OPSLAGMOGELIJKHEDEN
* AANGEBOUWDE STENEN GARAGE MET ELEKTRUISCHE SECTIONAAL POORT
* OP DE OPRIT IN PARKEERGELEGENHEID VOOR MEERDERE VOERTUIGEN OP EIGEN TERREIN
* GEMEENSCHAPPELIJK ZIJPAD MET TOEGANG TOT DE ACHTERTUIN
* ENERGIELABEL "B"
VERRASSEND RUIM GERENOVEERD EN GOED ONDERHOUDEN HALFVRIJSTAAND WOONHUIS. VOORZIEN VAN SPOUWMUUR- EN DAKISOLATIE. KUNSTSTOF KOZIJNEN MET DUBBELE BEGLAZING EN GROTENDEELS ROLLUIKEN. REMEHA CALENTA CV-COMBIKETEL (BOUWJAAR 2011 / EIGENDOM). 2X AIRCONDITIONING EN 14 ZONNEPANELEN. 3 SLAAPKAMERS OP DE VERDIEPING EN EEN VOORRAADKELDER. ONDERHOUDSVRIENDELIJKE ACHTERTUIN MET RUIM OVERDEKT TERRAS, EEN PRIEEL EN TWEETAL BERGINGEN. GARAGE MET ELEKTRSCHE SECTIONAAL POORT BEREIKBAAR VIA OPRIT EN NAASTGELEGEN GEMEENSCHAPPELIJK ZIJPAD.
HET GEHEEL IS GELEGEN OP EEN POPULAIRE WOONLOCATIE IN DE WOONWIJK LANGEBERG. OP LOOPAFSTAND VAN EEN PARK, RESTAURANTS, DIVERSE SPORTFACILITEITEN EN SUPERMARKT. IN DIRECTE NABIJHEID VAN EEN BASISSCHOOL MET KINDEROPVANG. DE BRUSSUMER HEIDE IS OP ENKELE WANDELMINUTEN BEREIKBAAR.
GOEDE BEREIKBAARHEID MIDDELS OPENBAAR VERVOER, UITVALSWEGEN EN AANSLUITING OP DE PARKSTADRING (N300), RICHTING MAASTRICHT, AKEN EN EINDHOVEN, ALSMEDE HET DUITSE ACHTERLAND!
Ter bescherming van de belangen van zowel koper als ook verkoper wordt uitdrukkelijk gesteld dat een koopovereenkomst met betrekking tot deze onroerende zaak eerst dan tot stand komt nadat koper en verkoper de koopovereenkomst hebben ondertekend (schriftelijkheidsvereiste).
De waarborgsom/bankgarantie is 10% van de koopsom. De koper dient deze binnen 2 weken nadat het financieringsvoorbehoud is verlopen bij de desbetreffende notaris te deponeren.
Indien cv-ketel en/of warmwatervoorziening een huurtoestel is, dient koper de huurovereenkomst over te nemen. Dit geldt ook op het moment dat de installatie voor de zonnepanelen op huurbasis aanwezig is.
Alle door ons kantoor verstrekte informatie omtrent onroerende zaken, moet beschouwd worden als een uitnodiging om in onderhandeling te treden en is geheel vrijblijvend! Alle vermelde maten en afmetingen zijn slechts bij benadering. Een (eventueel) bijgevoegde plattegrond dient uitsluitend als globale indicatie/visualisatie. Aan deze beperkte informatie kunnen geen rechten worden ontleend.
Indien in enige documentatie of op enige website informatie staat die niet overeen komt met de werkelijkheid, dan geldt de feitelijke situatie waarin de woning zich bevindt, zoals koper deze tijdens de bezichtiging heeft kunnen waarnemen, en wordt de woning in deze feitelijke situatie/staat verkocht.
+ Read more
- Read less
Construction: {{
product.build_year }}
Construction: {{ product.build_period.start }} -
{{ product.build_period.end }}
House
, Single-family house
{{ product.rooms }} rooms
{{ product.bedrooms
}} bedrooms
Living space: {{
product.living_space }} m²
Plot: {{
product.plot_surface }} m²
Energy class: {{ product.energy_class }}
Energy index: {{ product.energy_index }}
Characteristics
{{ field.label }}
{{ field.value }}
+ Read more
{{ field.label }}
{{ field.value }}
- Read less
{{ product.company.name }}
Contact us
{{ product.company.phone.replace('-', ' ').substr(0, 7) }}...
{{ product.company.phone.replace('-', ' ') }}
Share:
Date