Sold under reservation
€ {{ product.price.replace(/\B(?=(\d{4})+(?!\d))/g, ".") }} {{ __(product.price_condition) }}
Photo’s
{{ product.images.length }}
Floorplan
{{ product.plans.length }}
360° photo’s {{ product.panoramas.length }}
Video’s {{ product.videos.length }}
Maps
All media
House for sale Treebeekstraat 46 Brunssum
€ {{ product.price.replace(/\B(?=(\d{4})+(?!\d))/g, ".") }} {{ __(product.price_condition) }}
Sold under reservation
Description
In goede staat verkerend royaal INSTAPKLAAR woonhuis met 3 ruime slaapkamers, luxe recent gerenoveerde royale badkamer, L-woonkamer, moderne en luxe keuken en ca. 15m diepe tuin en prefab garage.
Indeling:
Kelder:
Plafondhoogte: 1.84m
Provisiekelder 3.46mx1.82m
Begane grond:
Entree/hal en meterkast.
Gezellige L-woonkamer v.v. laminaatvloer (7.11mx4.70m/2.80m)
Gesloten keuken (2.80MX3.57M)met plavuizenvloer en recent geplaatste moderne en luxe keukeninstallatie (2025) incl. inbouwapparatuur, te weten, combi-oven, vaatwasser, inductiekookplaat incl. kookveldafzuiging en koel/vriescombinatie.
Verdeelportaal met tegelvoer met toegang naar moderne betegelde toiletruimte met fonteintje en buitendeur naar het terras en de achtergelegen tuin met stenen berging en achtergelegen vrijstaande stenen (prefab beton) garage (6.33MX2.58M).
1e verdieping:
Ruime overloop,
Slaapkamer 1 V/Z v.v. laminaatvloer en rolluik (3.47MX2.81M)
Slaapkamer 2 A/Z v.v. laminaatvloer en rolluik (3.49MX3.81M)
1 separate wasberging met aansluitpunt voor wasmachine en droger
Luxe en moderne royale badkamer (2024)met ruime inloopdouche, wastafelmeubel incl. onderkasten en 2e (vrij hangend) toilet (2.45mx3.61m)
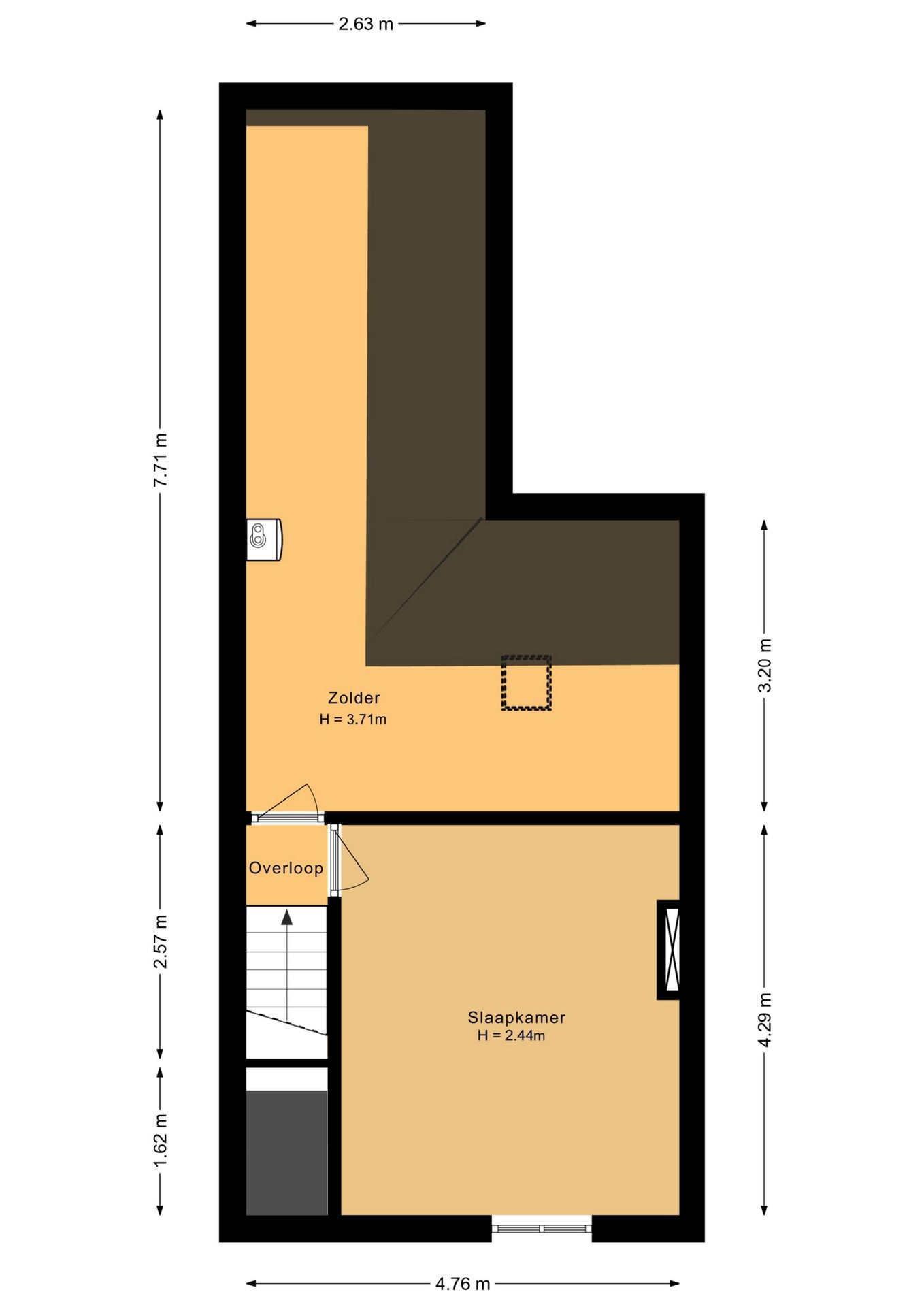
2e verdieping :
Middels vaste trap bereikbaar.
Overloop met laminaatvloer.
1 ruime slaapkamer v.v. radiator, laminaatvloer en rolluik. (4.29mx3.75m)
1 separate ruime bergzolder (4.76m/2.63mx7.71m/3.20m)met standplaats C.v-combi installatie (Intergas HR, huur uit 2014)
- De woning verkeerd in goede staat van onderhoud!
- Bouwjaar: 1915
- Woonopp: 130M2!!
- Bruto inhoud woonhuis: 490m3
- Dakisolatie
- Geheel v.v. rolluiken
- Compleet v.v. dubbel glas in hardhouten kozijnwerk.(2008)
- C.v-combi (2014 geplaatst)
- Perceel: 243m2
- Achtertuin: ca. 15m1 diep
Ter bescherming van de belangen van zowel koper als verkoper, wordt uitdrukkelijk gesteld dat een koopovereenkomst met betrekking tot deze onroerende zaak eerst dan tot stand komt nadat koper en verkoper de koopovereenkomst hebben getekend (“schriftelijkheidsvereiste”).
Indien er in de woning huurtoestellen aanwezig zijn zoals CV-ketel, boiler, zonnepanelen, mechanische ventilatie etc. dan dienen deze door de koper te worden overgenomen.
De termijn die wordt opgenomen voor eventuele (overeengekomen) ontbindende voorwaarden (bv. Financiering) is in de regel 4 tot 6 weken na het sluiten van de mondelinge wilsovereenkomst.
De waarborgsom/bankgarantie is 10% van de koopsom. De koper dient deze 3 dagen ná het vervallen van de ontbindende voorwaarden bij de desbetreffende notaris te deponeren.
Koper is te allen tijde gerechtigd voor eigen rekening een bouwkundige keuring te (laten) verrichten dan wel andere adviseurs te raadplegen teneinde een goed inzicht te verkrijgen over de staat van onderhoud.
Deze informatie is door ons, Zuyderhuys Makelaardij met de nodige zorgvuldigheid samengesteld. Onzerzijds wordt echter geen enkele aansprakelijkheid aanvaard voor enige onvolledigheid, onjuist of anderszins, dan wel de gevolgen daarvan. Alle opgegeven maten en oppervlakten zijn indicatief.
Indeling:
Kelder:
Plafondhoogte: 1.84m
Provisiekelder 3.46mx1.82m
Begane grond:
Entree/hal en meterkast.
Gezellige L-woonkamer v.v. laminaatvloer (7.11mx4.70m/2.80m)
Gesloten keuken (2.80MX3.57M)met plavuizenvloer en recent geplaatste moderne en luxe keukeninstallatie (2025) incl. inbouwapparatuur, te weten, combi-oven, vaatwasser, inductiekookplaat incl. kookveldafzuiging en koel/vriescombinatie.
Verdeelportaal met tegelvoer met toegang naar moderne betegelde toiletruimte met fonteintje en buitendeur naar het terras en de achtergelegen tuin met stenen berging en achtergelegen vrijstaande stenen (prefab beton) garage (6.33MX2.58M).
1e verdieping:
Ruime overloop,
Slaapkamer 1 V/Z v.v. laminaatvloer en rolluik (3.47MX2.81M)
Slaapkamer 2 A/Z v.v. laminaatvloer en rolluik (3.49MX3.81M)
1 separate wasberging met aansluitpunt voor wasmachine en droger
Luxe en moderne royale badkamer (2024)met ruime inloopdouche, wastafelmeubel incl. onderkasten en 2e (vrij hangend) toilet (2.45mx3.61m)
2e verdieping :
Middels vaste trap bereikbaar.
Overloop met laminaatvloer.
1 ruime slaapkamer v.v. radiator, laminaatvloer en rolluik. (4.29mx3.75m)
1 separate ruime bergzolder (4.76m/2.63mx7.71m/3.20m)met standplaats C.v-combi installatie (Intergas HR, huur uit 2014)
- De woning verkeerd in goede staat van onderhoud!
- Bouwjaar: 1915
- Woonopp: 130M2!!
- Bruto inhoud woonhuis: 490m3
- Dakisolatie
- Geheel v.v. rolluiken
- Compleet v.v. dubbel glas in hardhouten kozijnwerk.(2008)
- C.v-combi (2014 geplaatst)
- Perceel: 243m2
- Achtertuin: ca. 15m1 diep
Ter bescherming van de belangen van zowel koper als verkoper, wordt uitdrukkelijk gesteld dat een koopovereenkomst met betrekking tot deze onroerende zaak eerst dan tot stand komt nadat koper en verkoper de koopovereenkomst hebben getekend (“schriftelijkheidsvereiste”).
Indien er in de woning huurtoestellen aanwezig zijn zoals CV-ketel, boiler, zonnepanelen, mechanische ventilatie etc. dan dienen deze door de koper te worden overgenomen.
De termijn die wordt opgenomen voor eventuele (overeengekomen) ontbindende voorwaarden (bv. Financiering) is in de regel 4 tot 6 weken na het sluiten van de mondelinge wilsovereenkomst.
De waarborgsom/bankgarantie is 10% van de koopsom. De koper dient deze 3 dagen ná het vervallen van de ontbindende voorwaarden bij de desbetreffende notaris te deponeren.
Koper is te allen tijde gerechtigd voor eigen rekening een bouwkundige keuring te (laten) verrichten dan wel andere adviseurs te raadplegen teneinde een goed inzicht te verkrijgen over de staat van onderhoud.
Deze informatie is door ons, Zuyderhuys Makelaardij met de nodige zorgvuldigheid samengesteld. Onzerzijds wordt echter geen enkele aansprakelijkheid aanvaard voor enige onvolledigheid, onjuist of anderszins, dan wel de gevolgen daarvan. Alle opgegeven maten en oppervlakten zijn indicatief.
+ Read more
- Read less
Construction: {{
product.build_year }}
Construction: {{ product.build_period.start }} -
{{ product.build_period.end }}
House
, Single-family house
{{ product.rooms }} rooms
{{ product.bedrooms
}} bedrooms
Living space: {{
product.living_space }} m²
Plot: {{
product.plot_surface }} m²
Energy class: {{ product.energy_class }}
Energy index: {{ product.energy_index }}
Characteristics
{{ field.label }}
{{ field.value }}
+ Read more
{{ field.label }}
{{ field.value }}
- Read less
{{ product.company.name }}
Contact us
{{ product.company.phone.replace('-', ' ').substr(0, 7) }}...
{{ product.company.phone.replace('-', ' ') }}
Share:
Date