Under option
€ {{ product.price.replace(/\B(?=(\d{4})+(?!\d))/g, ".") }} {{ __(product.price_condition) }}
Photo’s
{{ product.images.length }}
Floorplan
{{ product.plans.length }}
360° photo’s {{ product.panoramas.length }}
Video’s {{ product.videos.length }}
Maps
All media
House for sale B2 Schip ong Bunde
€ {{ product.price.replace(/\B(?=(\d{4})+(?!\d))/g, ".") }} {{ __(product.price_condition) }}
Under option
Description
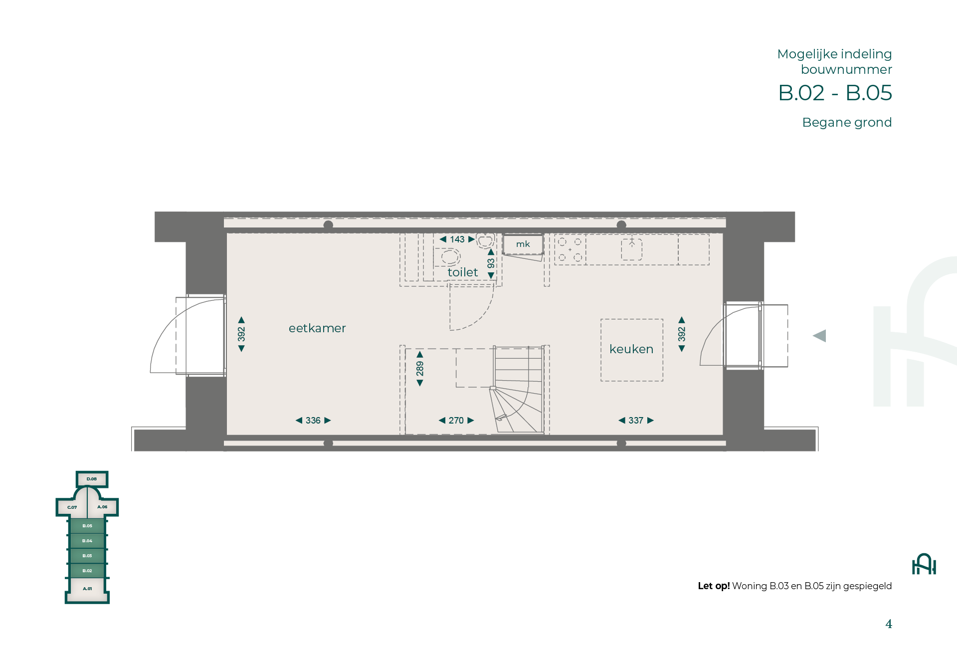
Licht, ruim en gezinsvriendelijk (B.02, B.03, B.04, B.05)
De vier woningen van het type Schip (B.02 t/m B.05) liggen in het centrale deel van de kerk. Met woonoppervlaktes van circa 109 en 113 m² verdeeld over drie verdiepingen bieden ze volop mogelijkheden. De hoge plafonds en de grote, oorspronkelijke ramen zorgen voor een zee van licht en een ruimtelijke basis. Bovendien heeft elk Schip een eigen tuin, bereikbaar via een grote glazen deur die de binnenruimte nog meer bij buiten betrekt.
Het Schip wordt geleverd als woonbasis, de rest richt je zelf in.
Zo kun je ervoor kiezen om beneden een living met open keuken te realiseren. Een andere mogelijkheid is om de keuken apart te realiseren. Op de eerste verdieping zou je één royale master bedroom met badkamer kunnen creëren, terwijl de tweede verdieping ruimte biedt voor twee extra kamers. Of je maakt van de eerste verdieping een lichte woonkamer met zicht op de hoge ramen, terwijl je alle slaapkamers boven onderbrengt.
Deze flexibiliteit maakt het Schip geschikt voor allerlei woonvormen: van een gezinswoning met meerdere slaapkamers tot een ruim opgezette leefruimte voor stellen die houden van openheid en licht. Hoe je het ook aanpakt, je begint hier met een monumentaal fundament dat je naar eigen woonideeën invult.
Pluspunten
• 1 woning met ca. 109 m² (B.02) en 3 met ca. 113 m²
• Gelegen in het centrale schip van de kerk
• Hoge ramen en plafonds voor veel licht en ruimtelijkheid
• Eigen tuin met directe toegang vanuit de begane grond
• Volledig vrij in deelbaar, van gezinswoning tot loftachtig geheel
De vier woningen van het type Schip (B.02 t/m B.05) liggen in het centrale deel van de kerk. Met woonoppervlaktes van circa 109 en 113 m² verdeeld over drie verdiepingen bieden ze volop mogelijkheden. De hoge plafonds en de grote, oorspronkelijke ramen zorgen voor een zee van licht en een ruimtelijke basis. Bovendien heeft elk Schip een eigen tuin, bereikbaar via een grote glazen deur die de binnenruimte nog meer bij buiten betrekt.
Het Schip wordt geleverd als woonbasis, de rest richt je zelf in.
Zo kun je ervoor kiezen om beneden een living met open keuken te realiseren. Een andere mogelijkheid is om de keuken apart te realiseren. Op de eerste verdieping zou je één royale master bedroom met badkamer kunnen creëren, terwijl de tweede verdieping ruimte biedt voor twee extra kamers. Of je maakt van de eerste verdieping een lichte woonkamer met zicht op de hoge ramen, terwijl je alle slaapkamers boven onderbrengt.
Deze flexibiliteit maakt het Schip geschikt voor allerlei woonvormen: van een gezinswoning met meerdere slaapkamers tot een ruim opgezette leefruimte voor stellen die houden van openheid en licht. Hoe je het ook aanpakt, je begint hier met een monumentaal fundament dat je naar eigen woonideeën invult.
Pluspunten
• 1 woning met ca. 109 m² (B.02) en 3 met ca. 113 m²
• Gelegen in het centrale schip van de kerk
• Hoge ramen en plafonds voor veel licht en ruimtelijkheid
• Eigen tuin met directe toegang vanuit de begane grond
• Volledig vrij in deelbaar, van gezinswoning tot loftachtig geheel
+ Read more
- Read less
Construction: {{
product.build_year }}
Construction: {{ product.build_period.start }} -
{{ product.build_period.end }}
House
, Single-family house
{{ product.rooms }} rooms
{{ product.bedrooms
}} bedrooms
Living space: {{
product.living_space }} m²
Plot: {{
product.plot_surface }} m²
Energy class: {{ product.energy_class }}
Energy index: {{ product.energy_index }}
Characteristics
{{ field.label }}
{{ field.value }}
+ Read more
{{ field.label }}
{{ field.value }}
- Read less
{{ product.company.name }}
Contact us
{{ product.company.phone.replace('-', ' ').substr(0, 7) }}...
{{ product.company.phone.replace('-', ' ') }}
Share:
Date