Sold under reservation
€ {{ product.price.replace(/\B(?=(\d{4})+(?!\d))/g, ".") }} {{ __(product.price_condition) }}
Photo’s
{{ product.images.length }}
Floorplan
{{ product.plans.length }}
360° photo’s {{ product.panoramas.length }}
Video’s {{ product.videos.length }}
Maps
All media
House for sale Kluisstraat 59 Doenrade
€ {{ product.price.replace(/\B(?=(\d{4})+(?!\d))/g, ".") }} {{ __(product.price_condition) }}
Sold under reservation
Description
WELKOM BIJ KLUISSTRAAT 59 IN DOENRADE!
Op een royaal perceel in het charmante kerkdorp Doenrade ligt deze ruime twee-onder-één-kap-woning met een dubbele vrijstaande garage en een fraai vrij uitzicht aan de achterzijde. Een ideale woning voor wie comfortabel wil wonen in een groene en landelijke omgeving, met alle voorzieningen binnen handbereik.
De woning heeft een lichte doorzon-woonkamer met een eethoek aan de voorzijde en een sfeervolle pelletkachel als centraal middelpunt. Aan de achterzijde bevindt zich de living/lounge met zithoek, audio-/visuele aansluitingen en een schuifpui naar het grote overdekte terras met direct tuincontact.
Via een moderne loftdeur is de gesloten keukenruimte bereikbaar, voorzien van een eigentijdse inbouwkeuken in hoekopstelling met diverse apparatuur.
Op de begane grond bevindt zich tevens een geheel betegeld gastentoilet met staand closet.
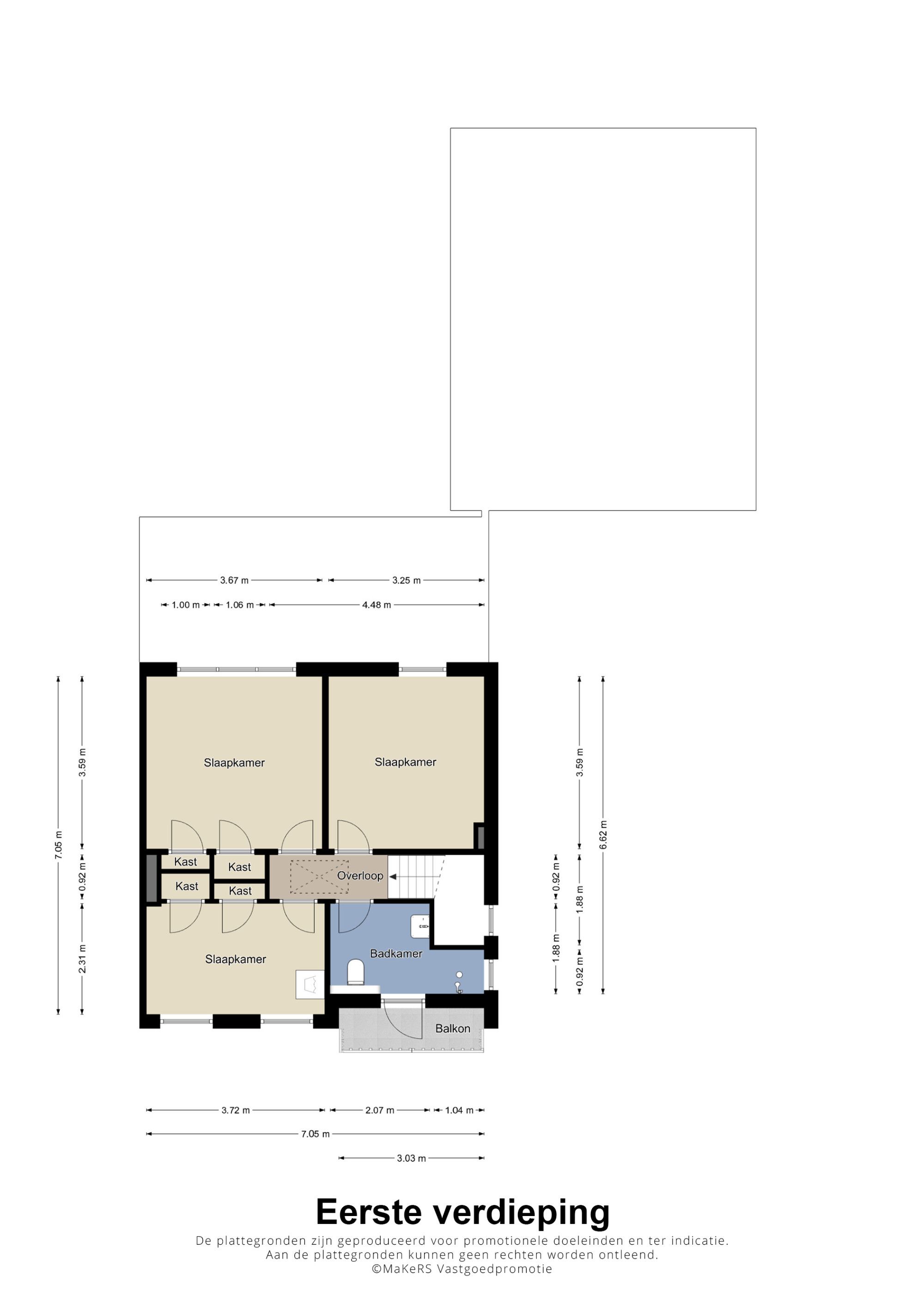
De verdieping telt drie ruime slaapkamers, waarvan twee zijn voorzien van praktische inbouwkasten. De badkamer is uitgerust met een inloopdouche, wastafel en tweede toilet en biedt toegang tot een balkon aan de voorzijde.
De bergzolder, bereikbaar via een vlizotrap, beschikt over een eenvoudig geïsoleerde dakconstructie en biedt mogelijkheden voor het realiseren van een vaste trap en extra kamer. Hier bevindt zich tevens de Remeha Avanta CV-combiketel. Extra opslagruimte is beschikbaar in de provisiekelder.
De diepe achtertuin vormt een waar buitenverblijf met een groot overdekt terras, een gazon, borders met aanplanting, een tuinberging en een zijingang. Het vrije uitzicht op de achtergelegen fruitboomgaard zorgt voor een gevoel van rust en ruimte — een heerlijke plek voor kinderen om te spelen of voor wie graag een moestuin aanlegt.
De royale dubbele garage is voorzien van een elektrisch bedienbare sectionaal poort, lichtkoepel en uitstortgootsteen. De ruime oprit biedt parkeergelegenheid voor meerdere voertuigen op eigen terrein.
De woning is deels voorzien van kunststof kozijnen met dubbele beglazing, rolluiken, een pelletkachel en een Remeha Avanta CV-combiketel (energielabel D).
Doenrade staat bekend om haar gemoedelijke dorpskarakter en sterke sociale verbondenheid. Geniet van de rust van het Limburgse heuvellandschap, met brasserieën, wandelroutes en kasteel Doenrade op loopafstand. Dankzij de gunstige ligging zijn steden als Maastricht, Aken en Eindhoven uitstekend bereikbaar via de Parkstadring N300 en de nabijgelegen snelwegen.
Neem vandaag nog contact met ons op om een bezichtiging in te plannen!
INDELING:
KELDER:
Een voorraadkelder met provisie- en opslagruimte.
BEGANE GROND:
Hal/Entree, trappenhuis naar de kelder en de verdieping. Geheel betegeld gastentoilet met staand closet. Meterkast voorzien van een 8 groepsinstallatie / 2x aardlekschakelaar / dag-/nachtstroom en digitale meters. Toegang tot de keuken.
Modern ingerichte en afgewerkte doorzon-woonkamer met aan de voorzijde gelegen eethoek. Centraal geplaatste sfeervolle pelletkachel en middels een loftdeur is er toegang tot de keuken. Aan de achterzijde gesitueerde living/lounge met zithoek, voorzien van audio-/visuele-aansluitingen, waar een schuifpui toegang biedt tot het overdekte terras met direct tuincontact.
Een gesloten keukenruimte met een eigentijdse inbouwkeuken in hoekopstelling, voorzien van apparatuur, te weten: 4 pits gasfornuis / RVS wandschouw afzuigkap / combimagnetron / wasbak / vaatwasmachine / koelkast / granieten werkblad met daglicht en veel opbergruimte. Loftdeur naar de woonkamer en een loopdeur naar het achtergelegen terras.
Diepe achtertuin met ruim overdekt bordesterras / zijingang / borders met aanplanting, gazon en aangebouwde tuinberging. Vrij uitzicht op een fruitboomgaard, voldoende speelruimte voor de kinderen of het aanleggen van een moestuin.
Zeer ruime vrijstaande stenen dubbele garage voorzien van een elektrisch bedienbare sectionaal poort, lichtkoepel en uitstortgootsteen. De royale voorgelegen oprit biedt parkeergelegenheid aan meerdere voertuigen op eigen terrein.
VERDIEPING:
Overloop met toegang tot de slaapkamers, de badkamer en vlizotrap naar de zolder.
De slaapkamer aan de linker voorzijde is in gebruik als kleedkamer, heeft een dubbele wandkast en witgoedaansluitingen voor wasmachine/droger.
De naastgelegen badkamer is voorzien van een vaste wastafel / inloopdouche en tweede toilet. Loopdeur naar het balkon aan de voorzijde.
De slaapkamer rechtsachter doet dienst als logeerkamer. De hoofdslaapkamer heeft een dubbele wandkast met veel opbergruimte.
ZOLDER:
Ruime zolder onder de eenvoudig geïsoleerde dakconstructie, bereikbaar middels een vlizotrap. Mogelijkheid tot het realiseren van een vaste trap en een extra kamer. Standplaats voor de Remeha Avanta CV-Combiketel (Bouwjaar 2015 / Eigendom).
BIJZONDERHEDEN:
* OP ROYAAL PECEEL GELEGEN TWEE-ONDER-EEN-KAP-WONING MET DUBBELE GARAGE
* VRIJ UITZICHT AAN DE ACHTERZIJDE
* GELEGEN IN POPULAIRE EN GELIEFDE WOONOMGEVING
* WOONKAMER MET EETKAMER AAN DE VOORZIJDE
* CENTRAAL GEPLAATSTE SFEERVOLLE PELLETKACHEL
* LIVING/LOUNGE MET ZITHOEK EN SCHUIFPUI NAAR HET OVERDEKTE TERRRAS
* GESLOTEN KEUKENRUIMTE VOORZIEN VAN EEN INBOUWKEUKEN MET APPARATUUR
* 3 RUIME SLAAPKAMERS OP DE VERDIEPING
* GEHEEL BETEGELDE BADKAMER MET INLOOPDOUCHE, WASTAFEL EN TWEEDE TOILET
* BERGZOLDER ONDER DE EENVOUDIG GEISOLEERDE DAKCONSTRUCTIE
* MOGELIJKHEID TOT HET REALISEREN VAN EEN VASTE TRAP EN EXTRA KAMER
* DIEPE ACHTERTUIN MET TERRAS, OVERKAPPING, ZIJINGANG, BORDERS MET AANPLANTING EN TUINBERGING
* ROYALE VRIJSTAANDE DUBBELE GARAGE MET ELEKTRISCHE SECTIONAALPOORT
* VOORGELEGEN OPRIT MET PARKEERGELENHEID VOOR MEERDERE VOERTUIGEN
* KUNSTSTOF KOZIJNEN MET DUBBELE BEGLAZING
* DEELS ROLLUIKEN
* EENVOUDIGE DAKISOLATIE
* REMEHA AVANTA CV-COMBIKETEL (BOUWJAAR 2013 / EIGENDOM)
* ENERGIELABEL "D"
HET PAND HEEFT EEN EENVOUDIG GEISOLEERDE DAKCONSTRUCTIE. KUNSTSTOF KOZIJEN MET DUBBELE BEGLAZING. DEELS VOORZIEN VAN ROLLUIKEN. EEN REMEHA AVANTA CV-COMBIKETEL (BOUWJAAR 2013). EEN MODERNE WOONKAMER MET SFEERVOLLE PELLETKACHEL EN SCHUIFPUI NAAR HET OVERDEKTE TERRAS. EEN GESLOTEN KEUKEN MET EEN INBOUWKEUKEN IN HOEKOPSTELLING. 3 RUIME SLAAPKAMER OP DE VERDIEPING EN EEN BADKAMER MET INLOOPDOUCHE, WASTAFEL EN EEN TWEEDE TOILET. EEN BERZOLDER, BEREIKBAAR MIDDELS EEN VLIZOTRAP, MOGELIJKHEID TOT HET REALISEREN VAN EEN VASTE TRAP EN EXTRA KAMER. VRIJSTAANDE GROTE DUBBELE GARAGE MET LICHTKOEPEL, UITSORTGOOTSTEEN EN ELEKTRISCH BEDIENBARE SECTIONAAL POORT. RUIME OPRIT VOOR MEERDERE VOERTUIGEN. ROYAAL PERCEEL MET VRIJ UITZICHT EN MULTIFUNTIONELE MOGELIJKHEDEN.
HET GEHEEL IS GELEGEN IN HET PITTORESKE KERKDORP "DOENRADE" MET EEN AANGENAAM EN VEILIG LEEFKLIMAAT DOOR DE GROTE SOCIALE VERBONDENHEID EN BETROKKENHEID. IN EEN LANDELIJKE EN GROENE WOONOMGEVING VAN HET LIMBURGSE LANDSCHAP. VOOR EEN BOURGONDISCHE LEVENSSTIJL MET DIVERSE BRASSERIEN IN DE DIRECTE OMGEVING. EEN RUSTIGE LIGGING MET ALLE STEDELIJKE VOORZIENINGEN IN DE NABIJHEID. HET HISTORISCHE "KASTEEL DOENRADE" EN EEN WANDELGEBIED ZIJN OP LOOPAFSTAND BEREIKBAAR.
GOEDE BEREIKBAARHEID MIDDELS OPENBAAR VERVOER, VIA UITVALSWEGEN, DE PARKSTADRING (N300) EN DE AUTOSNELWEG A76 RICHTING MAASTRICHT, AKEN EN EINDHOVEN ALSMEDE HET DUITSE ACHTERLAND.
Ter bescherming van de belangen van zowel koper als ook verkoper wordt uitdrukkelijk gesteld dat een koopovereenkomst met betrekking tot deze onroerende zaak eerst dan tot stand komt nadat koper en verkoper de koopovereenkomst hebben ondertekend (schriftelijkheidsvereiste).
De waarborgsom/bankgarantie is 10% van de koopsom. De koper dient deze binnen 2 weken nadat het financieringsvoorbehoud is verlopen bij de desbetreffende notaris te deponeren.
Indien cv-ketel en/of warmwatervoorziening een huurtoestel is, dient koper de huurovereenkomst over te nemen. Dit geldt ook indien de zonnepanelen op huurbasis aanwezig zijn.
Alle door ons kantoor verstrekte informatie omtrent onroerende zaken, moet beschouwd worden als een uitnodiging om in onderhandeling te treden en is geheel vrijblijvend! Alle vermelde maten en afmetingen zijn slechts bij benadering. Een (eventueel) bijgevoegde plattegrond dient uitsluitend als globale indicatie/visualisatie. Aan deze beperkte informatie
kunnen geen rechten worden ontleend.
Indien in enige documentatie of op enige website informatie staat die niet overeen komt met de werkelijkheid, dan geldt de feitelijke situatie waarin de woning zich bevindt, zoals koper deze tijdens de bezichtiging heeft kunnen waarnemen, en wordt de woning in deze feitelijke situatie/staat verkocht.
Op een royaal perceel in het charmante kerkdorp Doenrade ligt deze ruime twee-onder-één-kap-woning met een dubbele vrijstaande garage en een fraai vrij uitzicht aan de achterzijde. Een ideale woning voor wie comfortabel wil wonen in een groene en landelijke omgeving, met alle voorzieningen binnen handbereik.
De woning heeft een lichte doorzon-woonkamer met een eethoek aan de voorzijde en een sfeervolle pelletkachel als centraal middelpunt. Aan de achterzijde bevindt zich de living/lounge met zithoek, audio-/visuele aansluitingen en een schuifpui naar het grote overdekte terras met direct tuincontact.
Via een moderne loftdeur is de gesloten keukenruimte bereikbaar, voorzien van een eigentijdse inbouwkeuken in hoekopstelling met diverse apparatuur.
Op de begane grond bevindt zich tevens een geheel betegeld gastentoilet met staand closet.
De verdieping telt drie ruime slaapkamers, waarvan twee zijn voorzien van praktische inbouwkasten. De badkamer is uitgerust met een inloopdouche, wastafel en tweede toilet en biedt toegang tot een balkon aan de voorzijde.
De bergzolder, bereikbaar via een vlizotrap, beschikt over een eenvoudig geïsoleerde dakconstructie en biedt mogelijkheden voor het realiseren van een vaste trap en extra kamer. Hier bevindt zich tevens de Remeha Avanta CV-combiketel. Extra opslagruimte is beschikbaar in de provisiekelder.
De diepe achtertuin vormt een waar buitenverblijf met een groot overdekt terras, een gazon, borders met aanplanting, een tuinberging en een zijingang. Het vrije uitzicht op de achtergelegen fruitboomgaard zorgt voor een gevoel van rust en ruimte — een heerlijke plek voor kinderen om te spelen of voor wie graag een moestuin aanlegt.
De royale dubbele garage is voorzien van een elektrisch bedienbare sectionaal poort, lichtkoepel en uitstortgootsteen. De ruime oprit biedt parkeergelegenheid voor meerdere voertuigen op eigen terrein.
De woning is deels voorzien van kunststof kozijnen met dubbele beglazing, rolluiken, een pelletkachel en een Remeha Avanta CV-combiketel (energielabel D).
Doenrade staat bekend om haar gemoedelijke dorpskarakter en sterke sociale verbondenheid. Geniet van de rust van het Limburgse heuvellandschap, met brasserieën, wandelroutes en kasteel Doenrade op loopafstand. Dankzij de gunstige ligging zijn steden als Maastricht, Aken en Eindhoven uitstekend bereikbaar via de Parkstadring N300 en de nabijgelegen snelwegen.
Neem vandaag nog contact met ons op om een bezichtiging in te plannen!
INDELING:
KELDER:
Een voorraadkelder met provisie- en opslagruimte.
BEGANE GROND:
Hal/Entree, trappenhuis naar de kelder en de verdieping. Geheel betegeld gastentoilet met staand closet. Meterkast voorzien van een 8 groepsinstallatie / 2x aardlekschakelaar / dag-/nachtstroom en digitale meters. Toegang tot de keuken.
Modern ingerichte en afgewerkte doorzon-woonkamer met aan de voorzijde gelegen eethoek. Centraal geplaatste sfeervolle pelletkachel en middels een loftdeur is er toegang tot de keuken. Aan de achterzijde gesitueerde living/lounge met zithoek, voorzien van audio-/visuele-aansluitingen, waar een schuifpui toegang biedt tot het overdekte terras met direct tuincontact.
Een gesloten keukenruimte met een eigentijdse inbouwkeuken in hoekopstelling, voorzien van apparatuur, te weten: 4 pits gasfornuis / RVS wandschouw afzuigkap / combimagnetron / wasbak / vaatwasmachine / koelkast / granieten werkblad met daglicht en veel opbergruimte. Loftdeur naar de woonkamer en een loopdeur naar het achtergelegen terras.
Diepe achtertuin met ruim overdekt bordesterras / zijingang / borders met aanplanting, gazon en aangebouwde tuinberging. Vrij uitzicht op een fruitboomgaard, voldoende speelruimte voor de kinderen of het aanleggen van een moestuin.
Zeer ruime vrijstaande stenen dubbele garage voorzien van een elektrisch bedienbare sectionaal poort, lichtkoepel en uitstortgootsteen. De royale voorgelegen oprit biedt parkeergelegenheid aan meerdere voertuigen op eigen terrein.
VERDIEPING:
Overloop met toegang tot de slaapkamers, de badkamer en vlizotrap naar de zolder.
De slaapkamer aan de linker voorzijde is in gebruik als kleedkamer, heeft een dubbele wandkast en witgoedaansluitingen voor wasmachine/droger.
De naastgelegen badkamer is voorzien van een vaste wastafel / inloopdouche en tweede toilet. Loopdeur naar het balkon aan de voorzijde.
De slaapkamer rechtsachter doet dienst als logeerkamer. De hoofdslaapkamer heeft een dubbele wandkast met veel opbergruimte.
ZOLDER:
Ruime zolder onder de eenvoudig geïsoleerde dakconstructie, bereikbaar middels een vlizotrap. Mogelijkheid tot het realiseren van een vaste trap en een extra kamer. Standplaats voor de Remeha Avanta CV-Combiketel (Bouwjaar 2015 / Eigendom).
BIJZONDERHEDEN:
* OP ROYAAL PECEEL GELEGEN TWEE-ONDER-EEN-KAP-WONING MET DUBBELE GARAGE
* VRIJ UITZICHT AAN DE ACHTERZIJDE
* GELEGEN IN POPULAIRE EN GELIEFDE WOONOMGEVING
* WOONKAMER MET EETKAMER AAN DE VOORZIJDE
* CENTRAAL GEPLAATSTE SFEERVOLLE PELLETKACHEL
* LIVING/LOUNGE MET ZITHOEK EN SCHUIFPUI NAAR HET OVERDEKTE TERRRAS
* GESLOTEN KEUKENRUIMTE VOORZIEN VAN EEN INBOUWKEUKEN MET APPARATUUR
* 3 RUIME SLAAPKAMERS OP DE VERDIEPING
* GEHEEL BETEGELDE BADKAMER MET INLOOPDOUCHE, WASTAFEL EN TWEEDE TOILET
* BERGZOLDER ONDER DE EENVOUDIG GEISOLEERDE DAKCONSTRUCTIE
* MOGELIJKHEID TOT HET REALISEREN VAN EEN VASTE TRAP EN EXTRA KAMER
* DIEPE ACHTERTUIN MET TERRAS, OVERKAPPING, ZIJINGANG, BORDERS MET AANPLANTING EN TUINBERGING
* ROYALE VRIJSTAANDE DUBBELE GARAGE MET ELEKTRISCHE SECTIONAALPOORT
* VOORGELEGEN OPRIT MET PARKEERGELENHEID VOOR MEERDERE VOERTUIGEN
* KUNSTSTOF KOZIJNEN MET DUBBELE BEGLAZING
* DEELS ROLLUIKEN
* EENVOUDIGE DAKISOLATIE
* REMEHA AVANTA CV-COMBIKETEL (BOUWJAAR 2013 / EIGENDOM)
* ENERGIELABEL "D"
HET PAND HEEFT EEN EENVOUDIG GEISOLEERDE DAKCONSTRUCTIE. KUNSTSTOF KOZIJEN MET DUBBELE BEGLAZING. DEELS VOORZIEN VAN ROLLUIKEN. EEN REMEHA AVANTA CV-COMBIKETEL (BOUWJAAR 2013). EEN MODERNE WOONKAMER MET SFEERVOLLE PELLETKACHEL EN SCHUIFPUI NAAR HET OVERDEKTE TERRAS. EEN GESLOTEN KEUKEN MET EEN INBOUWKEUKEN IN HOEKOPSTELLING. 3 RUIME SLAAPKAMER OP DE VERDIEPING EN EEN BADKAMER MET INLOOPDOUCHE, WASTAFEL EN EEN TWEEDE TOILET. EEN BERZOLDER, BEREIKBAAR MIDDELS EEN VLIZOTRAP, MOGELIJKHEID TOT HET REALISEREN VAN EEN VASTE TRAP EN EXTRA KAMER. VRIJSTAANDE GROTE DUBBELE GARAGE MET LICHTKOEPEL, UITSORTGOOTSTEEN EN ELEKTRISCH BEDIENBARE SECTIONAAL POORT. RUIME OPRIT VOOR MEERDERE VOERTUIGEN. ROYAAL PERCEEL MET VRIJ UITZICHT EN MULTIFUNTIONELE MOGELIJKHEDEN.
HET GEHEEL IS GELEGEN IN HET PITTORESKE KERKDORP "DOENRADE" MET EEN AANGENAAM EN VEILIG LEEFKLIMAAT DOOR DE GROTE SOCIALE VERBONDENHEID EN BETROKKENHEID. IN EEN LANDELIJKE EN GROENE WOONOMGEVING VAN HET LIMBURGSE LANDSCHAP. VOOR EEN BOURGONDISCHE LEVENSSTIJL MET DIVERSE BRASSERIEN IN DE DIRECTE OMGEVING. EEN RUSTIGE LIGGING MET ALLE STEDELIJKE VOORZIENINGEN IN DE NABIJHEID. HET HISTORISCHE "KASTEEL DOENRADE" EN EEN WANDELGEBIED ZIJN OP LOOPAFSTAND BEREIKBAAR.
GOEDE BEREIKBAARHEID MIDDELS OPENBAAR VERVOER, VIA UITVALSWEGEN, DE PARKSTADRING (N300) EN DE AUTOSNELWEG A76 RICHTING MAASTRICHT, AKEN EN EINDHOVEN ALSMEDE HET DUITSE ACHTERLAND.
Ter bescherming van de belangen van zowel koper als ook verkoper wordt uitdrukkelijk gesteld dat een koopovereenkomst met betrekking tot deze onroerende zaak eerst dan tot stand komt nadat koper en verkoper de koopovereenkomst hebben ondertekend (schriftelijkheidsvereiste).
De waarborgsom/bankgarantie is 10% van de koopsom. De koper dient deze binnen 2 weken nadat het financieringsvoorbehoud is verlopen bij de desbetreffende notaris te deponeren.
Indien cv-ketel en/of warmwatervoorziening een huurtoestel is, dient koper de huurovereenkomst over te nemen. Dit geldt ook indien de zonnepanelen op huurbasis aanwezig zijn.
Alle door ons kantoor verstrekte informatie omtrent onroerende zaken, moet beschouwd worden als een uitnodiging om in onderhandeling te treden en is geheel vrijblijvend! Alle vermelde maten en afmetingen zijn slechts bij benadering. Een (eventueel) bijgevoegde plattegrond dient uitsluitend als globale indicatie/visualisatie. Aan deze beperkte informatie
kunnen geen rechten worden ontleend.
Indien in enige documentatie of op enige website informatie staat die niet overeen komt met de werkelijkheid, dan geldt de feitelijke situatie waarin de woning zich bevindt, zoals koper deze tijdens de bezichtiging heeft kunnen waarnemen, en wordt de woning in deze feitelijke situatie/staat verkocht.
+ Read more
- Read less
Construction: {{
product.build_year }}
Construction: {{ product.build_period.start }} -
{{ product.build_period.end }}
House
, Single-family house
{{ product.rooms }} rooms
{{ product.bedrooms
}} bedrooms
Living space: {{
product.living_space }} m²
Plot: {{
product.plot_surface }} m²
Energy class: {{ product.energy_class }}
Energy index: {{ product.energy_index }}
Characteristics
{{ field.label }}
{{ field.value }}
+ Read more
{{ field.label }}
{{ field.value }}
- Read less
{{ product.company.name }}
Contact us
{{ product.company.phone.replace('-', ' ').substr(0, 7) }}...
{{ product.company.phone.replace('-', ' ') }}
Share:
Date