Sold
€ {{ product.price.replace(/\B(?=(\d{4})+(?!\d))/g, ".") }} {{ __(product.price_condition) }}
Photo’s
{{ product.images.length }}
Floorplan
{{ product.plans.length }}
360° photo’s {{ product.panoramas.length }}
Video’s {{ product.videos.length }}
Maps
All media
House for sale Martinstraat 3 Eygelshoven
€ {{ product.price.replace(/\B(?=(\d{4})+(?!\d))/g, ".") }} {{ __(product.price_condition) }}
Sold
Description
Bent u op zoek naar een woning met karakter, volop leefruimte en een heerlijke tuin? Dan is Martinstraat 3 in Eygelshoven absoluut een bezoek waard! Deze charmante bungalow uit 1972 ligt op een ruim perceel van 536 m² en beschikt over 113 m² aan woonoppervlak, verdeeld over meerdere niveaus. Dankzij de royale woonkamer, de praktische indeling met souterrain en verdieping én de fijne ligging in een rustige buurt, is dit een huis waar je je meteen thuis voelt. Een ideale plek voor wie ruimte zoekt – zowel binnen als buiten – én graag woont op korte afstand van winkels, station en uitvalswegen.
Leuk om te weten
- Bouwjaar: 1972 (conform BAG), perceel: 536 m² (conform kadaster);
- Woonoppervlakte woning: ca. 113 m² (NEN 2580 meetrapport aanwezig);
- Inpandige kelder/ garage;
- Houten kozijnen;
- Energielabel F;
- Aanvaarding in overleg.
ALLE AFMETINGN ZIJN TERUG TE VINDEN OP DE PLATTEGRONDEN!
INDELING:
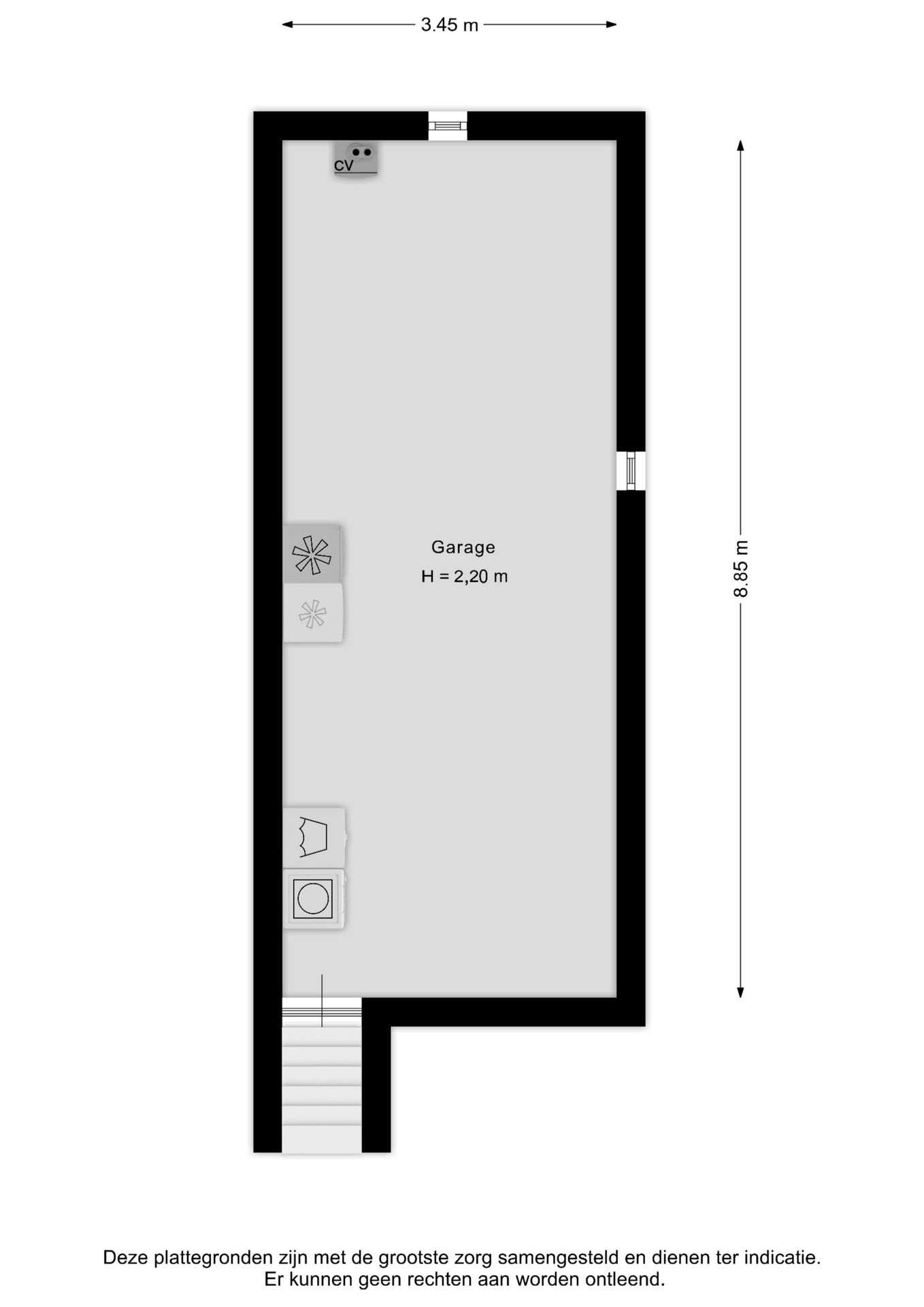
Niveau -1:
De woning beschikt over een praktische kelderruimte met meerdere functies. Hier bevinden zich de aansluitpunten voor wasmachine en droger, een diepvriesaansluiting en de opstelling van de cv-ketel. De inpandige garage is bereikbaar via een kantelpoort en biedt plaats voor één auto. Perfect voor wie houdt van extra opslagruimte of een hobbyruimte aan huis.
Niveau 0:
Via een trappetje aan de voorzijde bereik je de overdekte entree van de woning. In de hal tref je rechts het betegelde toilet met wastafeltje, ernaast een garderobenis met kapstok. Aan de linkerzijde bevinden zich de meterkast (vernieuwd begin 2025) en het alarmkastje. Vanuit de hal heb je toegang tot alle belangrijke leefruimtes.
De woonkamer is speels ingedeeld in een gezellige U-vorm met een betegelde vloer en sfeervolle spotverlichting. In het zitgedeelte zorgt de open haard voor een warme ambiance. Vanuit de woonkamer is er een directe doorgang naar de achtertuin via een tuindeur – ideaal voor wie binnen en buiten graag met elkaar verbindt.
Via een klein tussenportaal bereik je de badkamer, de keuken en de trap naar boven. De badkamer is voorzien van een ligbad met doucheaansluiting, aparte douche, tweede toilet en wastafel.
De keuken is betegeld en uitgerust met moderne apparatuur: inductiekookplaat, afzuigkap, koelkast, combimagnetron en vaatwasser. Ook vanuit de keuken is er toegang tot de tuin via een aparte buitendeur.
Niveau 1:
Op de verdieping bevinden zich twee slaapkamers met houten vloeren. Eén kamer wordt momenteel gebruikt als kleedruimte, de andere als slaapkamer. De verdieping biedt mogelijkheden voor uitbreiding of herinrichting naar eigen wens.
Tuin:
De fraai aangelegde tuin is bereikbaar vanuit zowel de woonkamer, de keuken als via beide kanten van de woning met een poort. De tuin bestaat uit een betegeld terras, een gazon en groenborders – een ideale plek voor buitenleven, zonnen of tuinieren. De ligging biedt volop privacy, terwijl je toch verbonden bent met de buurt.
De waarborgsom/bankgarantie is 10% van de koopsom. De koper dient deze, indien de verkoper en koper dit overeenkomen, binnen 2 weken nadat het financieringsvoorbehoud is verlopen bij de desbetreffende notaris te deponeren.
Ter bescherming van de belangen van zowel koper als ook verkoper wordt uitdrukkelijk gesteld dat een koopovereenkomst met betrekking tot deze onroerende zaak eerst dan tot stand komt nadat koper en verkoper de koopovereenkomst hebben getekend (schriftelijkheidsvereiste).
Indien c.v.ketel en/of warmwatervoorziening een huurtoestel is, dient koper de huurovereenkomst over te nemen.
Alle door ons kantoor verstrekte informatie omtrent onroerende zaken, moet beschouwd worden als een uitnodiging om in onderhandeling te treden, en is geheel vrijblijvend! Alle vermelde maten en afmetingen zijn slechts bij benadering. Aan deze beperkte info kunnen geen rechten worden ontleend. Indien in enige documentatie of op enige website informatie staat die niet overeen komt met de werkelijkheid, dan geldt de feitelijke situatie waarin de woning zich bevindt, zoals koper deze tijdens de bezichtiging heeft kunnen waarnemen, en wordt de woning in deze feitelijke situatie/staat verkocht. Een (eventueel) bijgevoegde plattegrond dient uitsluitend als globale indicatie/visualisatie. Hieraan kunnen uitdrukkelijk geen rechten worden ontleend.
De makelaar Roy Ubachs nodigt u uit voor een bezichtiging.
Leuk om te weten
- Bouwjaar: 1972 (conform BAG), perceel: 536 m² (conform kadaster);
- Woonoppervlakte woning: ca. 113 m² (NEN 2580 meetrapport aanwezig);
- Inpandige kelder/ garage;
- Houten kozijnen;
- Energielabel F;
- Aanvaarding in overleg.
ALLE AFMETINGN ZIJN TERUG TE VINDEN OP DE PLATTEGRONDEN!
INDELING:
Niveau -1:
De woning beschikt over een praktische kelderruimte met meerdere functies. Hier bevinden zich de aansluitpunten voor wasmachine en droger, een diepvriesaansluiting en de opstelling van de cv-ketel. De inpandige garage is bereikbaar via een kantelpoort en biedt plaats voor één auto. Perfect voor wie houdt van extra opslagruimte of een hobbyruimte aan huis.
Niveau 0:
Via een trappetje aan de voorzijde bereik je de overdekte entree van de woning. In de hal tref je rechts het betegelde toilet met wastafeltje, ernaast een garderobenis met kapstok. Aan de linkerzijde bevinden zich de meterkast (vernieuwd begin 2025) en het alarmkastje. Vanuit de hal heb je toegang tot alle belangrijke leefruimtes.
De woonkamer is speels ingedeeld in een gezellige U-vorm met een betegelde vloer en sfeervolle spotverlichting. In het zitgedeelte zorgt de open haard voor een warme ambiance. Vanuit de woonkamer is er een directe doorgang naar de achtertuin via een tuindeur – ideaal voor wie binnen en buiten graag met elkaar verbindt.
Via een klein tussenportaal bereik je de badkamer, de keuken en de trap naar boven. De badkamer is voorzien van een ligbad met doucheaansluiting, aparte douche, tweede toilet en wastafel.
De keuken is betegeld en uitgerust met moderne apparatuur: inductiekookplaat, afzuigkap, koelkast, combimagnetron en vaatwasser. Ook vanuit de keuken is er toegang tot de tuin via een aparte buitendeur.
Niveau 1:
Op de verdieping bevinden zich twee slaapkamers met houten vloeren. Eén kamer wordt momenteel gebruikt als kleedruimte, de andere als slaapkamer. De verdieping biedt mogelijkheden voor uitbreiding of herinrichting naar eigen wens.
Tuin:
De fraai aangelegde tuin is bereikbaar vanuit zowel de woonkamer, de keuken als via beide kanten van de woning met een poort. De tuin bestaat uit een betegeld terras, een gazon en groenborders – een ideale plek voor buitenleven, zonnen of tuinieren. De ligging biedt volop privacy, terwijl je toch verbonden bent met de buurt.
De waarborgsom/bankgarantie is 10% van de koopsom. De koper dient deze, indien de verkoper en koper dit overeenkomen, binnen 2 weken nadat het financieringsvoorbehoud is verlopen bij de desbetreffende notaris te deponeren.
Ter bescherming van de belangen van zowel koper als ook verkoper wordt uitdrukkelijk gesteld dat een koopovereenkomst met betrekking tot deze onroerende zaak eerst dan tot stand komt nadat koper en verkoper de koopovereenkomst hebben getekend (schriftelijkheidsvereiste).
Indien c.v.ketel en/of warmwatervoorziening een huurtoestel is, dient koper de huurovereenkomst over te nemen.
Alle door ons kantoor verstrekte informatie omtrent onroerende zaken, moet beschouwd worden als een uitnodiging om in onderhandeling te treden, en is geheel vrijblijvend! Alle vermelde maten en afmetingen zijn slechts bij benadering. Aan deze beperkte info kunnen geen rechten worden ontleend. Indien in enige documentatie of op enige website informatie staat die niet overeen komt met de werkelijkheid, dan geldt de feitelijke situatie waarin de woning zich bevindt, zoals koper deze tijdens de bezichtiging heeft kunnen waarnemen, en wordt de woning in deze feitelijke situatie/staat verkocht. Een (eventueel) bijgevoegde plattegrond dient uitsluitend als globale indicatie/visualisatie. Hieraan kunnen uitdrukkelijk geen rechten worden ontleend.
De makelaar Roy Ubachs nodigt u uit voor een bezichtiging.
+ Read more
- Read less
Construction: {{
product.build_year }}
Construction: {{ product.build_period.start }} -
{{ product.build_period.end }}
House
, Bungalow
{{ product.rooms }} rooms
{{ product.bedrooms
}} bedrooms
Living space: {{
product.living_space }} m²
Plot: {{
product.plot_surface }} m²
Energy class: {{ product.energy_class }}
Energy index: {{ product.energy_index }}
Characteristics
{{ field.label }}
{{ field.value }}
+ Read more
{{ field.label }}
{{ field.value }}
- Read less
{{ product.company.name }}
Contact us
{{ product.company.phone.replace('-', ' ').substr(0, 7) }}...
{{ product.company.phone.replace('-', ' ') }}
Share:
Date