Sold
€ {{ product.price.replace(/\B(?=(\d{4})+(?!\d))/g, ".") }} {{ __(product.price_condition) }}
Photo’s
{{ product.images.length }}
Floorplan
{{ product.plans.length }}
360° photo’s {{ product.panoramas.length }}
Video’s {{ product.videos.length }}
Maps
All media
House for sale Loysonstraat 44 Eygelshoven
€ {{ product.price.replace(/\B(?=(\d{4})+(?!\d))/g, ".") }} {{ __(product.price_condition) }}
Sold
Description
Ben je op zoek naar een geheel gerenoveerde, instapklare woning op een rustige locatie met veel ruimte én comfort? Dan is Loysonstraat 44 in Eygelshoven zeker een bezichtiging waard! Deze verrassend ruime woning beschikt over drie slaapkamers, garage, moderne badkamer én een heerlijke tuin met overkapping (Wintertuin). Bovendien zijn veel belangrijke zaken recent vernieuwd, wat zorgt voor jarenlang woonplezier.
Gelegen in de bebouwde kom biedt deze woning veel rust en dankzij de nabijheid van de Buitenring zit je in een mum van tijd op de belangrijkste uitvalswegen richting binnen- en buitenland.
Diverse bosgebieden zijn gelegen in de nabij omgeving.
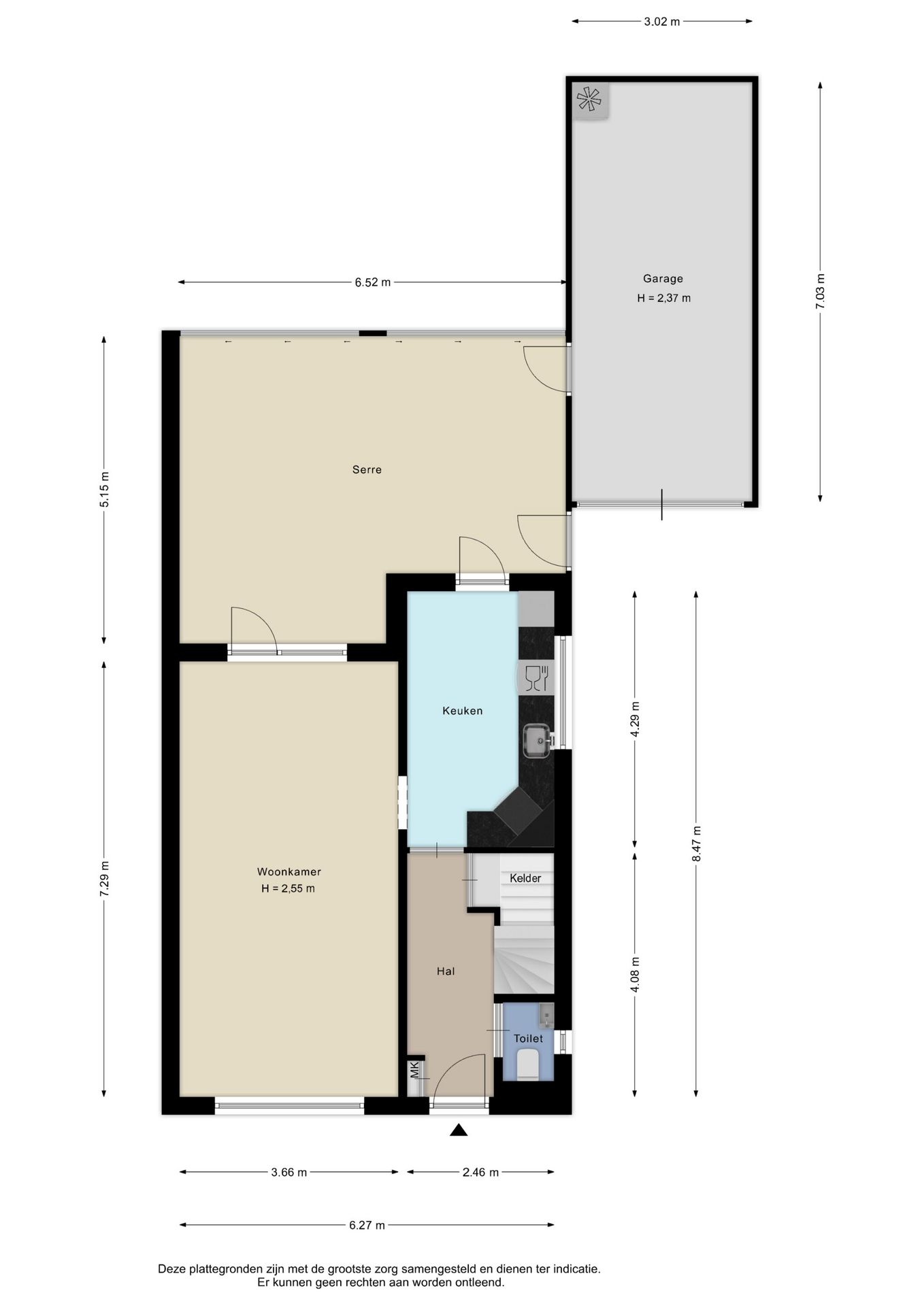
Alle maten van ruimtes vindt u terug in de plattegronden!
Leuk om te weten:
Verbeteringen afgelopen 5 jaar:
2020:
-Benedenverdieping en hal/overloop nieuw gestuct en woning is volledig geschilderd.
-Deur vanuit de hal naar de woonkamer dicht gemaakt.
-Nieuwe laminaatvloeren boven en beneden incl. plinten.
-Traprenovatie en trapleuningen vernieuwd en RVS afrastering overloop op maat laten maken.
-Glazen schuifpuien in overkapping geplaatst.
-Schuttingen geplaatst.
-Rolluiken op slaapkamer met balkon geplaatst.
2021/2022:
-Airco’s (woonkamer en slaapkamer) geïnstalleerd.
-Badkamer en toilet volledig vernieuwd. Incl. nieuwe inbouwreservoirs + nieuwe afvoer + nieuwe waterleidingen.
-Kozijn en raam op badkamer vernieuwd.
2024:
-CV ketel vernieuwd.
2025:
-Schilderwerk houten kozijnen en deuren.
-Zonnepanelen gereinigd.
Overig:
-20 zonnepanelen (eigendom), die zorgen voor zeer lage energiekosten!.
-De woning is grotendeels voorzien van kunststof kozijnen met dubbele beglazing.
-De woning is grotendeels voorzien van rolluiken.
-Energielabel: B.
Indeling:
Souterrain:
Geheel “onderkelderd verdeeld in twee ruimtes, alwaar standplaats c.v. (eigendom, 2024) en aansluiting wasautomaat.
De keldervloer is geheel betegeld en de ruimte is verwarmd.
De kelder is voorzien van een infraroodcabine.
Begane grond:
Groene voortuin met naastgelegen oprit (geschikt voor meerdere auto’s).
Entree met meterkast en toiletruimte met hangend closet en fonteintje. Woonkamer met veel lichtinval, airco en verdeeld in een eet en zitgedeelte. Halfopen keuken voorzien van moderne keukeninstallatie incl. apparatuur: keramische kookplaat, afzuigkap, magnetron, combi-oven (vernieuwd in 2024), koel-vriescombinatie (vernieuwd in 2021) en vaatwasser (vernieuwd in 2020).
Gehele begane grond voorzien van een nieuwe laminaat vloer. Overdekt terras wat kan worden dichtgemaakt doormiddel van fraaie glazenwanden.
Geheel omsloten tuin met nieuwe schuttingen, vijver, gazon, en toegang tot garage en zij- ingang naar de oprit.
Garage voorzien van elektrisch bedienbare sectionaalpoort.
Eerste verdieping:
Overloop met toegang tot drie slaapkamers en luxe badkamer,
De luxe badkamer is ingericht met een inloopdouche, regendouche, toilet, wastafel in meubel en spiegel.
Balkon loggia aan achterzijde, 3.60 m breed.
De waarborgsom/bankgarantie is 10% van de koopsom. De koper dient deze, indien de verkoper en koper dit overeenkomen, binnen 2 weken nadat het financieringsvoorbehoud is verlopen bij de desbetreffende notaris te deponeren.
Ter bescherming van de belangen van zowel koper als ook verkoper wordt uitdrukkelijk gesteld dat een koopovereenkomst met betrekking tot deze onroerende zaak eerst dan tot stand komt nadat koper en verkoper de koopovereenkomst hebben getekend (schriftelijkheidsvereiste).
Indien c.v.ketel en/of warmwatervoorziening een huurtoestel is, dient koper de huurovereenkomst over te nemen.
Alle door ons kantoor verstrekte informatie omtrent onroerende zaken, moet beschouwd worden als een uitnodiging om in onderhandeling te treden, en is geheel vrijblijvend! Alle vermelde maten en afmetingen zijn slechts bij benadering. Aan deze beperkte info kunnen geen rechten worden ontleend. Indien in enige documentatie of op enige website informatie staat die niet overeen komt met de werkelijkheid, dan geldt de feitelijke situatie waarin de woning zich bevindt, zoals koper deze tijdens de bezichtiging heeft kunnen waarnemen, en wordt de woning in deze feitelijke situatie/staat verkocht. Een (eventueel) bijgevoegde plattegrond dient uitsluitend als globale indicatie/visualisatie. Hieraan kunnen uitdrukkelijk geen rechten worden ontleend.
De makelaar Roy Ubachs nodigt u uit voor een bezichtiging.
Gelegen in de bebouwde kom biedt deze woning veel rust en dankzij de nabijheid van de Buitenring zit je in een mum van tijd op de belangrijkste uitvalswegen richting binnen- en buitenland.
Diverse bosgebieden zijn gelegen in de nabij omgeving.
Alle maten van ruimtes vindt u terug in de plattegronden!
Leuk om te weten:
Verbeteringen afgelopen 5 jaar:
2020:
-Benedenverdieping en hal/overloop nieuw gestuct en woning is volledig geschilderd.
-Deur vanuit de hal naar de woonkamer dicht gemaakt.
-Nieuwe laminaatvloeren boven en beneden incl. plinten.
-Traprenovatie en trapleuningen vernieuwd en RVS afrastering overloop op maat laten maken.
-Glazen schuifpuien in overkapping geplaatst.
-Schuttingen geplaatst.
-Rolluiken op slaapkamer met balkon geplaatst.
2021/2022:
-Airco’s (woonkamer en slaapkamer) geïnstalleerd.
-Badkamer en toilet volledig vernieuwd. Incl. nieuwe inbouwreservoirs + nieuwe afvoer + nieuwe waterleidingen.
-Kozijn en raam op badkamer vernieuwd.
2024:
-CV ketel vernieuwd.
2025:
-Schilderwerk houten kozijnen en deuren.
-Zonnepanelen gereinigd.
Overig:
-20 zonnepanelen (eigendom), die zorgen voor zeer lage energiekosten!.
-De woning is grotendeels voorzien van kunststof kozijnen met dubbele beglazing.
-De woning is grotendeels voorzien van rolluiken.
-Energielabel: B.
Indeling:
Souterrain:
Geheel “onderkelderd verdeeld in twee ruimtes, alwaar standplaats c.v. (eigendom, 2024) en aansluiting wasautomaat.
De keldervloer is geheel betegeld en de ruimte is verwarmd.
De kelder is voorzien van een infraroodcabine.
Begane grond:
Groene voortuin met naastgelegen oprit (geschikt voor meerdere auto’s).
Entree met meterkast en toiletruimte met hangend closet en fonteintje. Woonkamer met veel lichtinval, airco en verdeeld in een eet en zitgedeelte. Halfopen keuken voorzien van moderne keukeninstallatie incl. apparatuur: keramische kookplaat, afzuigkap, magnetron, combi-oven (vernieuwd in 2024), koel-vriescombinatie (vernieuwd in 2021) en vaatwasser (vernieuwd in 2020).
Gehele begane grond voorzien van een nieuwe laminaat vloer. Overdekt terras wat kan worden dichtgemaakt doormiddel van fraaie glazenwanden.
Geheel omsloten tuin met nieuwe schuttingen, vijver, gazon, en toegang tot garage en zij- ingang naar de oprit.
Garage voorzien van elektrisch bedienbare sectionaalpoort.
Eerste verdieping:
Overloop met toegang tot drie slaapkamers en luxe badkamer,
De luxe badkamer is ingericht met een inloopdouche, regendouche, toilet, wastafel in meubel en spiegel.
Balkon loggia aan achterzijde, 3.60 m breed.
De waarborgsom/bankgarantie is 10% van de koopsom. De koper dient deze, indien de verkoper en koper dit overeenkomen, binnen 2 weken nadat het financieringsvoorbehoud is verlopen bij de desbetreffende notaris te deponeren.
Ter bescherming van de belangen van zowel koper als ook verkoper wordt uitdrukkelijk gesteld dat een koopovereenkomst met betrekking tot deze onroerende zaak eerst dan tot stand komt nadat koper en verkoper de koopovereenkomst hebben getekend (schriftelijkheidsvereiste).
Indien c.v.ketel en/of warmwatervoorziening een huurtoestel is, dient koper de huurovereenkomst over te nemen.
Alle door ons kantoor verstrekte informatie omtrent onroerende zaken, moet beschouwd worden als een uitnodiging om in onderhandeling te treden, en is geheel vrijblijvend! Alle vermelde maten en afmetingen zijn slechts bij benadering. Aan deze beperkte info kunnen geen rechten worden ontleend. Indien in enige documentatie of op enige website informatie staat die niet overeen komt met de werkelijkheid, dan geldt de feitelijke situatie waarin de woning zich bevindt, zoals koper deze tijdens de bezichtiging heeft kunnen waarnemen, en wordt de woning in deze feitelijke situatie/staat verkocht. Een (eventueel) bijgevoegde plattegrond dient uitsluitend als globale indicatie/visualisatie. Hieraan kunnen uitdrukkelijk geen rechten worden ontleend.
De makelaar Roy Ubachs nodigt u uit voor een bezichtiging.
+ Read more
- Read less
Construction: {{
product.build_year }}
Construction: {{ product.build_period.start }} -
{{ product.build_period.end }}
House
, Single-family house
{{ product.rooms }} rooms
{{ product.bedrooms
}} bedrooms
Living space: {{
product.living_space }} m²
Plot: {{
product.plot_surface }} m²
Energy class: {{ product.energy_class }}
Energy index: {{ product.energy_index }}
Characteristics
{{ field.label }}
{{ field.value }}
+ Read more
{{ field.label }}
{{ field.value }}
- Read less
{{ product.company.name }}
Contact us
{{ product.company.phone.replace('-', ' ').substr(0, 7) }}...
{{ product.company.phone.replace('-', ' ') }}
Share:
Date