Sold under reservation
€ {{ product.price.replace(/\B(?=(\d{4})+(?!\d))/g, ".") }} {{ __(product.price_condition) }}
Photo’s
{{ product.images.length }}
Floorplan
{{ product.plans.length }}
360° photo’s {{ product.panoramas.length }}
Video’s {{ product.videos.length }}
Maps
All media

House for sale Heesbergstraat 15 Heerlen

€ {{ product.price.replace(/\B(?=(\d{4})+(?!\d))/g, ".") }} {{ __(product.price_condition) }}
Sold under reservation

Description

Op prominente lokatie in Heerlen Zuid gelegen vrijstaande villa met o.a.: ruim garage/kelders, woonkamer met riante woon/leefkeuken, kantoorruimte, 4 slaapkamers, luxe badkamer, zolder en ruime omsloten tuin met verwarmd zwembad. Voorzien van 14 zonnepanelen, energielabel B.

INDELING

Souterain

Vanuit de hal en oprit te bereiken ruime kelders en inpandige garage; kelders zijn ideaal geschikt voor de hobbyist.
Hal met toegang tot alle vertrekken
Berging 1 (3.61 x 3.00 m).
Berging 2 (3.61 x 2.44 m).
Riante inpandige garage (13.36 x 3.55 m en 5.35 x 3.61 m) geschikt voor meerdere voertuigen.

Begane grond

Dubbele oprit (voor garage en links van de woning, ideaal voor het stallen van camper/caravan). Middels dubbele deur toegang tot de hal (5.18 x 3.59 m) met doorlopende natuurstenen vloer, garderobe en toiletruimte. Middels dubbele deur toegang tot de riante lichte woonkamer (8.24 x 7.36/3.68 m) eveneens voorzien van van natuurstenen vloer met vloerverwarming met fraaie gashaard, middels schuifpui toegang tot het terras en achtertuin; vanuit de woonkamer toegang tot de kantoorruimte/slaapkamer (4.11 x 3.57 m) met muurkast.
Riante woon/leef keuken (5.35 x 5.23 en 4.69 x 2.91 m) eveneens voorzien van vloerverwarming met optimaal tuincontact voorzien houtkachel en luxe keuken installatie in U-opstelling (landhuisstijl) met natuurstenen werkblad en voldoende kastruimte, inbouw apparatuur te weten: vaatwasser, magnetron, vrieskast en koelkast vrijstaand 6-pits gasfornuis met afzuigkap en Amerikaanse koelkast; ruime onderkasten met koelkast in eetgedeelte met optimaal tuincontact en houtkachel, middels 2 schuifpuien toegang tot de ruime omsloten tuin met terras met zonwering, kunstgraszone, fraaie planten borders en middels warmtepomp verwarmd zwembad. Vanuit de linker oprit tevens toegang tot de omsloten tuin.

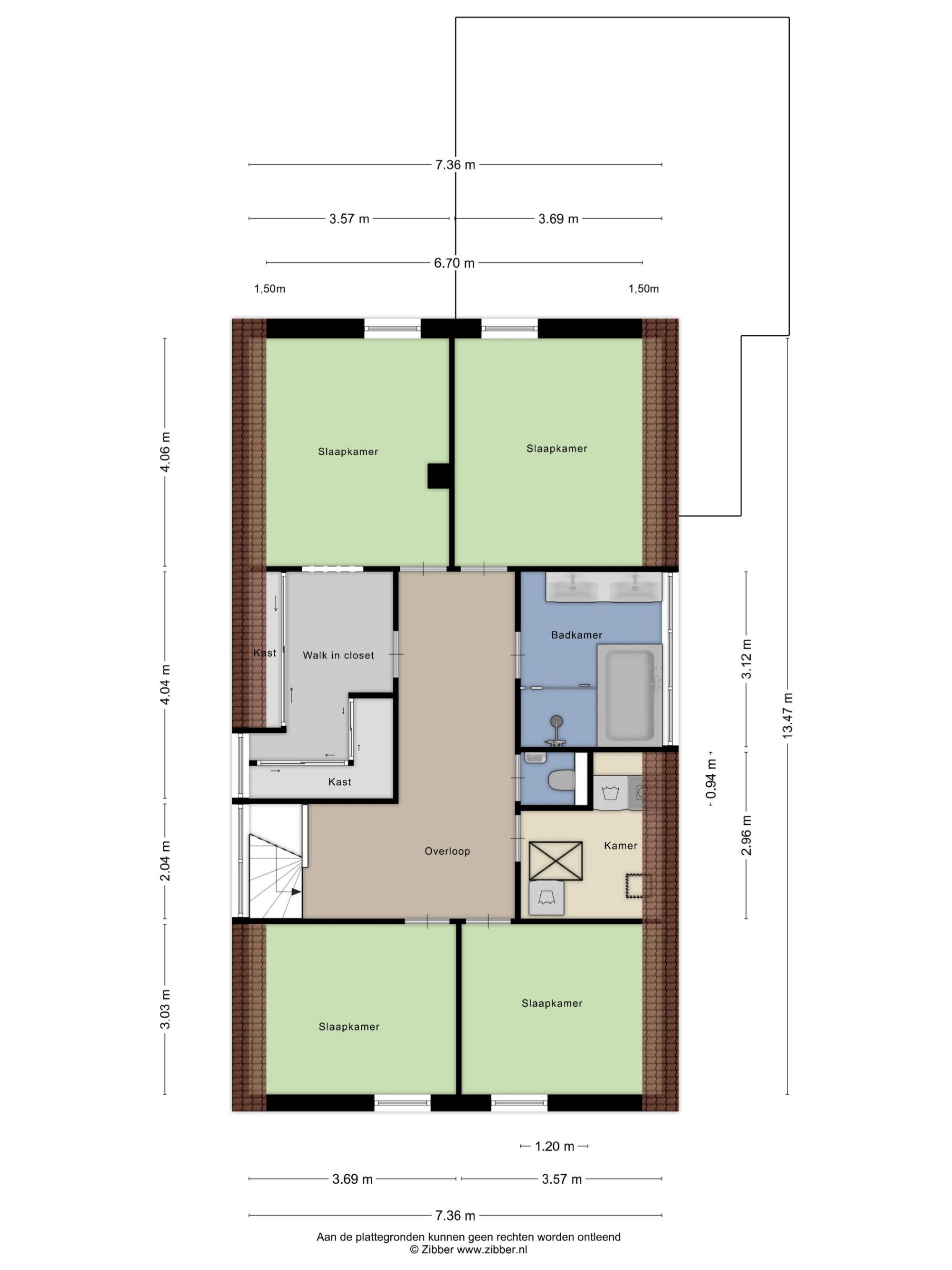
Eerste verdieping

Overloop met toegang tot alle vertrekken
Slaapkamer 1 (4.06 x 3.57 m) met walk in closet (4.04 x 2.60 m).
Slaapkamer 2 (4.06 x 3.69 m).
Slaapkamer 3 (3.69 x 3.03 m).
Slaapkamer 4 (3.57 x 3.03 m).
Wasruimte alwaar witgoed aansluiting en toegang tot de zolder.
Badkamer (3.12 x 2.70 m) met 2 persoons whirlpool, inloopdouche en badmeubel met dubbele wastafel.

Tweede verdieping

Middels vlizotrap te bereiken zolder (12.00 x 2.38 m) alwaar CV installatie en warmwater boiler (Nefit - eigendom).

ALGEMEEN
Gelegen nabij uitvalswegen, scholen en winkels.
Geheel onderkelderd ideaal voor de hobbyist.
Extra ruime oprit links naast de woning, ideaal voor het stallen van camper/caravan.
Genoemde maten zijn circa maten.
+ Read more
- Read less
Construction: {{ product.build_year }}
Construction: {{ product.build_period.start }} - {{ product.build_period.end }}
House , Country house
{{ product.rooms }} rooms
{{ product.bedrooms }} bedrooms
Living space: {{ product.living_space }} m²
Plot: {{ product.plot_surface }} m²
Energy class:    {{ product.energy_class }}
Energy index: {{ product.energy_index }}

Characteristics

{{ field.label }}
{{ field.value }}

{{ field.label }}
{{ field.value }}
{{ product.company.name }}
Contact us
{{ product.company.phone.replace('-', ' ').substr(0, 7) }}...
{{ product.company.phone.replace('-', ' ') }}
Share:

Similar objects in the neighborhood