Sold
€ {{ product.price.replace(/\B(?=(\d{4})+(?!\d))/g, ".") }} {{ __(product.price_condition) }}
Photo’s
{{ product.images.length }}
Floorplan
{{ product.plans.length }}
360° photo’s {{ product.panoramas.length }}
Video’s {{ product.videos.length }}
Maps
All media
House for sale Oranjestraat 1 Hoensbroek
€ {{ product.price.replace(/\B(?=(\d{4})+(?!\d))/g, ".") }} {{ __(product.price_condition) }}
Sold
Description
Aan de rand van Hoensbroek gelegen tussenwoning met o.a.: woonkamer met open keuken, 3 slaapkamers, moderne badkamer en omsloten achtertuin met buitenberging en achter ingang.
INDELING
Middels voortuin toegang tot de overdekte entree, hal met laminaatvloer, deels betegeld toilet met duo blok en fonteintje. Woonkamer (5.15 x 4.58 m) met bergkast in verbinding met open keuken (3.34 x 2.37 m) vv laminaat vloer, keukeninstallatie met diverse onder- en bovenkasten voorzien van 4-pits kookcomfort en afzuigkap. Beneden verdieping geheel voorzien van strakke stucwerk wand- en plafondafwerking. Vanuit de woonkamer toegang tot de geheel omsloten bestrate achtertuin met buitenberging (3.52 x 1.80 m) en achteringang.
Eerste verdieping
Slaapkamer 1 (4.49 x 5.22/4.17 m).
Slaapkamer 2 (3.27 x 2.37 m).
Geheel betegelde moderne badkamer (2.15 x 2.09 m) met bad en badmeubel met vaste wastafel.
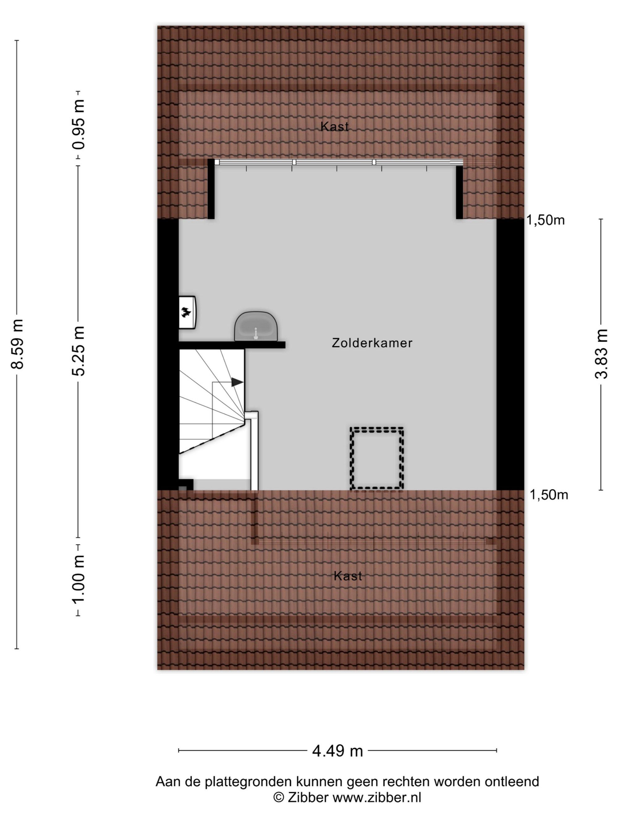
Tweede verdieping
Ruime zolderverdieping/slaapkamer (4.49 x 3.83 m met dakkapel aan achterzijde en Velux dakraam aan voorzijde met extra bergruimte in de dak schuinte en witgoed aansluiting.
Algemeen
Deels voorzien van rolluiken.
Gelegen aan de rand van Hoensbroek nabij uitvalswegen/snelweg.
Per direct beschikbaar.
Genoemde maten zijn circa maten
INDELING
Middels voortuin toegang tot de overdekte entree, hal met laminaatvloer, deels betegeld toilet met duo blok en fonteintje. Woonkamer (5.15 x 4.58 m) met bergkast in verbinding met open keuken (3.34 x 2.37 m) vv laminaat vloer, keukeninstallatie met diverse onder- en bovenkasten voorzien van 4-pits kookcomfort en afzuigkap. Beneden verdieping geheel voorzien van strakke stucwerk wand- en plafondafwerking. Vanuit de woonkamer toegang tot de geheel omsloten bestrate achtertuin met buitenberging (3.52 x 1.80 m) en achteringang.
Eerste verdieping
Slaapkamer 1 (4.49 x 5.22/4.17 m).
Slaapkamer 2 (3.27 x 2.37 m).
Geheel betegelde moderne badkamer (2.15 x 2.09 m) met bad en badmeubel met vaste wastafel.
Tweede verdieping
Ruime zolderverdieping/slaapkamer (4.49 x 3.83 m met dakkapel aan achterzijde en Velux dakraam aan voorzijde met extra bergruimte in de dak schuinte en witgoed aansluiting.
Algemeen
Deels voorzien van rolluiken.
Gelegen aan de rand van Hoensbroek nabij uitvalswegen/snelweg.
Per direct beschikbaar.
Genoemde maten zijn circa maten
+ Read more
- Read less
Construction: {{
product.build_year }}
Construction: {{ product.build_period.start }} -
{{ product.build_period.end }}
House
, Single-family house
{{ product.rooms }} rooms
{{ product.bedrooms
}} bedrooms
Living space: {{
product.living_space }} m²
Plot: {{
product.plot_surface }} m²
Energy class: {{ product.energy_class }}
Energy index: {{ product.energy_index }}
Characteristics
{{ field.label }}
{{ field.value }}
+ Read more
{{ field.label }}
{{ field.value }}
- Read less
{{ product.company.name }}
Contact us
{{ product.company.phone.replace('-', ' ').substr(0, 7) }}...
{{ product.company.phone.replace('-', ' ') }}
Share:
Date