Sold
€ {{ product.price.replace(/\B(?=(\d{4})+(?!\d))/g, ".") }} {{ __(product.price_condition) }}
Photo’s
{{ product.images.length }}
Floorplan
{{ product.plans.length }}
360° photo’s {{ product.panoramas.length }}
Video’s {{ product.videos.length }}
Maps
All media
House for sale Hoofdstraat 115 Hoensbroek
€ {{ product.price.replace(/\B(?=(\d{4})+(?!\d))/g, ".") }} {{ __(product.price_condition) }}
Sold
Description
Een pand met mogelijkheden: wonen én werken in hartje Hoensbroek. Op zoek naar een woning met karakter én een plek om jouw ondernemersdroom waar te maken? Dan is Hoofdstraat 115-117 in Hoensbroek precies wat je zoekt. Deze royale tussenwoning met voormalige winkelruimte biedt tal van gebruiksmogelijkheden, van ruime gezinswoning tot combinatie van wonen en werken. Gelegen aan een levendige straat, midden in het centrum, op loopafstand van winkels, voorzieningen én het station.
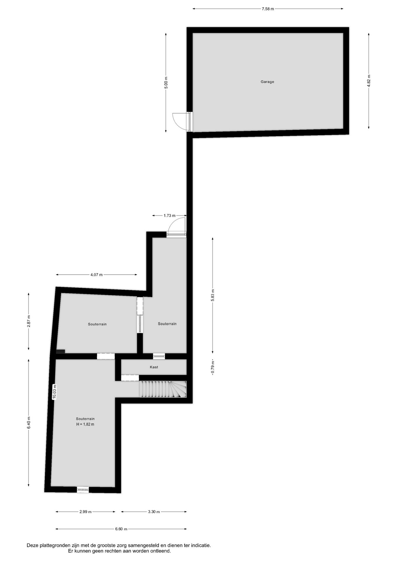
Souterrain:
3 ruimtes, ruime bergkast.
Begane grond:
Via de ruime entree stap je binnen in een voormalige winkel-/kantoorruimte die ideaal is voor praktijk aan huis, salon, atelier of thuiskantoor. De ruimte is licht en voorzien van grote raampartijen. Verder vind je op deze verdieping een eerste keuken en toegang tot een royale leefruimte aan de achterzijde, perfect als woon- of eetkamer. Een hal met trapopgang en toilet maakt de begane grond compleet. Via de achterzijde bereik je de ruime vrijstaande garage, ideaal voor je auto, opslag of als werkplaats.
Eerste verdieping:
Op de eerste verdieping bevinden zich meerdere slaapkamers, waarvan één zeer ruim, en een tweede keuken. Dit biedt mogelijkheden voor dubbele bewoning of voor het creëren van een extra leef verdieping met een eigen keukenblok. De badkamer is eenvoudig en functioneel, maar biedt ruimte om naar eigen wens te moderniseren.
Tweede verdieping:
De vaste trap leidt naar een royale zolderverdieping met veel potentie. Deze ruimte kan worden ingericht als extra slaapkamer, hobbyruimte of opslag. Met een beetje creativiteit maak je hier een volwaardige verdieping van.
Hoofdstraat 115-117 is een pand dat je gezien moet hebben. Of je nu op zoek bent naar ruimte, karakter, een thuis voor je gezin of een plek om te ondernemen – hier komen al je plannen samen onder één dak. Grijp je kans en maak snel een afspraak voor een bezichtiging!
Leuk om te weten:
- Woon- en werkruimte onder één dak
- Combinatie van twee huisnummers – potentieel als dubbele woning of multifunctionele bestemming
- Woning met drie woonlagen en twee keukens
- Vrijstaande garage aan de achterzijde van het perceel
- Gelegen in een gewilde en goed bereikbare woonwijk
- Treinstation en uitvalswegen nabij
- Betaalbaar en boordevol potentie!
- Bouwjaar: 1929 (conform BAG);
- Perceel: 95m² (conform kadaster);
- Woonoppervlakte ca. 187m² (NEN 2580 meetrapport aanwezig);
- Riante garage;
- Aanvaarding in overleg.
Interesse? Wij nemen graag de tijd voor u! Neem contact op via het contactformulier op Funda of op onze website en we laten u de woning graag zien.
Overige informatie
De gebruikelijke waarborgsom/bankgarantie is 10% van de koopsom. De koper dient deze, indien de verkoper en koper dit overeenkomen, binnen 2 weken nadat het financieringsvoorbehoud is verlopen bij de desbetreffende notaris te deponeren.
Schriftelijkheidsvereiste
Conform artikel 7:2 Burgerlijk Wetboek, is er pas sprake van een rechtsgeldige koopovereenkomst als de particuliere verkoper en de particuliere koper de koopovereenkomst hebben ondertekend. Een mondelinge overeenstemming tussen de particuliere verkoper en de particuliere koper is niet rechts- geldig.
Disclaimer
Alle door ons kantoor verstrekte informatie omtrent onroerende zaken, moet beschouwd worden als een uitnodiging om in onderhandeling te treden, en is geheel vrijblijvend! Alle vermelde maten en afmetingen zijn slechts bij benadering. Aan deze beperkte informatie kunnen geen rechten worden ontleend. Indien in enige documentatie of op enige website informatie staat die niet overeen komt met de werkelijkheid, dan geldt de feitelijke situatie waarin de woning zich bevindt, zoals koper deze tijdens de bezichtiging heeft kunnen waarnemen, en wordt de woning in deze feitelijke situatie/staat verkocht. Een (eventueel) bijgevoegde plattegrond dient uitsluitend als globale indicatie/visualisatie. Hieraan kunnen uitdrukkelijk geen rechten worden ontleend.
Uw makelaar Marco Hanssen nodigt u graag uit voor een bezichtiging.
Souterrain:
3 ruimtes, ruime bergkast.
Begane grond:
Via de ruime entree stap je binnen in een voormalige winkel-/kantoorruimte die ideaal is voor praktijk aan huis, salon, atelier of thuiskantoor. De ruimte is licht en voorzien van grote raampartijen. Verder vind je op deze verdieping een eerste keuken en toegang tot een royale leefruimte aan de achterzijde, perfect als woon- of eetkamer. Een hal met trapopgang en toilet maakt de begane grond compleet. Via de achterzijde bereik je de ruime vrijstaande garage, ideaal voor je auto, opslag of als werkplaats.
Eerste verdieping:
Op de eerste verdieping bevinden zich meerdere slaapkamers, waarvan één zeer ruim, en een tweede keuken. Dit biedt mogelijkheden voor dubbele bewoning of voor het creëren van een extra leef verdieping met een eigen keukenblok. De badkamer is eenvoudig en functioneel, maar biedt ruimte om naar eigen wens te moderniseren.
Tweede verdieping:
De vaste trap leidt naar een royale zolderverdieping met veel potentie. Deze ruimte kan worden ingericht als extra slaapkamer, hobbyruimte of opslag. Met een beetje creativiteit maak je hier een volwaardige verdieping van.
Hoofdstraat 115-117 is een pand dat je gezien moet hebben. Of je nu op zoek bent naar ruimte, karakter, een thuis voor je gezin of een plek om te ondernemen – hier komen al je plannen samen onder één dak. Grijp je kans en maak snel een afspraak voor een bezichtiging!
Leuk om te weten:
- Woon- en werkruimte onder één dak
- Combinatie van twee huisnummers – potentieel als dubbele woning of multifunctionele bestemming
- Woning met drie woonlagen en twee keukens
- Vrijstaande garage aan de achterzijde van het perceel
- Gelegen in een gewilde en goed bereikbare woonwijk
- Treinstation en uitvalswegen nabij
- Betaalbaar en boordevol potentie!
- Bouwjaar: 1929 (conform BAG);
- Perceel: 95m² (conform kadaster);
- Woonoppervlakte ca. 187m² (NEN 2580 meetrapport aanwezig);
- Riante garage;
- Aanvaarding in overleg.
Interesse? Wij nemen graag de tijd voor u! Neem contact op via het contactformulier op Funda of op onze website en we laten u de woning graag zien.
Overige informatie
De gebruikelijke waarborgsom/bankgarantie is 10% van de koopsom. De koper dient deze, indien de verkoper en koper dit overeenkomen, binnen 2 weken nadat het financieringsvoorbehoud is verlopen bij de desbetreffende notaris te deponeren.
Schriftelijkheidsvereiste
Conform artikel 7:2 Burgerlijk Wetboek, is er pas sprake van een rechtsgeldige koopovereenkomst als de particuliere verkoper en de particuliere koper de koopovereenkomst hebben ondertekend. Een mondelinge overeenstemming tussen de particuliere verkoper en de particuliere koper is niet rechts- geldig.
Disclaimer
Alle door ons kantoor verstrekte informatie omtrent onroerende zaken, moet beschouwd worden als een uitnodiging om in onderhandeling te treden, en is geheel vrijblijvend! Alle vermelde maten en afmetingen zijn slechts bij benadering. Aan deze beperkte informatie kunnen geen rechten worden ontleend. Indien in enige documentatie of op enige website informatie staat die niet overeen komt met de werkelijkheid, dan geldt de feitelijke situatie waarin de woning zich bevindt, zoals koper deze tijdens de bezichtiging heeft kunnen waarnemen, en wordt de woning in deze feitelijke situatie/staat verkocht. Een (eventueel) bijgevoegde plattegrond dient uitsluitend als globale indicatie/visualisatie. Hieraan kunnen uitdrukkelijk geen rechten worden ontleend.
Uw makelaar Marco Hanssen nodigt u graag uit voor een bezichtiging.
+ Read more
- Read less
Construction: {{
product.build_year }}
Construction: {{ product.build_period.start }} -
{{ product.build_period.end }}
House
, Single-family house
{{ product.rooms }} rooms
{{ product.bedrooms
}} bedrooms
Living space: {{
product.living_space }} m²
Plot: {{
product.plot_surface }} m²
Energy class: {{ product.energy_class }}
Energy index: {{ product.energy_index }}
Characteristics
{{ field.label }}
{{ field.value }}
+ Read more
{{ field.label }}
{{ field.value }}
- Read less
{{ product.company.name }}
Contact us
{{ product.company.phone.replace('-', ' ').substr(0, 7) }}...
{{ product.company.phone.replace('-', ' ') }}
Share:
Date