Sold under reservation
€ {{ product.price.replace(/\B(?=(\d{4})+(?!\d))/g, ".") }} {{ __(product.price_condition) }}
Photo’s
{{ product.images.length }}
Floorplan
{{ product.plans.length }}
360° photo’s {{ product.panoramas.length }}
Video’s {{ product.videos.length }}
Maps
All media

House for sale Frisostraat 46 Hoensbroek

€ {{ product.price.replace(/\B(?=(\d{4})+(?!\d))/g, ".") }} {{ __(product.price_condition) }}
Sold under reservation

Description

Instapklaar gerenoveerd en uitgebouwd half vrijstaand woonhuis met grote garage (incl. smeerput) en circa 30m diepe tuin met houten tuinhuis!

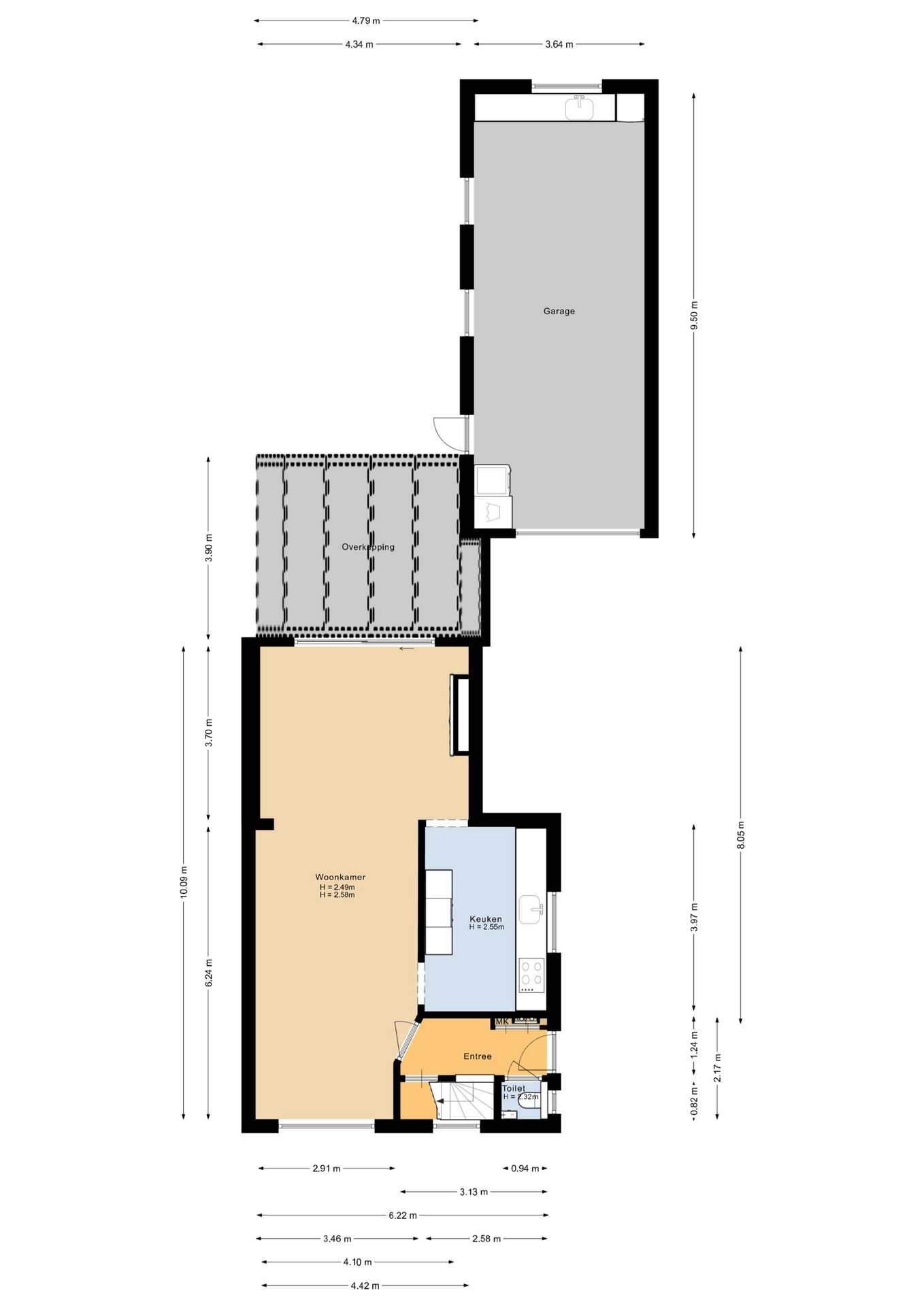
Indeling:
Kelder:
Plafondhoogte: 1.83m
Provisieruimte.

Begane grond:
Hal/entree v.v. plavuizenvloer, Moderne betegelde toiletruimte met fonteintje, Meterkast (vernieuwd).
Riante L-woonkamer v.v. fraaie parketlaminaatvloer van maar liefst 9.50m diep (incl. aanbouw), airconditioning en moderne sfeerhaard en royale schuifpui naar het royale overdekte terras en de mooi aangelegde tuin met achtergelegen houten tuinhuis.
Halfopen keuken v.v. moderne hoogwaardige aanbouwkeuken incl. inbouwapparatuur, te weten, vaatwasser, koel/vriescombinatie, inductiekookplaat en design wasemkap en v.v. plavuizenvloer.
Zeer ruime achtergelegen stenen garage (9.50m diep) inclusief smeerput, elektrische sectionaalpoort, keukenblok en aansluitpunten voor wasmachine en droger.

1e verdieping:
De gehele verdieping is voorzien van h/h houten kozijnwerk met dubbele beglazing en grotendeels rolluiken.
Overloop v.v. laminaatvloer.
Slaapkamer 1 v.v. laminaatvloer en muurkast
Slaapkamer 2 v.v. laminaatvloer, airconditioning en rolluiken.
Slaapkamer/kleedkamer 3 v.v. laminaatvloer en rolluiken
Geheel betegelde doucheruimte v.v. wastafelmeubel en douche.

2e verdieping :
Via vlizotrap te bereiken geïsoleerde bergzolder met standplaats c.v.-combi (eigendom, bwj. 1999)


- Bouwjaar: 1952
- Woonopp: ca. 95m2
- Bruto inhoud woonhuis: 416m3
- Dakisolatie
- Compleet v.v. dubbel glas in ged .kunststof, aluminium en hardhouten kozijnwerk.
- C.v-combi installatie (eigendom, 1999)
- Airconditioning
- Zonnepanelen (eigendom, 11 stuks)
- Energienota €65,- p/mnd.!
- Perceel: 395m2
- Achtertuin: ca. 30m1 diep



Ter bescherming van de belangen van zowel koper als verkoper, wordt uitdrukkelijk gesteld dat een koopovereenkomst met betrekking tot deze onroerende zaak eerst dan tot stand komt nadat koper en verkoper de koopovereenkomst hebben getekend (“schriftelijkheidsvereiste”).

Indien er in de woning huurtoestellen aanwezig zijn zoals CV-ketel, boiler, zonnepanelen, mechanische ventilatie etc. dan dienen deze door de koper te worden overgenomen.
De termijn die wordt opgenomen voor eventuele (overeengekomen) ontbindende voorwaarden (bv. Financiering) is in de regel 4 tot 6 weken na het sluiten van de mondelinge wilsovereenkomst.

De waarborgsom/bankgarantie is 10% van de koopsom. De koper dient deze 3 dagen ná het vervallen van de ontbindende voorwaarden bij de desbetreffende notaris te deponeren.

Koper is te allen tijde gerechtigd voor eigen rekening een bouwkundige keuring te (laten) verrichten dan wel andere adviseurs te raadplegen teneinde een goed inzicht te verkrijgen over de staat van onderhoud.

Deze informatie is door ons, Zuyderhuys Makelaardij met de nodige zorgvuldigheid samengesteld. Onzerzijds wordt echter geen enkele aansprakelijkheid aanvaard voor enige onvolledigheid, onjuist of anderszins, dan wel de gevolgen daarvan. Alle opgegeven maten en oppervlakten zijn indicatief.
+ Read more
- Read less
Construction: {{ product.build_year }}
Construction: {{ product.build_period.start }} - {{ product.build_period.end }}
House , Single-family house
{{ product.rooms }} rooms
{{ product.bedrooms }} bedrooms
Living space: {{ product.living_space }} m²
Plot: {{ product.plot_surface }} m²
Energy class:    {{ product.energy_class }}
Energy index: {{ product.energy_index }}

Characteristics

{{ field.label }}
{{ field.value }}

{{ field.label }}
{{ field.value }}
{{ product.company.name }}
Contact us
{{ product.company.phone.replace('-', ' ').substr(0, 7) }}...
{{ product.company.phone.replace('-', ' ') }}
Share:

Similar objects in the neighborhood