Sold
€ {{ product.price.replace(/\B(?=(\d{4})+(?!\d))/g, ".") }} {{ __(product.price_condition) }}
Photo’s
{{ product.images.length }}
Floorplan
{{ product.plans.length }}
360° photo’s {{ product.panoramas.length }}
Video’s {{ product.videos.length }}
Maps
All media

House for sale Julianastraat 4 Hoensbroek

€ {{ product.price.replace(/\B(?=(\d{4})+(?!\d))/g, ".") }} {{ __(product.price_condition) }}
Sold

Description

WELKOM BIJ JULIANASTRAAT 4 IN HOENSBROEK!

Aan de geliefde Julianastraat in Hoensbroek ligt deze karaktervolle twee-onder-een-kapwoning op een uitzonderlijk royaal perceel, waar ruimte, sfeer en potentie samenkomen. Het pand ademt authenticiteit en herbergt tal van klassieke elementen, zoals glas-in-loodramen, een sfeervolle erker en stijlvolle details die de warme uitstraling van deze woning onderstrepen.

De ruime woonkamer is aan de voorzijde voorzien van een gezellige zithoek met erker en glas-in-loodramen, waardoor het daglicht op een fraaie manier binnenvalt. De centrale eetkamer vormt het hart van het huis en beschikt over dubbele openslaande tuindeuren naar de aangrenzende tuinkamer.

In de gesloten keukenruimte bevindt zich een praktische inbouwkeuken in hoekopstelling, compleet met apparatuur. De tuinkamer heeft dankzij de dakkoepels een overvloed aan licht en biedt direct toegang tot de diepe achtertuin.

Op de begane grond bevindt zich tevens een tweede badkamer met inloopdouche, wastafel, toilet en witgoedaansluitingen – ideaal voor personen met een beperking of voor wie gelijkvloers wonen wenst.

De verdieping telt drie ruime slaapkamers. De geheel betegelde badkamer is voorzien van een ligbad, douche, wastafel, derde toilet en muurkast.

De zolder, bereikbaar via een vaste trap, biedt volop bergruimte en de mogelijkheid tot het creëren van een vierde slaapkamer.

Daarnaast beschikt de woning over een kelder met provisie- en opslagruimte en een aangebouwde stenen garage met elektrisch bedienbare sectionaalpoort. Op de ruime oprit is plaats voor meerdere voertuigen.

De achtertuin is een oase van rust met een terras, borders, een houten tuinhuis en een riant achterliggend perceel dat naar eigen wens multifunctioneel ingericht kan worden – bijvoorbeeld als speelveld, moestuin of groene parkachtige tuin.

De woning is deels voorzien van kunststof kozijnen met dubbele beglazing en rolluiken, eenvoudige dakisolatie, een Radson CV-ketel en een Inventum elektrische boiler. Het energielabel is F, waardoor er volop mogelijkheden zijn voor verdere verduurzaming naar eigen inzicht.

De ligging is uitstekend: in een populaire woonomgeving nabij het centrum van Hoensbroek, op loopafstand van Kasteel Hoensbroek, een vijver en wandelgebied. Alle voorzieningen zoals scholen, winkels, sportclubs en restaurants liggen binnen handbereik. De woning is bovendien goed bereikbaar via openbaar vervoer en belangrijke uitvalswegen richting Maastricht, Aken, Eindhoven en het Duitse achterland.

Julianastraat 4 in Hoensbroek biedt de unieke kans om te wonen op een ruim perceel met karakter, comfort en toekomstmogelijkheden – een huis met een ziel én ruimte om nieuwe woondromen te realiseren.

Neem vandaag nog contact met ons op voor het plannen van een bezichtiging!


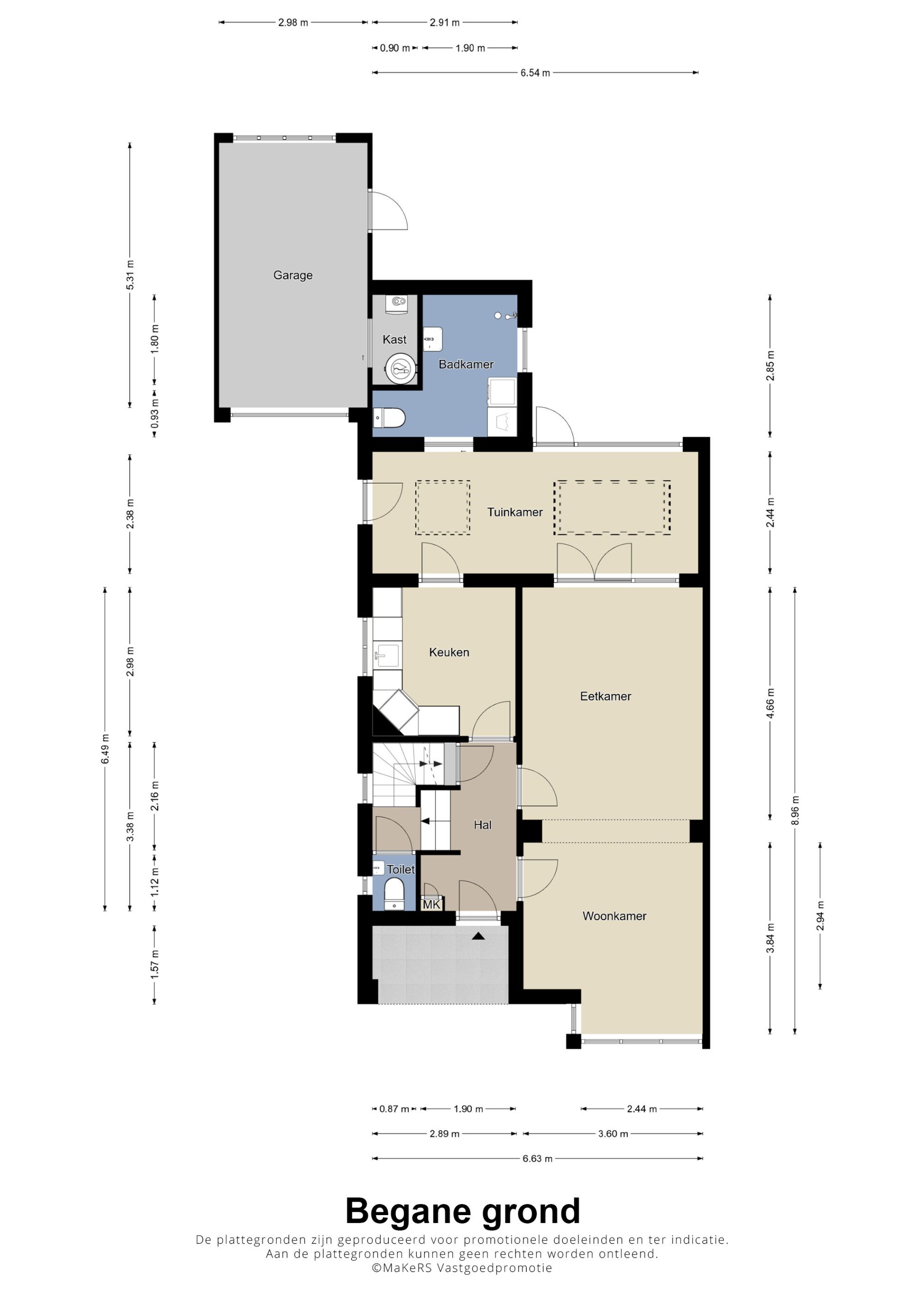
INDELING:

KELDER:
Een voorraadkelder met provisie- en opslagruimte.

BEGANE GROND:
Hal/Entree, trappenhuis naar de kelder en de verdieping. Geheel betegeld gastentoilet met staand closet en fonteintje. Meterkast voorzien van een 3 groepsinstallatie en aardlekschakelaar. Toegang tot de woonkamer en keuken.

Woonkamer met aan de voorzijde gelegen zithoek, voorzien van audio-/visuele-aansluitingen en sfeervolle authentieke erker met glas-in-lood ramen. Centraal geplaatste eetkamer met dubbel openslaande tuindeuren naar de achtergelegen tuinkamer en doorgang naar de keuken.

Een gesloten keukenruimte met een klassieke inbouwkeuken in hoekopstelling, voorzien van apparatuur, te weten: 4 zones keramische kookplaat / afzuigkap / elektrische oven / wasbak / werkblad en veel opbergruimte. Loopdeur naar de tuinkamer

Aan de achterzijde van de woning gelegen aanbouw met royale tuinkamer, waar de dakkoepels zorgen voor veel lichtinval en er is een loopdeur naar naar de tweede badkamer en achtertuin.

Er is een badkamer voor personen met een beperking op de begane grond, voorzien van een wastafel, toilet en inloopdouche. Ook zijn hier de witgoedaansluitingen voor wasmachine en droger.

Naastgelegen aangebouwde stenen garage voorzien van een elektrisch bedienbare sectionaal poort. In de stookruimte is de standplaats voor de Radson CV-Ketel (Eigendom / Bouwjaar 1985) en de Inventum elektrische boiler voor de warmwatervoorziening. De voorgelegen oprit biedt parkeergelegenheid aan meerdere voertuigen.

Diepe achtertuin met toegang vanuit de garage en de tuinkamer. Ruim terras, borders met aanplanting en vrijstaand houten tuinhuis. Royaal achtergelegen perceel met naar voorkeur aan te leggen groenvoorziening, als speelveld voor de kinderen, een moestuin of andere hobby doeleinden.

VERDIEPING:
Overloop met toegang tot de slaapkamers, de badkamer en trappenhuis naar de 2e verdieping.

Aan de rechter voorzijde gesitueerde slaapkamer. De naastgelegen kamer is voorzien van een muurkast en biedt toegang tot de vaste trap naar de zolder.

De ruime hoofdslaapkamer bevindt zich rechtsachter.

Een geheel betegeld badkamer biedt ruimte voor een ligbad / douche /vaste wastafel / een derde toilet en muurkast met opbergmogelijkheden.

ZOLDER:
Ruime bergzolder onder de eenvoudig geïsoleerde dakconstructie voorzien van een dakkapel, met de mogelijkheid een vierde slaapkamer te realiseren. Toegankelijk via een vaste trap.


BIJZONDERHEDEN:
* OP ZEER ROYAAL PECEEL GELEGEN TWEE-ONDER-EEN-KAP-WONING MET GARAGE
* GELEGEN IN POPULAIRE EN GELIEFDE WOONOMGEVING
* WOONKAMER MET ZITHOEK EN SFEERVOLLE ERKER MET GLAS-IN-LOOD AAN DE VOORZIJDE
* CENTRAAL GEPLAATSTE EETKAMER MET DUBBELE OPENSLAANDE DEUREN NAAR DE TUINKAMER
* GESLOTEN KEUKENRUIMTE VOORZIEN VAN EEN INBOUWKEUKEN MET APPARATUUR
* TUINKAMER MET VEEL LICHTINVAL VIA DE DAKKOEPELS
* TWEEDE BADKAMER MET WASTAFEL, TOILET EN INLOOPDOUCHE OP DE BEGANE GROND
* 3 RUIME SLAAPKAMERS OP DE VERDIEPING
* ROYALE GEHEEL BETEGELDE BADKAMER MET LIGBAD, DOUCHE, WASTAFEL EN DERDE TOILET
* BERGZOLDER ONDER DE EENVOUDGEISOLEERDE DAKCONSTRUCTIE MET DAKKAPEL
* MOGELIJKHEID TOT HET REALISEREN VAN EEN VIERDE SLAAPKAMER
* DIEPE ACHTERTUIN MET TERRAS, BORDERS MET AANPLANTING EN HOUTEN TUINHUIS
* AANGEBOUWDE STENEN GARAGE MET ELEKTRISCHE SECTIONAALPOORT
* VOORGELEGEN OPRIT MET PARKEERGELENHEID VOOR MEERDERE VOERTUIGEN
* GOTENDEELS KUNSTSTOF KOZIJNEN MET DUBBELE BEGLAZING
* DEELS ROLLUIKEN
* EENVOUDIGE DAKISOLATIE
* RADSON CV-KETEL (BOUWJAAR 1985 / EIGENDOM)
* INVENTUM ELEKTRISCHE BOILER VOOR DE WARMWATERVOORZIENING
* ENERGIELABEL "F"


HET PAND HEEFT EEN EENVOUDIG GEISOLEERDE DAKCONSTRUCTIE MET DAKKAPEL. GROTENDEELS KUNSTSTOF KOZIJEN MET DUBBELE BEGLAZING. DEELS VOORZIEN VAN ROLLUIKEN. EEN RADSON CV-KETEL (BOUWJAAR 1985) EN EEN INVENTUM ELEKTRISCHE BOILER VOOR DE WARMWATERVOORZIENING. EEN SFEERVOLLE WOONKAMER MET ERKER EN DUBBELE OPENSLAANDE DEUREN NAAR DE TUINKAMER. EEN GESLOTEN KEUKEN MET EEN INBOUWKEUKEN IN HOEKOPSTELLING. EEN TWEEDE BADKAMER VOOR PERSONEN MET EEN BEPERKING OP DE BEGANE GROND. 3 RUIME SLAAPKAMER OP DE VERDIEPING EN EEN BADKAMER MET DOUCHE, LIGBAD, WASTAFEL EN EEN DERDE TOILET. EEN BERZOLDER, BEREIKBAAR MIDDELS EEN VASTE TRAP, BIEDT DE MOGELIJKHEID TOT EEN VIERDE SLAAPKAMER. AANGEBOUWDE STENEN GARAGE EN RUIME OPRIT VOOR MEERDERE VOERTUIGEN. ROYAAL PERCEEL MET MULTIFUNTIONELE MOGELIJKHEDEN.

HET GEHEEL IS GELEGEN NABIJ DE DORPSKERN VAN HOENSBROEK. ALLE VOORZIENINGEN IN DE DIRECTE OMGEVING O.A. WINKELS / BASISSCHOOL / VOORTGEZET ONDERWIJS / BIBLIOTHEEK / DIVERSE SPORTFACILITEITEN / RESTAURANTS / DIVERSE SUPERMARKTEN / HET HISTORISCHE "KASTEEL HOENSBROEK" EN EEN WANDELGEBIED MET VIJVER ZIJN OP LOOPAFSTAND BEREIKBAAR.

GOEDE BEREIKBAARHEID MIDDELS OPENBAAR VERVOER, VIA UITVALSWEGEN, DE PARKSTADRING (N300) EN DE AUTOSNELWEG A76 RICHTING MAASTRICHT, AKEN EN EINDHOVEN ALSMEDE HET DUITSE ACHTERLAND.


Ter bescherming van de belangen van zowel koper als ook verkoper wordt uitdrukkelijk gesteld dat een koopovereenkomst met betrekking tot deze onroerende zaak eerst dan tot stand komt nadat koper en verkoper de koopovereenkomst hebben ondertekend (schriftelijkheidsvereiste).

De waarborgsom/bankgarantie is 10% van de koopsom. De koper dient deze binnen 2 weken nadat het financieringsvoorbehoud is verlopen bij de desbetreffende notaris te deponeren.

Indien cv-ketel en/of warmwatervoorziening een huurtoestel is, dient koper de huurovereenkomst over te nemen. Dit geldt ook indien de zonnepanelen op huurbasis aanwezig zijn.

Alle door ons kantoor verstrekte informatie omtrent onroerende zaken, moet beschouwd worden als een uitnodiging om in onderhandeling te treden en is geheel vrijblijvend! Alle vermelde maten en afmetingen zijn slechts bij benadering. Een (eventueel) bijgevoegde plattegrond dient uitsluitend als globale indicatie/visualisatie. Aan deze beperkte informatie
kunnen geen rechten worden ontleend.

Indien in enige documentatie of op enige website informatie staat die niet overeen komt met de werkelijkheid, dan geldt de feitelijke situatie waarin de woning zich bevindt, zoals koper deze tijdens de bezichtiging heeft kunnen waarnemen, en wordt de woning in deze feitelijke situatie/staat verkocht.
+ Read more
- Read less
Construction: {{ product.build_year }}
Construction: {{ product.build_period.start }} - {{ product.build_period.end }}
House , Single-family house
{{ product.rooms }} rooms
{{ product.bedrooms }} bedrooms
Living space: {{ product.living_space }} m²
Plot: {{ product.plot_surface }} m²
Energy class:    {{ product.energy_class }}
Energy index: {{ product.energy_index }}

Characteristics

{{ field.label }}
{{ field.value }}

{{ field.label }}
{{ field.value }}
{{ product.company.name }}
Contact us
{{ product.company.phone.replace('-', ' ').substr(0, 7) }}...
{{ product.company.phone.replace('-', ' ') }}
Share:

Similar objects in the neighborhood