Photo’s
{{ product.images.length }}
Floorplan
{{ product.plans.length }}
360° photo’s {{ product.panoramas.length }}
Video’s {{ product.videos.length }}
Maps
All media
House for sale Nuienplein 22 Hunsel
€ {{ product.price.replace(/\B(?=(\d{4})+(?!\d))/g, ".") }} {{ __(product.price_condition) }}
Sold under reservation
Description
In een rustige en geliefde woonwijk in Hunsel ligt deze verrassend ruime halfvrijstaande woning. De woning biedt een lichte L-vormige woonkamer, een open keuken, drie comfortabele slaapkamers, een praktische zolderverdieping en een fijne achtertuin met garage en overkapping. Dankzij de verzorgde afwerking en het complete voorzieningenniveau is dit een heerlijke plek om direct te gaan wonen.
Indeling:
Begane grond:
Via de hal bereikt u het moderne toilet, de meterkast, de trapopgang en de lichte L-vormige woonkamer. De ruimte is sfeervol en eigentijds afgewerkt met een luxe tegelvloer en beschikt over airconditioning. De open keuken sluit hier perfect op aan en is uitgerust met moderne inbouwapparatuur: een inductiekookplaat, RVS afzuigkap, koelkast, combi-oven en vaatwasser. Via de loopdeur loopt u direct de tuin in — praktisch en comfortabel in het dagelijks gebruik.
Eerste verdieping:
De overloop met airconditioning biedt toegang tot drie ruime en lichte slaapkamers, afgewerkt met een laminaatvloer. De badkamer is stijlvol vernieuwd en beschikt over een moderne regendouche, een fraai badkamermeubel, een toilet en aansluitingen voor wassen en drogen. Een muurkast op de overloop zorgt voor extra bergruimte.
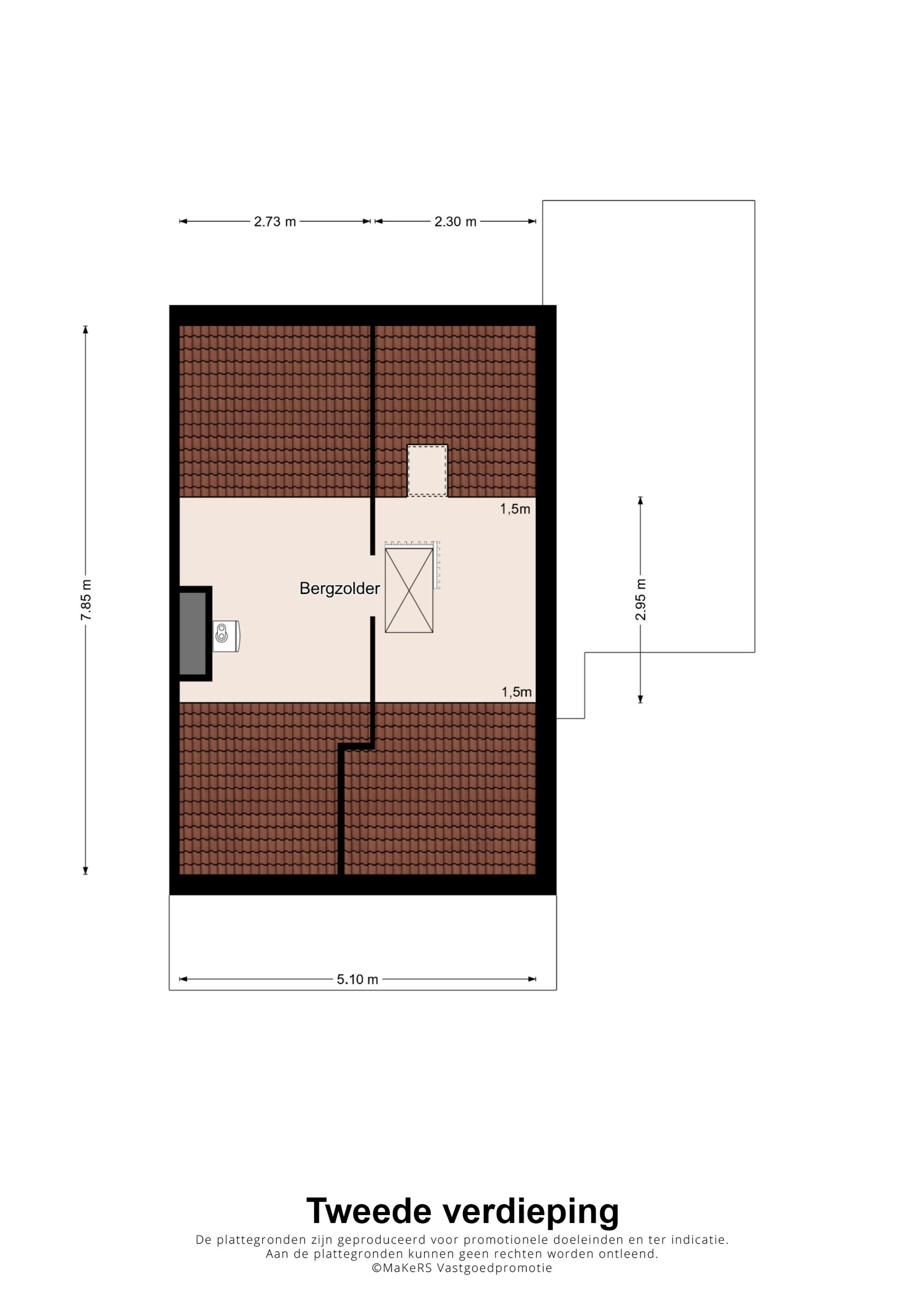
Tweede verdieping:
Via een vlizotrap bereikt u de royale zolderverdieping met dakraam. Deze biedt volop opbergmogelijkheden en indien gewenst kan hier een vaste trap worden geplaatst om een extra kamer te realiseren. Tevens bevindt zich hier de opstelling van de cv-installatie (Nefit Trendline HRC 30 CW5, eigendom, ca. 2023).
Exterieur:
Er is een onderhoudsvriendelijke voortuin en een oprit die leidt naar de praktische garage, voorzien van vloerverwarming, elektra, de witgoedaansluitingen en een loopdeur naar de achtertuin. De achtertuin is recent opnieuw ingericht en voorzien van een royale overkapping, terras, kunstgazon en borders. De ligging op het noordoosten zorgt voor een prettige combinatie van zon en schaduw gedurende de dag.
Bijzonderheden:
De woning is grotendeels gemoderniseerd en voorzien van dak- en spouwisolatie, kunststof kozijnen met HR++ glas, een vernieuwde badkamer, airconditioning op beide verdiepingen, 9 zonnepanelen en een vernieuwde cv-installatie. De tuin is opnieuw ingericht met een royale overkapping en de garage beschikt over een geïsoleerde vloer met vloerverwarming. De aanwezigheid van elektrische rolluiken aan de voorzijde op de begane grond en vrijwel alle ramen op de verdieping maakt het wooncomfort compleet.
Ligging:
Nuienplein 22 ligt in een rustige wijk met een groen- en speelvoorziening aan de voorzijde, nabij de dorpskern, de basisschool en diverse voorzieningen. Dankzij de strategische ligging bereikt u binnen korte tijd de A2 richting Eindhoven en Maastricht. Ook Weert en Roermond liggen op korte afstand.
Interactief:
Kijk ook op onze site om de plattegronden van de woning te bekijken en interactief in te kunnen richten met uw eigen meubel opstelling.
Indeling:
Begane grond:
Via de hal bereikt u het moderne toilet, de meterkast, de trapopgang en de lichte L-vormige woonkamer. De ruimte is sfeervol en eigentijds afgewerkt met een luxe tegelvloer en beschikt over airconditioning. De open keuken sluit hier perfect op aan en is uitgerust met moderne inbouwapparatuur: een inductiekookplaat, RVS afzuigkap, koelkast, combi-oven en vaatwasser. Via de loopdeur loopt u direct de tuin in — praktisch en comfortabel in het dagelijks gebruik.
Eerste verdieping:
De overloop met airconditioning biedt toegang tot drie ruime en lichte slaapkamers, afgewerkt met een laminaatvloer. De badkamer is stijlvol vernieuwd en beschikt over een moderne regendouche, een fraai badkamermeubel, een toilet en aansluitingen voor wassen en drogen. Een muurkast op de overloop zorgt voor extra bergruimte.
Tweede verdieping:
Via een vlizotrap bereikt u de royale zolderverdieping met dakraam. Deze biedt volop opbergmogelijkheden en indien gewenst kan hier een vaste trap worden geplaatst om een extra kamer te realiseren. Tevens bevindt zich hier de opstelling van de cv-installatie (Nefit Trendline HRC 30 CW5, eigendom, ca. 2023).
Exterieur:
Er is een onderhoudsvriendelijke voortuin en een oprit die leidt naar de praktische garage, voorzien van vloerverwarming, elektra, de witgoedaansluitingen en een loopdeur naar de achtertuin. De achtertuin is recent opnieuw ingericht en voorzien van een royale overkapping, terras, kunstgazon en borders. De ligging op het noordoosten zorgt voor een prettige combinatie van zon en schaduw gedurende de dag.
Bijzonderheden:
De woning is grotendeels gemoderniseerd en voorzien van dak- en spouwisolatie, kunststof kozijnen met HR++ glas, een vernieuwde badkamer, airconditioning op beide verdiepingen, 9 zonnepanelen en een vernieuwde cv-installatie. De tuin is opnieuw ingericht met een royale overkapping en de garage beschikt over een geïsoleerde vloer met vloerverwarming. De aanwezigheid van elektrische rolluiken aan de voorzijde op de begane grond en vrijwel alle ramen op de verdieping maakt het wooncomfort compleet.
Ligging:
Nuienplein 22 ligt in een rustige wijk met een groen- en speelvoorziening aan de voorzijde, nabij de dorpskern, de basisschool en diverse voorzieningen. Dankzij de strategische ligging bereikt u binnen korte tijd de A2 richting Eindhoven en Maastricht. Ook Weert en Roermond liggen op korte afstand.
Interactief:
Kijk ook op onze site om de plattegronden van de woning te bekijken en interactief in te kunnen richten met uw eigen meubel opstelling.
+ Read more
- Read less
Construction: {{
product.build_year }}
Construction: {{ product.build_period.start }} -
{{ product.build_period.end }}
House
, Single-family house
{{ product.rooms }} rooms
{{ product.bedrooms
}} bedrooms
Living space: {{
product.living_space }} m²
Plot: {{
product.plot_surface }} m²
Energy class: {{ product.energy_class }}
Energy index: {{ product.energy_index }}
Characteristics
{{ field.label }}
{{ field.value }}
+ Read more
{{ field.label }}
{{ field.value }}
- Read less
{{ product.company.name }}
Contact us
{{ product.company.phone.replace('-', ' ').substr(0, 7) }}...
{{ product.company.phone.replace('-', ' ') }}
Share:
Photo’s of Nuienplein 22 6013 SC Hunsel
Date





























