Available
€ {{ product.price.replace(/\B(?=(\d{4})+(?!\d))/g, ".") }} {{ __(product.price_condition) }}
Photo’s
{{ product.images.length }}
Floorplan
{{ product.plans.length }}
360° photo’s {{ product.panoramas.length }}
Video’s {{ product.videos.length }}
Maps
All media
House for sale Niersprinkstraat 61 Kerkrade
€ {{ product.price.replace(/\B(?=(\d{4})+(?!\d))/g, ".") }} {{ __(product.price_condition) }}
Available
Description
Aan de rand van het centrum van Kerkrade gelegen ruime tussen woning met o.a.: inpandige garage en ruime kelders, woonkamer met open keuken. 4 slaapkamers en badkamer. Woning dient opgefrist te worden.
INDELING:
Souterrain:
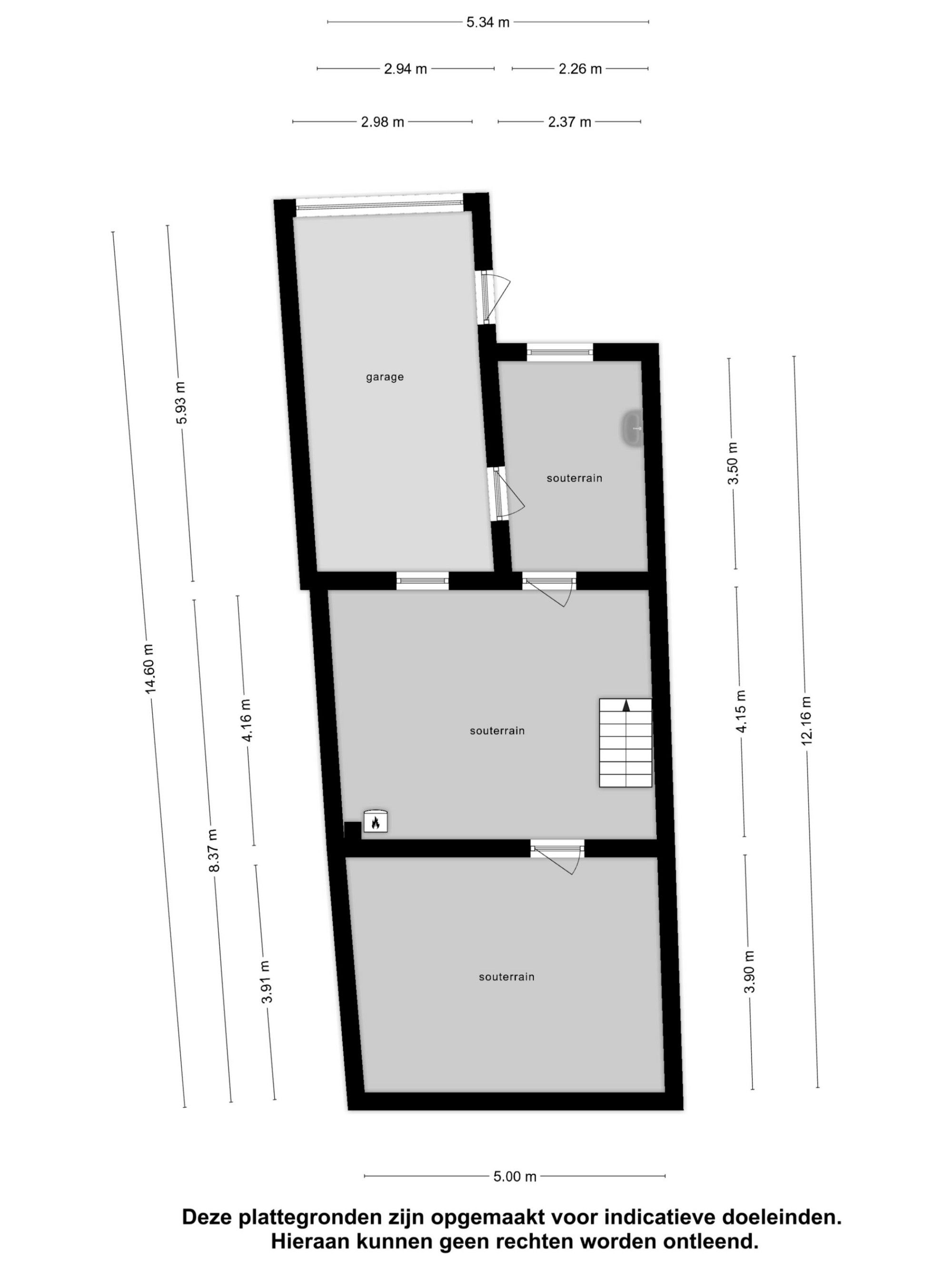
Vanuit de Koestraat te bereiken garage (5.93 x 2.98 m) met toegang tot alle kelders. Tevens vanuit de hal te bereiken kelders:
Kelder 1 (5.00 x 3.91 m).
Kelder 2 (5.34 x 4.16 m) alwaar CV installatie (gehuurd).
Kelder 3 (3.90 x 2.37 m) met vaste wastafel met toegang tot de inpandige garage.
Begane grond:
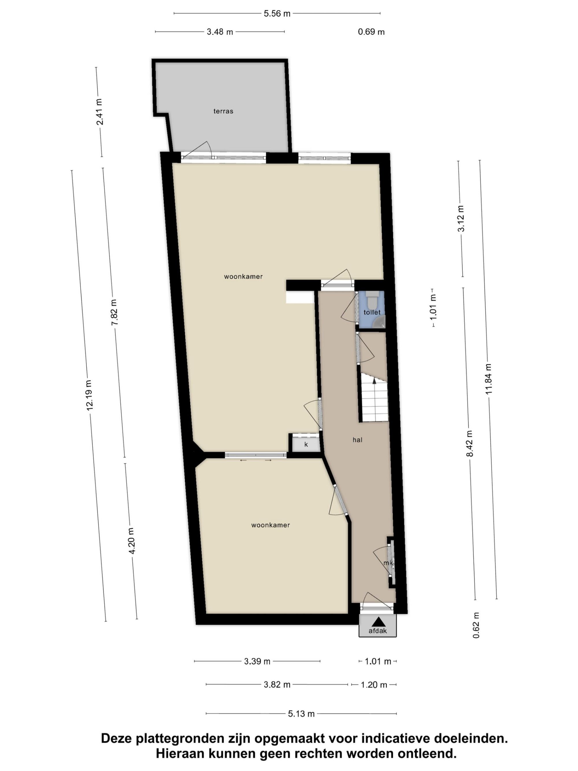
Middels entree toegang tot de ruime hal met toiletruimte en toegang tot de kelder.
Woonkamer en-suite (4.20 x 3.82 m en 7.82 x 5.56/3.39 m) met open keuken (zonder installatie). Vanuit de woonkamer toegang tot het balkon (3.48 x 2.41 m).
Eerste verdieping:
Middels bordestrap toegang tot de overloop toegang tot alle vertrekken
Slaapkamer 1 (3.65 x 4.17 m) met muurkast.
Slaapkamer 2 3.91 x 3.04 m).
Badkamer (3.96 x 1.99 m) met bad vaste wastafel en 2e toilet.
Tweede verdieping:
Middels bordestrap toegang tot de overloop
Slaapkamer 3 (6.84 x3.49/2.75 m) met fraaie nokhoogte en opengewerkt spant.
Slaapkamer 4 (4.19 x 2.21 m).
Derde verdieping:
Bergzolder.
ALGEMEEN
Woning heeft geen electra- en water aansluiting momenteel.
Woning dient opgefrist te worden.
Woning wordt verkocht met de clausule "as is where is".
Genoemde maten zijn circa maten.
INDELING:
Souterrain:
Vanuit de Koestraat te bereiken garage (5.93 x 2.98 m) met toegang tot alle kelders. Tevens vanuit de hal te bereiken kelders:
Kelder 1 (5.00 x 3.91 m).
Kelder 2 (5.34 x 4.16 m) alwaar CV installatie (gehuurd).
Kelder 3 (3.90 x 2.37 m) met vaste wastafel met toegang tot de inpandige garage.
Begane grond:
Middels entree toegang tot de ruime hal met toiletruimte en toegang tot de kelder.
Woonkamer en-suite (4.20 x 3.82 m en 7.82 x 5.56/3.39 m) met open keuken (zonder installatie). Vanuit de woonkamer toegang tot het balkon (3.48 x 2.41 m).
Eerste verdieping:
Middels bordestrap toegang tot de overloop toegang tot alle vertrekken
Slaapkamer 1 (3.65 x 4.17 m) met muurkast.
Slaapkamer 2 3.91 x 3.04 m).
Badkamer (3.96 x 1.99 m) met bad vaste wastafel en 2e toilet.
Tweede verdieping:
Middels bordestrap toegang tot de overloop
Slaapkamer 3 (6.84 x3.49/2.75 m) met fraaie nokhoogte en opengewerkt spant.
Slaapkamer 4 (4.19 x 2.21 m).
Derde verdieping:
Bergzolder.
ALGEMEEN
Woning heeft geen electra- en water aansluiting momenteel.
Woning dient opgefrist te worden.
Woning wordt verkocht met de clausule "as is where is".
Genoemde maten zijn circa maten.
+ Read more
- Read less
Construction: {{
product.build_year }}
Construction: {{ product.build_period.start }} -
{{ product.build_period.end }}
House
, Single-family house
{{ product.rooms }} rooms
{{ product.bedrooms
}} bedrooms
Living space: {{
product.living_space }} m²
Plot: {{
product.plot_surface }} m²
Energy class: {{ product.energy_class }}
Energy index: {{ product.energy_index }}
Characteristics
{{ field.label }}
{{ field.value }}
+ Read more
{{ field.label }}
{{ field.value }}
- Read less
{{ product.company.name }}
Contact us
{{ product.company.phone.replace('-', ' ').substr(0, 7) }}...
{{ product.company.phone.replace('-', ' ') }}
Share:
Date