Sold
€ {{ product.price.replace(/\B(?=(\d{4})+(?!\d))/g, ".") }} {{ __(product.price_condition) }}
Photo’s
{{ product.images.length }}
Floorplan
{{ product.plans.length }}
360° photo’s {{ product.panoramas.length }}
Video’s {{ product.videos.length }}
Maps
All media
House for sale Kleingraverstraat 167 Kerkrade
€ {{ product.price.replace(/\B(?=(\d{4})+(?!\d))/g, ".") }} {{ __(product.price_condition) }}
Sold
Description
Aan de Kleingraverstraat 167 in Kerkrade vind je deze charmante tussenwoning met veel leefruimte, een diepe tuin, ruime kelder én een garage. Met een woonoppervlakte van 112 m² op een royaal perceel van 330 m², is dit een ideale woning voor gezinnen of starters die op zoek zijn naar een karaktervol huis met volop mogelijkheden.
De woning is gelegen in het gezellige Kerkrade-West, op loopafstand van supermarkt, station én dichtbij uitvalswegen. Je geniet hier van rust, maar hebt alle voorzieningen binnen handbereik.
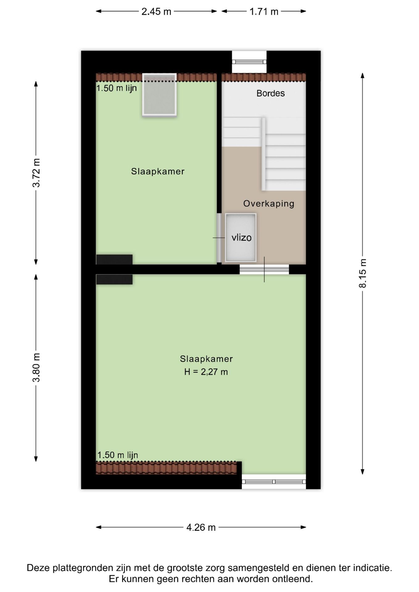
De maten van alle ruimtes vindt u terug in de plattegronden!
Leuk om te weten:
- Bouwjaar 1927 (conform BAG), eigen perceel: 330 m² (conform kadaster);
- Woonoppervlakte ca. 112m², overige inpandige ruimte ca. 56m², (meetrapport aanwezig);
- Inhoud: ca. 587m³;
- Energielabel F;
- Houten kozijnen, behalve kunststof kozijn in badkamer & serre;
- Grotendeels voorzien van rolluiken (woonkamer elektrisch);
- Cv-ketel (eigendom), recent een onderhoudsbeurt gehad;
- Garage met elektrische poort en oprit;
- Aanvaarding in overleg.
INDELING
Souterrain:
De woning beschikt over een ruim souterrain met drie praktische ruimtes. Hier vind je de cv-installatie, een wasruimte met aansluiting voor wasmachine en vriezer, én een extra kelderruimte – ideaal als provisiekelder of voor hobby's
Begane grond:
Via de voordeur stap je binnen in de hal met een nieuwe meterkast (2019). De hal geeft toegang tot de eerste verdieping en de woonkamer. De gezellige woonkamer is afgewerkt met laminaat en biedt een eet- en zitgedeelte. Een mooi detail is het doorzichtig glas-in-loodraam tussen de woonkamer en bijkeuken, dat zorgt voor een bijzondere lichtinval en authentieke sfeer. De voorzijde is voorzien van een automatisch rolluik.
De aangrenzende keuken is voorzien van moderne apparatuur: een inductiekookplaat (4-pits), koelkast, oven, vaatwasser. Vanuit de keuken heb je toegang tot het souterrain, de bijkeuken en de lichte, betegelde serre.
De serre geeft directe toegang tot het terras via recent geplaatste kunststof openslaande deuren. Hier vind je bovendien een volledig betegelde badkamer met douche, toilet en wastafel — ideaal voor logees of als extra badkamer.
1e verdieping:
Op de eerste verdieping bevindt zich een ruime slaapkamer met originele houten vloer. De moderne badkamer is volledig betegeld en uitgerust met een inloopdouche, een ligbad met douchekop, een strak wastafelmeubel, toilet en een designradiator. Op de overloop bevindt zich een praktische opbergkast. De handmatige rolluiken zorgen voor extra comfort. Een vaste trap leidt naar de tweede verdieping.
2e verdieping:
Een kleine overloop met bordes leidt naar twee extra slaapkamers. De slaapkamer aan de achterzijde is voorzien van laminaat. De slaapkamer aan de voorzijde heeft een novilon vloer en een sfeervol doorzichtig glas-in-loodraam, wat de ruimte een unieke uitstraling geeft.
Zolder:
Via een vlizotrap bereik je de bergzolder — ideaal voor het opbergen van seizoensspullen of overige zaken.
Tuin:
De buitenruimte is een van de grote pluspunten van deze woning. Vanuit de serre stap je op een ruim betegeld terras, perfect als zit- of eetgedeelte tijdens zonnige dagen. Een trap leidt je naar de lager gelegen tuin met een kiezelpad, gazon en een verzorgde groene heg.
Achterin de tuin bevindt zich een gedeeld achterompad, dat in vriendelijk onderling overleg wordt gebruikt door beide buren om toegang te krijgen tot hun eigen tuin. Zo blijft ieders privacy gewaarborgd én is de tuin praktisch bereikbaar.
Aan de achterzijde vind je bovendien een garage die direct aan de woning vastzit. Deze is voorzien van een elektrisch bedienbare poort met afstandsbediening, wat zorgt voor gemak en veiligheid. De voortuin is netjes aangelegd met een stukje groen en geeft de woning een verzorgde uitstraling.
De waarborgsom/bankgarantie is 10% van de koopsom. De koper dient deze, indien de verkoper en koper dit overeenkomen, binnen 2 weken nadat het financieringsvoorbehoud is verlopen bij de desbetreffende notaris te deponeren.
Ter bescherming van de belangen van zowel koper als ook verkoper wordt uitdrukkelijk gesteld dat een koopovereenkomst met betrekking tot deze onroerende zaak eerst dan tot stand komt nadat koper en verkoper de koopovereenkomst hebben getekend (schriftelijkheidsvereiste).
Indien c.v.ketel en/of warmwatervoorziening een huurtoestel is, dient koper de huurovereenkomst over te nemen.
Alle door ons kantoor verstrekte informatie omtrent onroerende zaken, moet beschouwd worden als een uitnodiging om in onderhandeling te treden, en is geheel vrijblijvend! Alle vermelde maten en afmetingen zijn slechts bij benadering. Aan deze beperkte info kunnen geen rechten worden ontleend. Indien in enige documentatie of op enige website informatie staat die niet overeen komt met de werkelijkheid, dan geldt de feitelijke situatie waarin de woning zich bevindt, zoals koper deze tijdens de bezichtiging heeft kunnen waarnemen, en wordt de woning in deze feitelijke situatie/staat verkocht. Een (eventueel) bijgevoegde plattegrond dient uitsluitend als globale indicatie/visualisatie. Hieraan kunnen uitdrukkelijk geen rechten worden ontleend.
De makelaar Roy Ubachs nodigt u uit voor een bezichtiging.
De woning is gelegen in het gezellige Kerkrade-West, op loopafstand van supermarkt, station én dichtbij uitvalswegen. Je geniet hier van rust, maar hebt alle voorzieningen binnen handbereik.
De maten van alle ruimtes vindt u terug in de plattegronden!
Leuk om te weten:
- Bouwjaar 1927 (conform BAG), eigen perceel: 330 m² (conform kadaster);
- Woonoppervlakte ca. 112m², overige inpandige ruimte ca. 56m², (meetrapport aanwezig);
- Inhoud: ca. 587m³;
- Energielabel F;
- Houten kozijnen, behalve kunststof kozijn in badkamer & serre;
- Grotendeels voorzien van rolluiken (woonkamer elektrisch);
- Cv-ketel (eigendom), recent een onderhoudsbeurt gehad;
- Garage met elektrische poort en oprit;
- Aanvaarding in overleg.
INDELING
Souterrain:
De woning beschikt over een ruim souterrain met drie praktische ruimtes. Hier vind je de cv-installatie, een wasruimte met aansluiting voor wasmachine en vriezer, én een extra kelderruimte – ideaal als provisiekelder of voor hobby's
Begane grond:
Via de voordeur stap je binnen in de hal met een nieuwe meterkast (2019). De hal geeft toegang tot de eerste verdieping en de woonkamer. De gezellige woonkamer is afgewerkt met laminaat en biedt een eet- en zitgedeelte. Een mooi detail is het doorzichtig glas-in-loodraam tussen de woonkamer en bijkeuken, dat zorgt voor een bijzondere lichtinval en authentieke sfeer. De voorzijde is voorzien van een automatisch rolluik.
De aangrenzende keuken is voorzien van moderne apparatuur: een inductiekookplaat (4-pits), koelkast, oven, vaatwasser. Vanuit de keuken heb je toegang tot het souterrain, de bijkeuken en de lichte, betegelde serre.
De serre geeft directe toegang tot het terras via recent geplaatste kunststof openslaande deuren. Hier vind je bovendien een volledig betegelde badkamer met douche, toilet en wastafel — ideaal voor logees of als extra badkamer.
1e verdieping:
Op de eerste verdieping bevindt zich een ruime slaapkamer met originele houten vloer. De moderne badkamer is volledig betegeld en uitgerust met een inloopdouche, een ligbad met douchekop, een strak wastafelmeubel, toilet en een designradiator. Op de overloop bevindt zich een praktische opbergkast. De handmatige rolluiken zorgen voor extra comfort. Een vaste trap leidt naar de tweede verdieping.
2e verdieping:
Een kleine overloop met bordes leidt naar twee extra slaapkamers. De slaapkamer aan de achterzijde is voorzien van laminaat. De slaapkamer aan de voorzijde heeft een novilon vloer en een sfeervol doorzichtig glas-in-loodraam, wat de ruimte een unieke uitstraling geeft.
Zolder:
Via een vlizotrap bereik je de bergzolder — ideaal voor het opbergen van seizoensspullen of overige zaken.
Tuin:
De buitenruimte is een van de grote pluspunten van deze woning. Vanuit de serre stap je op een ruim betegeld terras, perfect als zit- of eetgedeelte tijdens zonnige dagen. Een trap leidt je naar de lager gelegen tuin met een kiezelpad, gazon en een verzorgde groene heg.
Achterin de tuin bevindt zich een gedeeld achterompad, dat in vriendelijk onderling overleg wordt gebruikt door beide buren om toegang te krijgen tot hun eigen tuin. Zo blijft ieders privacy gewaarborgd én is de tuin praktisch bereikbaar.
Aan de achterzijde vind je bovendien een garage die direct aan de woning vastzit. Deze is voorzien van een elektrisch bedienbare poort met afstandsbediening, wat zorgt voor gemak en veiligheid. De voortuin is netjes aangelegd met een stukje groen en geeft de woning een verzorgde uitstraling.
De waarborgsom/bankgarantie is 10% van de koopsom. De koper dient deze, indien de verkoper en koper dit overeenkomen, binnen 2 weken nadat het financieringsvoorbehoud is verlopen bij de desbetreffende notaris te deponeren.
Ter bescherming van de belangen van zowel koper als ook verkoper wordt uitdrukkelijk gesteld dat een koopovereenkomst met betrekking tot deze onroerende zaak eerst dan tot stand komt nadat koper en verkoper de koopovereenkomst hebben getekend (schriftelijkheidsvereiste).
Indien c.v.ketel en/of warmwatervoorziening een huurtoestel is, dient koper de huurovereenkomst over te nemen.
Alle door ons kantoor verstrekte informatie omtrent onroerende zaken, moet beschouwd worden als een uitnodiging om in onderhandeling te treden, en is geheel vrijblijvend! Alle vermelde maten en afmetingen zijn slechts bij benadering. Aan deze beperkte info kunnen geen rechten worden ontleend. Indien in enige documentatie of op enige website informatie staat die niet overeen komt met de werkelijkheid, dan geldt de feitelijke situatie waarin de woning zich bevindt, zoals koper deze tijdens de bezichtiging heeft kunnen waarnemen, en wordt de woning in deze feitelijke situatie/staat verkocht. Een (eventueel) bijgevoegde plattegrond dient uitsluitend als globale indicatie/visualisatie. Hieraan kunnen uitdrukkelijk geen rechten worden ontleend.
De makelaar Roy Ubachs nodigt u uit voor een bezichtiging.
+ Read more
- Read less
Construction: {{
product.build_year }}
Construction: {{ product.build_period.start }} -
{{ product.build_period.end }}
House
, Single-family house
{{ product.rooms }} rooms
{{ product.bedrooms
}} bedrooms
Living space: {{
product.living_space }} m²
Plot: {{
product.plot_surface }} m²
Energy class: {{ product.energy_class }}
Energy index: {{ product.energy_index }}
Characteristics
{{ field.label }}
{{ field.value }}
+ Read more
{{ field.label }}
{{ field.value }}
- Read less
{{ product.company.name }}
Contact us
{{ product.company.phone.replace('-', ' ').substr(0, 7) }}...
{{ product.company.phone.replace('-', ' ') }}
Share:
Date