Sold
€ {{ product.price.replace(/\B(?=(\d{4})+(?!\d))/g, ".") }} {{ __(product.price_condition) }}
Photo’s
{{ product.images.length }}
Floorplan
{{ product.plans.length }}
360° photo’s {{ product.panoramas.length }}
Video’s {{ product.videos.length }}
Maps
All media
House for sale Op De Heugden 32 Landgraaf
€ {{ product.price.replace(/\B(?=(\d{4})+(?!\d))/g, ".") }} {{ __(product.price_condition) }}
Sold
Description
Op centrale plek in Schaesberg gelegen uitgebouwde charmante karakteristieke dertiger jaren woning met o.a.: oprit, ruime kelders, woonkamer ensuite, woon/leef keuken met dakterras, 4/5 slaapkamers, badkamer en omsloten tuin met zwembad. Energielabel C, na het opmaken van het energielabel zijn de gevels geïsoleerd en 5 zonnepanelen geplaatst.
INDELING
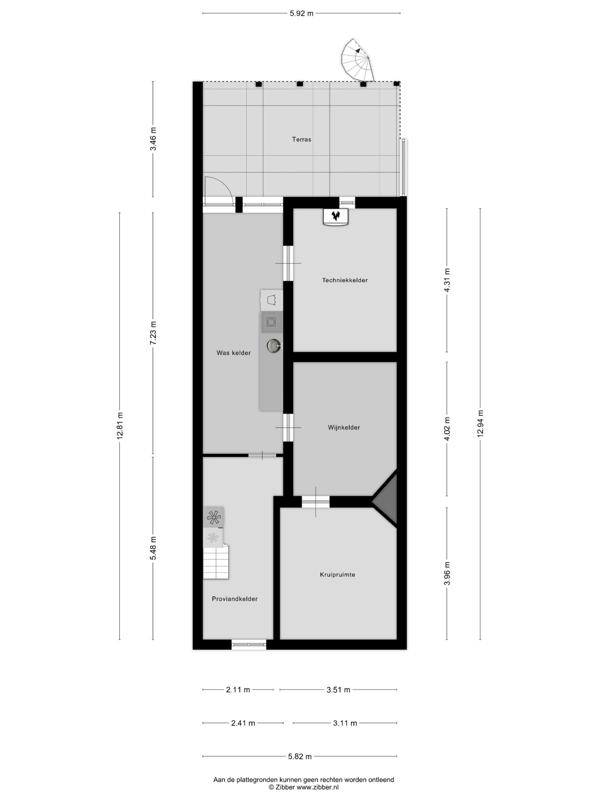
Souterrain
Vanuit de hal en tuin te bereiken kelders.
Provisiekelder (5.48 x 2.11 m).
Waskelder (7.23 x 2.48 m).
Techniekruimte alwaar CV installatie (4.31 x 3.11 m).
Wijnkelder (4.02 x 3.11 m) vanuit de wijnkelder toegang tot de kruipruimte.
Vanuit de waskelder te bereiken loungehoek/overdekt terras.
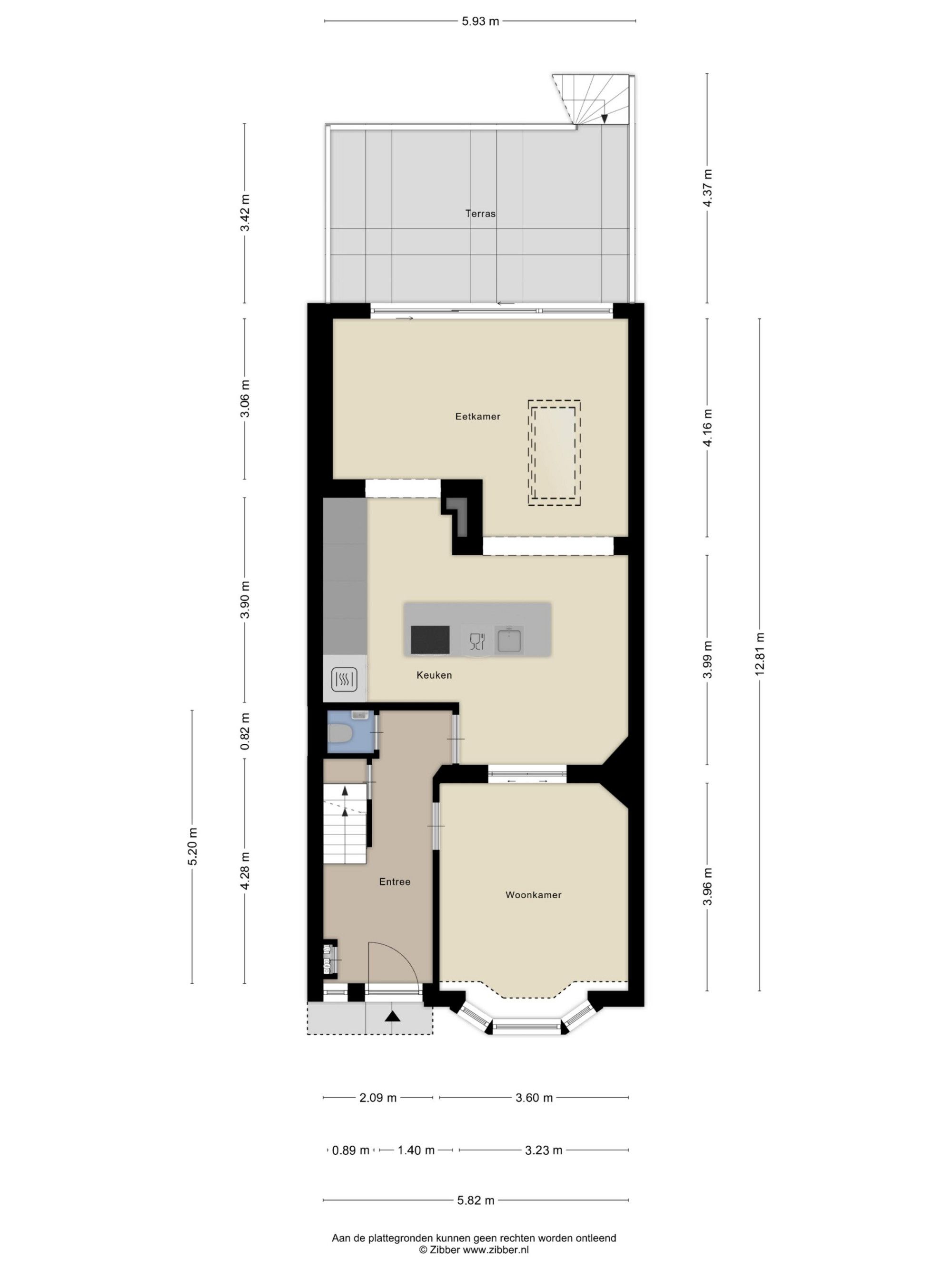
Begane grond
Middels fraai aangelegde tuin met oprit toegang tot de entree. Hal voorzien van fraaie tegelvloer met garderobe, authentiek trappenhuis en toiletruimte met wandcloset en natuurstenen fonteintje.
Woonkamer ensuite voorzien van doorlopende visgraat parketvloer met woonkamer (3.96 x 3.60 m) met erker aan voorzijde met glas-in-lood raampartij, authentieke schuifdeuren met op maat gemaakte ombouw/boekenkast; middels de schuifdeuren toegang tot de lichte woon/leef keuken (8.50 x 5.82 m) voorzien van lichtkoepel, riante glazen achtergevel met schuifpui en moderne keukeninstallatie met kookeiland voorzien van composiet werkblad en voldoende kastruimte, inductie kookplaat met vlakscherm afzuigkap en vaatwasser, separate kastenwand met koelkast met freshzone en stoom-oven.
Vanuit de woon/leefkeuken middels schuifpui toegang tot het dakterras (5.93 x 3.42 m) met vrij zicht op de aangelegde achtertuin met zwembad; middels wenteltrap toegang tot de zuid georiënteerde achtertuin (met zij-ingang), loungehoek/overdekte terras (5.92 x 3.46 m), zwembad en ruime graszone met plantenborder,
Eerste verdieping
Middels fraai trappenhuis toegang tot de overloop met doorlopende eiken plankenvloer.
Slaapkamer 1 (4.69 x 3.22 m) met erker en glas-in-lood raampartij.
Slaapkamer 2 (4.04 x 3.21 m).
Slaapkamer 3 (3.91 x 2.46 m).
Badkamer (2.55 x 2.26 m) met bad, separate douche en badmeubel met dubbele wastafel, eveneens voorzien van glas-in-lood raampartij.
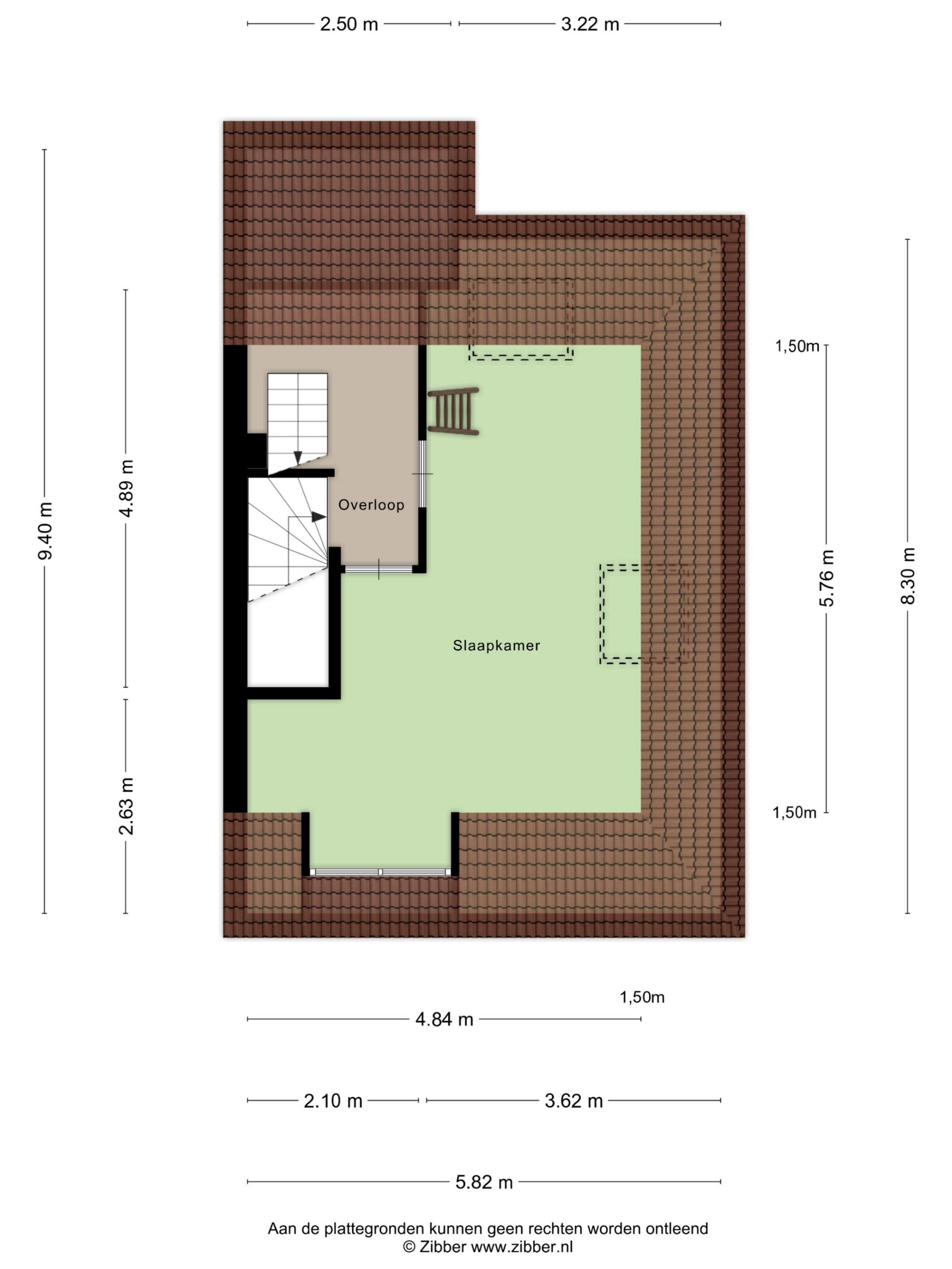
Tweede verdieping
Middels vaste trap toegang tot de overloop met doorlopende laminaatvloer.
Riante slaapkamer 4 (5.75 x 4.84/3.62 m) welke op te delen is 2 slaapkamers voorzien van 3 Velux dakramen en dakkapel.
Derde verdieping/vliering
Vanuit de overloop van de zolder verdieping toegang tot de vliering (2.98 x 1.05 m).
ALGEMEEN
In de loop der jaren gemoderniseerd met behoudt van authentieke details o.a. schuifdeuren, paneeldeuren, glas-in-lood ramen etc.
Mogelijkheid voor het realiseren van een vijfde slaapkamer.
Gelegen nabij station, uitvalswegen, scholen en winkels.
Parkeren op eigen terrein voor 1 auto.
Genoemde maten zijn circa maten.
INDELING
Souterrain
Vanuit de hal en tuin te bereiken kelders.
Provisiekelder (5.48 x 2.11 m).
Waskelder (7.23 x 2.48 m).
Techniekruimte alwaar CV installatie (4.31 x 3.11 m).
Wijnkelder (4.02 x 3.11 m) vanuit de wijnkelder toegang tot de kruipruimte.
Vanuit de waskelder te bereiken loungehoek/overdekt terras.
Begane grond
Middels fraai aangelegde tuin met oprit toegang tot de entree. Hal voorzien van fraaie tegelvloer met garderobe, authentiek trappenhuis en toiletruimte met wandcloset en natuurstenen fonteintje.
Woonkamer ensuite voorzien van doorlopende visgraat parketvloer met woonkamer (3.96 x 3.60 m) met erker aan voorzijde met glas-in-lood raampartij, authentieke schuifdeuren met op maat gemaakte ombouw/boekenkast; middels de schuifdeuren toegang tot de lichte woon/leef keuken (8.50 x 5.82 m) voorzien van lichtkoepel, riante glazen achtergevel met schuifpui en moderne keukeninstallatie met kookeiland voorzien van composiet werkblad en voldoende kastruimte, inductie kookplaat met vlakscherm afzuigkap en vaatwasser, separate kastenwand met koelkast met freshzone en stoom-oven.
Vanuit de woon/leefkeuken middels schuifpui toegang tot het dakterras (5.93 x 3.42 m) met vrij zicht op de aangelegde achtertuin met zwembad; middels wenteltrap toegang tot de zuid georiënteerde achtertuin (met zij-ingang), loungehoek/overdekte terras (5.92 x 3.46 m), zwembad en ruime graszone met plantenborder,
Eerste verdieping
Middels fraai trappenhuis toegang tot de overloop met doorlopende eiken plankenvloer.
Slaapkamer 1 (4.69 x 3.22 m) met erker en glas-in-lood raampartij.
Slaapkamer 2 (4.04 x 3.21 m).
Slaapkamer 3 (3.91 x 2.46 m).
Badkamer (2.55 x 2.26 m) met bad, separate douche en badmeubel met dubbele wastafel, eveneens voorzien van glas-in-lood raampartij.
Tweede verdieping
Middels vaste trap toegang tot de overloop met doorlopende laminaatvloer.
Riante slaapkamer 4 (5.75 x 4.84/3.62 m) welke op te delen is 2 slaapkamers voorzien van 3 Velux dakramen en dakkapel.
Derde verdieping/vliering
Vanuit de overloop van de zolder verdieping toegang tot de vliering (2.98 x 1.05 m).
ALGEMEEN
In de loop der jaren gemoderniseerd met behoudt van authentieke details o.a. schuifdeuren, paneeldeuren, glas-in-lood ramen etc.
Mogelijkheid voor het realiseren van een vijfde slaapkamer.
Gelegen nabij station, uitvalswegen, scholen en winkels.
Parkeren op eigen terrein voor 1 auto.
Genoemde maten zijn circa maten.
+ Read more
- Read less
Construction: {{
product.build_year }}
Construction: {{ product.build_period.start }} -
{{ product.build_period.end }}
House
, Single-family house
{{ product.rooms }} rooms
{{ product.bedrooms
}} bedrooms
Living space: {{
product.living_space }} m²
Plot: {{
product.plot_surface }} m²
Energy class: {{ product.energy_class }}
Energy index: {{ product.energy_index }}
Characteristics
{{ field.label }}
{{ field.value }}
+ Read more
{{ field.label }}
{{ field.value }}
- Read less
{{ product.company.name }}
Contact us
{{ product.company.phone.replace('-', ' ').substr(0, 7) }}...
{{ product.company.phone.replace('-', ' ') }}
Share:
Date