Sold
€ {{ product.price.replace(/\B(?=(\d{4})+(?!\d))/g, ".") }} {{ __(product.price_condition) }}
Photo’s
{{ product.images.length }}
Floorplan
{{ product.plans.length }}
360° photo’s {{ product.panoramas.length }}
Video’s {{ product.videos.length }}
Maps
All media
House for sale Antoon Van Elenstraat 56 Maastricht
€ {{ product.price.replace(/\B(?=(\d{4})+(?!\d))/g, ".") }} {{ __(product.price_condition) }}
Sold
Description
Ruim, karaktervol én boordevol mogelijkheden – jouw nieuwe thuis in Maastricht!
Ben je op zoek naar een royaal huis met sfeer, karakter én een diepe zonnige tuin op het zuiden? Welkom aan de Antoon van Elenstraat 56, gelegen in de geliefde wijk Brusselsepoort in Maastricht. Deze verrassend ruime woning biedt met ca. 157 m² woonoppervlak en een vrijstaande schuur van ca. 38 m² alle ruimte om jouw woondromen waar te maken.
Of je nu een groot gezin hebt, thuis werkt, extra hobbyruimte zoekt of levensloopbestendig wilt wonen – hier kan het allemaal. Dankzij de flexibele indeling, vijf slaapkamers en een badkamer op de begane grond zijn de mogelijkheden eindeloos.
Hier woon je in een rustige, groene straat, terwijl winkels, scholen en openbaar vervoer om de hoek liggen. Het bruisende stadsleven van Maastricht is binnen enkele minuten bereikbaar - maar je komt steeds weer thuis in je eigen oase van rust.
Indeling
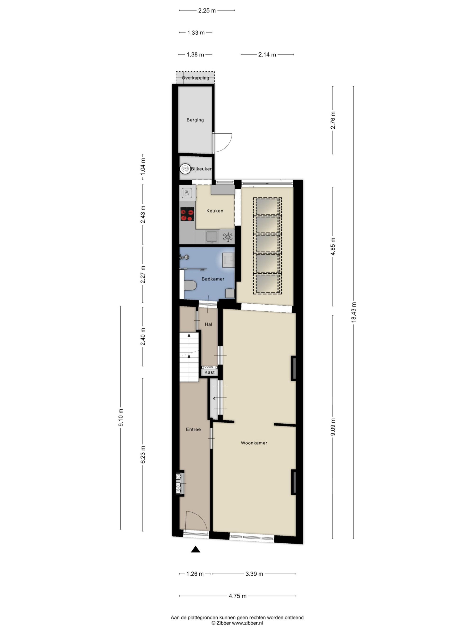
Begane grond
Via de entree met hal en trapopgang bereik je de lichte doorzonwoonkamer, die dankzij de grote raampartijen en schuifpui naar de tuin een prettige sfeer heeft. Aansluitend ligt de keuken met uitzicht op de tuin, evenals een praktische bijkeuken met boiler en extra bergruimte.
Op de begane grond bevindt zich bovendien een badkamer, een groot pluspunt wat de woning levensloopbestendig maakt.
Eerste verdieping
De eerste verdieping beschikt over drie slaapkamers:
- hoofdslaapkamer van ca. 12 m²
- tweede slaapkamer van ca. 10 m²
- derde slaapkamer van ca. 6 m², ideaal als logeer- of werkkamer
Daarnaast vind je hier een badkamer met douche en wastafel, een separaat toilet en een tweede keuken. Deze keukenruimte kan eenvoudig worden omgevormd tot een wasruimte of extra slaap en/of badkamer.
Tweede verdieping
Op de tweede verdieping bevinden zich nog twee slaapkamers van ca. 21 m² en 9 m². De overloop is voorzien van een wastafel en de cv-installatie. Dankzij de ruime indeling biedt deze verdieping volop mogelijkheden, zoals een master bedroom, hobbyruimte of thuiskantoor.
Tuin
De diepe achtertuin op het zuiden is via achterom bereikbaar en vormt een fijne buitenruimte met aan de achterzijde een multifunctioneel gebouw van totaal ca. 38 m², ideaal te gebruiken als opslag, werkruimte of atelier.
BIJZONDERHEDEN
- Zeer ruim woonhuis met maar liefst vijf slaapkamers
- Levensloopbestendig: badkamer op de begane grond
- Multifunctionele indeling met o.a. een tweede keuken
- Vrijstaand gebouw aan de achterzijde van de tuin van totaal ca. 38 m² – ideaal voor opslag, werkruimte of atelier
- Centrale ligging in de populaire wijk Brusselsepoort
- De bijdrage van de mandeligheid ten behoeve van de achterom bedraagt € 10,- per jaar ten behoeve van de aansluiting en het gebruik van de elektriciteit van de toegangspoort en verlichting van het binnenplein.
AANSPRAKELIJKHEID
Het bovenstaande behelst slechts een globale omschrijving van een object. De informatie berust deels op door derden aan onze kantoren verstrekte gegevens. Met de meeste zorg hebben wij deze informatie verwerkt doch kunnen ten aanzien van de juistheid van deze gegevens geen aansprakelijkheid aanvaarden. Aan deze presentatie kunnen geen rechten worden ontleend.
ONTBINDING
De termijn die wordt opgenomen voor eventuele (overeengekomen) ontbindende voorwaarden (b.v. financiering) is in de regel circa 4 weken na het sluiten van de mondelinge wilsovereenstemming.
ZEKERHEIDSSTELLING
De waarborgsom/bankgarantie is 10% van de koopsom. De koper dient deze binnen 7 dagen na definitieve overeenkomst bij de desbetreffende notaris te deponeren.
ONDERZOEKSPLICHT VAN DE KOPER
Koper is te allen tijde gerechtigd voor eigen rekening een bouwkundige keuring te (laten) verrichten dan wel andere adviseurs te raadplegen teneinde een goed inzicht te verkrijgen in de staat van onderhoud.
Ben je op zoek naar een royaal huis met sfeer, karakter én een diepe zonnige tuin op het zuiden? Welkom aan de Antoon van Elenstraat 56, gelegen in de geliefde wijk Brusselsepoort in Maastricht. Deze verrassend ruime woning biedt met ca. 157 m² woonoppervlak en een vrijstaande schuur van ca. 38 m² alle ruimte om jouw woondromen waar te maken.
Of je nu een groot gezin hebt, thuis werkt, extra hobbyruimte zoekt of levensloopbestendig wilt wonen – hier kan het allemaal. Dankzij de flexibele indeling, vijf slaapkamers en een badkamer op de begane grond zijn de mogelijkheden eindeloos.
Hier woon je in een rustige, groene straat, terwijl winkels, scholen en openbaar vervoer om de hoek liggen. Het bruisende stadsleven van Maastricht is binnen enkele minuten bereikbaar - maar je komt steeds weer thuis in je eigen oase van rust.
Indeling
Begane grond
Via de entree met hal en trapopgang bereik je de lichte doorzonwoonkamer, die dankzij de grote raampartijen en schuifpui naar de tuin een prettige sfeer heeft. Aansluitend ligt de keuken met uitzicht op de tuin, evenals een praktische bijkeuken met boiler en extra bergruimte.
Op de begane grond bevindt zich bovendien een badkamer, een groot pluspunt wat de woning levensloopbestendig maakt.
Eerste verdieping
De eerste verdieping beschikt over drie slaapkamers:
- hoofdslaapkamer van ca. 12 m²
- tweede slaapkamer van ca. 10 m²
- derde slaapkamer van ca. 6 m², ideaal als logeer- of werkkamer
Daarnaast vind je hier een badkamer met douche en wastafel, een separaat toilet en een tweede keuken. Deze keukenruimte kan eenvoudig worden omgevormd tot een wasruimte of extra slaap en/of badkamer.
Tweede verdieping
Op de tweede verdieping bevinden zich nog twee slaapkamers van ca. 21 m² en 9 m². De overloop is voorzien van een wastafel en de cv-installatie. Dankzij de ruime indeling biedt deze verdieping volop mogelijkheden, zoals een master bedroom, hobbyruimte of thuiskantoor.
Tuin
De diepe achtertuin op het zuiden is via achterom bereikbaar en vormt een fijne buitenruimte met aan de achterzijde een multifunctioneel gebouw van totaal ca. 38 m², ideaal te gebruiken als opslag, werkruimte of atelier.
BIJZONDERHEDEN
- Zeer ruim woonhuis met maar liefst vijf slaapkamers
- Levensloopbestendig: badkamer op de begane grond
- Multifunctionele indeling met o.a. een tweede keuken
- Vrijstaand gebouw aan de achterzijde van de tuin van totaal ca. 38 m² – ideaal voor opslag, werkruimte of atelier
- Centrale ligging in de populaire wijk Brusselsepoort
- De bijdrage van de mandeligheid ten behoeve van de achterom bedraagt € 10,- per jaar ten behoeve van de aansluiting en het gebruik van de elektriciteit van de toegangspoort en verlichting van het binnenplein.
AANSPRAKELIJKHEID
Het bovenstaande behelst slechts een globale omschrijving van een object. De informatie berust deels op door derden aan onze kantoren verstrekte gegevens. Met de meeste zorg hebben wij deze informatie verwerkt doch kunnen ten aanzien van de juistheid van deze gegevens geen aansprakelijkheid aanvaarden. Aan deze presentatie kunnen geen rechten worden ontleend.
ONTBINDING
De termijn die wordt opgenomen voor eventuele (overeengekomen) ontbindende voorwaarden (b.v. financiering) is in de regel circa 4 weken na het sluiten van de mondelinge wilsovereenstemming.
ZEKERHEIDSSTELLING
De waarborgsom/bankgarantie is 10% van de koopsom. De koper dient deze binnen 7 dagen na definitieve overeenkomst bij de desbetreffende notaris te deponeren.
ONDERZOEKSPLICHT VAN DE KOPER
Koper is te allen tijde gerechtigd voor eigen rekening een bouwkundige keuring te (laten) verrichten dan wel andere adviseurs te raadplegen teneinde een goed inzicht te verkrijgen in de staat van onderhoud.
+ Read more
- Read less
Construction: {{
product.build_year }}
Construction: {{ product.build_period.start }} -
{{ product.build_period.end }}
House
, Single-family house
{{ product.rooms }} rooms
{{ product.bedrooms
}} bedrooms
Living space: {{
product.living_space }} m²
Plot: {{
product.plot_surface }} m²
Energy class: {{ product.energy_class }}
Energy index: {{ product.energy_index }}
Characteristics
{{ field.label }}
{{ field.value }}
+ Read more
{{ field.label }}
{{ field.value }}
- Read less
{{ product.company.name }}
Contact us
{{ product.company.phone.replace('-', ' ').substr(0, 7) }}...
{{ product.company.phone.replace('-', ' ') }}
Share:
Date