Sold
€ {{ product.price.replace(/\B(?=(\d{4})+(?!\d))/g, ".") }} {{ __(product.price_condition) }}
Photo’s
{{ product.images.length }}
Floorplan
{{ product.plans.length }}
360° photo’s {{ product.panoramas.length }}
Video’s {{ product.videos.length }}
Maps
All media

House for sale Pastoor Laevenstraat 31 Ransdaal

€ {{ product.price.replace(/\B(?=(\d{4})+(?!\d))/g, ".") }} {{ __(product.price_condition) }}
Sold

Description

Aan de rand van Ransdaal, gelegen in een rustige straat, bieden wij deze ruime vrijstaande woning aan. De woning beschikt o.a. over 4 ruime slaapkamers en dit aantal is te vergroten. Daarnaast is deze woning uitermate geschikt voor dubbele bewoning, door de aanwezigheid van een extra woning die naast het hoofdhuis is gerealiseerd.

De woning is volledig onderkelderd en beschikt over 2 ruime garages, een brede oprit met voldoende parkeergelegenheid op eigen terrein. Door het ruime perceel van maar liefst 732 m² is deze ook uitermate geschikt voor de tuinliefhebber.

De bereikbaarheid van de woning is goed te noemen, zowel per auto als met het openbaar vervoer. Op loopafstand van de woning is het treinstation Klimmen-Ransdaal gelegen. Ransdaal is een kindvriendelijke woonplaats, met o.a. een eigen basisschool en een rijk verenigingsleven.

Algemeen:
Bouwjaar: 1960
Gebruiksoppervlakte wonen: 230 m²
Perceeloppervlakte: 732 m²
Aanvaarding: in overleg
Energielabel: D

Voorzieningen:
Elektriciteit: moderne en uitgebreide meterkast
Kozijnen: grotendeels hout
Isolatie: dakisolatie, muurisolatie, grotendeels dubbel glas
Zonnepanelen: 18 (eigendom)

Installaties:
Centrale verwarming: 2 c.v.-ketels (voor woning en naastgelegen woonruimte) Remeha (2012, eigendom)
Warm water voorziening: middels combiketel

Indeling woonhuis:

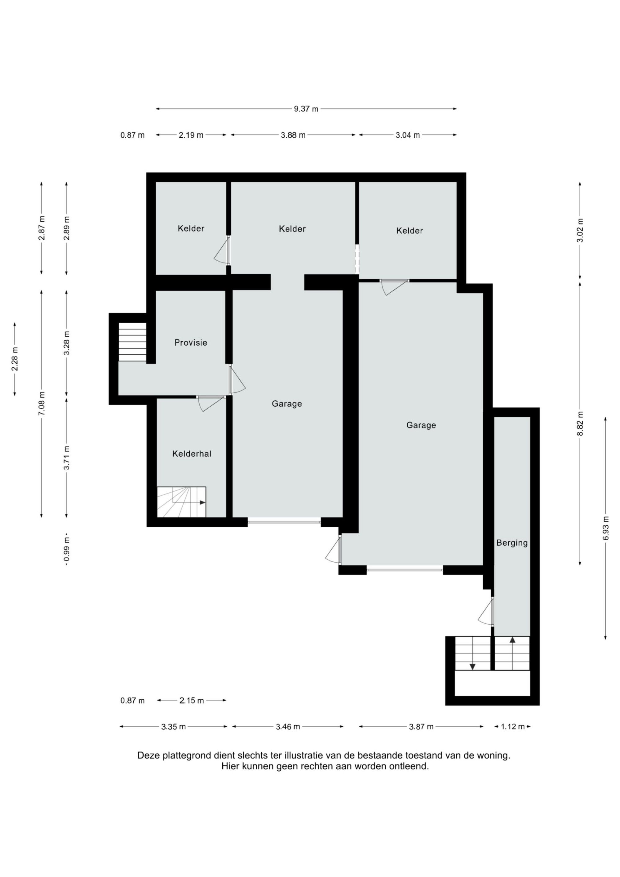
• Kelder
De woning is volledig onderkelderd en zowel vanuit de entree/hal van de woning alsook via een van de garages bereikbaar. Vanuit de entree/hal is allereerst een provisiekelder met aansluitend 2 bergingen (ca. 7 en 4 m²), van waaruit de eerste garage inpandig bereikbaar is. De garage (ca. 19 m²) beschikt over een elektrische sectionaal poort en wateraansluiting. Achter de garage is een inpandige berging (ca. 7 m²) gelegen, met toegang tot een 4e bergruimte (ca. 11 m²) die toegang biedt tot de tweede garage. De garage (ca. 28 m²) is eveneens voorzien van een elektrische sectionaal poort, krachtstroom en wateraansluiting.

• Begane grond
Ruime entree/hal met meterkast, toilet en toegang tot de kelder, 1e verdieping, woonkamer en keuken. Het toilet is volledig betegeld en beschikt over een fontein. De hal is v.v. een plavuizenvloer.

De woonkamer (ca. 29 m²) geniet veel lichtinval door grote raampartijen aan weerszijde van de ruimte en beschikt over een fraaie parketvloer. Vanuit de woonkamer is de keukenruimte bereikbaar, de keuken is voorzien van een aanbouwkeuken in rechte opstelling aan weerszijde van de ruimte, met o.a. een 4-pits gas kookplaat, afzuigkap, koelkast en combimagnetron.

Achter de keuken en woonkamer is een grote serre (ca. 22 m²) gerealiseerd, met optimaal tuincontact en aan beide zijdes een deur naar de tuin.

• 1e verdieping
Overloop met toegang tot 2 slaapkamers en de badkamer. De slaapkamers zijn ca. 10 en ca. 14 m². De kleinste slaapkamer is gelegen aan de voorzijde van de woning en beschikt over een toegang tot het balkon aan de voorzijde.

De badkamer is volledig betegeld en beschikt over een ligbad met douchecombinatie, zwevend toilet en dubbele wastafel met meubel.

• 2e verdieping
De 2e verdieping beschikt over 2 grote slaapkamers aan de achterzijde, een overloop met omvormer van de zonnepanelen en c.v.-ketels. Door de aanwezigheid van een groot dakkapel aan de achterzijde van de woning geniet men van een fraai uitzicht over de eigen achtertuin.

Indeling 2e woning:

• Begane grond
Entree/hal met meterkast (5 groepen en 1 aardlekschakelaar), badkamer, slaapkamer en trapopgang naar de 1e verdieping. De badkamer is volledig betegeld en beschikt over een douchecabine, wastafel en witgoedaansluitingen. De slaapkamer (ca. 16 m²) is gelegen aan de zijkant van de woning en geniet veel lichtinval door de aanwezigheid van openslaande deuren. De begane grond is voorzien van een fraaie parketvloer.

• 1e verdieping
Middels vaste trap bereikbare woonkamer met open keuken. De keuken beschikt over een eenvoudige aanbouwkeuken in rechte opstelling. De ruimte (ca. 37 m²) beschikt over veel lichtinval en een fraaie laminaatvloer. Door deze ruimte bij de hoofdwoning te betrekking, kan het aantal slaapkamers op de 1e verdieping ook vergroot worden.

Tuin:
De woning beschikt over een fraai doch onderhoudsvriendelijke voortuin met extra brede oprit, waardoor er voldoende parkeergelegenheid op eigen terrein is.

De achtertuin is privacyvol en volledig omheind. De tuin is vanuit de zijkanten van de woning toegankelijk en beschikt over een sfeervol terras met overkapping, groot gazon, diverse plantenborders en tuinberging. De achtertuin is uitermate geschikt voor de tuinliefhebber. Door het toevoegen van een serre aan de woning, kan men nog langer van de eigen tuin genieten. Ook in het voor- en najaar.

Ligging:
De woning is gelegen in het kerkdorp Ransdaal, behorende bij de gemeente Voerendaal. Het dorp wordt omringd door het typerende Limburgse Heuvellandschap. Door de aanwezigheid van een treinstation, Klimmen-Ransdaal (lijn Maastricht Randwyck-Kerkrade), op loopafstand van de woning is de bereikbaarheid zowel middels openbaar vervoer als per auto goed te noemen.

Ransdaal beschikt over een rijk verenigingsleven en een basisschool. Voor de dagelijkse voorzieningen kan men terecht in de naastgelegen dorpen Klimmen en/of Voerendaal.

De natuur- alsook sportliefhebber kan zijn hart ophalen in het omliggende heuvellandschap.

Kadastrale gegevens:
Het perceel is kadastraal bekend als gemeente Klimmen, sectie D, nummer 9 en 495, ter grootte van 732 m².

Inlichtingen:
Indien u meer wilt weten over het object of een bezichtiging wilt aanvragen, kunt u contact opnemen met ons kantoor te Voerendaal.

Deze informatie is door ons met de nodige zorgvuldigheid samengesteld. Onzerzijds wordt echter geen enkele aansprakelijkheid aanvaard voor enige onvolledigheid, onjuistheid of anderszins, dan wel de gevolgen daarvan.

Alle maten zijn bij benadering weergegeven. Deze aanbieding mag slechts worden gezien als een uitnodiging tot bezichtiging.
+ Read more
- Read less
Construction: {{ product.build_year }}
Construction: {{ product.build_period.start }} - {{ product.build_period.end }}
House , Villa
{{ product.rooms }} rooms
{{ product.bedrooms }} bedrooms
Living space: {{ product.living_space }} m²
Plot: {{ product.plot_surface }} m²
Energy class:    {{ product.energy_class }}
Energy index: {{ product.energy_index }}

Characteristics

{{ field.label }}
{{ field.value }}

{{ field.label }}
{{ field.value }}
{{ product.company.name }}
Contact us
{{ product.company.phone.replace('-', ' ').substr(0, 7) }}...
{{ product.company.phone.replace('-', ' ') }}
Share:

Similar objects in the neighborhood