Photo’s
{{ product.images.length }}
Floorplan
{{ product.plans.length }}
360° photo’s {{ product.panoramas.length }}
Video’s {{ product.videos.length }}
Maps
All media
House for sale Maasheuvel 37 Roosteren
€ {{ product.price.replace(/\B(?=(\d{4})+(?!\d))/g, ".") }} {{ __(product.price_condition) }}
Available
Description
Op een fijne woonlocatie in het hart van het charmante kerkdorp Roosteren, ligt deze goed onderhouden vrijstaande woning met een grote, via een overdekt terras bereikbare, dubbele garage en een diepe achtertuin op het zuidoosten met een vrije achterom. Dankzij de ligging aan de achterzijde die heerlijk vrij voelt, geniet u hier van veel privacy en een uitstekende bezonning.
De woning biedt onder meer een sfeervolle, zonnige woonkamer met massief eiken parketvloer en schouwpartij, een comfortabele woonkeuken, drie volwaardige slaapkamers, een moderne badkamer en een ruime tweede verdieping met volop mogelijkheden voor het realiseren van een extra slaapkamer. De royale garage, bereikbaar via een overdekte doorgang vanuit de woning, maakt het geheel extra praktisch en multifunctioneel.
Kortom: een heerlijke gezinswoning op een ruim perceel, waar ruimte en wooncomfort op een prettige manier samenkomen.
Indeling:
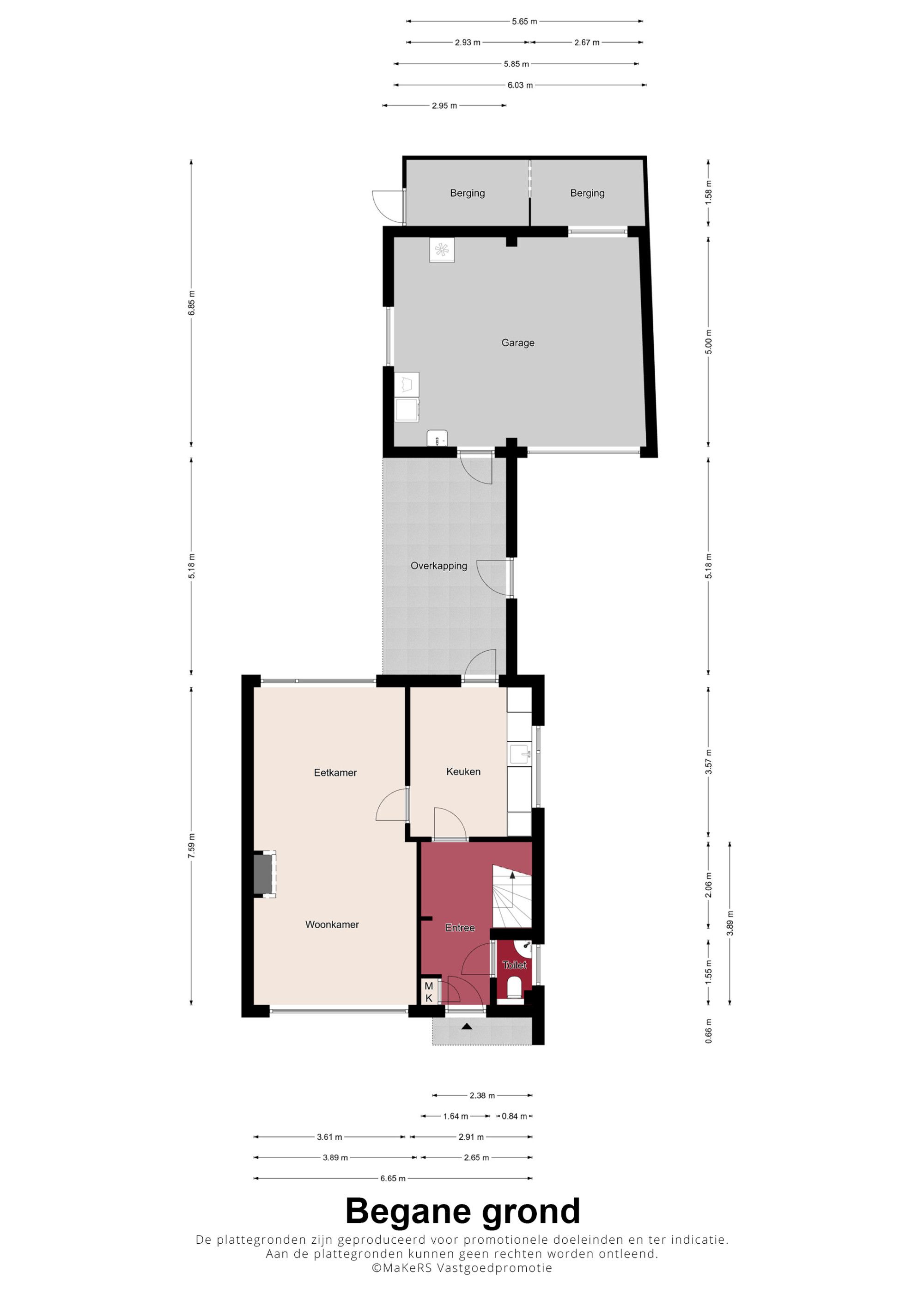
Begane grond:
De entree van de woning is via de ruime ontvangsthal voorzien van een garderobe, meterkast, trapopgang naar de eerste verdieping en toiletruimte met zwevend toilet en fonteintje. De sfeervolle, zonnige woonkamer is voorzien van een massief eiken parketvloer, een gezellige schouwpartij, open haard en grote raampartijen, wat zorgt voor een prettige lichtinval en een mooi contact met de tuin. Aansluitend bevindt zich de woonkeuken, uitgevoerd met een moderne en luxe keukencombinatie met granieten werkblad en diverse inbouwapparatuur, te weten een inductiekookplaat, afzuigkap, koelkast, combi-oven en een vaatwasser. Vanuit de keuken heeft u direct toegang tot het terras met overkapping. Het overdekte terras vormt tevens een praktische, droge verbinding met de riante garage.
Eerste verdieping:
De overloop biedt toegang tot drie comfortabele slaapkamers en de fijne badkamer. Deze badkamer is netjes en modern afgewerkt en voorzien van een inloopdouche, toilet, wastafel en comfortabele vloerverwarming.
Tweede verdieping:
De tweede verdieping is momenteel bereikbaar via een vlizotrap en in gebruik als bergzolder. Hier bevindt zich de opstelling van de cv-ketel (Nefit HR, ca. 2019, eigendom). Het realiseren van een vaste trap en een extra slaapkamer behoort hier zeker tot de mogelijkheden, waardoor de woning kan worden uitgebreid naar vier slaapkamers.
Exterieur:
De fijne en diepe achtertuin is een absoluut pluspunt van deze woning. Met een diepte van circa 28 meter, een ligging op het zuidoosten en een heerlijk vrij gevoel aan de achterzijde geniet u hier de hele dag van zon, rust en privacy. Het terras is deels overdekt, waardoor u hier al vroeg in het voorjaar en tot laat in het najaar heerlijk buiten kunt zitten. Daarnaast is er een zonneluifel aanwezig. De tuin is tevens via de oprit bereikbaar, wat extra praktisch is. De royale garage is bereikbaar via de ruime oprit en beschikt over spouwmuren, verwarming, aansluitingen voor witgoed, een spoelbak en een elektrische sectionaalpoort. Een ideale ruimte voor hobby, opslag, werk aan huis of het stallen van meerdere voertuigen. Achter de garage bevindt zich bovendien nog een berging.
Bijzonderheden:
De woning is altijd netjes onderhouden en voorzien van dakisolatie, moderne HR-combiketel en houten kozijnen met HR++ beglazing en is deels uitgerust met rolluiken. Ook de garage is voorzien van dakisolatie. Dit alles resulteerd in een keurig label C. Hier kun je mee thuiskomen!
Ligging:
Roosteren is een sfeervol kerkdorp in de gemeente Echt-Susteren met circa 1.400 inwoners. Het dorp beschikt over een pittoresk marktplein, diverse voorzieningen en veel groen in de directe omgeving. De ligging is ideaal: dankzij de nabijheid van de N276, A2 en A73 zijn steden als Maastricht, Eindhoven, Venlo en zelfs Düsseldorf snel en eenvoudig bereikbaar. Daarnaast bevindt u zich hier in het smalste stukje Nederland, waar binnen korte tijd zowel België als Duitsland te bereiken zijn. Een unieke regio met volop natuur, cultuur, gastronomie en recreatiemogelijkheden.
Interactief:
Kijk ook op onze Homevision site om de plattegronden van de woning te bekijken en interactief in te richten met uw eigen meubelopstelling.
De woning biedt onder meer een sfeervolle, zonnige woonkamer met massief eiken parketvloer en schouwpartij, een comfortabele woonkeuken, drie volwaardige slaapkamers, een moderne badkamer en een ruime tweede verdieping met volop mogelijkheden voor het realiseren van een extra slaapkamer. De royale garage, bereikbaar via een overdekte doorgang vanuit de woning, maakt het geheel extra praktisch en multifunctioneel.
Kortom: een heerlijke gezinswoning op een ruim perceel, waar ruimte en wooncomfort op een prettige manier samenkomen.
Indeling:
Begane grond:
De entree van de woning is via de ruime ontvangsthal voorzien van een garderobe, meterkast, trapopgang naar de eerste verdieping en toiletruimte met zwevend toilet en fonteintje. De sfeervolle, zonnige woonkamer is voorzien van een massief eiken parketvloer, een gezellige schouwpartij, open haard en grote raampartijen, wat zorgt voor een prettige lichtinval en een mooi contact met de tuin. Aansluitend bevindt zich de woonkeuken, uitgevoerd met een moderne en luxe keukencombinatie met granieten werkblad en diverse inbouwapparatuur, te weten een inductiekookplaat, afzuigkap, koelkast, combi-oven en een vaatwasser. Vanuit de keuken heeft u direct toegang tot het terras met overkapping. Het overdekte terras vormt tevens een praktische, droge verbinding met de riante garage.
Eerste verdieping:
De overloop biedt toegang tot drie comfortabele slaapkamers en de fijne badkamer. Deze badkamer is netjes en modern afgewerkt en voorzien van een inloopdouche, toilet, wastafel en comfortabele vloerverwarming.
Tweede verdieping:
De tweede verdieping is momenteel bereikbaar via een vlizotrap en in gebruik als bergzolder. Hier bevindt zich de opstelling van de cv-ketel (Nefit HR, ca. 2019, eigendom). Het realiseren van een vaste trap en een extra slaapkamer behoort hier zeker tot de mogelijkheden, waardoor de woning kan worden uitgebreid naar vier slaapkamers.
Exterieur:
De fijne en diepe achtertuin is een absoluut pluspunt van deze woning. Met een diepte van circa 28 meter, een ligging op het zuidoosten en een heerlijk vrij gevoel aan de achterzijde geniet u hier de hele dag van zon, rust en privacy. Het terras is deels overdekt, waardoor u hier al vroeg in het voorjaar en tot laat in het najaar heerlijk buiten kunt zitten. Daarnaast is er een zonneluifel aanwezig. De tuin is tevens via de oprit bereikbaar, wat extra praktisch is. De royale garage is bereikbaar via de ruime oprit en beschikt over spouwmuren, verwarming, aansluitingen voor witgoed, een spoelbak en een elektrische sectionaalpoort. Een ideale ruimte voor hobby, opslag, werk aan huis of het stallen van meerdere voertuigen. Achter de garage bevindt zich bovendien nog een berging.
Bijzonderheden:
De woning is altijd netjes onderhouden en voorzien van dakisolatie, moderne HR-combiketel en houten kozijnen met HR++ beglazing en is deels uitgerust met rolluiken. Ook de garage is voorzien van dakisolatie. Dit alles resulteerd in een keurig label C. Hier kun je mee thuiskomen!
Ligging:
Roosteren is een sfeervol kerkdorp in de gemeente Echt-Susteren met circa 1.400 inwoners. Het dorp beschikt over een pittoresk marktplein, diverse voorzieningen en veel groen in de directe omgeving. De ligging is ideaal: dankzij de nabijheid van de N276, A2 en A73 zijn steden als Maastricht, Eindhoven, Venlo en zelfs Düsseldorf snel en eenvoudig bereikbaar. Daarnaast bevindt u zich hier in het smalste stukje Nederland, waar binnen korte tijd zowel België als Duitsland te bereiken zijn. Een unieke regio met volop natuur, cultuur, gastronomie en recreatiemogelijkheden.
Interactief:
Kijk ook op onze Homevision site om de plattegronden van de woning te bekijken en interactief in te richten met uw eigen meubelopstelling.
+ Read more
- Read less
Construction: {{
product.build_year }}
Construction: {{ product.build_period.start }} -
{{ product.build_period.end }}
House
, Single-family house
{{ product.rooms }} rooms
{{ product.bedrooms
}} bedrooms
Living space: {{
product.living_space }} m²
Plot: {{
product.plot_surface }} m²
Energy class: {{ product.energy_class }}
Energy index: {{ product.energy_index }}
Characteristics
{{ field.label }}
{{ field.value }}
+ Read more
{{ field.label }}
{{ field.value }}
- Read less
{{ product.company.name }}
Contact us
{{ product.company.phone.replace('-', ' ').substr(0, 7) }}...
{{ product.company.phone.replace('-', ' ') }}
Share:
Photo’s of Maasheuvel 37 6116 BS Roosteren
Date










































