Sold
€ {{ product.price.replace(/\B(?=(\d{4})+(?!\d))/g, ".") }} {{ __(product.price_condition) }}
Photo’s
{{ product.images.length }}
Floorplan
{{ product.plans.length }}
360° photo’s {{ product.panoramas.length }}
Video’s {{ product.videos.length }}
Maps
All media
House for sale Bouwbergstraat 37 Schinveld
€ {{ product.price.replace(/\B(?=(\d{4})+(?!\d))/g, ".") }} {{ __(product.price_condition) }}
Sold
Description
WELKOM BIJ BOUWBERGSTRAAT 37 IN SCHINVELD!
Wonen met karakter in het groene hart van Schinveld!
Welkom aan de Bouwbergstraat 37 in Schinveld – een royale, halfvrijstaande jaren ’30 woning boordevol karakter en authentieke elementen, gelegen op een ruim perceel in een geliefde woonomgeving. Deze charmante woning ademt sfeer en biedt volop ruimte en mogelijkheden voor wie op zoek is naar een uniek familiehuis met potentie.
Bij binnenkomst valt direct de voormalige en-suite woonkamer op, met aan de voorzijde een sfeervolle zithoek en aan de achterzijde een eetkamer die naadloos overloopt in de keukenruimte.
De gesloten keuken is eenvoudig ingericht en voorzien van functionele inbouwapparatuur.
Via het tussenportaal met aansluitingen voor wasmachine en droger is er toegang tot het toilet en de badkamer met douche en wastafel.
Aan de achterzijde is een extra zitkamer met lichtstraat en serre gesitueerd – een heerlijke plek met tuincontact en directe toegang tot het terras en de diepe, omsloten achtertuin. Hier geniet je van privacy, rust en groen, met een aangebouwde stenen berging en toegang via een gemeenschappelijk achterpad.
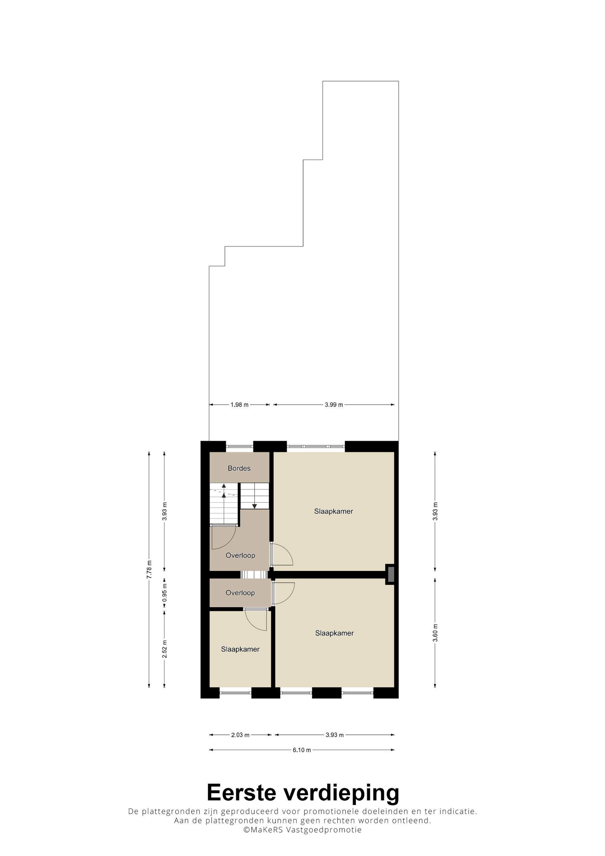
Op de eerste verdieping, bereikbaar via een klassieke bordestrap, bevinden zich drie slaapkamers. De vaste trap leidt naar de zolderverdieping waar eenvoudig nog twee extra (slaap)kamers gerealiseerd kunnen worden – ideaal voor een groeiend gezin, thuiswerkruimte of hobbykamers.
De vrijstaande stenen garage met smeerput en handmatig bedienbare kantelpoort is perfect voor de doe-het-zelver of autoliefhebber. De oprit biedt plaats aan meerdere voertuigen op eigen terrein.
De woning beschikt over een Vaillant cv-ketel, een geiser voor warm water, deels kunststof kozijnen met dubbele beglazing, rolluiken en energielabel G – een uitgelezen kans voor wie wil verduurzamen en moderniseren naar eigen wensen.
De ligging is ideaal: in het hart van het pittoreske kerkdorp Schinveld met alle dagelijkse voorzieningen binnen handbereik. Denk aan basisschool, kinderopvang, bibliotheek, supermarkt, sportclubs, horecagelegenheden en het uitgestrekte wandelgebied van de Schinveldse Bossen.
De bereikbaarheid is uitstekend met openbaar vervoer, uitvalswegen en snelle toegang tot de Parkstadring N300 richting Maastricht, Aken, Eindhoven en het nabijgelegen Duitse achterland.
Bouwbergstraat 37 biedt een unieke kans om te wonen in een karaktervolle woning met ruimte, sfeer en toekomstpotentieel op een geweldige locatie.
Kom ontdekken wat deze woning u te bieden heeft!
INDELING:
KELDER:
Voorraad-/provisiekelder met opslagruimte.
BEGANE GROND:
Hal/Entree, gang met oorspronkelijke terrazzovloer en trappenhuis met authentieke bordestrap naar de verdieping. Meterkast voorzien van 3-groepsinstallatie en aardlekschakelaar. Toegang tot de kelder en woonkamer.
Klassieke voormalig en-suite woonkamer met veel lichtinval en aan de voorzijde gelegen zitkamer met rookgasaansluiting. Achtergelegen eetkamer welk de verbinding vormt naar de keukenruimte
Gesloten keuken met eenvoudige inbouwkeuken voorzien apparatuur, te weten: 4 pits gasfornuis / afzuigkap / elektrische oven / wasbak en opbergruimte.
Tussenportaal met witgoedaansluitingen voor wasmachine en droger en waar geplaatst de geiser voor de warmwatervoorziening. Toegang tot de serre/tuinkamer, het gastentoilet met staand closet en de badkamer met vaste wastafel en een douche.
Tuinkamer met lichtstraat en serre welke directe in verbinding staan met het terras, de achtertuin en de zijingang/oprit.
Garage voorzien van een handmatig bedienbare kantelpoort en voorgelegen oprit met parkeergelegenheid voor meerdere voertuigen op eigen terrein.
Diep perceel met ruime geheel omsloten tuin voorzien van een aangebouwde tuinberging, gazon, borders met aanplanting en bereikbaarheid via gemeenschappelijk achterpad.
VERDIEPING:
Ruime overloop met toegang tot de slaapvertrekken en vaste trap naar de zolder.
Aan de voorzijde gelegen een tweetal slaapkamers.
De hoofdslaapkamer bevindt zich rechtsachter.
ZOLDER:
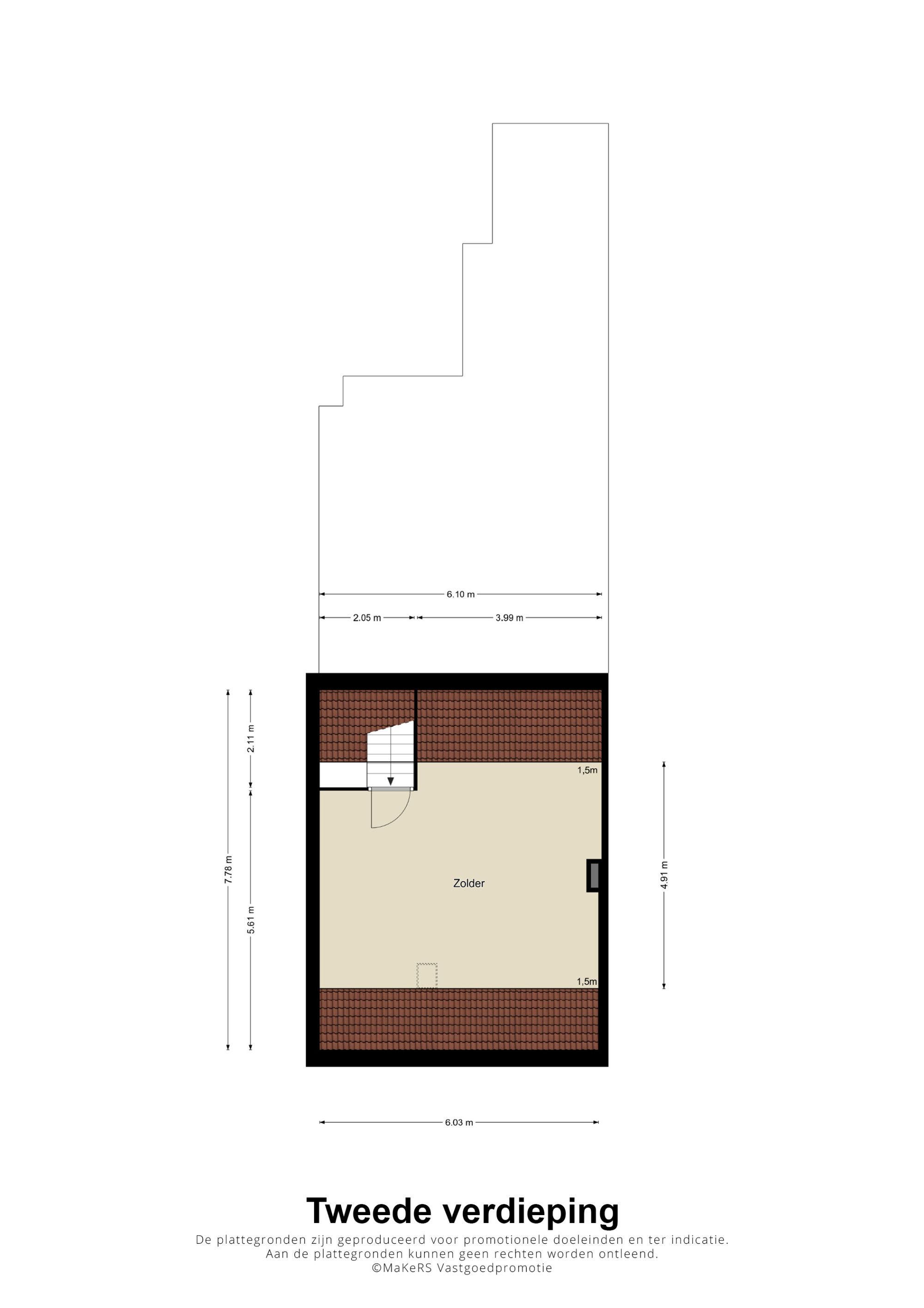
Bergzolder onder de (deels) geïsoleerde dakconstructie, toegankelijk via een vaste trap. Standplaats voor de Vaillant CV-Ketel (Eigendom) en veel extra bergruimte. Mogelijkheid tot het realiseren van een tweetal slaapkamers.
BIJZONDERHEDEN:
* OP ROYAAL PECEEL GELEGEN HALFVRIJSTAAND WOONHUIS
* GELEGEN IN POPULAIRE EN GELIEFDE WOONOMGEVING NABIJ CENTRUM VOORZIENINGEN
* WOONKAMER, VOORMALIG ENSUITE, MET VEEL LICHTINVAL VIA GROTE RAAMPARTIJEN
* EETKAMER IN VERBINDING NAAR DE KEUKEN
* GESLOTEN KEUKENRUIMTE VOORZIEN VAN EEN EENVOUDIG KEUKENBLOK MET APPARATUUR
* TUSSENPORTAAL MET WITGOEDAANSLUITINGEN VOOR WASMACHINE EN DROGER
* ACHTERGELEGEN TUINKAMER MET LICHTSTRAAT EN SERRE MET DOORGANG NAAR TERRAS EN ACHTERTUIN
* GASTENTOILET MET STAAND CLOSET
* BADKAMER VOORZIEN VAN EEN VASTE WASTAFEL EN DOUCHE
* 3 SLAAPKAMERS OP DE VERDIEPING
* ZEER RUIME BERGZOLDER ONDER DE (DEELS) GEISOLEERDE DAKCONTRACTIE
* PROVISIE-/VOORRAADKELDER MET EXTRA OPSLAGMOGELIJKHEDEN
* GARAGE VOORZIEN VAN SMEERPUT EN HANDMATIG BEDIENBARE KANTELPOORT
* VOORGELEGEN OPRIT MET PARKEERGELEGENHEID VOOR MEERDERE VOERTUIGEN OP EIGEN TERREIN
* DIEPE ACHTERTUIN MET TERRAS, GAZON, BORDERS MET AANPLANTING
* AANGEBOUWDE STENEN TUINBERGING
* TOEGANKELIJK VIA GEMEENSCHAPPELIJK ACHTERPAD
* DAKISOLATIE GEDEELTELIJK
* DEELS KUNSTSTOF KOZIJNEN MET DEELS DUBBELE BEGLAZING EN ROLLUIKEN
* GEISER VOOR WARMWATERVOORZIENING EN VAILLANT CV-KETEL (EIGENDOM)
* ENERGIELABEL "G"
HET PAND HEEFT EEN (DEELS) GEISOLEERDE DAKCONSTRUCTIE. DEELS VOORZIEN VAN DUBBELE BEGLAZING IN KUNSTSTOF KOZIJNEN EN ROLLUIKEN. CV-KETEL VAILLANT (EIGENDOM), GEISER VOOR WARMWATERVOORZIENING. EENVOUIGE INBOUWKEUKEN MET APPARATUUR. BIJKEUKEN MET WITGOEDAANSLUITINGEN. 3 SLAAPKAMERS OP DE VERDIEPING. ROYALE ZIJ-/ACHTERTUIN MET TERRASSSEN, ZITHOEKJES EN VEEL PRIVACY. VRIJSTAANDE STENEN GARAGE MET SMEERPUT EN HANDMATIG BEDIENBARE KANTELPOORT GARAGE. VOORGELEGEN OPRIT MET PLEK VOOR MEERDERE VOERTUIGEN. GEMEENSCHAPPELIJK AACHTERPAD.
HET GEHEEL IS GELEGEN NABIJ DE DORPSKERN VAN SCHINVELD. ALLE VOORZIENINGEN IN DE DIRECTE OMGEVING O.A. WINKELS / BASISSCHOOL / BIBLIOTHEEK / SPEELTUIN / CAFETARIA / IJSSALON / DIVERSE SPORTFACILITEITEN EN MANEGES. HET WANDELGEBIED VAN DE SCHINVELDSE BOSSEN EN HET ZWEEFVLIEGVELD ZIJN OP LOOPAFSTAND BEREIKBAAR.
RUIME PARKEERFACILITEITEN IN DIRECTE OMGEVING. GOEDE ONTSLUITING VIA UITVALSWEGEN EN PARKSTADRING (N300) RICHTING MAASTRICHT, AKEN EN EINDHOVEN ALSMEDE HET DUITSE ACHTERLAND.
Ter bescherming van de belangen van zowel koper als ook verkoper wordt uitdrukkelijk gesteld dat een koopovereenkomst met betrekking tot deze onroerende zaak eerst dan tot stand komt nadat koper en verkoper de koopovereenkomst hebben ondertekend (schriftelijkheidsvereiste).
De waarborgsom/bankgarantie is 10% van de koopsom. De koper dient deze binnen 2 weken nadat het financieringsvoorbehoud is verlopen bij de desbetreffende notaris te deponeren.
Indien cv-ketel en/of warmwatervoorziening een huurtoestel is, dient koper de huurovereenkomst over te nemen. Dit geldt ook indien de zonnepanelen op huurbasis aanwezig zijn.
Alle door ons kantoor verstrekte informatie omtrent onroerende zaken, moet beschouwd worden als een uitnodiging om in onderhandeling te treden en is geheel vrijblijvend! Alle vermelde maten en afmetingen zijn slechts bij benadering. Een (eventueel) bijgevoegde plattegrond dient uitsluitend als globale indicatie/visualisatie. Aan deze beperkte informatie
kunnen geen rechten worden ontleend.
Indien in enige documentatie of op enige website informatie staat die niet overeen komt met de werkelijkheid, dan geldt de feitelijke situatie waarin de woning zich bevindt, zoals koper deze tijdens de bezichtiging heeft kunnen waarnemen, en wordt de woning in deze feitelijke situatie/staat verkocht.
Wonen met karakter in het groene hart van Schinveld!
Welkom aan de Bouwbergstraat 37 in Schinveld – een royale, halfvrijstaande jaren ’30 woning boordevol karakter en authentieke elementen, gelegen op een ruim perceel in een geliefde woonomgeving. Deze charmante woning ademt sfeer en biedt volop ruimte en mogelijkheden voor wie op zoek is naar een uniek familiehuis met potentie.
Bij binnenkomst valt direct de voormalige en-suite woonkamer op, met aan de voorzijde een sfeervolle zithoek en aan de achterzijde een eetkamer die naadloos overloopt in de keukenruimte.
De gesloten keuken is eenvoudig ingericht en voorzien van functionele inbouwapparatuur.
Via het tussenportaal met aansluitingen voor wasmachine en droger is er toegang tot het toilet en de badkamer met douche en wastafel.
Aan de achterzijde is een extra zitkamer met lichtstraat en serre gesitueerd – een heerlijke plek met tuincontact en directe toegang tot het terras en de diepe, omsloten achtertuin. Hier geniet je van privacy, rust en groen, met een aangebouwde stenen berging en toegang via een gemeenschappelijk achterpad.
Op de eerste verdieping, bereikbaar via een klassieke bordestrap, bevinden zich drie slaapkamers. De vaste trap leidt naar de zolderverdieping waar eenvoudig nog twee extra (slaap)kamers gerealiseerd kunnen worden – ideaal voor een groeiend gezin, thuiswerkruimte of hobbykamers.
De vrijstaande stenen garage met smeerput en handmatig bedienbare kantelpoort is perfect voor de doe-het-zelver of autoliefhebber. De oprit biedt plaats aan meerdere voertuigen op eigen terrein.
De woning beschikt over een Vaillant cv-ketel, een geiser voor warm water, deels kunststof kozijnen met dubbele beglazing, rolluiken en energielabel G – een uitgelezen kans voor wie wil verduurzamen en moderniseren naar eigen wensen.
De ligging is ideaal: in het hart van het pittoreske kerkdorp Schinveld met alle dagelijkse voorzieningen binnen handbereik. Denk aan basisschool, kinderopvang, bibliotheek, supermarkt, sportclubs, horecagelegenheden en het uitgestrekte wandelgebied van de Schinveldse Bossen.
De bereikbaarheid is uitstekend met openbaar vervoer, uitvalswegen en snelle toegang tot de Parkstadring N300 richting Maastricht, Aken, Eindhoven en het nabijgelegen Duitse achterland.
Bouwbergstraat 37 biedt een unieke kans om te wonen in een karaktervolle woning met ruimte, sfeer en toekomstpotentieel op een geweldige locatie.
Kom ontdekken wat deze woning u te bieden heeft!
INDELING:
KELDER:
Voorraad-/provisiekelder met opslagruimte.
BEGANE GROND:
Hal/Entree, gang met oorspronkelijke terrazzovloer en trappenhuis met authentieke bordestrap naar de verdieping. Meterkast voorzien van 3-groepsinstallatie en aardlekschakelaar. Toegang tot de kelder en woonkamer.
Klassieke voormalig en-suite woonkamer met veel lichtinval en aan de voorzijde gelegen zitkamer met rookgasaansluiting. Achtergelegen eetkamer welk de verbinding vormt naar de keukenruimte
Gesloten keuken met eenvoudige inbouwkeuken voorzien apparatuur, te weten: 4 pits gasfornuis / afzuigkap / elektrische oven / wasbak en opbergruimte.
Tussenportaal met witgoedaansluitingen voor wasmachine en droger en waar geplaatst de geiser voor de warmwatervoorziening. Toegang tot de serre/tuinkamer, het gastentoilet met staand closet en de badkamer met vaste wastafel en een douche.
Tuinkamer met lichtstraat en serre welke directe in verbinding staan met het terras, de achtertuin en de zijingang/oprit.
Garage voorzien van een handmatig bedienbare kantelpoort en voorgelegen oprit met parkeergelegenheid voor meerdere voertuigen op eigen terrein.
Diep perceel met ruime geheel omsloten tuin voorzien van een aangebouwde tuinberging, gazon, borders met aanplanting en bereikbaarheid via gemeenschappelijk achterpad.
VERDIEPING:
Ruime overloop met toegang tot de slaapvertrekken en vaste trap naar de zolder.
Aan de voorzijde gelegen een tweetal slaapkamers.
De hoofdslaapkamer bevindt zich rechtsachter.
ZOLDER:
Bergzolder onder de (deels) geïsoleerde dakconstructie, toegankelijk via een vaste trap. Standplaats voor de Vaillant CV-Ketel (Eigendom) en veel extra bergruimte. Mogelijkheid tot het realiseren van een tweetal slaapkamers.
BIJZONDERHEDEN:
* OP ROYAAL PECEEL GELEGEN HALFVRIJSTAAND WOONHUIS
* GELEGEN IN POPULAIRE EN GELIEFDE WOONOMGEVING NABIJ CENTRUM VOORZIENINGEN
* WOONKAMER, VOORMALIG ENSUITE, MET VEEL LICHTINVAL VIA GROTE RAAMPARTIJEN
* EETKAMER IN VERBINDING NAAR DE KEUKEN
* GESLOTEN KEUKENRUIMTE VOORZIEN VAN EEN EENVOUDIG KEUKENBLOK MET APPARATUUR
* TUSSENPORTAAL MET WITGOEDAANSLUITINGEN VOOR WASMACHINE EN DROGER
* ACHTERGELEGEN TUINKAMER MET LICHTSTRAAT EN SERRE MET DOORGANG NAAR TERRAS EN ACHTERTUIN
* GASTENTOILET MET STAAND CLOSET
* BADKAMER VOORZIEN VAN EEN VASTE WASTAFEL EN DOUCHE
* 3 SLAAPKAMERS OP DE VERDIEPING
* ZEER RUIME BERGZOLDER ONDER DE (DEELS) GEISOLEERDE DAKCONTRACTIE
* PROVISIE-/VOORRAADKELDER MET EXTRA OPSLAGMOGELIJKHEDEN
* GARAGE VOORZIEN VAN SMEERPUT EN HANDMATIG BEDIENBARE KANTELPOORT
* VOORGELEGEN OPRIT MET PARKEERGELEGENHEID VOOR MEERDERE VOERTUIGEN OP EIGEN TERREIN
* DIEPE ACHTERTUIN MET TERRAS, GAZON, BORDERS MET AANPLANTING
* AANGEBOUWDE STENEN TUINBERGING
* TOEGANKELIJK VIA GEMEENSCHAPPELIJK ACHTERPAD
* DAKISOLATIE GEDEELTELIJK
* DEELS KUNSTSTOF KOZIJNEN MET DEELS DUBBELE BEGLAZING EN ROLLUIKEN
* GEISER VOOR WARMWATERVOORZIENING EN VAILLANT CV-KETEL (EIGENDOM)
* ENERGIELABEL "G"
HET PAND HEEFT EEN (DEELS) GEISOLEERDE DAKCONSTRUCTIE. DEELS VOORZIEN VAN DUBBELE BEGLAZING IN KUNSTSTOF KOZIJNEN EN ROLLUIKEN. CV-KETEL VAILLANT (EIGENDOM), GEISER VOOR WARMWATERVOORZIENING. EENVOUIGE INBOUWKEUKEN MET APPARATUUR. BIJKEUKEN MET WITGOEDAANSLUITINGEN. 3 SLAAPKAMERS OP DE VERDIEPING. ROYALE ZIJ-/ACHTERTUIN MET TERRASSSEN, ZITHOEKJES EN VEEL PRIVACY. VRIJSTAANDE STENEN GARAGE MET SMEERPUT EN HANDMATIG BEDIENBARE KANTELPOORT GARAGE. VOORGELEGEN OPRIT MET PLEK VOOR MEERDERE VOERTUIGEN. GEMEENSCHAPPELIJK AACHTERPAD.
HET GEHEEL IS GELEGEN NABIJ DE DORPSKERN VAN SCHINVELD. ALLE VOORZIENINGEN IN DE DIRECTE OMGEVING O.A. WINKELS / BASISSCHOOL / BIBLIOTHEEK / SPEELTUIN / CAFETARIA / IJSSALON / DIVERSE SPORTFACILITEITEN EN MANEGES. HET WANDELGEBIED VAN DE SCHINVELDSE BOSSEN EN HET ZWEEFVLIEGVELD ZIJN OP LOOPAFSTAND BEREIKBAAR.
RUIME PARKEERFACILITEITEN IN DIRECTE OMGEVING. GOEDE ONTSLUITING VIA UITVALSWEGEN EN PARKSTADRING (N300) RICHTING MAASTRICHT, AKEN EN EINDHOVEN ALSMEDE HET DUITSE ACHTERLAND.
Ter bescherming van de belangen van zowel koper als ook verkoper wordt uitdrukkelijk gesteld dat een koopovereenkomst met betrekking tot deze onroerende zaak eerst dan tot stand komt nadat koper en verkoper de koopovereenkomst hebben ondertekend (schriftelijkheidsvereiste).
De waarborgsom/bankgarantie is 10% van de koopsom. De koper dient deze binnen 2 weken nadat het financieringsvoorbehoud is verlopen bij de desbetreffende notaris te deponeren.
Indien cv-ketel en/of warmwatervoorziening een huurtoestel is, dient koper de huurovereenkomst over te nemen. Dit geldt ook indien de zonnepanelen op huurbasis aanwezig zijn.
Alle door ons kantoor verstrekte informatie omtrent onroerende zaken, moet beschouwd worden als een uitnodiging om in onderhandeling te treden en is geheel vrijblijvend! Alle vermelde maten en afmetingen zijn slechts bij benadering. Een (eventueel) bijgevoegde plattegrond dient uitsluitend als globale indicatie/visualisatie. Aan deze beperkte informatie
kunnen geen rechten worden ontleend.
Indien in enige documentatie of op enige website informatie staat die niet overeen komt met de werkelijkheid, dan geldt de feitelijke situatie waarin de woning zich bevindt, zoals koper deze tijdens de bezichtiging heeft kunnen waarnemen, en wordt de woning in deze feitelijke situatie/staat verkocht.
+ Read more
- Read less
Construction: {{
product.build_year }}
Construction: {{ product.build_period.start }} -
{{ product.build_period.end }}
House
, Single-family house
{{ product.rooms }} rooms
{{ product.bedrooms
}} bedrooms
Living space: {{
product.living_space }} m²
Plot: {{
product.plot_surface }} m²
Energy class: {{ product.energy_class }}
Energy index: {{ product.energy_index }}
Characteristics
{{ field.label }}
{{ field.value }}
+ Read more
{{ field.label }}
{{ field.value }}
- Read less
{{ product.company.name }}
Contact us
{{ product.company.phone.replace('-', ' ').substr(0, 7) }}...
{{ product.company.phone.replace('-', ' ') }}
Share:
Date