Under offer
€ {{ product.price.replace(/\B(?=(\d{4})+(?!\d))/g, ".") }} {{ __(product.price_condition) }}
Photo’s
{{ product.images.length }}
Floorplan
{{ product.plans.length }}
360° photo’s {{ product.panoramas.length }}
Video’s {{ product.videos.length }}
Maps
All media
House for sale Van Bronsfeltstraat 7 Schinveld
€ {{ product.price.replace(/\B(?=(\d{4})+(?!\d))/g, ".") }} {{ __(product.price_condition) }}
Under offer
Description
WELKOM BIJ VAN BRONSFELTSTRAAT 7 IN SCHINVELD!
Keurig verzorgde, energiezuinige, twee-onder-een-kapwoning met garage in het pittoreske Schinveld.
In het geliefde kerkdorp Schinveld, omgeven door de uitgestrekte Schinveldse Bossen en met alle voorzieningen binnen handbereik, ligt deze keurig verzorgde twee-onder-een-kapwoning met garage en oprit. Een ideale woning voor wie comfortabel wil wonen in een rustige en kindvriendelijke omgeving, met uitstekende energievoorzieningen en veel ruimte.
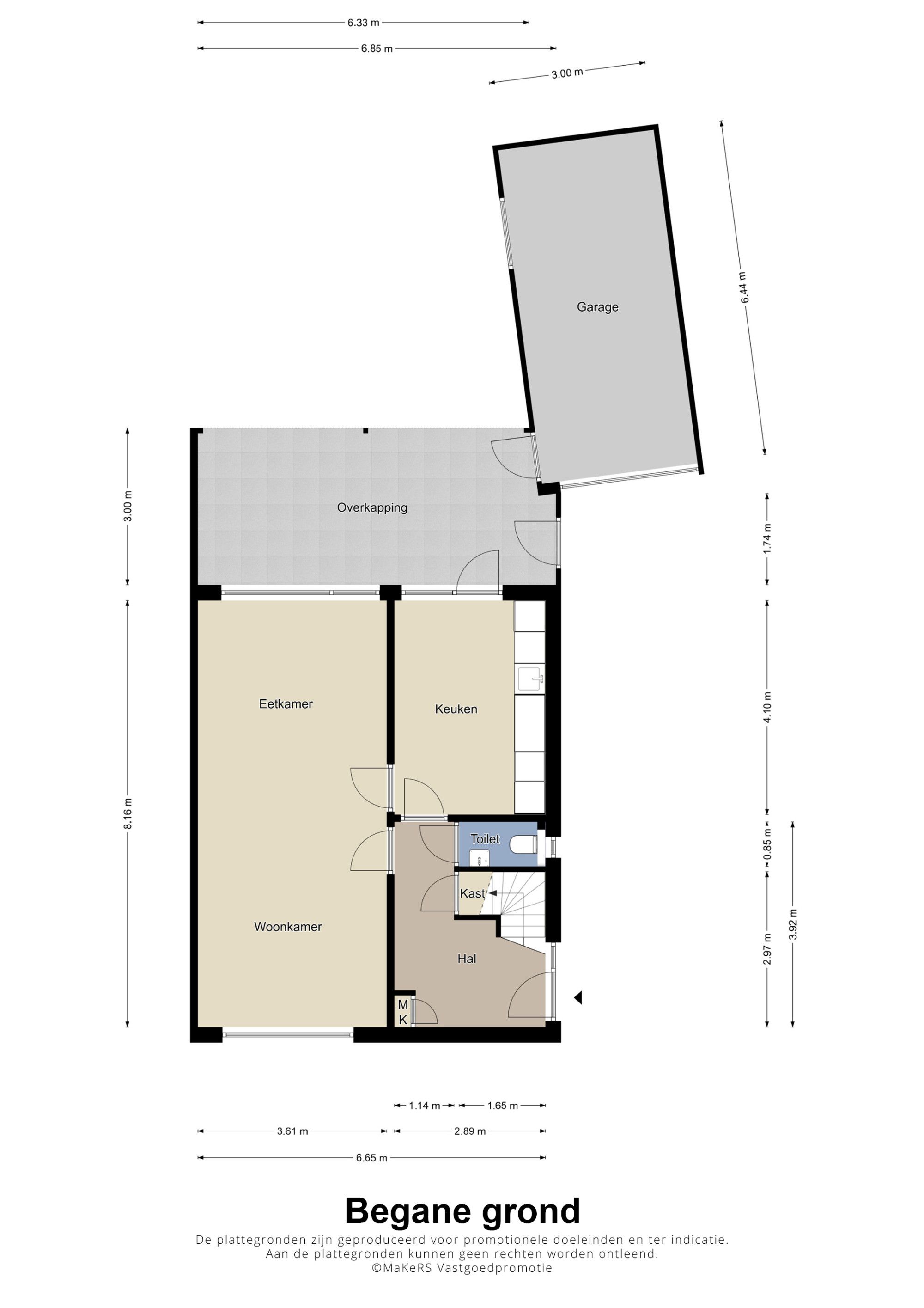
De woning beschikt over een ruime, lichte woonkamer met aan de voorzijde een gezellige zithoek voorzien van audio-/visuele aansluitingen. De achtergelegen eetkamer, uitgerust met airconditioning, staat in directe verbinding met de keuken.
De gesloten keukenruimte is ingericht met een eigentijdse inbouwkeuken voorzien van apparatuur en eveneens airconditioning. Vanuit hier bereikt u het overdekte terras en de zonnige tuin.
Het moderne gastentoilet met zwevend wandcloset en fonteintje, evenals de praktische trapkast, zorgen voor extra comfort en gebruiksgemak.
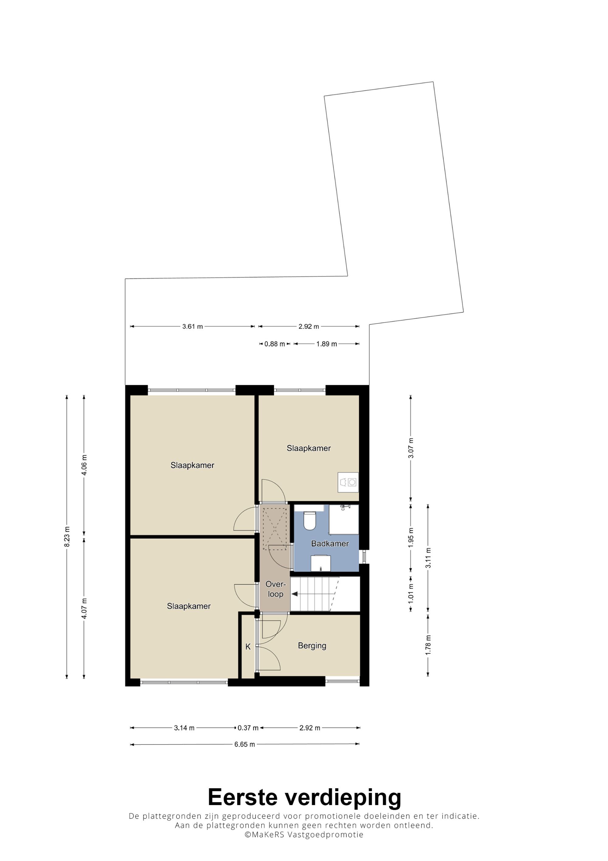
Op de verdieping bevinden zich drie ruime slaapkamers, waaronder een hoofdslaapkamer met airconditioning. Daarnaast is er een separate hobby-/studeerkamer met vaste kastenwand. De strakke, geheel betegelde badkamer is voorzien van een inloopdouche, een wastafel in badkamermeubel, designradiator en een tweede toilet.
Via een vlizotrap bereikt u de royale bergzolder, waar zich de Remeha Avanta CV-Combiketel, de Ariston Warmtepompboiler en de omvormer van de 12 zonnepanelen bevinden. Desgewenst kan hier, door het plaatsen van een vaste trap, een vierde slaapkamer worden gerealiseerd.
De fraai aangelegde en goed onderhouden achtertuin op het zuidwesten biedt een overdekt terras, gazon, borders en een handige zijingang. De stenen garage is voorzien van een elektrisch bedienbare sectionaalpoort en op de ruime oprit is plek voor meerdere auto’s.
Dankzij spouwmuurisolatie, kunststof kozijnen met dubbele beglazing, grotendeels rolluiken, 3 airco-installaties, een warmtepompboiler en 12 zonnepanelen is deze woning bijzonder energiezuinig. Het energielabel is C.
De ligging is perfect: op loopafstand van de dorpskern met winkels, supermarkt, basisschool met brede maatschappelijke voorziening, bibliotheek, speeltuin, horeca en sportfaciliteiten. Ook de Schinveldse Bossen en het zweefvliegveld liggen op een steenworp afstand. De bereikbaarheid is uitstekend via openbaar vervoer, de N274 en de Parkstadring N300 richting Maastricht, Aken, Eindhoven en het Duitse achterland.
Kortom: een instapklare, energiezuinige en comfortabele woning in een pittoreske en groene omgeving, klaar om nieuwe bewoners te verwelkomen!
Maak vandaag nog een afspraak voor een bezichtiging!
INDELING:
BEGANE GROND:
Hal / Entree, garderobehoek en trappenhuis naar de verdieping. Meterkast voorzien van 8 groepsinstallatie / kookgroep / aparte groep voor de zonnepanelen / 2x aardlekschakelaar / digitale meters met dag- en nachtstroomaansluiting. Modern geheel betegeld gastentoilet met zwevend wandcloset en fonteintje. Trapkast voor provisie en opslag. Loopdeur naar de woonkamer en keuken.
Ruime lichte woonkamer met aan de voorzijde de zithoek voorzien van audio-/visuele aansluitingen en achtergelegen eetkamer met airconditioningsinstallatie en grote raampartij. Deze is afgewerkt met een parketvloer. Doorgang naar de gesloten keuken
Een keukenruimte voorzien van airco en een eigentijdse inbouwkeuken, uitgevoerd in wit met RVS-grepen en voorzien van apparatuur, te weten: 4 zones inductie kookplaat / afzuigkap / wasbak / combimagnetron / koelkast en vaatwasmachine. Loopdeur met rol-hor naar het overdekte terras en de achtertuin.
Geheel omsloten onderhoudsvriendelijke achtertuin voorzien van een beklinkerd overdekt terras, gazon, borders met aanplanting, zijingang, toegang tot de garage en veel privacy.
Naastgelegen vrijstaande stenen garage voorzien van een elektrisch bedienbare sectionaal poort met opslagmogelijkheden en oprit met parkeergelegenheid voor meerdere voertuigen op eigen terrein.
VERDIEPING:
Overloop met toegang tot de slaapvertrekken, hobby-/studeerkamer, de badkamer en vlizotrap naar de zolder.
Aan linker achterzijde gelegen, ruime hoofdslaapkamer voorzien van een airconditioningsinstallatie. De naastgelegen slaapkamer is in gebruik als kleedkamer. Hier zijn ook de witgoedaansluitingen voor wasmachine en droger aanwezig.
Centraal op de verdieping een strakke badkamer voorzien van een inloopdouche / vaste wastafel in een badkamermeubel / tweede toilet en design radiator.
Hobby-/studeerkamer met vaste kastenwand. De slaapkamer aan de linker voorzijde is in gebruik als logeerkamer.
ZOLDER:
Vlizotrap naar de zolder. Veel bergruimte en standplaats voor de Remeha Avanta CV-Combi-ketel, de Ariston warmtepompboiler en omvormer voor de 12 zonnepanelen.
Mogelijkheid tot het realiseren van een vaste trap en extra slaapkamer.
BIJZONDERHEDEN:
* RUIME TWEE-ONDER-EEN-KAP-WONING IN GELIEFDE EN POPULAIRE WOONOMGEVING
* LICHTE WOONKAMER MET ZITHOEK VOORZIEN VAN AUDIO-/VISUELE AANSLUITINGEN
* ACHTERGELEGEN EETKAMER MET AIRCONDITIONING EN VEEL LICHTINVAL
* GESLOTEN KEUKEN MET AIRCO AAN DE ACHTERZIJDE VOORZIEN VAN EEN EIGENTIJDSE INBOUWKEUKEN
* MODERN GEHEEL BETEGELD GASTENTOILET MET ZWEVEND WANDCLOSET EN FONTEINTJE
* TRAPKAST VOOR PROVISIE EN OPSLAG
* DRIE SLAAPKAMERS OP DE VERDIEPING
* HOBBY-/STUDEERKAMER MET VASTE KASTENWAND
* STRAKKE BADKAMER MET INLOOPDOUCHE/ VASTE WASTAFEL IN EEN MEUBEL EN TWEEDE TOILET
* BERGZOLDER BEREIKBAAR MET EEN VLIZOTRAP, MOGELIJKHEID TOT VASTE TRAP EN 4E SLAAPKAMER
* OMSLOTEN ACHTERTUIN MET OVERDEKT TERRAS / GAZON / BORDERS MET AANPLANTING EN ZIJ-INGANG
* VRIJSTAANDE STENEN GARAGE VOORZIEN VAN ELEKTRISCH BEDIENBARE SECTIONAAL POORT
* OPRIT MET PARKEERGELEGENHEID VOOR MEERDERE VOERTUIGEN OP EIGEN TERREIN
* SPOUWMUURISOLATIE
* KUNSTSTOF KOZIJNEN MET DUBBELE BEGLAZING
* GROTENDEELS ROLLUIKEN
* REMEHA AVANTA CV-COMBIKETEL
* ARISTON WARMTEPOMPBOILER
* 3x AIRCONDITIONING
* 12 ZONNEPANELEN
* ENERGIELABEL "C"
HET PAND IS VOORZIEN VAN SPOUWMUURISOLATIE, KUNSTSTOF KOZIJNEN MET DUBBELE BEGLAZING EN GROTENDEELS ROLLUIKEN. REMEHA AVANTA CV-COMBI KETEL COMBIKETEL, ARISTON WARMTEPOMPBOILER, 3X AIRCONDITIONING EN 12 ZONNEPANELEN. RUIME WOONKAMER MET EN GESLOTEN KEUKEN, BEIDEN MET AIRCO. DRIE SLAAPKAMERS EN HOBBY-/STUDEERKAMER OP DE VERDIEPING. STRAKKE BADKAMER MET INLOOPDOUCHE/ VASTE WASTAFEL IN EEN MEUBEL EN EEN 2E TOILET. VLIZOTRAP NAAR RUIME BERGZOLDER, MOGELIJKHEID TOT VASTE TRAP EN 4E SLAAPKAMER. OMSLOTEN ACHTERTUIN MET OVERDEKT TERRAS / GAZON / BORDERS MET AANPLANTING EN ZIJINGANG. VRIJSTAANDE STENEN GARAGE MET ELEKTRISCHE SECTIONAAL POORT. OPRIT MET PARKEERGELEGENHEID VOOR MEERDERE VOERTUIGEN OP EIGEN TERREIN.
HET GEHEEL IS GELEGEN NABIJ DE DORPSKERN VAN SCHINVELD. ALLE VOORZIENINGEN IN DE DIRECTE OMGEVING O.A. WINKELS / BASISSCHOOL / BIBLIOTHEEK / SPEELTUIN / CAFETARIA / IJSSALON / MANEGES EN DIVERSE SPORTFACILITEITEN. HET WANDELGEBIED VAN DE SCHINVELDSE BOSSEN EN HET ZWEEFVLIEGVELD ZIJN OP LOOPAFSTAND BEREIKBAAR.
GOEDE BEREIKBAARHEID MIDDELS OPENBAAR VERVOER , UITVALSWEGEN EN PARKSTADRING (N300) RICHTING MAASTRICHT, AKEN EN EINDHOVEN ALSMEDE HET DUITSE ACHTERLAND.
Ter bescherming van de belangen van zowel koper als ook verkoper wordt uitdrukkelijk gesteld dat een koopovereenkomst met betrekking tot deze onroerende zaak eerst dan tot stand komt nadat koper en verkoper de koopovereenkomst hebben ondertekend (schriftelijkheidsvereiste).
De waarborgsom/bankgarantie is 10% van de koopsom. De koper dient deze binnen 2 weken nadat het financieringsvoorbehoud is verlopen bij de desbetreffende notaris te deponeren.
Indien cv-ketel en/of warmwatervoorziening een huurtoestel is, dient koper de huurovereenkomst over te nemen. Dit geldt ook wanneer de installatie voor de zonnepanelen op huurbasis aanwezig is.
Alle door ons kantoor verstrekte informatie omtrent onroerende zaken, moet beschouwd worden als een uitnodiging om in onderhandeling te treden en is geheel vrijblijvend! Alle vermelde maten en afmetingen zijn slechts bij benadering. Een (eventueel) bijgevoegde plattegrond dient uitsluitend als globale indicatie/visualisatie. Aan deze beperkte informatie
kunnen geen rechten worden ontleend.
Indien in enige documentatie of op enige website informatie staat die niet overeen komt met de werkelijkheid, dan geldt de feitelijke situatie waarin de woning zich bevindt, zoals koper deze tijdens de bezichtiging heeft kunnen waarnemen, en wordt de woning in deze feitelijke situatie/staat verkocht.
Keurig verzorgde, energiezuinige, twee-onder-een-kapwoning met garage in het pittoreske Schinveld.
In het geliefde kerkdorp Schinveld, omgeven door de uitgestrekte Schinveldse Bossen en met alle voorzieningen binnen handbereik, ligt deze keurig verzorgde twee-onder-een-kapwoning met garage en oprit. Een ideale woning voor wie comfortabel wil wonen in een rustige en kindvriendelijke omgeving, met uitstekende energievoorzieningen en veel ruimte.
De woning beschikt over een ruime, lichte woonkamer met aan de voorzijde een gezellige zithoek voorzien van audio-/visuele aansluitingen. De achtergelegen eetkamer, uitgerust met airconditioning, staat in directe verbinding met de keuken.
De gesloten keukenruimte is ingericht met een eigentijdse inbouwkeuken voorzien van apparatuur en eveneens airconditioning. Vanuit hier bereikt u het overdekte terras en de zonnige tuin.
Het moderne gastentoilet met zwevend wandcloset en fonteintje, evenals de praktische trapkast, zorgen voor extra comfort en gebruiksgemak.
Op de verdieping bevinden zich drie ruime slaapkamers, waaronder een hoofdslaapkamer met airconditioning. Daarnaast is er een separate hobby-/studeerkamer met vaste kastenwand. De strakke, geheel betegelde badkamer is voorzien van een inloopdouche, een wastafel in badkamermeubel, designradiator en een tweede toilet.
Via een vlizotrap bereikt u de royale bergzolder, waar zich de Remeha Avanta CV-Combiketel, de Ariston Warmtepompboiler en de omvormer van de 12 zonnepanelen bevinden. Desgewenst kan hier, door het plaatsen van een vaste trap, een vierde slaapkamer worden gerealiseerd.
De fraai aangelegde en goed onderhouden achtertuin op het zuidwesten biedt een overdekt terras, gazon, borders en een handige zijingang. De stenen garage is voorzien van een elektrisch bedienbare sectionaalpoort en op de ruime oprit is plek voor meerdere auto’s.
Dankzij spouwmuurisolatie, kunststof kozijnen met dubbele beglazing, grotendeels rolluiken, 3 airco-installaties, een warmtepompboiler en 12 zonnepanelen is deze woning bijzonder energiezuinig. Het energielabel is C.
De ligging is perfect: op loopafstand van de dorpskern met winkels, supermarkt, basisschool met brede maatschappelijke voorziening, bibliotheek, speeltuin, horeca en sportfaciliteiten. Ook de Schinveldse Bossen en het zweefvliegveld liggen op een steenworp afstand. De bereikbaarheid is uitstekend via openbaar vervoer, de N274 en de Parkstadring N300 richting Maastricht, Aken, Eindhoven en het Duitse achterland.
Kortom: een instapklare, energiezuinige en comfortabele woning in een pittoreske en groene omgeving, klaar om nieuwe bewoners te verwelkomen!
Maak vandaag nog een afspraak voor een bezichtiging!
INDELING:
BEGANE GROND:
Hal / Entree, garderobehoek en trappenhuis naar de verdieping. Meterkast voorzien van 8 groepsinstallatie / kookgroep / aparte groep voor de zonnepanelen / 2x aardlekschakelaar / digitale meters met dag- en nachtstroomaansluiting. Modern geheel betegeld gastentoilet met zwevend wandcloset en fonteintje. Trapkast voor provisie en opslag. Loopdeur naar de woonkamer en keuken.
Ruime lichte woonkamer met aan de voorzijde de zithoek voorzien van audio-/visuele aansluitingen en achtergelegen eetkamer met airconditioningsinstallatie en grote raampartij. Deze is afgewerkt met een parketvloer. Doorgang naar de gesloten keuken
Een keukenruimte voorzien van airco en een eigentijdse inbouwkeuken, uitgevoerd in wit met RVS-grepen en voorzien van apparatuur, te weten: 4 zones inductie kookplaat / afzuigkap / wasbak / combimagnetron / koelkast en vaatwasmachine. Loopdeur met rol-hor naar het overdekte terras en de achtertuin.
Geheel omsloten onderhoudsvriendelijke achtertuin voorzien van een beklinkerd overdekt terras, gazon, borders met aanplanting, zijingang, toegang tot de garage en veel privacy.
Naastgelegen vrijstaande stenen garage voorzien van een elektrisch bedienbare sectionaal poort met opslagmogelijkheden en oprit met parkeergelegenheid voor meerdere voertuigen op eigen terrein.
VERDIEPING:
Overloop met toegang tot de slaapvertrekken, hobby-/studeerkamer, de badkamer en vlizotrap naar de zolder.
Aan linker achterzijde gelegen, ruime hoofdslaapkamer voorzien van een airconditioningsinstallatie. De naastgelegen slaapkamer is in gebruik als kleedkamer. Hier zijn ook de witgoedaansluitingen voor wasmachine en droger aanwezig.
Centraal op de verdieping een strakke badkamer voorzien van een inloopdouche / vaste wastafel in een badkamermeubel / tweede toilet en design radiator.
Hobby-/studeerkamer met vaste kastenwand. De slaapkamer aan de linker voorzijde is in gebruik als logeerkamer.
ZOLDER:
Vlizotrap naar de zolder. Veel bergruimte en standplaats voor de Remeha Avanta CV-Combi-ketel, de Ariston warmtepompboiler en omvormer voor de 12 zonnepanelen.
Mogelijkheid tot het realiseren van een vaste trap en extra slaapkamer.
BIJZONDERHEDEN:
* RUIME TWEE-ONDER-EEN-KAP-WONING IN GELIEFDE EN POPULAIRE WOONOMGEVING
* LICHTE WOONKAMER MET ZITHOEK VOORZIEN VAN AUDIO-/VISUELE AANSLUITINGEN
* ACHTERGELEGEN EETKAMER MET AIRCONDITIONING EN VEEL LICHTINVAL
* GESLOTEN KEUKEN MET AIRCO AAN DE ACHTERZIJDE VOORZIEN VAN EEN EIGENTIJDSE INBOUWKEUKEN
* MODERN GEHEEL BETEGELD GASTENTOILET MET ZWEVEND WANDCLOSET EN FONTEINTJE
* TRAPKAST VOOR PROVISIE EN OPSLAG
* DRIE SLAAPKAMERS OP DE VERDIEPING
* HOBBY-/STUDEERKAMER MET VASTE KASTENWAND
* STRAKKE BADKAMER MET INLOOPDOUCHE/ VASTE WASTAFEL IN EEN MEUBEL EN TWEEDE TOILET
* BERGZOLDER BEREIKBAAR MET EEN VLIZOTRAP, MOGELIJKHEID TOT VASTE TRAP EN 4E SLAAPKAMER
* OMSLOTEN ACHTERTUIN MET OVERDEKT TERRAS / GAZON / BORDERS MET AANPLANTING EN ZIJ-INGANG
* VRIJSTAANDE STENEN GARAGE VOORZIEN VAN ELEKTRISCH BEDIENBARE SECTIONAAL POORT
* OPRIT MET PARKEERGELEGENHEID VOOR MEERDERE VOERTUIGEN OP EIGEN TERREIN
* SPOUWMUURISOLATIE
* KUNSTSTOF KOZIJNEN MET DUBBELE BEGLAZING
* GROTENDEELS ROLLUIKEN
* REMEHA AVANTA CV-COMBIKETEL
* ARISTON WARMTEPOMPBOILER
* 3x AIRCONDITIONING
* 12 ZONNEPANELEN
* ENERGIELABEL "C"
HET PAND IS VOORZIEN VAN SPOUWMUURISOLATIE, KUNSTSTOF KOZIJNEN MET DUBBELE BEGLAZING EN GROTENDEELS ROLLUIKEN. REMEHA AVANTA CV-COMBI KETEL COMBIKETEL, ARISTON WARMTEPOMPBOILER, 3X AIRCONDITIONING EN 12 ZONNEPANELEN. RUIME WOONKAMER MET EN GESLOTEN KEUKEN, BEIDEN MET AIRCO. DRIE SLAAPKAMERS EN HOBBY-/STUDEERKAMER OP DE VERDIEPING. STRAKKE BADKAMER MET INLOOPDOUCHE/ VASTE WASTAFEL IN EEN MEUBEL EN EEN 2E TOILET. VLIZOTRAP NAAR RUIME BERGZOLDER, MOGELIJKHEID TOT VASTE TRAP EN 4E SLAAPKAMER. OMSLOTEN ACHTERTUIN MET OVERDEKT TERRAS / GAZON / BORDERS MET AANPLANTING EN ZIJINGANG. VRIJSTAANDE STENEN GARAGE MET ELEKTRISCHE SECTIONAAL POORT. OPRIT MET PARKEERGELEGENHEID VOOR MEERDERE VOERTUIGEN OP EIGEN TERREIN.
HET GEHEEL IS GELEGEN NABIJ DE DORPSKERN VAN SCHINVELD. ALLE VOORZIENINGEN IN DE DIRECTE OMGEVING O.A. WINKELS / BASISSCHOOL / BIBLIOTHEEK / SPEELTUIN / CAFETARIA / IJSSALON / MANEGES EN DIVERSE SPORTFACILITEITEN. HET WANDELGEBIED VAN DE SCHINVELDSE BOSSEN EN HET ZWEEFVLIEGVELD ZIJN OP LOOPAFSTAND BEREIKBAAR.
GOEDE BEREIKBAARHEID MIDDELS OPENBAAR VERVOER , UITVALSWEGEN EN PARKSTADRING (N300) RICHTING MAASTRICHT, AKEN EN EINDHOVEN ALSMEDE HET DUITSE ACHTERLAND.
Ter bescherming van de belangen van zowel koper als ook verkoper wordt uitdrukkelijk gesteld dat een koopovereenkomst met betrekking tot deze onroerende zaak eerst dan tot stand komt nadat koper en verkoper de koopovereenkomst hebben ondertekend (schriftelijkheidsvereiste).
De waarborgsom/bankgarantie is 10% van de koopsom. De koper dient deze binnen 2 weken nadat het financieringsvoorbehoud is verlopen bij de desbetreffende notaris te deponeren.
Indien cv-ketel en/of warmwatervoorziening een huurtoestel is, dient koper de huurovereenkomst over te nemen. Dit geldt ook wanneer de installatie voor de zonnepanelen op huurbasis aanwezig is.
Alle door ons kantoor verstrekte informatie omtrent onroerende zaken, moet beschouwd worden als een uitnodiging om in onderhandeling te treden en is geheel vrijblijvend! Alle vermelde maten en afmetingen zijn slechts bij benadering. Een (eventueel) bijgevoegde plattegrond dient uitsluitend als globale indicatie/visualisatie. Aan deze beperkte informatie
kunnen geen rechten worden ontleend.
Indien in enige documentatie of op enige website informatie staat die niet overeen komt met de werkelijkheid, dan geldt de feitelijke situatie waarin de woning zich bevindt, zoals koper deze tijdens de bezichtiging heeft kunnen waarnemen, en wordt de woning in deze feitelijke situatie/staat verkocht.
+ Read more
- Read less
Construction: {{
product.build_year }}
Construction: {{ product.build_period.start }} -
{{ product.build_period.end }}
House
, Single-family house
{{ product.rooms }} rooms
{{ product.bedrooms
}} bedrooms
Living space: {{
product.living_space }} m²
Plot: {{
product.plot_surface }} m²
Energy class: {{ product.energy_class }}
Energy index: {{ product.energy_index }}
Characteristics
{{ field.label }}
{{ field.value }}
+ Read more
{{ field.label }}
{{ field.value }}
- Read less
{{ product.company.name }}
Contact us
{{ product.company.phone.replace('-', ' ').substr(0, 7) }}...
{{ product.company.phone.replace('-', ' ') }}
Share:
Date