Available
€ {{ product.price.replace(/\B(?=(\d{4})+(?!\d))/g, ".") }} {{ __(product.price_condition) }}
Photo’s
{{ product.images.length }}
Floorplan
{{ product.plans.length }}
360° photo’s {{ product.panoramas.length }}
Video’s {{ product.videos.length }}
Maps
All media
House for sale Midden Peelweg 5 T124 Sevenum
€ {{ product.price.replace(/\B(?=(\d{4})+(?!\d))/g, ".") }} {{ __(product.price_condition) }}
Available
Description
Landal de Schatberg, landelijk gelegen in Sevenum (gemeente Horst a/d Maas), is een mooi en compleet vakantieparken in Noord-Limburg. Het park grenst aan de Peel en prachtige uitgestrekte bossen in de Maasduinen. Het is prima bereikbaar en ligt vlak bij de A-67 naar Duitsland. Een compleet park met heel wat faciliteiten voor jong en oud zoals o.a.:
• een binnen- en buitenzwembad, natuurbad met ligweide
• indoorspeeltuin en waterspeeltuin
• Buiten klimpark
• diverse sport en speelvelden, bowlingbaan
• Waterski en waterboard park
• diverse restaurants
• supermarkt
• kidsclub / animatieteam
In de directe omgeving vinden we diverse attracties zoals de bekende attractiepark Toverland, natuurpark de Peel en nationaal Park de Maasduinen.
De omgeving nodigt uit voor prachtige wandel- en fietsroutes door bijvoorbeeld de Peel en de landerijen en bossen.
Midden aan de rand op het park ligt de vrijstaande 8-persoons stijlvolle recreatiewoning nr. 124 op een prachtige rustige plek. De woning is gelegen op een hoger perceel op 560 m2 eigen grond met rondom tuin met veel privacy en ruim terras.
Indeling:
Begane grond: vanuit de hal is er de toegang tot een geheel betegeld separaat toilet met fonteintje en de woonkamer met open keuken. De ruime woonkamer is voorzien van 2 openslaande deuren die toegang geven tot een royaal betegeld terras met uitzicht op de ruime tuin. De keuken is voorzien van een vaatwasser, grote koelkast, combimagnetron, afzuigkap en 5 pits kookplaat met wok brander. Vanuit de woonkamer via een kleine hal heeft u toegang tot twee 2 persoonsslaapkamers en badkamer met wastafel en douche.
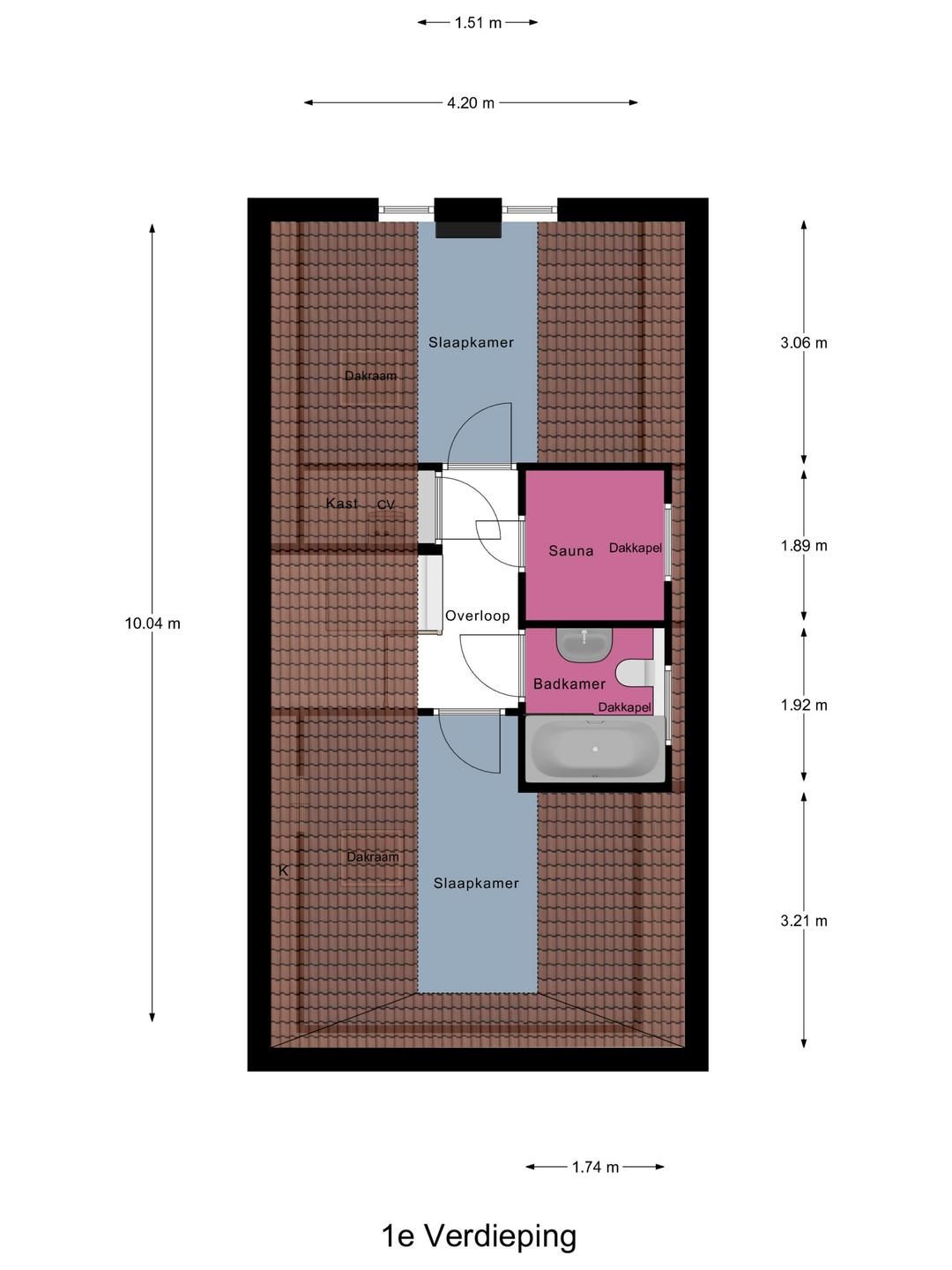
Vanuit de hal is de 1e verdieping met 2 tweepersoons slaapkamers te bereiken. De badkamer is voorzien van een ligbad, wastafel en 2e toilet. Er is tevens een infrarood sauna aanwezig.
Kenmerken:
- Royale achtertuin met terras en veel privacy, grenzend aan de golfbaan.
- De gehele begane grond is voorzien van vloerverwarming;
- Deze woning is ideaal voor de verhuur, i.c.m. eigen gebruik.
- Deze recreatiewoning wordt nu verhuurd via Landal de Schatberg.
AANSPRAKELIJKHEID
Het bovenstaande behelst slechts een globale omschrijving van een object. De informatie berust deels op door derden aan onze kantoren verstrekte gegevens. Met de meeste zorg hebben wij deze informatie verwerkt doch kunnen ten aanzien van de juistheid van deze gegevens geen aansprakelijkheid aanvaarden. Aan deze brochure kunnen geen rechten worden ontleend.
ONTBINDING
De termijn die wordt opgenomen voor eventuele (overeengekomen) ontbindende voorwaarden (b.v. financiering) is in de regel circa 4 weken na het sluiten van de mondelinge wilsovereenkomst.
ZEKERHEIDSSTELLING
De waarborgsom/bankgarantie is 10% van de koopsom. De koper dient deze binnen 7 dagen na definitieve overeenkomst bij de desbetreffende notaris te deponeren.
ONDERZOEKSPLICHT VAN DE KOPER
Koper is te allen tijde gerechtigd voor eigen rekening een bouwkundige keuring te (laten) verrichten dan wel andere adviseurs te raadplegen teneinde een goed inzicht te verkrijgen in de staat van onderhoud.
• een binnen- en buitenzwembad, natuurbad met ligweide
• indoorspeeltuin en waterspeeltuin
• Buiten klimpark
• diverse sport en speelvelden, bowlingbaan
• Waterski en waterboard park
• diverse restaurants
• supermarkt
• kidsclub / animatieteam
In de directe omgeving vinden we diverse attracties zoals de bekende attractiepark Toverland, natuurpark de Peel en nationaal Park de Maasduinen.
De omgeving nodigt uit voor prachtige wandel- en fietsroutes door bijvoorbeeld de Peel en de landerijen en bossen.
Midden aan de rand op het park ligt de vrijstaande 8-persoons stijlvolle recreatiewoning nr. 124 op een prachtige rustige plek. De woning is gelegen op een hoger perceel op 560 m2 eigen grond met rondom tuin met veel privacy en ruim terras.
Indeling:
Begane grond: vanuit de hal is er de toegang tot een geheel betegeld separaat toilet met fonteintje en de woonkamer met open keuken. De ruime woonkamer is voorzien van 2 openslaande deuren die toegang geven tot een royaal betegeld terras met uitzicht op de ruime tuin. De keuken is voorzien van een vaatwasser, grote koelkast, combimagnetron, afzuigkap en 5 pits kookplaat met wok brander. Vanuit de woonkamer via een kleine hal heeft u toegang tot twee 2 persoonsslaapkamers en badkamer met wastafel en douche.
Vanuit de hal is de 1e verdieping met 2 tweepersoons slaapkamers te bereiken. De badkamer is voorzien van een ligbad, wastafel en 2e toilet. Er is tevens een infrarood sauna aanwezig.
Kenmerken:
- Royale achtertuin met terras en veel privacy, grenzend aan de golfbaan.
- De gehele begane grond is voorzien van vloerverwarming;
- Deze woning is ideaal voor de verhuur, i.c.m. eigen gebruik.
- Deze recreatiewoning wordt nu verhuurd via Landal de Schatberg.
AANSPRAKELIJKHEID
Het bovenstaande behelst slechts een globale omschrijving van een object. De informatie berust deels op door derden aan onze kantoren verstrekte gegevens. Met de meeste zorg hebben wij deze informatie verwerkt doch kunnen ten aanzien van de juistheid van deze gegevens geen aansprakelijkheid aanvaarden. Aan deze brochure kunnen geen rechten worden ontleend.
ONTBINDING
De termijn die wordt opgenomen voor eventuele (overeengekomen) ontbindende voorwaarden (b.v. financiering) is in de regel circa 4 weken na het sluiten van de mondelinge wilsovereenkomst.
ZEKERHEIDSSTELLING
De waarborgsom/bankgarantie is 10% van de koopsom. De koper dient deze binnen 7 dagen na definitieve overeenkomst bij de desbetreffende notaris te deponeren.
ONDERZOEKSPLICHT VAN DE KOPER
Koper is te allen tijde gerechtigd voor eigen rekening een bouwkundige keuring te (laten) verrichten dan wel andere adviseurs te raadplegen teneinde een goed inzicht te verkrijgen in de staat van onderhoud.
+ Read more
- Read less
Construction: {{
product.build_year }}
Construction: {{ product.build_period.start }} -
{{ product.build_period.end }}
House
, Single-family house
{{ product.rooms }} rooms
{{ product.bedrooms
}} bedrooms
Living space: {{
product.living_space }} m²
Plot: {{
product.plot_surface }} m²
Energy class: {{ product.energy_class }}
Energy index: {{ product.energy_index }}
Characteristics
{{ field.label }}
{{ field.value }}
+ Read more
{{ field.label }}
{{ field.value }}
- Read less
{{ product.company.name }}
Contact us
{{ product.company.phone.replace('-', ' ').substr(0, 7) }}...
{{ product.company.phone.replace('-', ' ') }}
Share:
Date