Sold
€ {{ product.price.replace(/\B(?=(\d{4})+(?!\d))/g, ".") }} {{ __(product.price_condition) }}
Photo’s
{{ product.images.length }}
Floorplan
{{ product.plans.length }}
360° photo’s {{ product.panoramas.length }}
Video’s {{ product.videos.length }}
Maps
All media
House for sale Overhoven 53 Sittard
€ {{ product.price.replace(/\B(?=(\d{4})+(?!\d))/g, ".") }} {{ __(product.price_condition) }}
Sold
Description
Ben jij op zoek naar een fijne gezinswoning met volop ruimte, een diepe tuin én een centrale ligging nabij het centrum van Sittard? Dan is Overhoven 53 precies wat je zoekt! Deze karakteristieke woning uit 1951 ligt op een royaal perceel van maar liefst 355 m², beschikt over drie slaapkamers, een ruime zolder en een praktische kelder. De kunststof kozijnen met rolluiken, de diepe tuin met meerdere bergingen én de ligging op loopafstand van winkels, het centrum en voorzieningen maken dit huis tot een ideale basis voor wie comfortabel wil wonen en tegelijk graag de handen uit de mouwen steekt om het verder naar eigen smaak te moderniseren.
Leuk om te weten:
- Bouwjaar 1951 (conform BAG), eigen perceel: 355m² (conform kadaster);
- Woonoppervlakte ca. 114m², overige inpandige ruimte ca. 16m², (meetrapport aanwezig);
- Voorzien van kunststof kozijnen en rolluiken op alle ramen (elektrisch voorzijde, handmatig elders)
- Verwarming via CV-installatie (AWB) en warm water via Bosch boiler
- Diepe achtertuin met twee ruime bergingen/schuurtjes
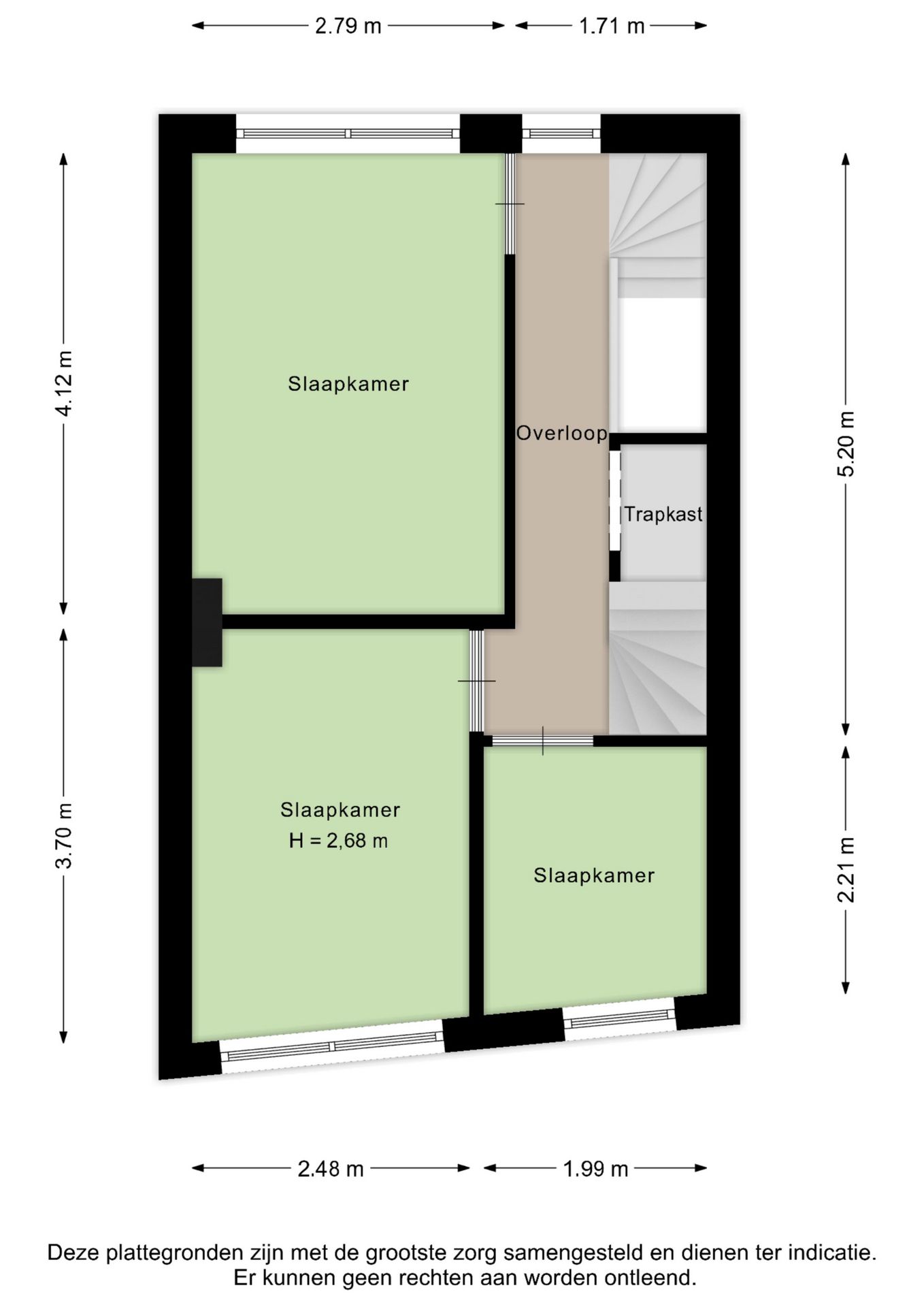
ALLE AFMETINGEN ZIJN TERUG TE VINDEN OP DE PLATTEGRONDEN!
LET OP! Projectnotaris: Clercx Leenders Netwerk Notarissen in Breda.
INDELING:
Souterrain:
Het souterrain is ideaal als voorraadkelder of gewoon voor extra bergruimte.
Begane grond:
Je komt binnen in een betegelde hal met aan de rechterzijde de meterkast en aan de linkerzijde de toegang tot de woonkamer. De hal biedt ook toegang tot de trap naar de eerste verdieping.
De woonkamer is voorzien van een raam aan de voorzijde met elektrisch rolluik; alle overige ramen in de woning zijn uitgerust met handbediende rolluiken. Vanuit de woonkamer heb je toegang tot de deur naar het souterrain en een deur naar de keuken.
De keuken is eenvoudig maar functioneel ingericht en voorzien van een 4-pits gasfornuis, vaatwasser, koelkast, spoelbak en veel opbergkastjes. Hier bevindt zich ook de Bosch boiler. Vanuit de keuken heb je toegang tot de achtertuin, het apart toilet met fonteintje en de badkamer.
De badkamer is volledig betegeld en uitgerust met een inloopdouche met zitgedeelte, een wastafelmeubel en een handdoekradiator. Praktisch en ruim van opzet – alles wat je nodig hebt op de begane grond.
Eerste verdieping:
Op de overloop bevindt zich een klein opbergkastje. De verdieping biedt toegang tot drie slaapkamers, allemaal voorzien van goede afmetingen. Ideaal voor een gezin, kantoor aan huis of hobbyruimte. Een vaste trap op de overloop leidt naar de zolder.
Zolder:
De zolderverdieping is bereikbaar via een vaste trap en biedt volop mogelijkheden. Hier bevindt zich ook de CV-ketel (AWB). Deze ruimte is perfect als bergzolder, extra slaapkamer of werkkamer.
Tuin:
De lange achtertuin is deels betegeld en biedt daarnaast veel groen – een ideale combinatie van speelruimte, zonplek en natuurlijke sfeer. Je vindt hier twee ruime bergingen, ideaal voor fietsen, gereedschap of tuinspullen. Dankzij de diepte van het perceel geniet je hier van rust, privacy en volop mogelijkheden om de tuin naar eigen wens in te richten.
De waarborgsom/bankgarantie is 10% van de koopsom. De koper dient deze, indien de verkoper en koper dit overeenkomen, binnen 2 weken nadat het financieringsvoorbehoud is verlopen bij de desbetreffende notaris te deponeren.
Ter bescherming van de belangen van zowel koper als ook verkoper wordt uitdrukkelijk gesteld dat een koopovereenkomst met betrekking tot deze onroerende zaak eerst dan tot stand komt nadat koper en verkoper de koopovereenkomst hebben getekend (schriftelijkheidsvereiste).
Indien c.v. ketel en/of warmwatervoorziening een huurtoestel is, dient koper de huurovereenkomst over te nemen.
Alle door ons kantoor verstrekte informatie omtrent onroerende zaken, moet beschouwd worden als een uitnodiging om in onderhandeling te treden, en is geheel vrijblijvend! Alle vermelde maten en afmetingen zijn slechts bij benadering. Aan deze beperkte info kunnen geen rechten worden ontleend. Indien in enige documentatie of op enige website informatie staat die niet overeen komt met de werkelijkheid, dan geldt de feitelijke situatie waarin de woning zich bevindt, zoals koper deze tijdens de bezichtiging heeft kunnen waarnemen, en wordt de woning in deze feitelijke situatie/staat verkocht. Een (eventueel) bijgevoegde plattegrond dient uitsluitend als globale indicatie/visualisatie. Hieraan kunnen uitdrukkelijk geen rechten worden ontleend.
De makelaar Ray van der Venne nodigt u uit voor een bezichtiging.
Leuk om te weten:
- Bouwjaar 1951 (conform BAG), eigen perceel: 355m² (conform kadaster);
- Woonoppervlakte ca. 114m², overige inpandige ruimte ca. 16m², (meetrapport aanwezig);
- Voorzien van kunststof kozijnen en rolluiken op alle ramen (elektrisch voorzijde, handmatig elders)
- Verwarming via CV-installatie (AWB) en warm water via Bosch boiler
- Diepe achtertuin met twee ruime bergingen/schuurtjes
ALLE AFMETINGEN ZIJN TERUG TE VINDEN OP DE PLATTEGRONDEN!
LET OP! Projectnotaris: Clercx Leenders Netwerk Notarissen in Breda.
INDELING:
Souterrain:
Het souterrain is ideaal als voorraadkelder of gewoon voor extra bergruimte.
Begane grond:
Je komt binnen in een betegelde hal met aan de rechterzijde de meterkast en aan de linkerzijde de toegang tot de woonkamer. De hal biedt ook toegang tot de trap naar de eerste verdieping.
De woonkamer is voorzien van een raam aan de voorzijde met elektrisch rolluik; alle overige ramen in de woning zijn uitgerust met handbediende rolluiken. Vanuit de woonkamer heb je toegang tot de deur naar het souterrain en een deur naar de keuken.
De keuken is eenvoudig maar functioneel ingericht en voorzien van een 4-pits gasfornuis, vaatwasser, koelkast, spoelbak en veel opbergkastjes. Hier bevindt zich ook de Bosch boiler. Vanuit de keuken heb je toegang tot de achtertuin, het apart toilet met fonteintje en de badkamer.
De badkamer is volledig betegeld en uitgerust met een inloopdouche met zitgedeelte, een wastafelmeubel en een handdoekradiator. Praktisch en ruim van opzet – alles wat je nodig hebt op de begane grond.
Eerste verdieping:
Op de overloop bevindt zich een klein opbergkastje. De verdieping biedt toegang tot drie slaapkamers, allemaal voorzien van goede afmetingen. Ideaal voor een gezin, kantoor aan huis of hobbyruimte. Een vaste trap op de overloop leidt naar de zolder.
Zolder:
De zolderverdieping is bereikbaar via een vaste trap en biedt volop mogelijkheden. Hier bevindt zich ook de CV-ketel (AWB). Deze ruimte is perfect als bergzolder, extra slaapkamer of werkkamer.
Tuin:
De lange achtertuin is deels betegeld en biedt daarnaast veel groen – een ideale combinatie van speelruimte, zonplek en natuurlijke sfeer. Je vindt hier twee ruime bergingen, ideaal voor fietsen, gereedschap of tuinspullen. Dankzij de diepte van het perceel geniet je hier van rust, privacy en volop mogelijkheden om de tuin naar eigen wens in te richten.
De waarborgsom/bankgarantie is 10% van de koopsom. De koper dient deze, indien de verkoper en koper dit overeenkomen, binnen 2 weken nadat het financieringsvoorbehoud is verlopen bij de desbetreffende notaris te deponeren.
Ter bescherming van de belangen van zowel koper als ook verkoper wordt uitdrukkelijk gesteld dat een koopovereenkomst met betrekking tot deze onroerende zaak eerst dan tot stand komt nadat koper en verkoper de koopovereenkomst hebben getekend (schriftelijkheidsvereiste).
Indien c.v. ketel en/of warmwatervoorziening een huurtoestel is, dient koper de huurovereenkomst over te nemen.
Alle door ons kantoor verstrekte informatie omtrent onroerende zaken, moet beschouwd worden als een uitnodiging om in onderhandeling te treden, en is geheel vrijblijvend! Alle vermelde maten en afmetingen zijn slechts bij benadering. Aan deze beperkte info kunnen geen rechten worden ontleend. Indien in enige documentatie of op enige website informatie staat die niet overeen komt met de werkelijkheid, dan geldt de feitelijke situatie waarin de woning zich bevindt, zoals koper deze tijdens de bezichtiging heeft kunnen waarnemen, en wordt de woning in deze feitelijke situatie/staat verkocht. Een (eventueel) bijgevoegde plattegrond dient uitsluitend als globale indicatie/visualisatie. Hieraan kunnen uitdrukkelijk geen rechten worden ontleend.
De makelaar Ray van der Venne nodigt u uit voor een bezichtiging.
+ Read more
- Read less
Construction: {{
product.build_year }}
Construction: {{ product.build_period.start }} -
{{ product.build_period.end }}
House
, Single-family house
{{ product.rooms }} rooms
{{ product.bedrooms
}} bedrooms
Living space: {{
product.living_space }} m²
Plot: {{
product.plot_surface }} m²
Energy class: {{ product.energy_class }}
Energy index: {{ product.energy_index }}
Characteristics
{{ field.label }}
{{ field.value }}
+ Read more
{{ field.label }}
{{ field.value }}
- Read less
{{ product.company.name }}
Contact us
{{ product.company.phone.replace('-', ' ').substr(0, 7) }}...
{{ product.company.phone.replace('-', ' ') }}
Share:
Date