Sold
€ {{ product.price.replace(/\B(?=(\d{4})+(?!\d))/g, ".") }} {{ __(product.price_condition) }}
Photo’s
{{ product.images.length }}
Floorplan
{{ product.plans.length }}
360° photo’s {{ product.panoramas.length }}
Video’s {{ product.videos.length }}
Maps
All media
House for sale Merelstraat 3 Spaubeek
€ {{ product.price.replace(/\B(?=(\d{4})+(?!\d))/g, ".") }} {{ __(product.price_condition) }}
Sold
Description
Op een aantrekkelijke locatie in het charmante kerkdorp Spaubeek staat deze ruime en uitstekend onderhouden gezinswoning met energielabel A. De woning biedt volop comfort, moderne voorzieningen en een fraaie afwerking. Dankzij de gunstige ligging bereikt u binnen enkele autominuten de belangrijkste uitvalswegen en de autosnelweg richting Heerlen en Aken. Ideaal voor gezinnen en forenzen.
Met maar liefst vier slaapkamers, 15 zonnepanelen, vloerverwarming en een garage en berging, is dit een toekomstbestendige woning waar u direct in kunt trekken.
INDELING:
BEGANE GROND:
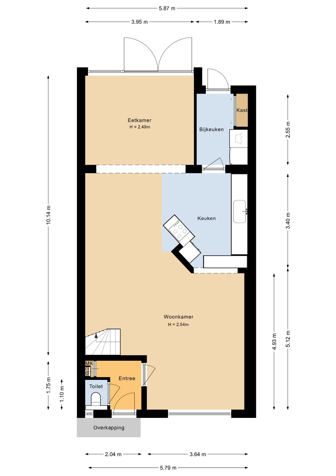
Hal/entree met meterkast en moderne toiletruimte met zwevend closet.
Riante, sfeervolle woonkamer met pvc-vloer en comfortabele vloerverwarming
Open keuken in U-opstelling, compleet met Miele apparatuur: 4-pits inductiekooktoestel,
wasemkap, koelkast, stoomoven, combi-oven, vaatwasser en twee warmhoudlades.
Bijkeuken met witgoedaansluiting en extra bergruimte.
De woonkamer geeft middels een schuifpui toegang tot de omsloten, net aangelegde
tuin met achterom en berging met kastruimte. Separate garage.
EERSTE VERDIEPING:
Overloop met toegang tot drie ruime slaapkamers, respectievelijk:
Slaapkamer 1: ca. 4.81x3.20m met parketvloer en airconditioning
Slaapkamer 2: ca. 3.78x3.21/2.54m met parketvloer.
Slaapkamer 3: ca. 3.70x2.63m met parketvloer.
Middels glazen deur te bereiken badkamer met vloerverwarming voorzien van inloopdouche,
dubbele vaste wastafel met meubel, designradiator en tweede toilet.
TWEEDE VERDIEPING:
Middels vaste trap te bereiken zolderverdieping met overloop en berging, alwaar standplaats
c.v.-installatie Nefit Topline HR en omvormer zonnepanelen.
Middels glazen deur te bereiken riante vierde slaapkamer met airconditioning en bergruimte.
BIJZONDERHEDEN:
- Royale eengezinswoning met luxe afwerking
- Alarmsysteem (aangesloten op meldkamer)
- Energielabel A, zeer energiezuinig dankzij 15 zonnepanelen
- Instapklaar en uitstekend onderhouden
- Geheel voorzien van kunststof kozijnen met dubbele beglazing
- De gehele woning is voorzien van elektrische rolluiken
- Aanvaarding in overleg.
Interesse? Wij nemen graag de tijd voor u! Neem contact op via het contactformulier op Funda of op onze website en we laten u de woning graag zien.
Overige informatie
De gebruikelijke waarborgsom/bankgarantie is 10% van de koopsom. De koper dient deze, indien de verkoper en koper dit overeenkomen, binnen 2 weken nadat het financieringsvoorbehoud is verlopen bij de desbetreffende notaris te deponeren.
Schriftelijkheidsvereiste
Conform artikel 7:2 Burgerlijk Wetboek, is er pas sprake van een rechtsgeldige koopovereenkomst als de particuliere verkoper en de particuliere koper de koopovereenkomst hebben ondertekend. Een mondelinge overeenstemming tussen de particuliere verkoper en de particuliere koper is niet rechts- geldig.
Disclaimer
Alle door ons kantoor verstrekte informatie omtrent onroerende zaken, moet beschouwd worden als een uitnodiging om in onderhandeling te treden, en is geheel vrijblijvend! Alle vermelde maten en afmetingen zijn slechts bij benadering. Aan deze beperkte informatie kunnen geen rechten worden ontleend. Indien in enige documentatie of op enige website informatie staat die niet overeen komt met de werkelijkheid, dan geldt de feitelijke situatie waarin de woning zich bevindt, zoals koper deze tijdens de bezichtiging heeft kunnen waarnemen, en wordt de woning in deze feitelijke situatie/staat verkocht. Een (eventueel) bijgevoegde plattegrond dient uitsluitend als globale indicatie/visualisatie. Hieraan kunnen uitdrukkelijk geen rechten worden ontleend.
Uw makelaar Ralf Last nodigt u graag uit voor een bezichtiging.
Met maar liefst vier slaapkamers, 15 zonnepanelen, vloerverwarming en een garage en berging, is dit een toekomstbestendige woning waar u direct in kunt trekken.
INDELING:
BEGANE GROND:
Hal/entree met meterkast en moderne toiletruimte met zwevend closet.
Riante, sfeervolle woonkamer met pvc-vloer en comfortabele vloerverwarming
Open keuken in U-opstelling, compleet met Miele apparatuur: 4-pits inductiekooktoestel,
wasemkap, koelkast, stoomoven, combi-oven, vaatwasser en twee warmhoudlades.
Bijkeuken met witgoedaansluiting en extra bergruimte.
De woonkamer geeft middels een schuifpui toegang tot de omsloten, net aangelegde
tuin met achterom en berging met kastruimte. Separate garage.
EERSTE VERDIEPING:
Overloop met toegang tot drie ruime slaapkamers, respectievelijk:
Slaapkamer 1: ca. 4.81x3.20m met parketvloer en airconditioning
Slaapkamer 2: ca. 3.78x3.21/2.54m met parketvloer.
Slaapkamer 3: ca. 3.70x2.63m met parketvloer.
Middels glazen deur te bereiken badkamer met vloerverwarming voorzien van inloopdouche,
dubbele vaste wastafel met meubel, designradiator en tweede toilet.
TWEEDE VERDIEPING:
Middels vaste trap te bereiken zolderverdieping met overloop en berging, alwaar standplaats
c.v.-installatie Nefit Topline HR en omvormer zonnepanelen.
Middels glazen deur te bereiken riante vierde slaapkamer met airconditioning en bergruimte.
BIJZONDERHEDEN:
- Royale eengezinswoning met luxe afwerking
- Alarmsysteem (aangesloten op meldkamer)
- Energielabel A, zeer energiezuinig dankzij 15 zonnepanelen
- Instapklaar en uitstekend onderhouden
- Geheel voorzien van kunststof kozijnen met dubbele beglazing
- De gehele woning is voorzien van elektrische rolluiken
- Aanvaarding in overleg.
Interesse? Wij nemen graag de tijd voor u! Neem contact op via het contactformulier op Funda of op onze website en we laten u de woning graag zien.
Overige informatie
De gebruikelijke waarborgsom/bankgarantie is 10% van de koopsom. De koper dient deze, indien de verkoper en koper dit overeenkomen, binnen 2 weken nadat het financieringsvoorbehoud is verlopen bij de desbetreffende notaris te deponeren.
Schriftelijkheidsvereiste
Conform artikel 7:2 Burgerlijk Wetboek, is er pas sprake van een rechtsgeldige koopovereenkomst als de particuliere verkoper en de particuliere koper de koopovereenkomst hebben ondertekend. Een mondelinge overeenstemming tussen de particuliere verkoper en de particuliere koper is niet rechts- geldig.
Disclaimer
Alle door ons kantoor verstrekte informatie omtrent onroerende zaken, moet beschouwd worden als een uitnodiging om in onderhandeling te treden, en is geheel vrijblijvend! Alle vermelde maten en afmetingen zijn slechts bij benadering. Aan deze beperkte informatie kunnen geen rechten worden ontleend. Indien in enige documentatie of op enige website informatie staat die niet overeen komt met de werkelijkheid, dan geldt de feitelijke situatie waarin de woning zich bevindt, zoals koper deze tijdens de bezichtiging heeft kunnen waarnemen, en wordt de woning in deze feitelijke situatie/staat verkocht. Een (eventueel) bijgevoegde plattegrond dient uitsluitend als globale indicatie/visualisatie. Hieraan kunnen uitdrukkelijk geen rechten worden ontleend.
Uw makelaar Ralf Last nodigt u graag uit voor een bezichtiging.
+ Read more
- Read less
Construction: {{
product.build_year }}
Construction: {{ product.build_period.start }} -
{{ product.build_period.end }}
House
, Single-family house
{{ product.rooms }} rooms
{{ product.bedrooms
}} bedrooms
Living space: {{
product.living_space }} m²
Plot: {{
product.plot_surface }} m²
Energy class: {{ product.energy_class }}
Energy index: {{ product.energy_index }}
Characteristics
{{ field.label }}
{{ field.value }}
+ Read more
{{ field.label }}
{{ field.value }}
- Read less
{{ product.company.name }}
Contact us
{{ product.company.phone.replace('-', ' ').substr(0, 7) }}...
{{ product.company.phone.replace('-', ' ') }}
Share:
Date