Sold
€ {{ product.price.replace(/\B(?=(\d{4})+(?!\d))/g, ".") }} {{ __(product.price_condition) }}
Photo’s
{{ product.images.length }}
Floorplan
{{ product.plans.length }}
360° photo’s {{ product.panoramas.length }}
Video’s {{ product.videos.length }}
Maps
All media
House for sale Hoppertstraat 11 Stramproy
€ {{ product.price.replace(/\B(?=(\d{4})+(?!\d))/g, ".") }} {{ __(product.price_condition) }}
Sold
Description
Ben je op zoek naar een instapklare woning die geen renovaties meer nodig heeft? Zoek niet verder!
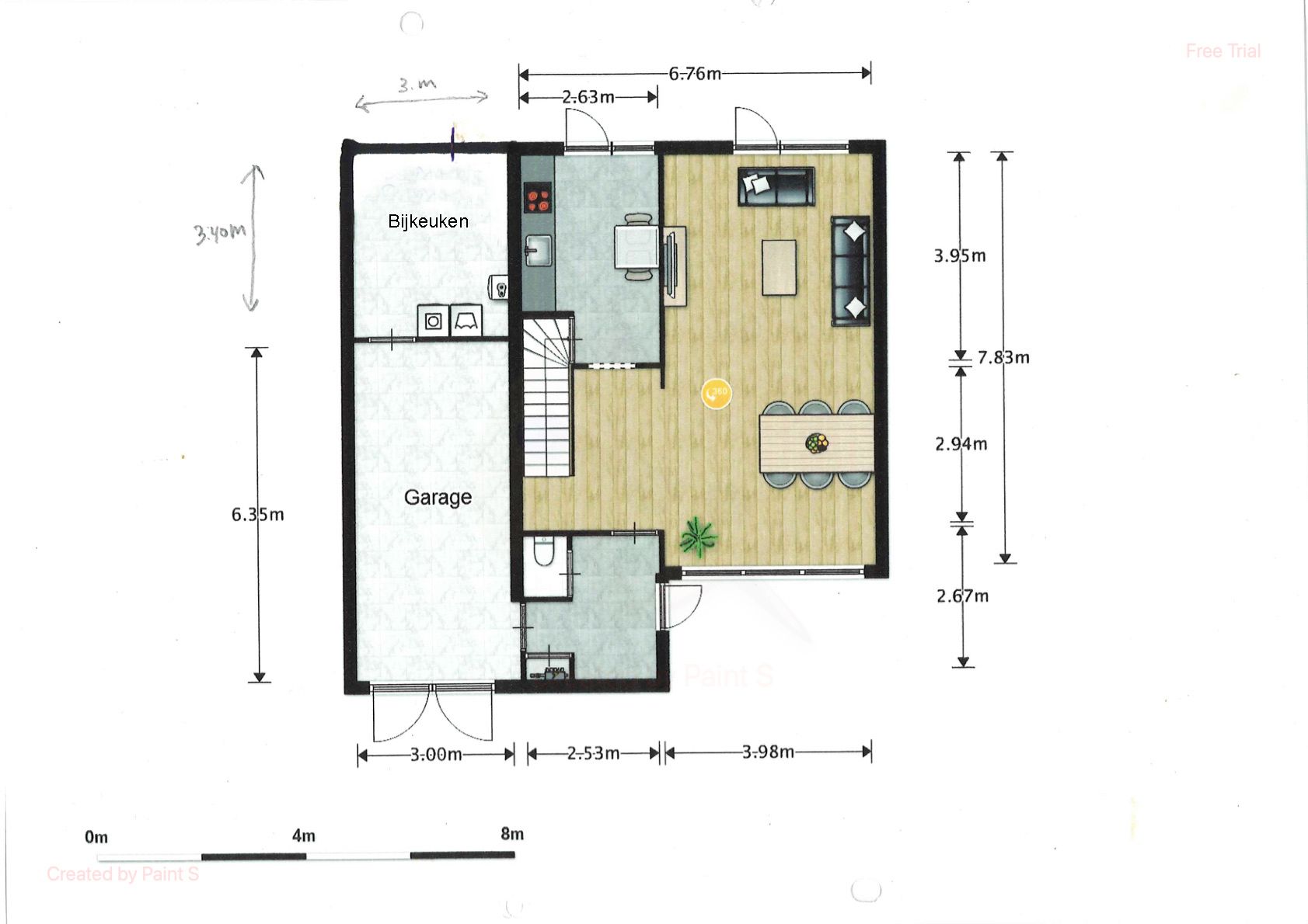
Deze ruime geschakelde woning in Stramproy zal zeker indruk op je maken. De begane grond is keurig en smaakvol afgewerkt, de nette keuken, grote bijkeuken, en praktische verdieping maken deze woning compleet.
Parkeergelegenheid is er maar liefst voor drie auto's op eigen terrein en nog in de aanpandige garage.
Begane grond
Bij binnenkomst in de woning word je begroet door de ruime woonkamer op de begane grond, die baadt in het natuurlijke licht dankzij de grote ramen. De gashaard en de onlangs gerenoveerde trap met verlichting geven de woonkamer extra sfeer.
De keuken heeft een witte opstand met granieten werkblad en is uitgerust met een inductie kookplaat, spoelbak, recent vervangen vaatwasser en koelkast. Genoeg ruimte om lekker te koken en dagelijkse maaltijden te nuttige.
Verdieping
De eerste verdieping van het huis bestaat uit vier slaapkamers en een luxe badkamer. De slaapkamers zijn allen v.v. draai-kiepramen ruim en bieden voldoende ruimte voor jou en je gezin om comfortabel te wonen.
De badkamer heeft een luxe hoekbad, douchescherm, twee ronde wastafels, design radiator en een vrij hangend toilet.
Via de vlizotrap kom je op de bergzolder. Het zolderdek is geïsoleerd.
Buiten
De achtertuin van de woning is onderhoudsvriendelijk beklinkerd en heeft een mooie overkapping aan de achtergevel. Enkele bomen aan de achterkant zorgen voor privacy. De grote voortuin zorgt ervoor dat je heerlijk terug ligt vanaf de straat.
De parkeermogelijkheden bij deze woning zijn uitstekend. Met ruimte voor drie auto's op eigen terrein, hoef je je nooit zorgen te maken over parkeren. Daarnaast is er de aanpandige garage waar ook nog een auto in kan. Deze garage is recentelijk voorzien van twee grote houten openslaande deuren met granieten dorpel.
De woning is gelegen in het kerkdorp Stramproy met veel groen in de buurt.
Laat je verrassen door de gezellige sfeer, terwijl je nog steeds op korte afstand van winkels, scholen en het openbaar vervoer bent. Geniet van het Nederlandse landleven, terwijl je tegelijkertijd van alle moderne gemakken geniet.
Deze geschakelde eengezinswoning is gebouwd in 1974 en beschikt over een woonoppervlakte van 305 m2, verdeeld over twee verdiepingen. De woning heeft een solide constructie, is goed geïsoleerd en wordt verwarmd door een Intergas-combiketel uit 2025. Het huis is zeer goed onderhouden, zowel binnen als buiten, en heeft dubbele beglazing voor energie-efficiëntie.
Met zijn uitstekende staat van onderhoud, ruime leefruimte en geweldige locatie heeft deze woning alles wat je nodig hebt.
Neem vandaag nog contact op voor een bezichtiging, voordat deze ideale woning aan je voorbijgaat!
Deze ruime geschakelde woning in Stramproy zal zeker indruk op je maken. De begane grond is keurig en smaakvol afgewerkt, de nette keuken, grote bijkeuken, en praktische verdieping maken deze woning compleet.
Parkeergelegenheid is er maar liefst voor drie auto's op eigen terrein en nog in de aanpandige garage.
Begane grond
Bij binnenkomst in de woning word je begroet door de ruime woonkamer op de begane grond, die baadt in het natuurlijke licht dankzij de grote ramen. De gashaard en de onlangs gerenoveerde trap met verlichting geven de woonkamer extra sfeer.
De keuken heeft een witte opstand met granieten werkblad en is uitgerust met een inductie kookplaat, spoelbak, recent vervangen vaatwasser en koelkast. Genoeg ruimte om lekker te koken en dagelijkse maaltijden te nuttige.
Verdieping
De eerste verdieping van het huis bestaat uit vier slaapkamers en een luxe badkamer. De slaapkamers zijn allen v.v. draai-kiepramen ruim en bieden voldoende ruimte voor jou en je gezin om comfortabel te wonen.
De badkamer heeft een luxe hoekbad, douchescherm, twee ronde wastafels, design radiator en een vrij hangend toilet.
Via de vlizotrap kom je op de bergzolder. Het zolderdek is geïsoleerd.
Buiten
De achtertuin van de woning is onderhoudsvriendelijk beklinkerd en heeft een mooie overkapping aan de achtergevel. Enkele bomen aan de achterkant zorgen voor privacy. De grote voortuin zorgt ervoor dat je heerlijk terug ligt vanaf de straat.
De parkeermogelijkheden bij deze woning zijn uitstekend. Met ruimte voor drie auto's op eigen terrein, hoef je je nooit zorgen te maken over parkeren. Daarnaast is er de aanpandige garage waar ook nog een auto in kan. Deze garage is recentelijk voorzien van twee grote houten openslaande deuren met granieten dorpel.
De woning is gelegen in het kerkdorp Stramproy met veel groen in de buurt.
Laat je verrassen door de gezellige sfeer, terwijl je nog steeds op korte afstand van winkels, scholen en het openbaar vervoer bent. Geniet van het Nederlandse landleven, terwijl je tegelijkertijd van alle moderne gemakken geniet.
Deze geschakelde eengezinswoning is gebouwd in 1974 en beschikt over een woonoppervlakte van 305 m2, verdeeld over twee verdiepingen. De woning heeft een solide constructie, is goed geïsoleerd en wordt verwarmd door een Intergas-combiketel uit 2025. Het huis is zeer goed onderhouden, zowel binnen als buiten, en heeft dubbele beglazing voor energie-efficiëntie.
Met zijn uitstekende staat van onderhoud, ruime leefruimte en geweldige locatie heeft deze woning alles wat je nodig hebt.
Neem vandaag nog contact op voor een bezichtiging, voordat deze ideale woning aan je voorbijgaat!
+ Read more
- Read less
Construction: {{
product.build_year }}
Construction: {{ product.build_period.start }} -
{{ product.build_period.end }}
House
, Single-family house
{{ product.rooms }} rooms
{{ product.bedrooms
}} bedrooms
Living space: {{
product.living_space }} m²
Plot: {{
product.plot_surface }} m²
Energy class: {{ product.energy_class }}
Energy index: {{ product.energy_index }}
Characteristics
{{ field.label }}
{{ field.value }}
+ Read more
{{ field.label }}
{{ field.value }}
- Read less
{{ product.company.name }}
Contact us
{{ product.company.phone.replace('-', ' ').substr(0, 7) }}...
{{ product.company.phone.replace('-', ' ') }}
Share:
Date