Sold under reservation
€ {{ product.price.replace(/\B(?=(\d{4})+(?!\d))/g, ".") }} {{ __(product.price_condition) }}
Photo’s
{{ product.images.length }}
Floorplan
{{ product.plans.length }}
360° photo’s {{ product.panoramas.length }}
Video’s {{ product.videos.length }}
Maps
All media
House for sale Industrieweg 4 Stramproy
€ {{ product.price.replace(/\B(?=(\d{4})+(?!\d))/g, ".") }} {{ __(product.price_condition) }}
Sold under reservation
Description
Industrieweg 4, Stramproy
Ben je op zoek naar een royale, instapklare woning met volop ruimte, comfort en een fantastische tuin? Dan is deze verrassend ruime woning aan de Industrieweg 4 in Stramproy precies wat je zoekt!
Deze vrijstaande woning met diepe oprit, aanpandige garage en een riante tuin van ruim 600 m² biedt alles wat je nodig hebt voor heerlijk wonen.
De woning is recent op diverse punten vernieuwd en beschikt over een zeer compleet woonprogramma met maar liefst vijf slaapkamers, een luxe badkamer, een moderne keuken en een multifunctionele aanleununit.
Indeling
Begane grond
Entree via de voordeur aan de voorzijde van de woning. In de hal bevinden zich de vernieuwde meterkast (2025), het moderne toilet met fontein, de trap naar boven en de toegang tot de woonkamer.
De woonkamer is opvallend ruim en licht, voorzien van een geheel vernieuwde lichte pvc-vloer die doorloopt over de gehele woonlaag. Een airco zorgt voor zowel koeling als verwarming. De open keuken (vernieuwd in 2022) is een echte eyecatcher: uitgevoerd met een spoeleiland, gezellige bar en moderne inbouwapparatuur zoals een vaatwasser, combi-oven, 4-pits inductiekookplaat, afzuigkap en een grote koelkast. In de keuken zorgt een plat dakraam voor extra daglicht.
Middels de tuindeur in de keuken stap je direct de tuin in. Verder biedt deze ruimte toegang tot de aanpandige garage, die is uitgerust met een elektrische kantelpoort (2022), water, elektra en verwarming. Vanuit de garage is er toegang tot een praktische en ruime kelder.
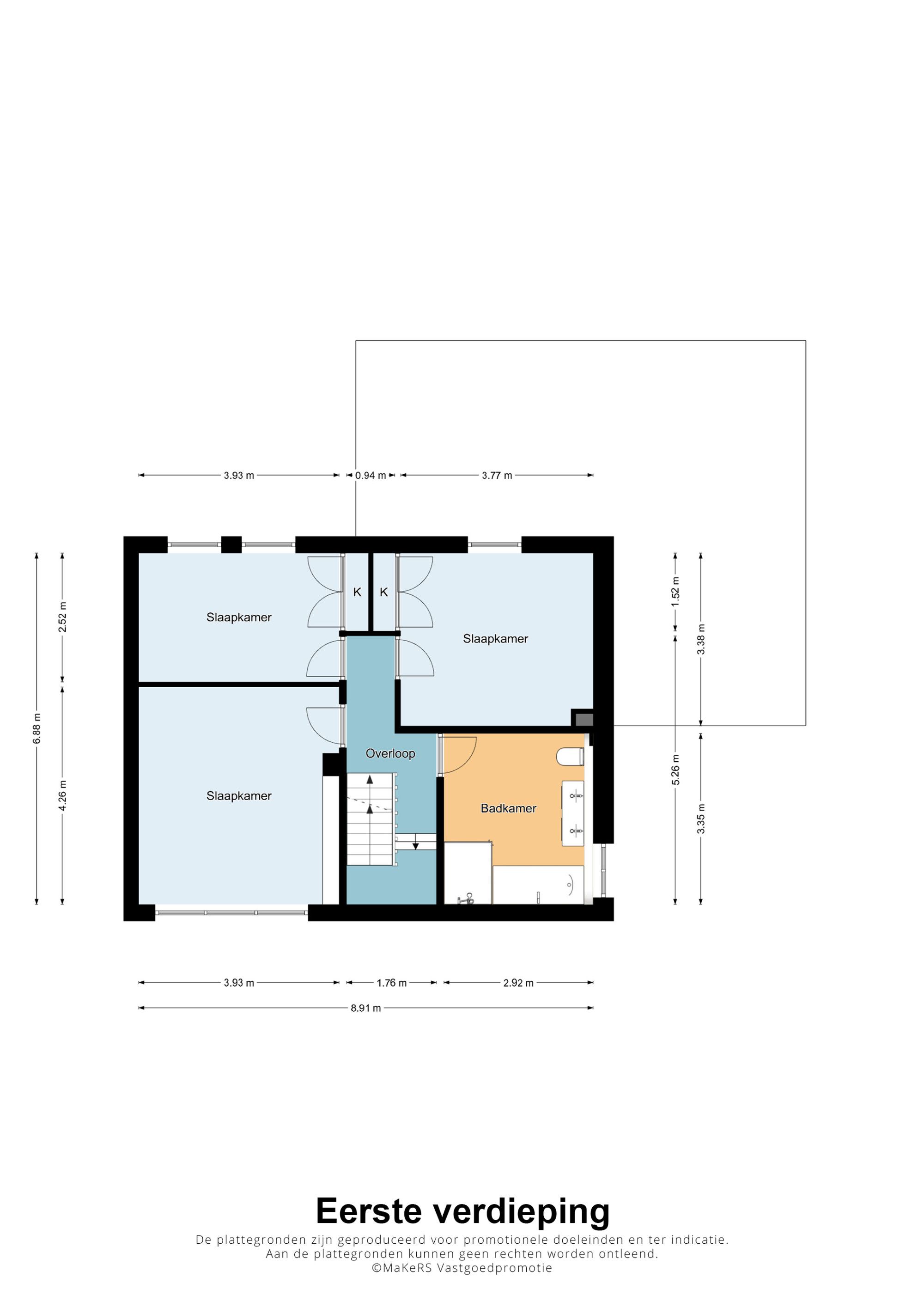
Eerste verdieping
Op de eerste verdieping bevinden zich drie slaapkamers, allen voorzien van dezelfde lichte laminaatvloer en nette afwerking. Een van de slaapkamers is uitgerust met een ingebouwde sfeerhaard. Twee van de drie slaapkamers hebben praktische muurkasten en een airco.
De geheel vernieuwde badkamer (2022) is luxe uitgevoerd met een ruime inloopdouche voorzien van regendouche, een ligbad, dubbele wastafel met meubel, toilet, grote ronde spiegel met ledverlichting, vloerverwarming en een designradiator. Een comfortabel en luxe geheel.
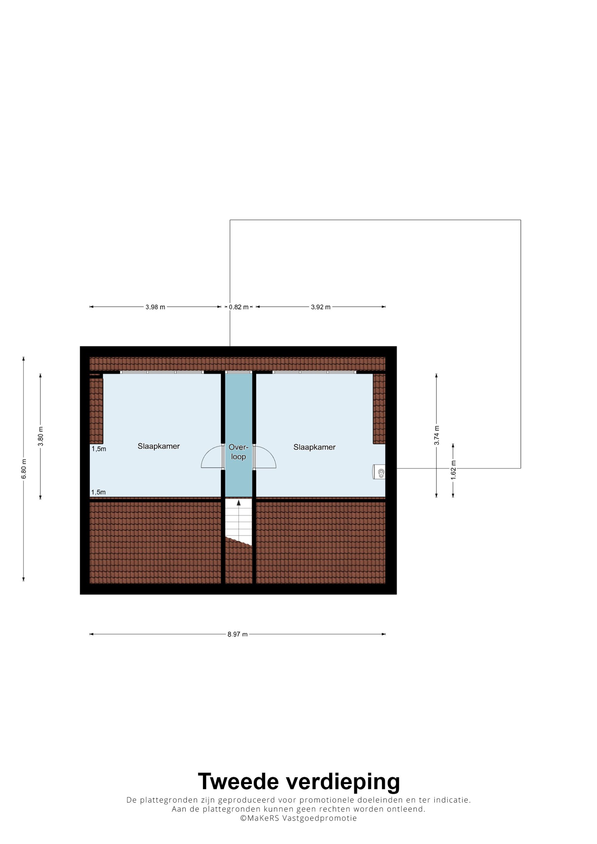
Zolder
Via een vaste trap is de zolder bereikbaar. Dankzij een riante dakkapel, over volledige breedte van de woning, zijn hier twee extra slaapkamers gerealiseerd. Deze ruimtes zijn een waardevolle toevoeging aan de woning en geheel naar eigen wens te gebruiken. Ook deze kamers zijn beide voorzien van een airco.
Buitenruimte
De achtertuin is een waar paradijs: ruim 600 m² groot, met volop privacy en mogelijkheden. Er is een houten tuin- en speelhuis aanwezig, perfect voor gezinnen met kinderen of als extra opslag. Aan de zijkant van de woning bevindt zich een diepe oprit die uitkomt bij de garage. De oprit biedt ruimte voor meerdere voertuigen. Middels een houten poort is er toegang tot de tuin. Daarnaast beschikt de woning over een volledig geïsoleerde aanleununit met kunststof kozijnen, dubbelglas en rolluiken. Deze ruimte is geschikt voor diverse doeleinden zoals kantoor, praktijk of gastenverblijf.
Bijzonderheden van deze woning:
- 15 zonnepanelen en geheel vernieuwde meterkast (2025)
- Diepe oprit met aanpandige garage en elektrische kantelpoort
- Vernieuwde keuken met spoeleiland en bar (2022)
- Geheel vernieuwde pvc-vloer op begane grond
- Garage met toegang tot kelder, water, elektra en verwarming
- Vijf slaapkamers, waarvan één met ingebouwde sfeerhaard
- Luxe badkamer regendouche, dubbele wastafel, ligbad en vloerverwarming (2022)
- Riante tuin van ruim 600 m² met tuin- en speelhuis
- Volledig geïsoleerde aanleununit met rolluiken en aparte meterkast
Ben je op zoek naar een royale, instapklare woning met volop ruimte, comfort en een fantastische tuin? Dan is deze verrassend ruime woning aan de Industrieweg 4 in Stramproy precies wat je zoekt!
Deze vrijstaande woning met diepe oprit, aanpandige garage en een riante tuin van ruim 600 m² biedt alles wat je nodig hebt voor heerlijk wonen.
De woning is recent op diverse punten vernieuwd en beschikt over een zeer compleet woonprogramma met maar liefst vijf slaapkamers, een luxe badkamer, een moderne keuken en een multifunctionele aanleununit.
Indeling
Begane grond
Entree via de voordeur aan de voorzijde van de woning. In de hal bevinden zich de vernieuwde meterkast (2025), het moderne toilet met fontein, de trap naar boven en de toegang tot de woonkamer.
De woonkamer is opvallend ruim en licht, voorzien van een geheel vernieuwde lichte pvc-vloer die doorloopt over de gehele woonlaag. Een airco zorgt voor zowel koeling als verwarming. De open keuken (vernieuwd in 2022) is een echte eyecatcher: uitgevoerd met een spoeleiland, gezellige bar en moderne inbouwapparatuur zoals een vaatwasser, combi-oven, 4-pits inductiekookplaat, afzuigkap en een grote koelkast. In de keuken zorgt een plat dakraam voor extra daglicht.
Middels de tuindeur in de keuken stap je direct de tuin in. Verder biedt deze ruimte toegang tot de aanpandige garage, die is uitgerust met een elektrische kantelpoort (2022), water, elektra en verwarming. Vanuit de garage is er toegang tot een praktische en ruime kelder.
Eerste verdieping
Op de eerste verdieping bevinden zich drie slaapkamers, allen voorzien van dezelfde lichte laminaatvloer en nette afwerking. Een van de slaapkamers is uitgerust met een ingebouwde sfeerhaard. Twee van de drie slaapkamers hebben praktische muurkasten en een airco.
De geheel vernieuwde badkamer (2022) is luxe uitgevoerd met een ruime inloopdouche voorzien van regendouche, een ligbad, dubbele wastafel met meubel, toilet, grote ronde spiegel met ledverlichting, vloerverwarming en een designradiator. Een comfortabel en luxe geheel.
Zolder
Via een vaste trap is de zolder bereikbaar. Dankzij een riante dakkapel, over volledige breedte van de woning, zijn hier twee extra slaapkamers gerealiseerd. Deze ruimtes zijn een waardevolle toevoeging aan de woning en geheel naar eigen wens te gebruiken. Ook deze kamers zijn beide voorzien van een airco.
Buitenruimte
De achtertuin is een waar paradijs: ruim 600 m² groot, met volop privacy en mogelijkheden. Er is een houten tuin- en speelhuis aanwezig, perfect voor gezinnen met kinderen of als extra opslag. Aan de zijkant van de woning bevindt zich een diepe oprit die uitkomt bij de garage. De oprit biedt ruimte voor meerdere voertuigen. Middels een houten poort is er toegang tot de tuin. Daarnaast beschikt de woning over een volledig geïsoleerde aanleununit met kunststof kozijnen, dubbelglas en rolluiken. Deze ruimte is geschikt voor diverse doeleinden zoals kantoor, praktijk of gastenverblijf.
Bijzonderheden van deze woning:
- 15 zonnepanelen en geheel vernieuwde meterkast (2025)
- Diepe oprit met aanpandige garage en elektrische kantelpoort
- Vernieuwde keuken met spoeleiland en bar (2022)
- Geheel vernieuwde pvc-vloer op begane grond
- Garage met toegang tot kelder, water, elektra en verwarming
- Vijf slaapkamers, waarvan één met ingebouwde sfeerhaard
- Luxe badkamer regendouche, dubbele wastafel, ligbad en vloerverwarming (2022)
- Riante tuin van ruim 600 m² met tuin- en speelhuis
- Volledig geïsoleerde aanleununit met rolluiken en aparte meterkast
+ Read more
- Read less
Construction: {{
product.build_year }}
Construction: {{ product.build_period.start }} -
{{ product.build_period.end }}
House
, Single-family house
{{ product.rooms }} rooms
{{ product.bedrooms
}} bedrooms
Living space: {{
product.living_space }} m²
Plot: {{
product.plot_surface }} m²
Energy class: {{ product.energy_class }}
Energy index: {{ product.energy_index }}
Characteristics
{{ field.label }}
{{ field.value }}
+ Read more
{{ field.label }}
{{ field.value }}
- Read less
{{ product.company.name }}
Contact us
{{ product.company.phone.replace('-', ' ').substr(0, 7) }}...
{{ product.company.phone.replace('-', ' ') }}
Share:
Date