Sold under reservation
€ {{ product.price.replace(/\B(?=(\d{4})+(?!\d))/g, ".") }} {{ __(product.price_condition) }}
Photo’s
{{ product.images.length }}
Floorplan
{{ product.plans.length }}
360° photo’s {{ product.panoramas.length }}
Video’s {{ product.videos.length }}
Maps
All media
House for sale Doctor Poelsstraat 13 Urmond
€ {{ product.price.replace(/\B(?=(\d{4})+(?!\d))/g, ".") }} {{ __(product.price_condition) }}
Sold under reservation
Description
Welkom bij Doctor Poelsstraat 13 in Urmond!
Op een rustige en geliefde woonlocatie ligt deze verzorgde en verrassend ruime twee-onder-een-kapwoning met maar liefst 4 slaapkamers. De woning combineert comfort, functionaliteit en energiezuinig wonen dankzij onder andere zonnepanelen en airconditioning. Een ideaal thuis voor wie ruimte, rust en gemak zoekt.
Leuk om te weten:
- Bouwjaar 1957 (conform BAG), perceeloppervlakte 230 m² (conform kadaster);
- Woonoppervlakte ca. 97 m² (NEN 2580 meetrapport aanwezig);
- Maar liefst 4 slaapkamers, ideaal voor gezin of thuiswerken;
- CV-installatie uit 2023 (huur € 44,02 per maand);
- Energielabel C;
- Spouwmuurisolatie (2022);
- Laag energieverbruik door 9 zonnepanelen;
- Airco op de eerste verdieping;
- Grotendeels voorzien van onderhoudsvriendelijke kunststof kozijnen met dubbel glas;
- Volledig voorzien van rolluiken voor extra comfort en privacy;
- Aanvaarding in overleg.
Indeling:
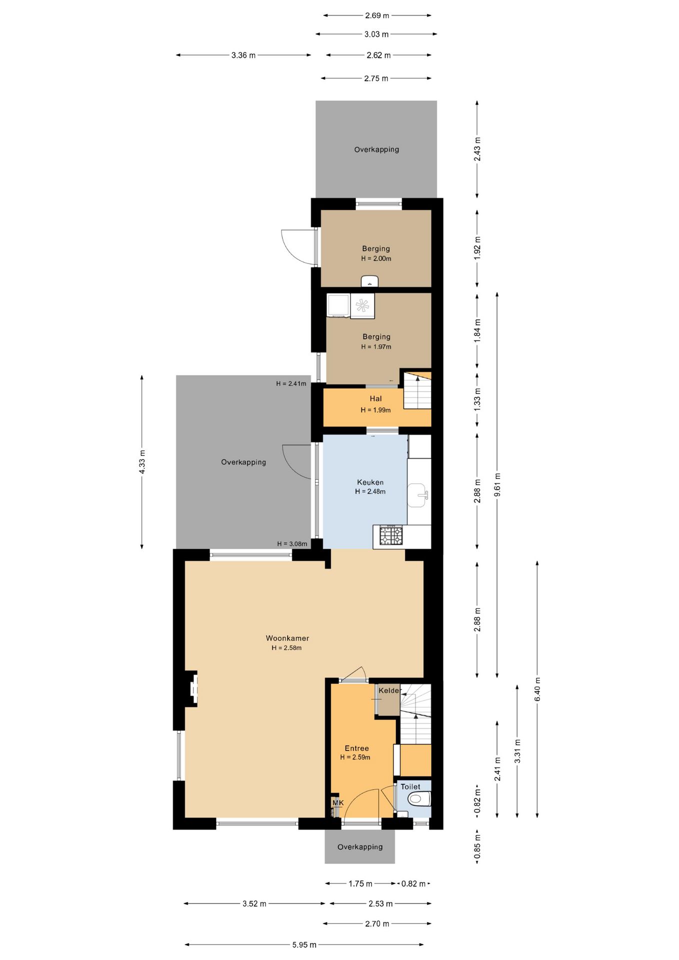
Souterrain:
Praktische provisiekelder, ideaal voor voorraad en extra bergruimte.
Begane grond:
Verzorgde voortuin met entree naar de woning.
Hal met moderne laminaatvloer, vernieuwde meterkast met 10 groepen en glasvezelaansluiting.
Netjes afgewerkte toiletruimte met hangend toilet en fonteintje.
Ruime L-vormige woonkamer met laminaatvloer en sfeervol glas-in-loodraam, wat zorgt voor een warme uitstraling.
Lager gelegen moderne semi-open keuken met stijlvolle houtlook tegelvloer, uitgevoerd in een praktische L-opstelling en voorzien van inbouwapparatuur zoals een 4-pits gaskookplaat met afzuigkap, vaatwasser, combioven. In de keuken is wel ruimte voor het plaatsen van een koelkast.
Aansluitend de bijkeuken met witgoedaansluitingen en een trap naar de multifunctionele vierde slaapkamer / werkkamer / speelkamer / hobbyruimte, voorzien van airco.
Via de keuken is er toegang tot de zonnige achtertuin op het zuidwesten, welke ook via een achterom bereikbaar is.
De tuin is fraai ingericht met twee terrassen, een overkapping, een berging (ca. 4 m²) met design regenton en een tuinhuis.
Eerste verdieping:
Overloop met airco en toegang tot drie slaapkamers.
Slaapkamer 1 ca. 5 m².
Slaapkamer 2 ca. 10 m² met charmant Frans balkon.
Slaapkamer 3 ca. 12 m².
Alle slaapkamers zijn voorzien van een nette houten vloer.
Luxe uitgevoerde badkamer met tweede toilet, royaal badmeubel met dubbele wastafel, grote inloopdouche en elektrische vloerverwarming.
Tweede verdieping:
Via een vlizotrap bereikbare bergzolder met een hoogte van ca. 1,73 m, perfect voor extra opslag.
Tuin:
De fraai aangelegde voor- en achtertuin zorgen voor een verzorgde eerste indruk. De zonnige achtertuin op het zuidwesten beschikt over twee terrassen en een overkapping, waardoor je hier van het voorjaar tot het najaar optimaal kunt genieten. Daarnaast is er een praktische berging voor fietsen en tuingereedschap.
De waarborgsom/bankgarantie is 10% van de koopsom. De koper dient deze, indien de verkoper en koper dit overeenkomen, binnen 2 weken nadat het financieringsvoorbehoud is verlopen bij de desbetreffende notaris te deponeren.
Ter bescherming van de belangen van zowel koper als ook verkoper wordt uitdrukkelijk gesteld dat een koopovereenkomst met betrekking tot deze onroerende zaak eerst dan tot stand komt nadat koper en verkoper de koopovereenkomst hebben getekend (schriftelijkheidsvereiste).
Indien c.v. ketel en/of warmwatervoorziening een huurtoestel is, dient koper de huurovereenkomst over te nemen.
Alle door ons kantoor verstrekte informatie omtrent onroerende zaken, moet beschouwd worden als een uitnodiging om in onderhandeling te treden, en is geheel vrijblijvend! Alle vermelde maten en afmetingen zijn slechts bij benadering. Aan deze beperkte info kunnen geen rechten worden ontleend. Indien in enige documentatie of op enige website informatie staat die niet overeen komt met de werkelijkheid, dan geldt de feitelijke situatie waarin de woning zich bevindt, zoals koper deze tijdens de bezichtiging heeft kunnen waarnemen, en wordt de woning in deze feitelijke situatie/staat verkocht. Een (eventueel) bijgevoegde plattegrond dient uitsluitend als globale indicatie/visualisatie. Hieraan kunnen uitdrukkelijk geen rechten worden ontleend.
De makelaar Ray van der Venne nodigt u uit voor een bezichtiging.
.
Op een rustige en geliefde woonlocatie ligt deze verzorgde en verrassend ruime twee-onder-een-kapwoning met maar liefst 4 slaapkamers. De woning combineert comfort, functionaliteit en energiezuinig wonen dankzij onder andere zonnepanelen en airconditioning. Een ideaal thuis voor wie ruimte, rust en gemak zoekt.
Leuk om te weten:
- Bouwjaar 1957 (conform BAG), perceeloppervlakte 230 m² (conform kadaster);
- Woonoppervlakte ca. 97 m² (NEN 2580 meetrapport aanwezig);
- Maar liefst 4 slaapkamers, ideaal voor gezin of thuiswerken;
- CV-installatie uit 2023 (huur € 44,02 per maand);
- Energielabel C;
- Spouwmuurisolatie (2022);
- Laag energieverbruik door 9 zonnepanelen;
- Airco op de eerste verdieping;
- Grotendeels voorzien van onderhoudsvriendelijke kunststof kozijnen met dubbel glas;
- Volledig voorzien van rolluiken voor extra comfort en privacy;
- Aanvaarding in overleg.
Indeling:
Souterrain:
Praktische provisiekelder, ideaal voor voorraad en extra bergruimte.
Begane grond:
Verzorgde voortuin met entree naar de woning.
Hal met moderne laminaatvloer, vernieuwde meterkast met 10 groepen en glasvezelaansluiting.
Netjes afgewerkte toiletruimte met hangend toilet en fonteintje.
Ruime L-vormige woonkamer met laminaatvloer en sfeervol glas-in-loodraam, wat zorgt voor een warme uitstraling.
Lager gelegen moderne semi-open keuken met stijlvolle houtlook tegelvloer, uitgevoerd in een praktische L-opstelling en voorzien van inbouwapparatuur zoals een 4-pits gaskookplaat met afzuigkap, vaatwasser, combioven. In de keuken is wel ruimte voor het plaatsen van een koelkast.
Aansluitend de bijkeuken met witgoedaansluitingen en een trap naar de multifunctionele vierde slaapkamer / werkkamer / speelkamer / hobbyruimte, voorzien van airco.
Via de keuken is er toegang tot de zonnige achtertuin op het zuidwesten, welke ook via een achterom bereikbaar is.
De tuin is fraai ingericht met twee terrassen, een overkapping, een berging (ca. 4 m²) met design regenton en een tuinhuis.
Eerste verdieping:
Overloop met airco en toegang tot drie slaapkamers.
Slaapkamer 1 ca. 5 m².
Slaapkamer 2 ca. 10 m² met charmant Frans balkon.
Slaapkamer 3 ca. 12 m².
Alle slaapkamers zijn voorzien van een nette houten vloer.
Luxe uitgevoerde badkamer met tweede toilet, royaal badmeubel met dubbele wastafel, grote inloopdouche en elektrische vloerverwarming.
Tweede verdieping:
Via een vlizotrap bereikbare bergzolder met een hoogte van ca. 1,73 m, perfect voor extra opslag.
Tuin:
De fraai aangelegde voor- en achtertuin zorgen voor een verzorgde eerste indruk. De zonnige achtertuin op het zuidwesten beschikt over twee terrassen en een overkapping, waardoor je hier van het voorjaar tot het najaar optimaal kunt genieten. Daarnaast is er een praktische berging voor fietsen en tuingereedschap.
De waarborgsom/bankgarantie is 10% van de koopsom. De koper dient deze, indien de verkoper en koper dit overeenkomen, binnen 2 weken nadat het financieringsvoorbehoud is verlopen bij de desbetreffende notaris te deponeren.
Ter bescherming van de belangen van zowel koper als ook verkoper wordt uitdrukkelijk gesteld dat een koopovereenkomst met betrekking tot deze onroerende zaak eerst dan tot stand komt nadat koper en verkoper de koopovereenkomst hebben getekend (schriftelijkheidsvereiste).
Indien c.v. ketel en/of warmwatervoorziening een huurtoestel is, dient koper de huurovereenkomst over te nemen.
Alle door ons kantoor verstrekte informatie omtrent onroerende zaken, moet beschouwd worden als een uitnodiging om in onderhandeling te treden, en is geheel vrijblijvend! Alle vermelde maten en afmetingen zijn slechts bij benadering. Aan deze beperkte info kunnen geen rechten worden ontleend. Indien in enige documentatie of op enige website informatie staat die niet overeen komt met de werkelijkheid, dan geldt de feitelijke situatie waarin de woning zich bevindt, zoals koper deze tijdens de bezichtiging heeft kunnen waarnemen, en wordt de woning in deze feitelijke situatie/staat verkocht. Een (eventueel) bijgevoegde plattegrond dient uitsluitend als globale indicatie/visualisatie. Hieraan kunnen uitdrukkelijk geen rechten worden ontleend.
De makelaar Ray van der Venne nodigt u uit voor een bezichtiging.
.
+ Read more
- Read less
Construction: {{
product.build_year }}
Construction: {{ product.build_period.start }} -
{{ product.build_period.end }}
House
, Single-family house
{{ product.rooms }} rooms
{{ product.bedrooms
}} bedrooms
Living space: {{
product.living_space }} m²
Plot: {{
product.plot_surface }} m²
Energy class: {{ product.energy_class }}
Energy index: {{ product.energy_index }}
Characteristics
{{ field.label }}
{{ field.value }}
+ Read more
{{ field.label }}
{{ field.value }}
- Read less
{{ product.company.name }}
Contact us
{{ product.company.phone.replace('-', ' ').substr(0, 7) }}...
{{ product.company.phone.replace('-', ' ') }}
Share:
Date