Under offer
€ {{ product.price.replace(/\B(?=(\d{4})+(?!\d))/g, ".") }} {{ __(product.price_condition) }}
Photo’s
{{ product.images.length }}
Floorplan
{{ product.plans.length }}
360° photo’s {{ product.panoramas.length }}
Video’s {{ product.videos.length }}
Maps
All media
House for sale Laatbankstraat 25 Vaals
€ {{ product.price.replace(/\B(?=(\d{4})+(?!\d))/g, ".") }} {{ __(product.price_condition) }}
Under offer
Description
Welkom bij deze royale tussenwoning gelegen aan de Laatbankstraat 25 te Vaals. Hier woon je in een rustige, kindvriendelijke buurt en heb je alle gemakken binnen handbereik. De woning heeft drie slaapkamers, een ruime garage en een fijne tuin.
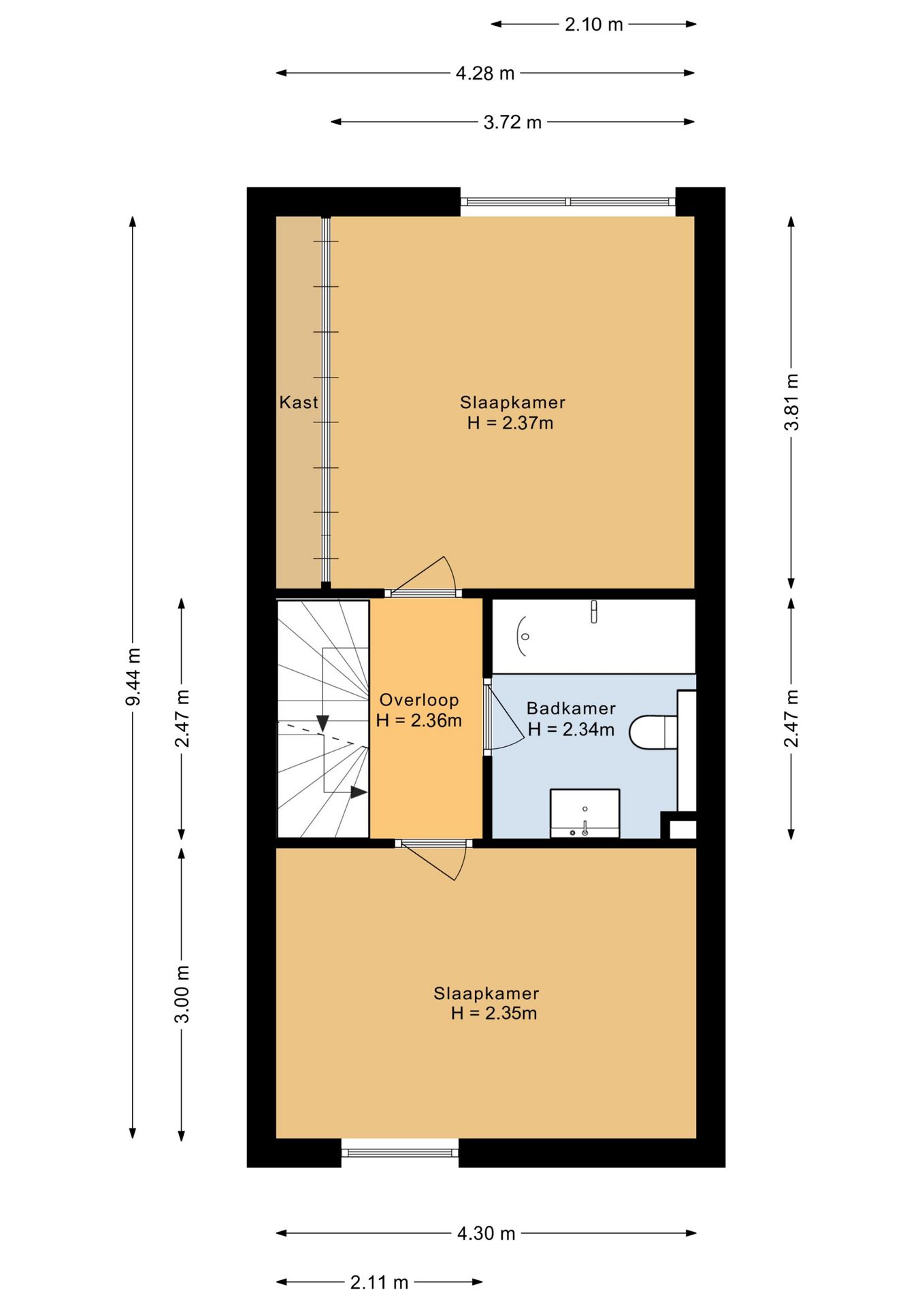
De maten van alle ruimtes vindt u terug in de plattegronden!
Leuk om te weten:
- Bouwjaar 1976 (conform BAG);
- Woonoppervlakte ca. 96m²;
- Geheel voorzien van kunststof dakramen (2008);
- Energiezuinig en uitstekend geïsoleerd (Dubbel glas, kunststof kozijnen, rolluiken);
- Groene tuin met berging;
- Kindvriendelijke omgeving;
- CV-combiketel (2021, huur, € 38,- per maand).
- Nieuwe meterkast met krachtstroom;
Indeling:
Begane grond:
Hal entree met toiletruimte voorzien van toilet en fontein. Woon/eetkamer met open keuken en een vaste trap naar de eerste verdieping. De open keuken is in een hoekopstelling geplaatst en is tevens een opstelling voor wasmachineaansluiting aanwezig. Via een schuifpui heeft men toegang tot de achtertuin met berging.
De gehele benedenverdieping is voorzien van een tegelvloer.
Eerste verdieping:
Overloop met toegang tot badkamer en twee slaapkamers. De overloop en slaapkamers zijn voorzien van een laminaatvloer. Badkamer voorzien van een ligbad, toilet en wastafel.
Tweede verdieping:
Overloop met CV, berging en slaapkamer 3. Slaapkamer voorzien van dakraam en wasmachineaansluiting.
Tuin:
De groene achtertuin is gelegen op het westen en voorzien van terras en berging. De tuin heeft veel privacy.
Garage:
In achtergelegen straatje is de garage met kantelpoort gelegen.
De waarborgsom/bankgarantie is 10% van de koopsom. De koper dient deze, indien de verkoper en koper dit overeenkomen, binnen 2 weken nadat het financieringsvoorbehoud is verlopen bij de desbetreffende notaris te deponeren.
Ter bescherming van de belangen van zowel koper als ook verkoper wordt uitdrukkelijk gesteld dat een koopovereenkomst met betrekking tot deze onroerende zaak eerst dan tot stand komt nadat koper en verkoper de koopovereenkomst hebben getekend (schriftelijkheids vereiste).
Indien c.v. ketel en/of warmwatervoorziening een huurtoestel is, dient koper de huurovereenkomst over te nemen.
Alle door ons kantoor verstrekte informatie omtrent onroerende zaken, moet beschouwd worden als een uitnodiging om in onderhandeling te treden, en is geheel vrijblijvend! Alle vermelde maten en afmetingen zijn slechts bij benadering. Aan deze beperkte info kunnen geen rechten worden ontleend. Indien in enige documentatie of op enige website informatie staat die niet overeen komt met de werkelijkheid, dan geldt de feitelijke situatie waarin de woning zich bevindt, zoals koper deze tijdens de bezichtiging heeft kunnen waarnemen, en wordt de woning in deze feitelijke situatie/staat verkocht. Een (eventueel) bijgevoegde plattegrond dient uitsluitend als globale indicatie/visualisatie. Hieraan kunnen uitdrukkelijk geen rechten worden ontleend.
Uw makelaar Roy Ubachs nodigt u graag uit voor een bezichtiging.
De maten van alle ruimtes vindt u terug in de plattegronden!
Leuk om te weten:
- Bouwjaar 1976 (conform BAG);
- Woonoppervlakte ca. 96m²;
- Geheel voorzien van kunststof dakramen (2008);
- Energiezuinig en uitstekend geïsoleerd (Dubbel glas, kunststof kozijnen, rolluiken);
- Groene tuin met berging;
- Kindvriendelijke omgeving;
- CV-combiketel (2021, huur, € 38,- per maand).
- Nieuwe meterkast met krachtstroom;
Indeling:
Begane grond:
Hal entree met toiletruimte voorzien van toilet en fontein. Woon/eetkamer met open keuken en een vaste trap naar de eerste verdieping. De open keuken is in een hoekopstelling geplaatst en is tevens een opstelling voor wasmachineaansluiting aanwezig. Via een schuifpui heeft men toegang tot de achtertuin met berging.
De gehele benedenverdieping is voorzien van een tegelvloer.
Eerste verdieping:
Overloop met toegang tot badkamer en twee slaapkamers. De overloop en slaapkamers zijn voorzien van een laminaatvloer. Badkamer voorzien van een ligbad, toilet en wastafel.
Tweede verdieping:
Overloop met CV, berging en slaapkamer 3. Slaapkamer voorzien van dakraam en wasmachineaansluiting.
Tuin:
De groene achtertuin is gelegen op het westen en voorzien van terras en berging. De tuin heeft veel privacy.
Garage:
In achtergelegen straatje is de garage met kantelpoort gelegen.
De waarborgsom/bankgarantie is 10% van de koopsom. De koper dient deze, indien de verkoper en koper dit overeenkomen, binnen 2 weken nadat het financieringsvoorbehoud is verlopen bij de desbetreffende notaris te deponeren.
Ter bescherming van de belangen van zowel koper als ook verkoper wordt uitdrukkelijk gesteld dat een koopovereenkomst met betrekking tot deze onroerende zaak eerst dan tot stand komt nadat koper en verkoper de koopovereenkomst hebben getekend (schriftelijkheids vereiste).
Indien c.v. ketel en/of warmwatervoorziening een huurtoestel is, dient koper de huurovereenkomst over te nemen.
Alle door ons kantoor verstrekte informatie omtrent onroerende zaken, moet beschouwd worden als een uitnodiging om in onderhandeling te treden, en is geheel vrijblijvend! Alle vermelde maten en afmetingen zijn slechts bij benadering. Aan deze beperkte info kunnen geen rechten worden ontleend. Indien in enige documentatie of op enige website informatie staat die niet overeen komt met de werkelijkheid, dan geldt de feitelijke situatie waarin de woning zich bevindt, zoals koper deze tijdens de bezichtiging heeft kunnen waarnemen, en wordt de woning in deze feitelijke situatie/staat verkocht. Een (eventueel) bijgevoegde plattegrond dient uitsluitend als globale indicatie/visualisatie. Hieraan kunnen uitdrukkelijk geen rechten worden ontleend.
Uw makelaar Roy Ubachs nodigt u graag uit voor een bezichtiging.
+ Read more
- Read less
Construction: {{
product.build_year }}
Construction: {{ product.build_period.start }} -
{{ product.build_period.end }}
House
, Single-family house
{{ product.rooms }} rooms
{{ product.bedrooms
}} bedrooms
Living space: {{
product.living_space }} m²
Plot: {{
product.plot_surface }} m²
Energy class: {{ product.energy_class }}
Energy index: {{ product.energy_index }}
Characteristics
{{ field.label }}
{{ field.value }}
+ Read more
{{ field.label }}
{{ field.value }}
- Read less
{{ product.company.name }}
Contact us
{{ product.company.phone.replace('-', ' ').substr(0, 7) }}...
{{ product.company.phone.replace('-', ' ') }}
Share:
Date