Sold
€ {{ product.price.replace(/\B(?=(\d{4})+(?!\d))/g, ".") }} {{ __(product.price_condition) }}
Photo’s
{{ product.images.length }}
Floorplan
{{ product.plans.length }}
360° photo’s {{ product.panoramas.length }}
Video’s {{ product.videos.length }}
Maps
All media
House for sale Van Cleefstraat 16 Venlo
€ {{ product.price.replace(/\B(?=(\d{4})+(?!\d))/g, ".") }} {{ __(product.price_condition) }}
Sold
Description
Zeer ruim en goed onderhouden jaren-30 herenhuis, woonoppervlakte van maar liefst 237m², gelegen op een toplocatie (nabij Rosarium) in het centrum van Venlo. Dit herenhuis is in 2017 voorzien van een volledig nieuw dak, 18 zonnepanelen, dak- en muurisolatie. De woning is uitgebouwd met een volledig glazen pui, leefkeuken en maar liefst 5/6 slaapkamers. In 2024 zijn nog enkele vloeren vervangen. De woning is voorzien van zonnepanelen, muur- en dakisolatie en dubbelglas HR++. Dit sfeervolle herenhuis heeft een voor- en achtertuin is gelegen aan het rustigste deel van de van Cleefstraat in het centrum van Venlo. Alle voorzieningen liggen op loopafstand. Tevens ligt op 5 minuten loopafstand het station Venlo en in de directe nabijheid de dependance van de Universiteit van Maastricht, de Martinusschool, parkeergarage Arsenal, het Rosarium en het Julianapark. Centraler en toch rustig kun je bijna niet wonen.
Kelder:
De originele bouw is volledig onderkelderd en ingedeeld in een 3-tal compartimenten. De compartimenten zijn ca. 12,5m², ca. 17m² en ca. 17,5m².
Begane grond:
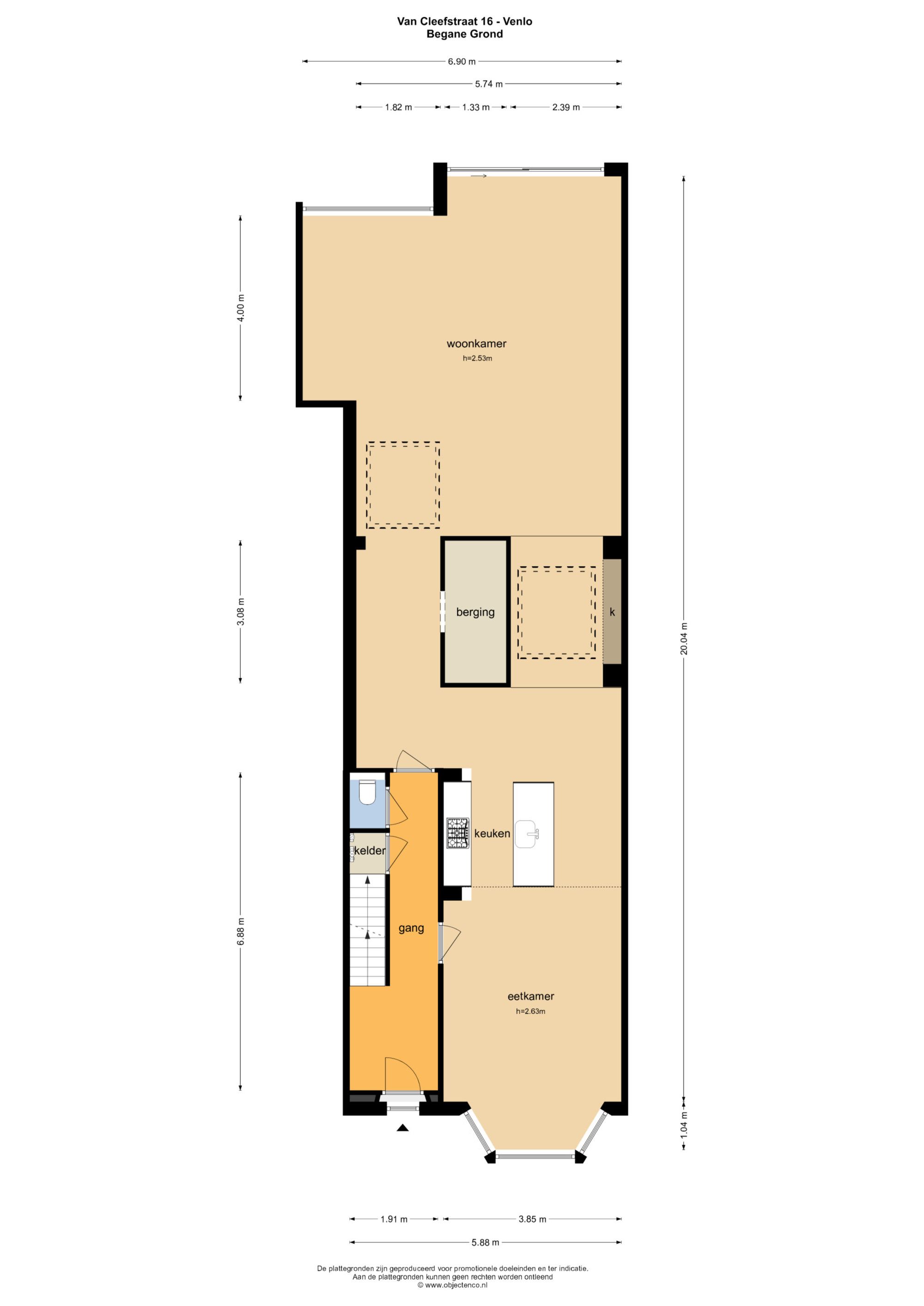
Vanuit de voortuin is de overdekte entree te betreden. De riante ontvangsthal met tegelvloer geeft toegang tot het trappenhuis, kelder, toiletruimte en 2x glazen taatsdeur naar de leefkeuken en de woonkamer. De deels betegelde toiletruimte is voorzien van een zwevend closet en fonteintje.
De leefkeuken is ca. 26,5m² en voorzien van een fraaie Marmerenvloer en erker. De keuken is ingericht met een werkeiland met bar, ladekoelkast, 1 1/2e spoelbak met close-in-boiler en vaatwasser. Verder is de keuken voorzien van een 5-pits gasfornuis, afzuigkap, combi-oven en veel bergruimte. Middels een ruime doorgang met lichtkoepel is de aanbouw te betreden. De riante zitkamer ca. 60m² is onder andere voorzien een eenzelfde Marmerenvloer als de leefkeuken, de aanbouw bestaat volledig uit glas en is voorzien van een schuifpui. Tussen de ontvangsthal en de zitkamer bevindt zich nog een extra bergruimte/pantry.
1e verdieping:
De overloop geeft toegang tot de masterbedroom, badkamer, werkkamer en vaste trapopgang naar de 2e verdieping. Het gehele trappenhuis is in 2015 voorzien van nieuw schilderwerk en vloerbedekking.
De masterbedroom is ca. 34m² en bestond voorheen uit 2 kamers, met een eenvoudige aanpassing zijn dit weer 2 slaapkamers. Aan de voorzijde van de masterbedroom is nog een balkon gesitueerd. Middels een loopdeur is er vanuit de masterbedroom directe toegang tot de badkamer. De grotendeels betegelde badkamer is ingericht met een douchehoek, wastafel met badkamermeubel en zwevend closet. De slaap-/werkkamer is ca. 6m² en is nu in gebruik als werkkamer.
2e verdieping:
De overloop geeft toegang tot 3 slaapkamers en de sanitaire ruimte. De slaapkamers zijn ca. 6m², ca. 12,5m² en ca. 18m². Er bestaat de mogelijkheid om van de kleinste slaapkamer een 2e badkamer te maken. De grootste slaapkamer is voorzien van een wastafel, witgoedaansluitingen en heeft middels een trap toegang tot de ruime vide. De vide is ca. 11m², voorzien van een dakraam en de originele spanten. De sanitaire ruimte is voorzien van een zwevend closet (Sanibroyeur) en wastafel. Tevens bevinden zich hier ook de CV-opstelling en de zonneboiler.
Tuin:
De achtertuin is op het zuidoosten gelegen, ontvangt veel daglichttoetreding, is grotendeels beklinkerd en voorzien van een vijver.
Algemeen:
Bouwjaar 1928, woonoppervlakte ca. 237m², inhoud ca. 989m³, perceeloppervlakte 222m². Verder heeft de woning 6 slaapkamers. De CV-opstelling is van het merk Daalderop en bouwjaar 2010. Verder is de woning voorzien van een zonneboiler 2018, 18 zonnepanelen, deels HR++ beglazing, dakisolatie en muurisolatie. In 2017 is de woning voorzien een volledig nieuw dak. Deze woning is gelegen aan een rustige straat, op een toplocatie in het centrum van Venlo.
Vraagprijs € 675.000,- k.k.
Kelder:
De originele bouw is volledig onderkelderd en ingedeeld in een 3-tal compartimenten. De compartimenten zijn ca. 12,5m², ca. 17m² en ca. 17,5m².
Begane grond:
Vanuit de voortuin is de overdekte entree te betreden. De riante ontvangsthal met tegelvloer geeft toegang tot het trappenhuis, kelder, toiletruimte en 2x glazen taatsdeur naar de leefkeuken en de woonkamer. De deels betegelde toiletruimte is voorzien van een zwevend closet en fonteintje.
De leefkeuken is ca. 26,5m² en voorzien van een fraaie Marmerenvloer en erker. De keuken is ingericht met een werkeiland met bar, ladekoelkast, 1 1/2e spoelbak met close-in-boiler en vaatwasser. Verder is de keuken voorzien van een 5-pits gasfornuis, afzuigkap, combi-oven en veel bergruimte. Middels een ruime doorgang met lichtkoepel is de aanbouw te betreden. De riante zitkamer ca. 60m² is onder andere voorzien een eenzelfde Marmerenvloer als de leefkeuken, de aanbouw bestaat volledig uit glas en is voorzien van een schuifpui. Tussen de ontvangsthal en de zitkamer bevindt zich nog een extra bergruimte/pantry.
1e verdieping:
De overloop geeft toegang tot de masterbedroom, badkamer, werkkamer en vaste trapopgang naar de 2e verdieping. Het gehele trappenhuis is in 2015 voorzien van nieuw schilderwerk en vloerbedekking.
De masterbedroom is ca. 34m² en bestond voorheen uit 2 kamers, met een eenvoudige aanpassing zijn dit weer 2 slaapkamers. Aan de voorzijde van de masterbedroom is nog een balkon gesitueerd. Middels een loopdeur is er vanuit de masterbedroom directe toegang tot de badkamer. De grotendeels betegelde badkamer is ingericht met een douchehoek, wastafel met badkamermeubel en zwevend closet. De slaap-/werkkamer is ca. 6m² en is nu in gebruik als werkkamer.
2e verdieping:
De overloop geeft toegang tot 3 slaapkamers en de sanitaire ruimte. De slaapkamers zijn ca. 6m², ca. 12,5m² en ca. 18m². Er bestaat de mogelijkheid om van de kleinste slaapkamer een 2e badkamer te maken. De grootste slaapkamer is voorzien van een wastafel, witgoedaansluitingen en heeft middels een trap toegang tot de ruime vide. De vide is ca. 11m², voorzien van een dakraam en de originele spanten. De sanitaire ruimte is voorzien van een zwevend closet (Sanibroyeur) en wastafel. Tevens bevinden zich hier ook de CV-opstelling en de zonneboiler.
Tuin:
De achtertuin is op het zuidoosten gelegen, ontvangt veel daglichttoetreding, is grotendeels beklinkerd en voorzien van een vijver.
Algemeen:
Bouwjaar 1928, woonoppervlakte ca. 237m², inhoud ca. 989m³, perceeloppervlakte 222m². Verder heeft de woning 6 slaapkamers. De CV-opstelling is van het merk Daalderop en bouwjaar 2010. Verder is de woning voorzien van een zonneboiler 2018, 18 zonnepanelen, deels HR++ beglazing, dakisolatie en muurisolatie. In 2017 is de woning voorzien een volledig nieuw dak. Deze woning is gelegen aan een rustige straat, op een toplocatie in het centrum van Venlo.
Vraagprijs € 675.000,- k.k.
+ Read more
- Read less
Construction: {{
product.build_year }}
Construction: {{ product.build_period.start }} -
{{ product.build_period.end }}
House
, Mansion
{{ product.rooms }} rooms
{{ product.bedrooms
}} bedrooms
Living space: {{
product.living_space }} m²
Plot: {{
product.plot_surface }} m²
Energy class: {{ product.energy_class }}
Energy index: {{ product.energy_index }}
Characteristics
{{ field.label }}
{{ field.value }}
+ Read more
{{ field.label }}
{{ field.value }}
- Read less
{{ product.company.name }}
Contact us
{{ product.company.phone.replace('-', ' ').substr(0, 7) }}...
{{ product.company.phone.replace('-', ' ') }}
Share:
Date