Sold
€ {{ product.price.replace(/\B(?=(\d{4})+(?!\d))/g, ".") }} {{ __(product.price_condition) }}
Photo’s
{{ product.images.length }}
Floorplan
{{ product.plans.length }}
360° photo’s {{ product.panoramas.length }}
Video’s {{ product.videos.length }}
Maps
All media
House for sale Hertog Reinoudsingel 136 Venlo
€ {{ product.price.replace(/\B(?=(\d{4})+(?!\d))/g, ".") }} {{ __(product.price_condition) }}
Sold
Description
Op toplocatie in Venlo-Oost is deze geheel gerenoveerde karakteristieke jaren-30 woning gelegen. De woning heeft energielabel B, is volledig geïsoleerd, grotendeels voorzien van HR++ glas en 20 zonnepanelen. De woning heeft verder een provisiekelder, een ruime woonkamer met erker, semi-open keuken, wintertuin, 6 slaapkamers, 2 toiletruimtes en een badkamer. De onderhoudsvrije achtertuin is gelegen op het zuidoosten en is te bereiken middels een vrije achterom. De woning is gelegen op loopafstand van het centrum, winkelvoorzieningen en verschillende basisscholen.
Indeling:
Kelder:
Vanuit de woonkamer is er toegang tot de kelder. De kelder bestaat uit 3 compartimenten. In de kelder bevinden zich de witgoedaansluitingen. Tevens is hier de combi CV-ketel gesitueerd (Nefit 2016).
Begane grond:
Middels een looppad door de onderhoudsvriendelijke voortuin is de entree tot de woning te bereiken. De entree/ hal geeft toegang tot de toiletruimte, de trapopgang naar de 1e verdieping en de woonkamer. De toiletruimte is voorzien van een zwevend closet en fonteintje. De royale woonkamer is voorzien van een lichte laminaatvloer, inbouwspots, een erker aan de voorzijde en een elektrische haard. De woonkamer is ca. 40m2 groot. Er is een open doorgang naar de wintertuin (ca. 7m2). De wintertuin is voorzien van een schuifpui en een glazen dak, waardoor er optimaal tuincontact is. De semi-open keuken is ingericht met een inductiekookplaat (2024), afzuigkap, hete lucht oven/ grill, combi-magnetron, koelkast-/diepvriescombinatie en een vaatwasser. Middels een loopdeur is er toegang tot de tuin.
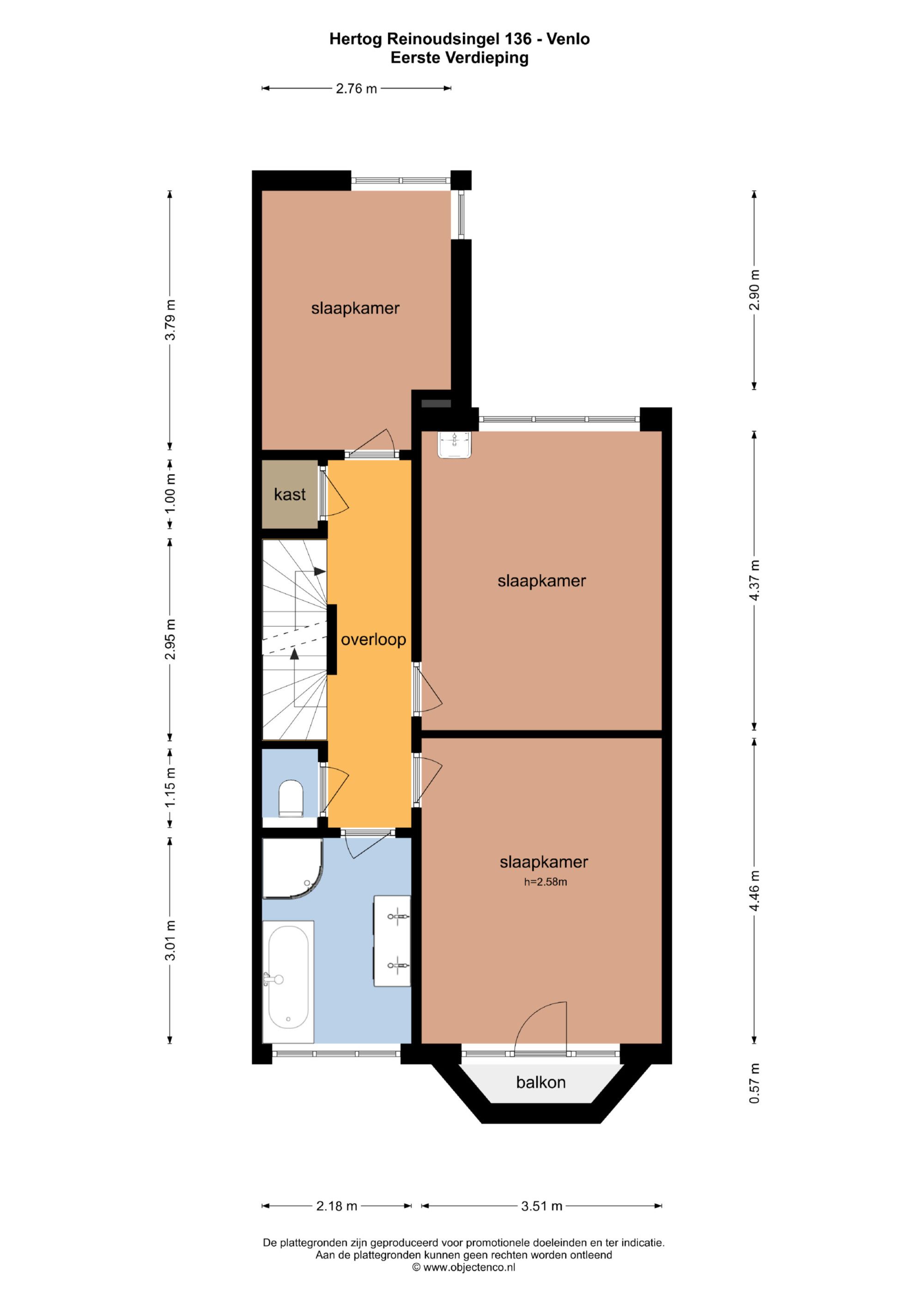
1e verdieping:
De overloop geeft toegang tot een muurkast, 3 slaapkamers, de toiletruimte, de badkamer en de vaste trapopgang naar de 2e verdieping. De overloop en de slaapkamers zijn voorzien van een laminaatvloer. De slaapkamers zijn ca. 10,5m2, 15,5m2 en 16m2 groot. De slaapkamer aan de voorzijde geeft toegang tot een Frans balkon. Twee slaapkamers zijn voorzien van airconditioning voor koeling en verwarming. De toiletruimte is voorzien van een zwevend closet. De geheel betegelde badkamer is ingericht met een ligbad, douchecabine en dubbele wastafel met meubel en spiegelkast. De 1e verdieping is voorzien van rolluiken.
2e verdieping:
Middels een vaste trapopgang is de 2e verdieping te bereiken. De overloop geeft toegang tot 3 slaapkamers en een inloopkast. De gehele 2e verdieping is voorzien van een laminaatvloer. De slaapkamers zijn ca. 9,5m2, 9,5m2 en 17m2 groot. Vanuit één slaapkamer is er een vlizotrap naar de 3e verdieping.
3e verdieping:
Middels vlizotrap bereikbare bergzolder.
Tuin:
De geheel onderhoudsvrije tuin is gelegen op het zuidoosten en is te bereiken middels een vrije achterom. In de tui is een grote parasol in de grond verankerd. Aan de woning is een zonnescherm bevestigd. Vanuit de tuin is er toegang tot de kelder.
Algemeen:
Bouwjaar 1932, inhoud ca. 780m3, gebruiksoppervlakte wonen ca. 182m2, inpandige ruimte ca. 55m2, perceelsoppervlakte 185m2. Onderhoudsstaat is zowel binnen als buiten goed. De woning is geheel voorzien van een centraal stofzuigsysteem. Energielabel B. De woning is volledig geïsoleerd. De gehele woning is voorzien van kunststof kozijnen met grotendeels HR++ glas. De woning heeft 20 zonnepanelen. Combi CV-ketel Nefit 2016. In december 2023 is de woning geheel voorzien van nieuwe bedrading. Deze karakteristieke woning is gelegen in één van de meest geliefde woonwijken in Venlo-Oost op loopafstand van het centrum, winkelvoorzieningen en verschillende basisscholen.
Vraagprijs: € 575.000,- k.k.
Indeling:
Kelder:
Vanuit de woonkamer is er toegang tot de kelder. De kelder bestaat uit 3 compartimenten. In de kelder bevinden zich de witgoedaansluitingen. Tevens is hier de combi CV-ketel gesitueerd (Nefit 2016).
Begane grond:
Middels een looppad door de onderhoudsvriendelijke voortuin is de entree tot de woning te bereiken. De entree/ hal geeft toegang tot de toiletruimte, de trapopgang naar de 1e verdieping en de woonkamer. De toiletruimte is voorzien van een zwevend closet en fonteintje. De royale woonkamer is voorzien van een lichte laminaatvloer, inbouwspots, een erker aan de voorzijde en een elektrische haard. De woonkamer is ca. 40m2 groot. Er is een open doorgang naar de wintertuin (ca. 7m2). De wintertuin is voorzien van een schuifpui en een glazen dak, waardoor er optimaal tuincontact is. De semi-open keuken is ingericht met een inductiekookplaat (2024), afzuigkap, hete lucht oven/ grill, combi-magnetron, koelkast-/diepvriescombinatie en een vaatwasser. Middels een loopdeur is er toegang tot de tuin.
1e verdieping:
De overloop geeft toegang tot een muurkast, 3 slaapkamers, de toiletruimte, de badkamer en de vaste trapopgang naar de 2e verdieping. De overloop en de slaapkamers zijn voorzien van een laminaatvloer. De slaapkamers zijn ca. 10,5m2, 15,5m2 en 16m2 groot. De slaapkamer aan de voorzijde geeft toegang tot een Frans balkon. Twee slaapkamers zijn voorzien van airconditioning voor koeling en verwarming. De toiletruimte is voorzien van een zwevend closet. De geheel betegelde badkamer is ingericht met een ligbad, douchecabine en dubbele wastafel met meubel en spiegelkast. De 1e verdieping is voorzien van rolluiken.
2e verdieping:
Middels een vaste trapopgang is de 2e verdieping te bereiken. De overloop geeft toegang tot 3 slaapkamers en een inloopkast. De gehele 2e verdieping is voorzien van een laminaatvloer. De slaapkamers zijn ca. 9,5m2, 9,5m2 en 17m2 groot. Vanuit één slaapkamer is er een vlizotrap naar de 3e verdieping.
3e verdieping:
Middels vlizotrap bereikbare bergzolder.
Tuin:
De geheel onderhoudsvrije tuin is gelegen op het zuidoosten en is te bereiken middels een vrije achterom. In de tui is een grote parasol in de grond verankerd. Aan de woning is een zonnescherm bevestigd. Vanuit de tuin is er toegang tot de kelder.
Algemeen:
Bouwjaar 1932, inhoud ca. 780m3, gebruiksoppervlakte wonen ca. 182m2, inpandige ruimte ca. 55m2, perceelsoppervlakte 185m2. Onderhoudsstaat is zowel binnen als buiten goed. De woning is geheel voorzien van een centraal stofzuigsysteem. Energielabel B. De woning is volledig geïsoleerd. De gehele woning is voorzien van kunststof kozijnen met grotendeels HR++ glas. De woning heeft 20 zonnepanelen. Combi CV-ketel Nefit 2016. In december 2023 is de woning geheel voorzien van nieuwe bedrading. Deze karakteristieke woning is gelegen in één van de meest geliefde woonwijken in Venlo-Oost op loopafstand van het centrum, winkelvoorzieningen en verschillende basisscholen.
Vraagprijs: € 575.000,- k.k.
+ Read more
- Read less
Construction: {{
product.build_year }}
Construction: {{ product.build_period.start }} -
{{ product.build_period.end }}
House
, Mansion
{{ product.rooms }} rooms
{{ product.bedrooms
}} bedrooms
Living space: {{
product.living_space }} m²
Plot: {{
product.plot_surface }} m²
Energy class: {{ product.energy_class }}
Energy index: {{ product.energy_index }}
Characteristics
{{ field.label }}
{{ field.value }}
+ Read more
{{ field.label }}
{{ field.value }}
- Read less
{{ product.company.name }}
Contact us
{{ product.company.phone.replace('-', ' ').substr(0, 7) }}...
{{ product.company.phone.replace('-', ' ') }}
Share:
Date