Sold
€ {{ product.price.replace(/\B(?=(\d{4})+(?!\d))/g, ".") }} {{ __(product.price_condition) }}
Photo’s
{{ product.images.length }}
Floorplan
{{ product.plans.length }}
360° photo’s {{ product.panoramas.length }}
Video’s {{ product.videos.length }}
Maps
All media
House for sale Groenstraat 60 Venlo
€ {{ product.price.replace(/\B(?=(\d{4})+(?!\d))/g, ".") }} {{ __(product.price_condition) }}
Sold
Description
Te moderniseren en te verduurzamen tussenwoning welke in Venlo-Oost aan hofje is gelegen met tuin op het zuiden, vrije achterom en berging.
Indeling:
Provisiekelder.
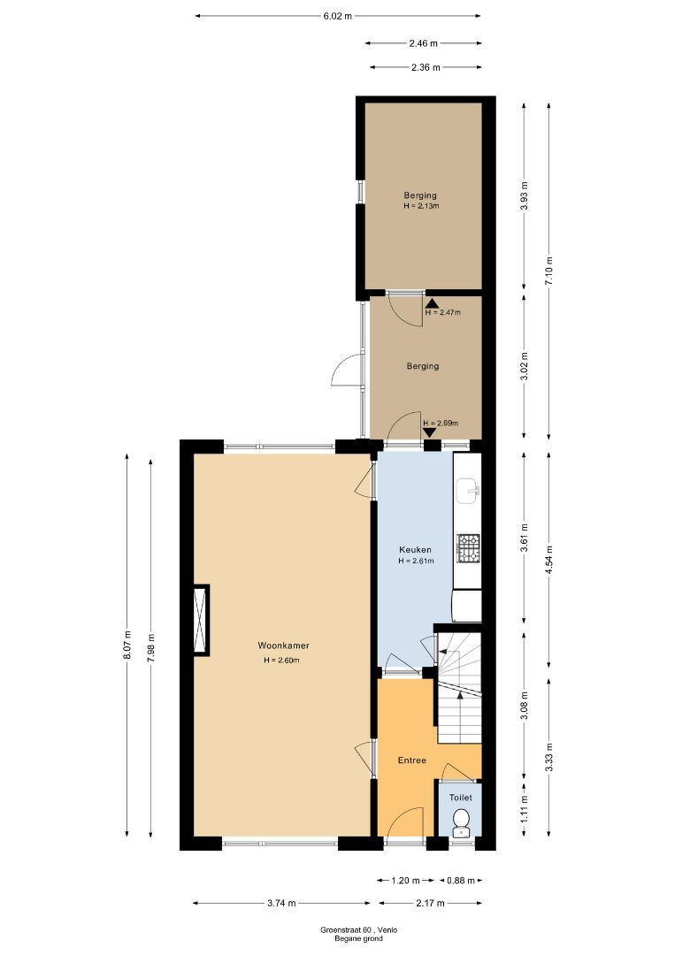
Begane grond: entree met garderobe met tapijtvloer. Trapopgang met tapijt. Staand toilet voorzien van zeil. Doorzon woonkamer welke over een mooie houten dekvloer beschikt. Eenvoudige en gedateerde keuken met zeil en inbouwapparatuur zoals een gaskookplaat (defect), afzuigkap, koelkast en diepvriesvak. Houten berging met witgoedaansluiting met doorgang naar een tweede stenen berging.
1ste verdieping: overloop met tapijtvloer. 4 slaapkamers met zeil waarvan 2 slaapkamers over een muurkast beschikken en 1 slaapkamer is voorzien van een wastafel. Eenvoudige badkamer met douche en wastafel.
Middels Vlizotrap te bereiken zolderruimte waar de cv-ketel staat opgesteld.
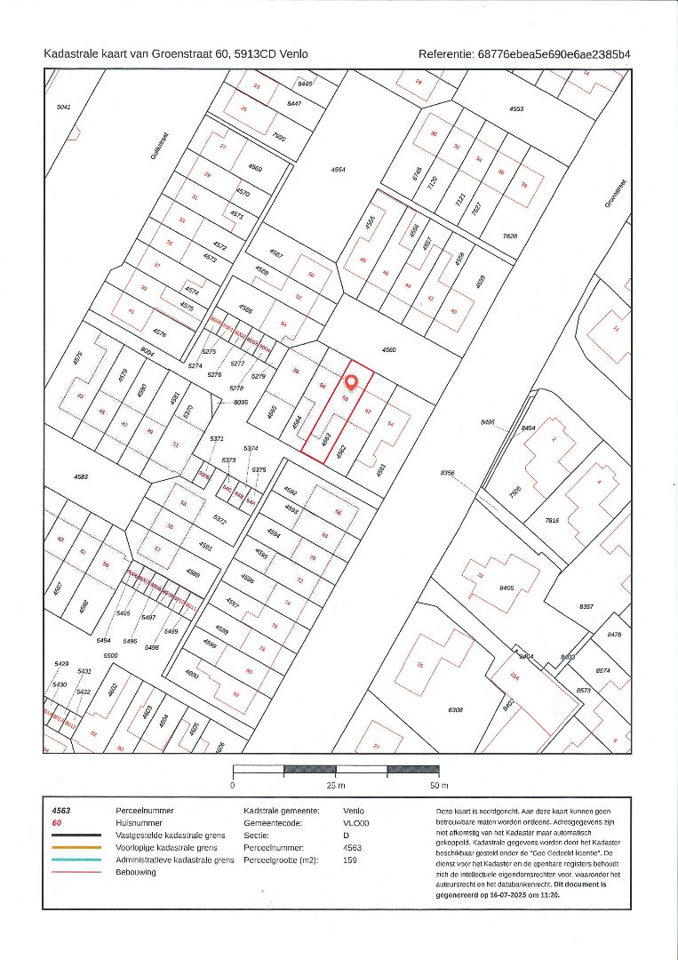
Bijzonderheden: bouwjaar 1961. Oppervlakte perceel 159m2. Woonoppervlakte 98 m2. Overig inpandige ruimte 46 m2. Inhoud 468 m3. De woning is voorzien van stalen en houten kozijnen met enkele beglazing met op de eerste verdieping handmatig te bedienen rolluiken. Woning is in 2022 voorzien van een gehuurde HR Vaillant cv-ketel (€40,82 per maand). Aanvaarding in overleg.
Deze woning wordt via een inschrijfprocedure verkocht. Biedingen dienen uiterlijk woensdag 13 augustus 2025 om 12:00 uur door Makelaarskantoor Paul Schreinemachers BV te zijn ontvangen. Het biedingsformulier wordt u tijdens de bezichtiging aangeboden en is tevens op te vragen bij het makelaarskantoor. Niet ontvangen of niet tijdig ontvangen biedingsformulieren, zullen niet in behandeling worden genomen. Verkoper behoudt het recht van gunning.
Makelaarskantoor Paul Schreinemachers BV zal partijen welke het biedingsformulier tijdig hebben ingevuld en aangeleverd uiterlijk vrijdag 15 augustus 2025 informeren.
Wanneer u nog geen afspraak heeft gemaakt met ons voor een bezichtiging is het nog mogelijk om de woning te bezichtigen tijdens het inloopmoment. Het inloopmoment staat gepland op dinsdag 12 augustus vanaf 16.30 uur tot 17.30 uur.
Indeling:
Provisiekelder.
Begane grond: entree met garderobe met tapijtvloer. Trapopgang met tapijt. Staand toilet voorzien van zeil. Doorzon woonkamer welke over een mooie houten dekvloer beschikt. Eenvoudige en gedateerde keuken met zeil en inbouwapparatuur zoals een gaskookplaat (defect), afzuigkap, koelkast en diepvriesvak. Houten berging met witgoedaansluiting met doorgang naar een tweede stenen berging.
1ste verdieping: overloop met tapijtvloer. 4 slaapkamers met zeil waarvan 2 slaapkamers over een muurkast beschikken en 1 slaapkamer is voorzien van een wastafel. Eenvoudige badkamer met douche en wastafel.
Middels Vlizotrap te bereiken zolderruimte waar de cv-ketel staat opgesteld.
Bijzonderheden: bouwjaar 1961. Oppervlakte perceel 159m2. Woonoppervlakte 98 m2. Overig inpandige ruimte 46 m2. Inhoud 468 m3. De woning is voorzien van stalen en houten kozijnen met enkele beglazing met op de eerste verdieping handmatig te bedienen rolluiken. Woning is in 2022 voorzien van een gehuurde HR Vaillant cv-ketel (€40,82 per maand). Aanvaarding in overleg.
Deze woning wordt via een inschrijfprocedure verkocht. Biedingen dienen uiterlijk woensdag 13 augustus 2025 om 12:00 uur door Makelaarskantoor Paul Schreinemachers BV te zijn ontvangen. Het biedingsformulier wordt u tijdens de bezichtiging aangeboden en is tevens op te vragen bij het makelaarskantoor. Niet ontvangen of niet tijdig ontvangen biedingsformulieren, zullen niet in behandeling worden genomen. Verkoper behoudt het recht van gunning.
Makelaarskantoor Paul Schreinemachers BV zal partijen welke het biedingsformulier tijdig hebben ingevuld en aangeleverd uiterlijk vrijdag 15 augustus 2025 informeren.
Wanneer u nog geen afspraak heeft gemaakt met ons voor een bezichtiging is het nog mogelijk om de woning te bezichtigen tijdens het inloopmoment. Het inloopmoment staat gepland op dinsdag 12 augustus vanaf 16.30 uur tot 17.30 uur.
+ Read more
- Read less
Construction: {{
product.build_year }}
Construction: {{ product.build_period.start }} -
{{ product.build_period.end }}
House
, Single-family house
{{ product.rooms }} rooms
{{ product.bedrooms
}} bedrooms
Living space: {{
product.living_space }} m²
Plot: {{
product.plot_surface }} m²
Energy class: {{ product.energy_class }}
Energy index: {{ product.energy_index }}
Characteristics
{{ field.label }}
{{ field.value }}
+ Read more
{{ field.label }}
{{ field.value }}
- Read less
{{ product.company.name }}
Contact us
{{ product.company.phone.replace('-', ' ').substr(0, 7) }}...
{{ product.company.phone.replace('-', ' ') }}
Share:
Date