Sold
€ {{ product.price.replace(/\B(?=(\d{4})+(?!\d))/g, ".") }} {{ __(product.price_condition) }}
Photo’s
{{ product.images.length }}
Floorplan
{{ product.plans.length }}
360° photo’s {{ product.panoramas.length }}
Video’s {{ product.videos.length }}
Maps
All media

House for sale Zustersstraat 26 Venlo

€ {{ product.price.replace(/\B(?=(\d{4})+(?!\d))/g, ".") }} {{ __(product.price_condition) }}
Sold

Description

In een rustige en zeer gewilde straat ligt deze ruime uitgebouwde tussenwoning. De woning heeft o.a. een uitgebouwde woonkamer met verdekt opgestelde keuken, een bijkeuken, 5 slaapkamers en een badkamer. De woning is voorzien van dubbele beglazing, airconditioning, deels rolluiken. De woning heeft een vrije achterom en een schuur. Alle voorzieningen liggen in de directe nabijheid of op maximaal 5 minuten fietsafstand zoals scholen, winkels en centrum Venlo. Op 5 autominuten liggen de uitvalswegen A67 en A73.

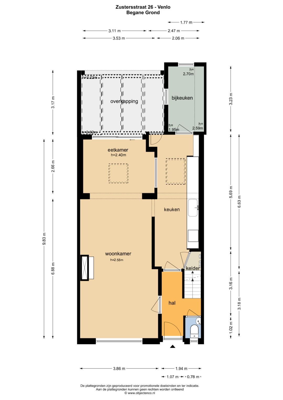
Indeling:

Kelder:
De kelder is ca. 6m² groot en beschikt over een nieuwe groepenkast (2025) en elektriciteitsmeter. De groepenkast is aangesloten op 3 fasen en biedt ruimte voor een eventuele uitbreiding zoals zonnepanelen, warmtepomp of accu.

Begane grond:
Middels een opstapje is de entree van de woning te bereiken. De betegelde hal geeft toegang tot de toiletruimte, de trapopgang naar de verdieping, woonkamer en de keuken. De geheel betegelde toiletruimte is voorzien van een zwevend toilet, fonteintje en buitenraam. De zeer ruime en lichte woonkamer (ca. 37m²) loopt aan de achterzijde over in de eetkamer (ca. 9m2) met airco. De eetkamer heeft een lichtkoepel en een schuifpui met toegang tot de overkapping en tuin. De riante keuken, ook met lichtkoepel, geeft de mogelijkheid om deze geheel naar eigen wens in te richten. In de keuken is middels een trapgang de kelder te bereiken en met een loopdeur is er toegang tot de bijkeuken. Hier ligt een tegelvloer, is er een gootsteen met water en beschikt de bijkeuken over de witgoedaansluitingen met twee aparte elektragroepen

1e verdieping:
De overloop geeft toegang tot 3 slaapkamers, de badkamer en de vaste trap naar de 2e verdieping. De 3 slaapkamers zijn ca.6m², 12m² en 13m² groot. De slaapkamers aan de achterzijde zijn voorzien van rolluiken. De slaapkamer van ca. 6m² heeft verder toegang tot het platdak met de twee lichtkoepels en waar tevens de airco unit is geplaatst. De geheel betegelde badkamer is ingericht met een douchecabine, wastafel met meubel, zwevend toilet en buitenraam.

2e verdieping:
De 2e verdieping is te bereiken middels een vaste trap welke toegang geeft tot de overloop. De overloop geeft toegang tot de 2 slaapkamers en 2 bergruimtes. De berging aan de voorzijde van de woning is voorzien van de CV-ketel (HR ketel Remeha 2011). De 2 slaapkamers zijn ca. 7,5m² groot en hebben beide een dakkapel.

Tuin:
De tuin is op het zuidoosten gelegen en heeft een vrije achterom. Er is een lichte overkapping met tegelvloer aan de achterzijde van de woning. De tuin is voorzien van veel groen en een looppad naar de stenen schuur aan de achterzijde. De tuin is ca. 18m diep en ca. 6m breed. De schuur is ingedeeld in 2 compartimenten en geeft de mogelijkheid om er te klussen en fietsen etc. te plaatsen.

Algemeen:
Bouwjaar 1956, perceeloppervlakte 185m², inhoud ca. 458m³, woonoppervlakte ca. 129m². De woning heeft o.a. 5 slaapkamers, kelder, aanbouw en ruime diepe tuin. Op nog geen 5 minuten ligt het centrum van Venlo, op loopafstand liggen scholen en winkels en op 5 autominuten liggen de uitvalswegen A67 en A73.

Vraagprijs: € 325.000,- k.k.
+ Read more
- Read less
Construction: {{ product.build_year }}
Construction: {{ product.build_period.start }} - {{ product.build_period.end }}
House , Single-family house
{{ product.rooms }} rooms
{{ product.bedrooms }} bedrooms
Living space: {{ product.living_space }} m²
Plot: {{ product.plot_surface }} m²
Energy class:    {{ product.energy_class }}
Energy index: {{ product.energy_index }}

Characteristics

{{ field.label }}
{{ field.value }}

{{ field.label }}
{{ field.value }}
{{ product.company.name }}
Contact us
{{ product.company.phone.replace('-', ' ').substr(0, 7) }}...
{{ product.company.phone.replace('-', ' ') }}
Share:

Similar objects in the neighborhood