Sold
€ {{ product.price.replace(/\B(?=(\d{4})+(?!\d))/g, ".") }} {{ __(product.price_condition) }}
Photo’s
{{ product.images.length }}
Floorplan
{{ product.plans.length }}
360° photo’s {{ product.panoramas.length }}
Video’s {{ product.videos.length }}
Maps
All media
House for sale Schaepmanstraat 58 Venlo
€ {{ product.price.replace(/\B(?=(\d{4})+(?!\d))/g, ".") }} {{ __(product.price_condition) }}
Sold
Description
Ruime hoekwoning met uitgebouwde woonkamer en open keuken, totaal maar liefst 50m2 en drie slaapkamers, badkamer, vliering en kelder. De woning heeft verder een eigen oprit, royale tuin met overkapping, tuinhuis en vrije achterom, gelegen op een perceel van 230m2. Scholen, winkels en centrum Blerick is op loop-/fietsafstand van enkele minuten. Centrum van Venlo en de uitvalswegen A67 en A73 zijn binnen 5 autominuten te bereiken.
Indeling:
Kelder:
De provisiekelder is ca. 7,5m² en te betreden vanuit de hal. Verder zijn hier de witgoedaansluitingen te vinden.
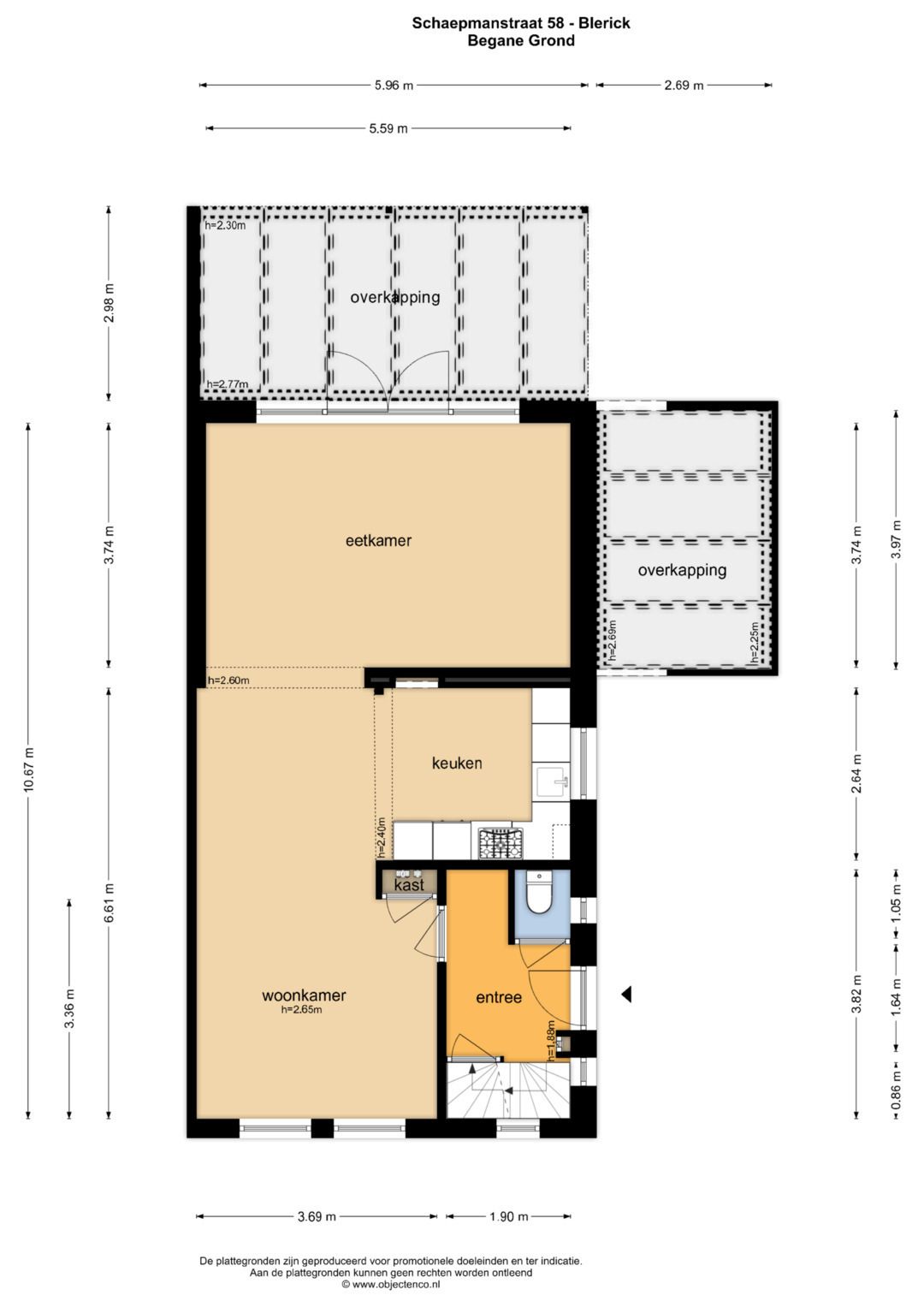
Begane grond:
De ontvangsthal geeft toegang tot de separate toiletruimte, trapgang naar de kelder, trapopgang naar de woonkamer en een loopdeur naar de riante woonkamer. De toiletruimte is geheel betegeld en voorzien van een toilet met buitenraam. De toiletruimte en de hal zijn voorzien van een tegelvloer. De woonkamer met open keuken en eetkamer is zeer ruim van opzet, geniet veel lichtinval en is voorzien van een laminaatvloer. Aan de voorzijde is de zithoek gelegen en aan de achterzijde de eetkamer. Middels 2 openslaande deuren is de overkapping te bereiken. De keuken is voorzien van een gasfornuis, afzuigkap, diepvries, koelkast, spoelbak en veel opbergruimte.
1e verdieping:
Middels de overloop is er toegang tot de 3 slaapkamers, badkamer en vlizotrap naar de bergzolder. De gehele verdieping is voorzien van vloerbedekking. De 3 slaapkamers zijn ruim van opzet en beschikken alle over rolluiken. De masterbedroom welke aan de voorzijde is gelegen beschikt verder over een airco. De badkamer beschikt over een inloopdouche, wastafel met meubel en een buitenraam.
2e verdieping:
Middels een vlizotrap is de verdieping te bereiken. Deze is nu in gebruik als bergzolder, maar hier kan middels realisatie van een vaste trap een 2e woonverdieping gerealiseerd worden. Tevens is hier de CV-ketel gepositioneerd van het merk Vaillant met bouwjaar 2005.
Tuin:
De royale tuin is op het Oosten gelegen en beschikt over een eigen achterom. Via de voorkant is de tuin te betreden middels een kleine poort. De is grotendeels betegeld en aan de achterzijde voorzien van kunstgras. De gehele tuin is omheind.
Algemeen:
Bouwjaar 1952, woonoppervlakte ca. 98m², inhoud ca. 421m³, perceeloppervlakte 230m². De CV-opstelling is van het merk Vaillant en bouwjaar 2005. De woning beschikt over kunststofkozijnen met grotendeels rolluiken. Het centrum van Blerick is op enkele loopminuten gelegen, het centrum van Venlo is in enkele fietsminuten te bereiken. De uitvalswegen A67 en A73 zijn op enkele autominuten te bereiken.
Vraagprijs € 315.000,- k.k.
Indeling:
Kelder:
De provisiekelder is ca. 7,5m² en te betreden vanuit de hal. Verder zijn hier de witgoedaansluitingen te vinden.
Begane grond:
De ontvangsthal geeft toegang tot de separate toiletruimte, trapgang naar de kelder, trapopgang naar de woonkamer en een loopdeur naar de riante woonkamer. De toiletruimte is geheel betegeld en voorzien van een toilet met buitenraam. De toiletruimte en de hal zijn voorzien van een tegelvloer. De woonkamer met open keuken en eetkamer is zeer ruim van opzet, geniet veel lichtinval en is voorzien van een laminaatvloer. Aan de voorzijde is de zithoek gelegen en aan de achterzijde de eetkamer. Middels 2 openslaande deuren is de overkapping te bereiken. De keuken is voorzien van een gasfornuis, afzuigkap, diepvries, koelkast, spoelbak en veel opbergruimte.
1e verdieping:
Middels de overloop is er toegang tot de 3 slaapkamers, badkamer en vlizotrap naar de bergzolder. De gehele verdieping is voorzien van vloerbedekking. De 3 slaapkamers zijn ruim van opzet en beschikken alle over rolluiken. De masterbedroom welke aan de voorzijde is gelegen beschikt verder over een airco. De badkamer beschikt over een inloopdouche, wastafel met meubel en een buitenraam.
2e verdieping:
Middels een vlizotrap is de verdieping te bereiken. Deze is nu in gebruik als bergzolder, maar hier kan middels realisatie van een vaste trap een 2e woonverdieping gerealiseerd worden. Tevens is hier de CV-ketel gepositioneerd van het merk Vaillant met bouwjaar 2005.
Tuin:
De royale tuin is op het Oosten gelegen en beschikt over een eigen achterom. Via de voorkant is de tuin te betreden middels een kleine poort. De is grotendeels betegeld en aan de achterzijde voorzien van kunstgras. De gehele tuin is omheind.
Algemeen:
Bouwjaar 1952, woonoppervlakte ca. 98m², inhoud ca. 421m³, perceeloppervlakte 230m². De CV-opstelling is van het merk Vaillant en bouwjaar 2005. De woning beschikt over kunststofkozijnen met grotendeels rolluiken. Het centrum van Blerick is op enkele loopminuten gelegen, het centrum van Venlo is in enkele fietsminuten te bereiken. De uitvalswegen A67 en A73 zijn op enkele autominuten te bereiken.
Vraagprijs € 315.000,- k.k.
+ Read more
- Read less
Construction: {{
product.build_year }}
Construction: {{ product.build_period.start }} -
{{ product.build_period.end }}
House
, Single-family house
{{ product.rooms }} rooms
{{ product.bedrooms
}} bedrooms
Living space: {{
product.living_space }} m²
Plot: {{
product.plot_surface }} m²
Energy class: {{ product.energy_class }}
Energy index: {{ product.energy_index }}
Characteristics
{{ field.label }}
{{ field.value }}
+ Read more
{{ field.label }}
{{ field.value }}
- Read less
{{ product.company.name }}
Contact us
{{ product.company.phone.replace('-', ' ').substr(0, 7) }}...
{{ product.company.phone.replace('-', ' ') }}
Share:
Date