Available
€ {{ product.price.replace(/\B(?=(\d{4})+(?!\d))/g, ".") }} {{ __(product.price_condition) }}
Photo’s
{{ product.images.length }}
Floorplan
{{ product.plans.length }}
360° photo’s {{ product.panoramas.length }}
Video’s {{ product.videos.length }}
Maps
All media
House for sale Maagdenbergweg 51 Venlo
€ {{ product.price.replace(/\B(?=(\d{4})+(?!\d))/g, ".") }} {{ __(product.price_condition) }}
Available
Description
In een rustige straat in Venlo-oost ligt deze schitterende zeer ruime hoekwoning op een zeer ruim perceel van ca. 975m². Deze woning is o.a. voorzien van een kelder, 4 slaapkamers, wasruimte, ruime woonkamer, prachtige woonkeuken, 2 badkamers en een vrije achterom. De woning beschikt verder over 24 zonnepanelen, 4 airco's en CV-ketel van Nefit met bouwjaar 2011. De woning ligt op enkele minuten fietsafstand van het centrum van Venlo en op steenworp afstand van winkels en de basisschool Groenveld en de Gilde opleidingen.
Indeling:
Kelder:
De woning beschikt overeen kelder van (ca. 21m²) groot.
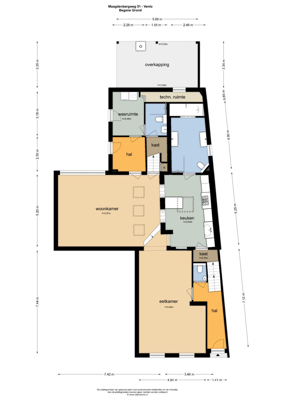
Begane grond:
Middels een opstapje is de entree van de woning te bereiken. De entree geeft toegang tot de ruime hal. Vanuit de hal is er toegang tot de trapopgang naar de 1e verdieping, separate toiletruimte en toegang tot de woonvertrekken. De separate toiletruimte is geheel betegeld en voorzien van een zwevend toilet, fonteintje en mechanische ventilatie. Middels een loopdeur is er toegang tot de woonkamer. Aan de voorzijde is de eetkamer gepositioneerd en aan de zijkant, in verbinding met de keuken, de ruime woonkamer. De ruime TV hoek is ca. 38m² groot en voorzien van 3 lichtkoepels voor veel natuurlijk daglicht. Verder is er een schuifpui aanwezig naar de tuin. De halfopen woonkeuken is in 2023 geheel gerenoveerd en voorzien van een 5-pits gasfornuis, afzuigkap, oven, magnetron, vaatwasmachine, koelkast en zeer veel opbergruimte. Tevens is er een muurkast voor opslag. Vanuit de keuken is het mogelijk de badkamer te betreden. Deze is voorzien van een ligbad, inloopdouche, 2x wastafel met meubel, designradiator en een buitenraam met rolluik. In de woonkamer is er middels 2 loopdeuren toegang tot de hal en de 1e verdieping aan de achterzijde van de woning. De hal maakt het mogelijk via de achterzijde de woning te betreden en geeft toegang tot de wasruimte. Via de wasruimte is de 2e badkamer te betreden. De badkamer is voorzien van een inloopdouche, wastafel en zwevend toilet. De keuken en de zitkamer zijn voorzien van vloerverwarming en de eetkamer beschikt over een airco.
1e verdieping voorzijde:
De overloop welke is voorzien van een airco geeft toegang tot 3 ruime slaapkamers, wastafel en een uittrek trap voor het bereiken van de bergzolder. De 3 slaapkamers zijn ca. 10,5m², 12,5m² en 14m² groot. Middels een uittrek trap is het mogelijk de bergzolder te bereiken. Deze is voorzien van verwarming en ruim van opzet.
1e verdieping achterzijde:
Middels een vaste trap is de 1e verdieping te bereiken. Deze verdieping is momenteel in gebruik als kantoorruimte met aparte slaapkamer, maar kan uiteraard voor meerdere doeleinden gebruikt worden. Middels de kamer is er toegang tot de 4e slaapkamer welke beschikt over een wastafel. De verdieping beschikt over een airco.
Tuin:
De riante tuin is voorzien van veel groen, ontzettend veel privacy, een vijver, overkapping en tuinhuis/schuur. Middels een elektrische poort is het mogelijk 2 auto's op het eigen terrein te parkeren. De gezellig terrasoverkapping aan de achterzijde beschikt over een houtkachel. Middels een looppad naast de vijver is het gazon en het tuinhuis te bereiken.
Algemeen:
Bouwjaar 1919, woonoppervlakte ca. 225m², inhoud ca. 922m³, perceeloppervlakte 975m². De CV-opstelling is van het merk Nefit met bouwjaar 2011. Het energielabel is C. Deze woning ligt in een rustige straat met voldoende parkeerplaatsen en is op enkele fietsminuten van het centrum van Venlo gelegen. Het centrum van Venlo alsmede de A67 en A73 zijn in enkele autominuten te bereiken.
Vraagprijs € 699.000,- k.k.
Indeling:
Kelder:
De woning beschikt overeen kelder van (ca. 21m²) groot.
Begane grond:
Middels een opstapje is de entree van de woning te bereiken. De entree geeft toegang tot de ruime hal. Vanuit de hal is er toegang tot de trapopgang naar de 1e verdieping, separate toiletruimte en toegang tot de woonvertrekken. De separate toiletruimte is geheel betegeld en voorzien van een zwevend toilet, fonteintje en mechanische ventilatie. Middels een loopdeur is er toegang tot de woonkamer. Aan de voorzijde is de eetkamer gepositioneerd en aan de zijkant, in verbinding met de keuken, de ruime woonkamer. De ruime TV hoek is ca. 38m² groot en voorzien van 3 lichtkoepels voor veel natuurlijk daglicht. Verder is er een schuifpui aanwezig naar de tuin. De halfopen woonkeuken is in 2023 geheel gerenoveerd en voorzien van een 5-pits gasfornuis, afzuigkap, oven, magnetron, vaatwasmachine, koelkast en zeer veel opbergruimte. Tevens is er een muurkast voor opslag. Vanuit de keuken is het mogelijk de badkamer te betreden. Deze is voorzien van een ligbad, inloopdouche, 2x wastafel met meubel, designradiator en een buitenraam met rolluik. In de woonkamer is er middels 2 loopdeuren toegang tot de hal en de 1e verdieping aan de achterzijde van de woning. De hal maakt het mogelijk via de achterzijde de woning te betreden en geeft toegang tot de wasruimte. Via de wasruimte is de 2e badkamer te betreden. De badkamer is voorzien van een inloopdouche, wastafel en zwevend toilet. De keuken en de zitkamer zijn voorzien van vloerverwarming en de eetkamer beschikt over een airco.
1e verdieping voorzijde:
De overloop welke is voorzien van een airco geeft toegang tot 3 ruime slaapkamers, wastafel en een uittrek trap voor het bereiken van de bergzolder. De 3 slaapkamers zijn ca. 10,5m², 12,5m² en 14m² groot. Middels een uittrek trap is het mogelijk de bergzolder te bereiken. Deze is voorzien van verwarming en ruim van opzet.
1e verdieping achterzijde:
Middels een vaste trap is de 1e verdieping te bereiken. Deze verdieping is momenteel in gebruik als kantoorruimte met aparte slaapkamer, maar kan uiteraard voor meerdere doeleinden gebruikt worden. Middels de kamer is er toegang tot de 4e slaapkamer welke beschikt over een wastafel. De verdieping beschikt over een airco.
Tuin:
De riante tuin is voorzien van veel groen, ontzettend veel privacy, een vijver, overkapping en tuinhuis/schuur. Middels een elektrische poort is het mogelijk 2 auto's op het eigen terrein te parkeren. De gezellig terrasoverkapping aan de achterzijde beschikt over een houtkachel. Middels een looppad naast de vijver is het gazon en het tuinhuis te bereiken.
Algemeen:
Bouwjaar 1919, woonoppervlakte ca. 225m², inhoud ca. 922m³, perceeloppervlakte 975m². De CV-opstelling is van het merk Nefit met bouwjaar 2011. Het energielabel is C. Deze woning ligt in een rustige straat met voldoende parkeerplaatsen en is op enkele fietsminuten van het centrum van Venlo gelegen. Het centrum van Venlo alsmede de A67 en A73 zijn in enkele autominuten te bereiken.
Vraagprijs € 699.000,- k.k.
+ Read more
- Read less
Construction: {{
product.build_year }}
Construction: {{ product.build_period.start }} -
{{ product.build_period.end }}
House
, Single-family house
{{ product.rooms }} rooms
{{ product.bedrooms
}} bedrooms
Living space: {{
product.living_space }} m²
Plot: {{
product.plot_surface }} m²
Energy class: {{ product.energy_class }}
Energy index: {{ product.energy_index }}
Characteristics
{{ field.label }}
{{ field.value }}
+ Read more
{{ field.label }}
{{ field.value }}
- Read less
{{ product.company.name }}
Contact us
{{ product.company.phone.replace('-', ' ').substr(0, 7) }}...
{{ product.company.phone.replace('-', ' ') }}
Share:
Date