Sold
€ {{ product.price.replace(/\B(?=(\d{4})+(?!\d))/g, ".") }} {{ __(product.price_condition) }}
Photo’s
{{ product.images.length }}
Floorplan
{{ product.plans.length }}
360° photo’s {{ product.panoramas.length }}
Video’s {{ product.videos.length }}
Maps
All media
House for sale Adelbertweg 8 Venray
€ {{ product.price.replace(/\B(?=(\d{4})+(?!\d))/g, ".") }} {{ __(product.price_condition) }}
Sold
Description
Indrukwekkend wonen in Venray! Deze charmante twee-onder-een-kapwoning aan de Adelbertweg biedt alles wat je nodig hebt voor comfortabel wonen in een rustige en groene omgeving. Met een woonoppervlakte van circa 119 m², een fraaie vide, een multifunctionele kamer op de begane grond en in totaal twee ruime slaapkamers is er volop leefruimte. De woning is goed onderhouden en heeft energielabel C. Kenmerkend zijn de lichte woonkamer met grote raampartijen en dakramen, de nette badkamer en de onderhoudsvriendelijke tuin met overkapping en garage. Dankzij de ligging in een rustige woonwijk, dichtbij scholen, winkels en bosrand, combineert deze woning comfort met een gunstige locatie.
Bijzonderheden:
- Extra slaap-/werk-/hobbykamer op begane grond
- Energielabel C
- Woonoppervlakte circa 119 m²
- Garage met elektra
- Fraai aangelegde tuin met overkapping
Indeling
Begane grond
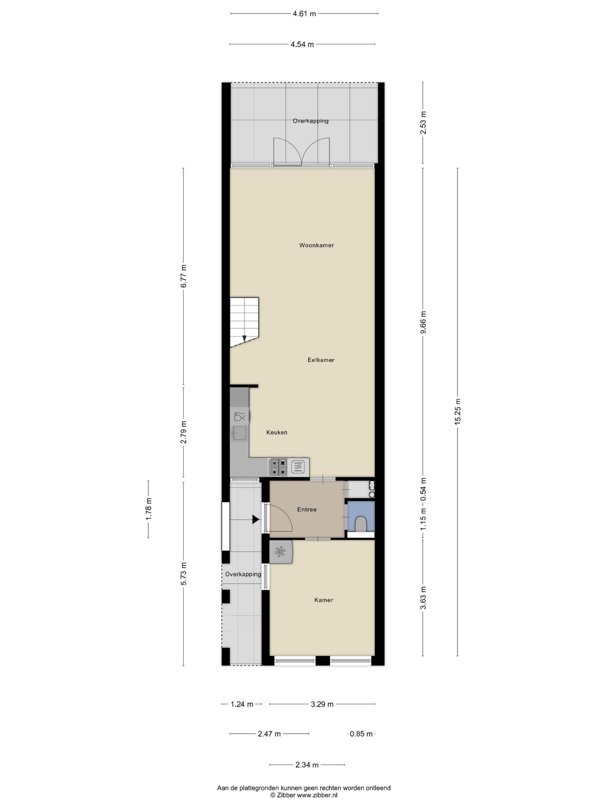
Via de voordeur kom je binnen in de hal van de woning. In de hal bevindt zich het toilet, dat in 2024 vernieuwd is en is uitgerust met een wandcloset. Daarnaast is hier de meterkast met een vernieuwde groepenkast gesitueerd. Vanuit de hal zijn een aparte kamer en de woonkamer bereikbaar.
De aparte kamer bevindt zich aan de voorzijde van de woning. Deze ruimte is multifunctioneel en kan bijvoorbeeld gebruikt worden als werkkamer, hobbykamer of speelkamer.
De woonkamer met open keuken heeft een oppervlakte van circa 44 m². De ruimte is voorzien van een massief eiken planken vloer, welke in 2019 is geschuurd en geolied. Dankzij de grote raampartijen, openslaande deuren richting de tuin én de extra dakramen in het schuine dak geniet de woonkamer van veel lichtinval en een prettig uitzicht. De open indeling biedt plaats voor een ruime zithoek en een eethoek, waardoor het een fijne plek is voor zowel ontspanning als gezellig samenzijn.
De keuken is voorzien van diverse inbouwapparatuur, zoals een koelkast met vriezer, vaatwasser, oven, magnetron en gaskooktoestel. In 2024 is de keuken grotendeels vernieuwd, de kastjes zijn opnieuw geschilderd, er zijn nieuwe tegels geplaatst en het keukenblad, de kraan, kookplaat, vaatwasser, koelkast-vriezer en de wasbak zijn vernieuwd.
Eerste verdieping
De trap naar de eerste verdieping staat in de woonkamer. Boven kom je uit op de overloop met vide, die uitkijkt over de woonkamer en zorgt voor een ruimtelijk effect. Vanuit de overloop zijn een ruime slaapkamer van circa 20 m² en de badkamer bereikbaar. De slaapkamer ligt aan de voorzijde van de woning en is uitgerust met elektrische rolluiken.
De badkamer is volledig betegeld en netjes afgewerkt. De ruimte beschikt over een ligbad, een inloopdouche, een dubbele wastafel met meubel, een toilet en mechanische ventilatie. Door de toepassing van glasblokken en dakramen in de woonkamer profiteert de badkamer bovendien van extra natuurlijk licht.
Tweede verdieping
Via de trap op de eerste verdieping kom je op de tweede verdieping. Hier bevindt zich een volwaardige slaapkamer met dakkapel van circa 15 m². Het dak is geïsoleerd en in deze ruimte zijn tevens de witgoedaansluitingen aanwezig. Daarnaast is er een kast waarin de cv-ketel (Intergas, 2019) is geplaatst.
Tuin
Via de openslaande tuindeuren in de woonkamer bereik je de fraai aangelegde tuin van circa 47 m², gelegen op het westen. De tuin is ingericht met keramische tegels, kunstgras en diverse beplanting. Daarnaast beschikt de tuin over een praktische overkapping en een garage met elektra, die aan de achterzijde is voorzien van openslaande deuren.
Bijzonderheden:
- Extra slaap-/werk-/hobbykamer op begane grond
- Energielabel C
- Woonoppervlakte circa 119 m²
- Garage met elektra
- Fraai aangelegde tuin met overkapping
Indeling
Begane grond
Via de voordeur kom je binnen in de hal van de woning. In de hal bevindt zich het toilet, dat in 2024 vernieuwd is en is uitgerust met een wandcloset. Daarnaast is hier de meterkast met een vernieuwde groepenkast gesitueerd. Vanuit de hal zijn een aparte kamer en de woonkamer bereikbaar.
De aparte kamer bevindt zich aan de voorzijde van de woning. Deze ruimte is multifunctioneel en kan bijvoorbeeld gebruikt worden als werkkamer, hobbykamer of speelkamer.
De woonkamer met open keuken heeft een oppervlakte van circa 44 m². De ruimte is voorzien van een massief eiken planken vloer, welke in 2019 is geschuurd en geolied. Dankzij de grote raampartijen, openslaande deuren richting de tuin én de extra dakramen in het schuine dak geniet de woonkamer van veel lichtinval en een prettig uitzicht. De open indeling biedt plaats voor een ruime zithoek en een eethoek, waardoor het een fijne plek is voor zowel ontspanning als gezellig samenzijn.
De keuken is voorzien van diverse inbouwapparatuur, zoals een koelkast met vriezer, vaatwasser, oven, magnetron en gaskooktoestel. In 2024 is de keuken grotendeels vernieuwd, de kastjes zijn opnieuw geschilderd, er zijn nieuwe tegels geplaatst en het keukenblad, de kraan, kookplaat, vaatwasser, koelkast-vriezer en de wasbak zijn vernieuwd.
Eerste verdieping
De trap naar de eerste verdieping staat in de woonkamer. Boven kom je uit op de overloop met vide, die uitkijkt over de woonkamer en zorgt voor een ruimtelijk effect. Vanuit de overloop zijn een ruime slaapkamer van circa 20 m² en de badkamer bereikbaar. De slaapkamer ligt aan de voorzijde van de woning en is uitgerust met elektrische rolluiken.
De badkamer is volledig betegeld en netjes afgewerkt. De ruimte beschikt over een ligbad, een inloopdouche, een dubbele wastafel met meubel, een toilet en mechanische ventilatie. Door de toepassing van glasblokken en dakramen in de woonkamer profiteert de badkamer bovendien van extra natuurlijk licht.
Tweede verdieping
Via de trap op de eerste verdieping kom je op de tweede verdieping. Hier bevindt zich een volwaardige slaapkamer met dakkapel van circa 15 m². Het dak is geïsoleerd en in deze ruimte zijn tevens de witgoedaansluitingen aanwezig. Daarnaast is er een kast waarin de cv-ketel (Intergas, 2019) is geplaatst.
Tuin
Via de openslaande tuindeuren in de woonkamer bereik je de fraai aangelegde tuin van circa 47 m², gelegen op het westen. De tuin is ingericht met keramische tegels, kunstgras en diverse beplanting. Daarnaast beschikt de tuin over een praktische overkapping en een garage met elektra, die aan de achterzijde is voorzien van openslaande deuren.
+ Read more
- Read less
Construction: {{
product.build_year }}
Construction: {{ product.build_period.start }} -
{{ product.build_period.end }}
House
, Single-family house
{{ product.rooms }} rooms
{{ product.bedrooms
}} bedrooms
Living space: {{
product.living_space }} m²
Plot: {{
product.plot_surface }} m²
Energy class: {{ product.energy_class }}
Energy index: {{ product.energy_index }}
Characteristics
{{ field.label }}
{{ field.value }}
+ Read more
{{ field.label }}
{{ field.value }}
- Read less
{{ product.company.name }}
Contact us
{{ product.company.phone.replace('-', ' ').substr(0, 7) }}...
{{ product.company.phone.replace('-', ' ') }}
Share:
Date