Sold
€ {{ product.price.replace(/\B(?=(\d{4})+(?!\d))/g, ".") }} {{ __(product.price_condition) }}
Photo’s
{{ product.images.length }}
Floorplan
{{ product.plans.length }}
360° photo’s {{ product.panoramas.length }}
Video’s {{ product.videos.length }}
Maps
All media
House for sale Keyserbosch 34 Weert
€ {{ product.price.replace(/\B(?=(\d{4})+(?!\d))/g, ".") }} {{ __(product.price_condition) }}
Sold
Description
Keyserbosch 34 – Heerlijk wonen met zwembad in een rustige wijk van Weert
Welkom bij Keyserbosch 34, een uitstekend onderhouden twee-onder-een-kapwoning op een fijne locatie in Weert. Deze woning combineert ruimte, comfort en een verrassend luxe buitenruimte met een eigen zwembad. Met vier slaapkamers, een moderne keuken en badkamer, energielabel B en een ruime garage is dit een ideale plek voor wie op zoek is naar een gezinswoning met nét dat beetje extra.
Indeling
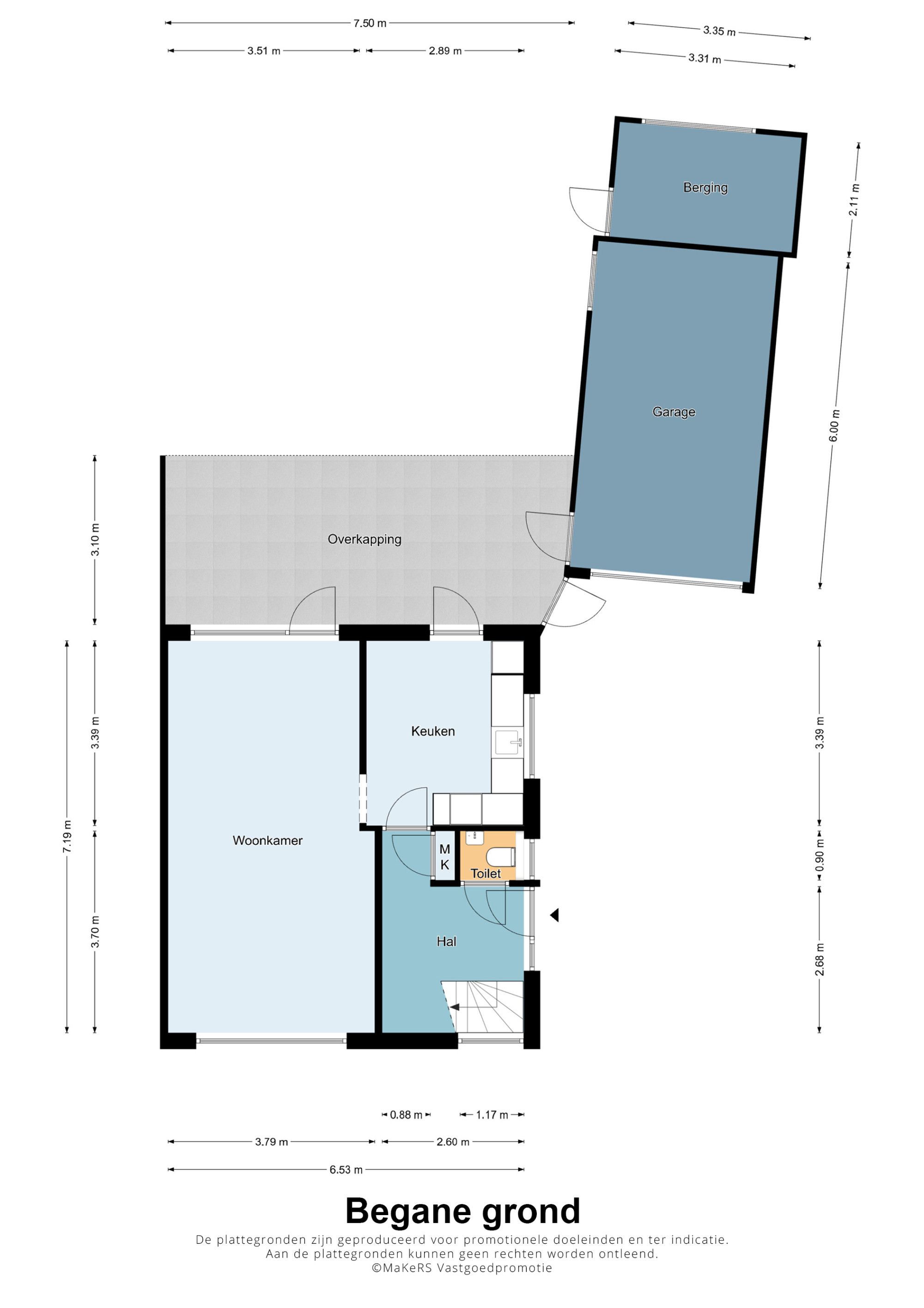
Begane grond:
Via de eigen oprit bereik je de entree van de woning. De ruime hal biedt toegang tot de keuken, toilet, meterkast en trap naar boven.
De keuken, vernieuwd in 2022, is modern en compleet uitgerust met hoogwaardige inbouwapparatuur: een vaatwasser, BORA inductiekookplaat met ingebouwde afzuiging, koelkast, combi-oven en een kokendwaterkraan. Vanuit de keuken heb je direct toegang tot de tuin.
De woonkamer is een prettige, lichte ruimte met raampartijen aan beide zijden en een sfeervolle houthaard als middelpunt. Ook hier is een deur naar de tuin, waardoor binnen en buiten mooi in elkaar overlopen.
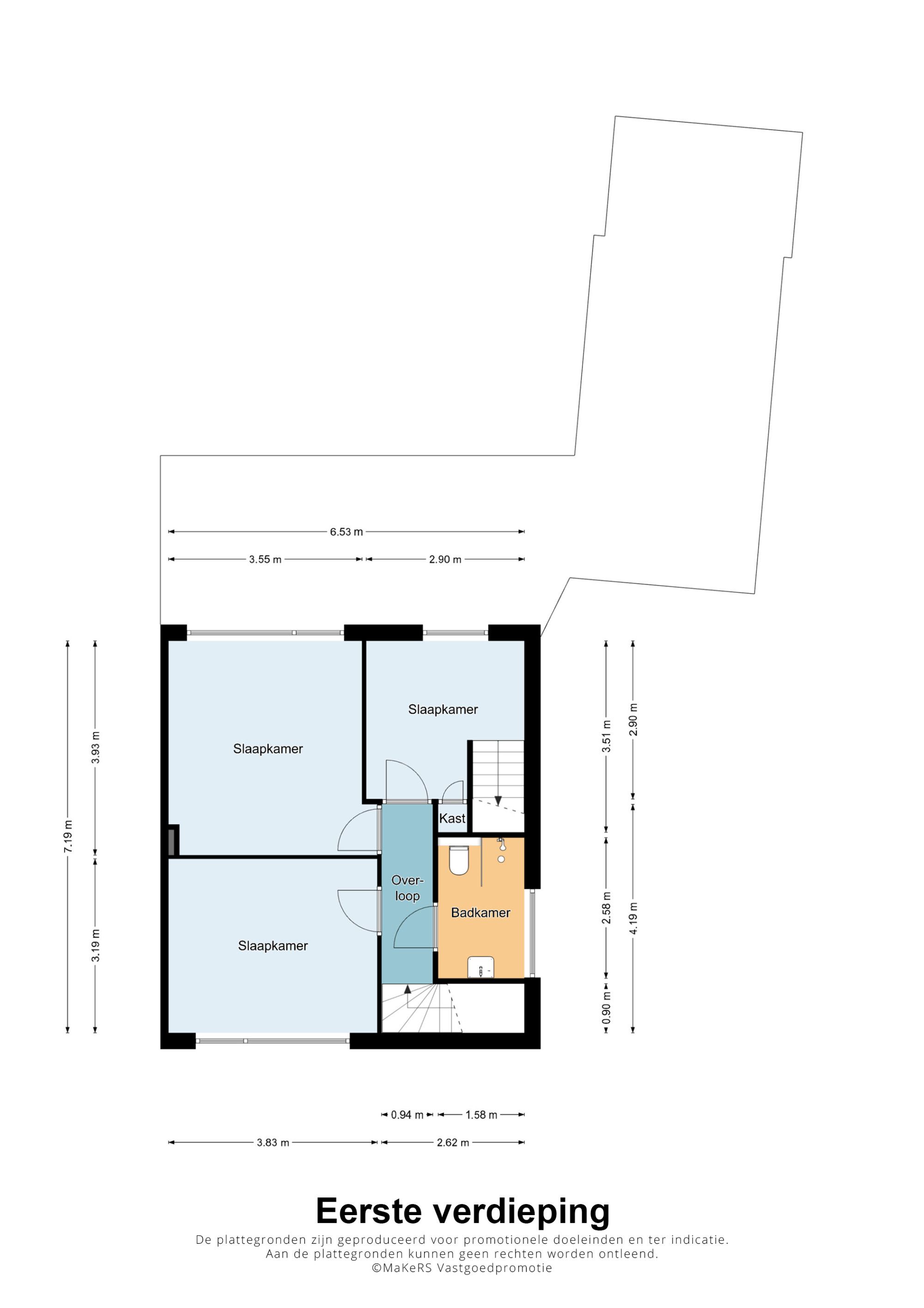
Eerste verdieping:
Via de gerenoveerde trap kom je op de eerste verdieping. Hier bevinden zich drie slaapkamers en een moderne badkamer. De hoofdslaapkamer is voorzien van een airco, wat zorgt voor extra comfort in de zomer.
De badkamer is strak afgewerkt met lichte grijstinten en beschikt over een inloopdouche, wandcloset en wastafel.
Tweede verdieping:
Een vaste trap vanuit een van de slaapkamers leidt naar de tweede verdieping. Hier vind je een ruime vierde slaapkamer met dakkapel. Op de voorzolder is extra bergruimte en hangt de Nefit Excellent Ecomline HR cv-ketel (2003).
Buitenruimte:
De tuin is een echte eyecatcher. Onder de overkapping is een gezellige zitplek gecreëerd met uitzicht op het zwembad van 7 x 3,5 meter, dat verwarmd wordt via een warmtepomp. Hier kun je heerlijk ontspannen, zonnen of barbecueën met vrienden en familie.
Via de tuin en oprit is er toegang tot de ruime garage, die volop bergruimte biedt en eventueel gebruikt kan worden als stallingsplek voor een auto.
Kenmerken van deze woning:
- Twee-onder-een-kapwoning op rustige locatie in Weert
- Vier slaapkamers, waarvan één met airco
- Moderne keuken (2022) met luxe inbouwapparatuur
- Sfeervolle woonkamer met houthaard
- Fraai aangelegde tuin met overkapping en verwarmd zwembad
- Eigen garage met ruime oprit
- Verduurzaamd met muur-, kruipruimte- en deels dakisolatie
- 16 zonnepanelen (geplaatst 2022)
- Energielabel B
Welkom bij Keyserbosch 34, een uitstekend onderhouden twee-onder-een-kapwoning op een fijne locatie in Weert. Deze woning combineert ruimte, comfort en een verrassend luxe buitenruimte met een eigen zwembad. Met vier slaapkamers, een moderne keuken en badkamer, energielabel B en een ruime garage is dit een ideale plek voor wie op zoek is naar een gezinswoning met nét dat beetje extra.
Indeling
Begane grond:
Via de eigen oprit bereik je de entree van de woning. De ruime hal biedt toegang tot de keuken, toilet, meterkast en trap naar boven.
De keuken, vernieuwd in 2022, is modern en compleet uitgerust met hoogwaardige inbouwapparatuur: een vaatwasser, BORA inductiekookplaat met ingebouwde afzuiging, koelkast, combi-oven en een kokendwaterkraan. Vanuit de keuken heb je direct toegang tot de tuin.
De woonkamer is een prettige, lichte ruimte met raampartijen aan beide zijden en een sfeervolle houthaard als middelpunt. Ook hier is een deur naar de tuin, waardoor binnen en buiten mooi in elkaar overlopen.
Eerste verdieping:
Via de gerenoveerde trap kom je op de eerste verdieping. Hier bevinden zich drie slaapkamers en een moderne badkamer. De hoofdslaapkamer is voorzien van een airco, wat zorgt voor extra comfort in de zomer.
De badkamer is strak afgewerkt met lichte grijstinten en beschikt over een inloopdouche, wandcloset en wastafel.
Tweede verdieping:
Een vaste trap vanuit een van de slaapkamers leidt naar de tweede verdieping. Hier vind je een ruime vierde slaapkamer met dakkapel. Op de voorzolder is extra bergruimte en hangt de Nefit Excellent Ecomline HR cv-ketel (2003).
Buitenruimte:
De tuin is een echte eyecatcher. Onder de overkapping is een gezellige zitplek gecreëerd met uitzicht op het zwembad van 7 x 3,5 meter, dat verwarmd wordt via een warmtepomp. Hier kun je heerlijk ontspannen, zonnen of barbecueën met vrienden en familie.
Via de tuin en oprit is er toegang tot de ruime garage, die volop bergruimte biedt en eventueel gebruikt kan worden als stallingsplek voor een auto.
Kenmerken van deze woning:
- Twee-onder-een-kapwoning op rustige locatie in Weert
- Vier slaapkamers, waarvan één met airco
- Moderne keuken (2022) met luxe inbouwapparatuur
- Sfeervolle woonkamer met houthaard
- Fraai aangelegde tuin met overkapping en verwarmd zwembad
- Eigen garage met ruime oprit
- Verduurzaamd met muur-, kruipruimte- en deels dakisolatie
- 16 zonnepanelen (geplaatst 2022)
- Energielabel B
+ Read more
- Read less
Construction: {{
product.build_year }}
Construction: {{ product.build_period.start }} -
{{ product.build_period.end }}
House
, Single-family house
{{ product.rooms }} rooms
{{ product.bedrooms
}} bedrooms
Living space: {{
product.living_space }} m²
Plot: {{
product.plot_surface }} m²
Energy class: {{ product.energy_class }}
Energy index: {{ product.energy_index }}
Characteristics
{{ field.label }}
{{ field.value }}
+ Read more
{{ field.label }}
{{ field.value }}
- Read less
{{ product.company.name }}
Contact us
{{ product.company.phone.replace('-', ' ').substr(0, 7) }}...
{{ product.company.phone.replace('-', ' ') }}
Share:
Date