Sold
€ {{ product.price.replace(/\B(?=(\d{4})+(?!\d))/g, ".") }} {{ __(product.price_condition) }}
Photo’s
{{ product.images.length }}
Floorplan
{{ product.plans.length }}
360° photo’s {{ product.panoramas.length }}
Video’s {{ product.videos.length }}
Maps
All media
House for sale Voorstestraat 125 Weert
€ {{ product.price.replace(/\B(?=(\d{4})+(?!\d))/g, ".") }} {{ __(product.price_condition) }}
Sold
Description
Royale twee-onder-een-kapwoning met garage in rustige woonwijk!
Voorstestraat 125, Weert
Welkom in deze verrassend ruime, goed onderhouden twee-onder-een-kapwoning met garage, gelegen in een rustige, kindvriendelijke woonwijk in Weert. Deze instapklare gezinswoning biedt met vier (mogelijk vijf) slaapkamers, een sfeervolle serre, een zonnige tuin én energiebesparende voorzieningen alles wat een modern gezin zich kan wensen. Dankzij de centrale ligging nabij scholen, speeltuinen en uitvalswegen is dit de perfecte plek voor wie comfortabel én praktisch wil wonen.
Indeling
Begane grond
Via de entree kom je binnen in een ruime hal met toegang tot de keuken en een trap naar boven. De woonkamer heeft een fijne lichtinval dankzij een groot raam aan de voorzijde en twee terrasdeuren aan de tuinzijde. Tevens is deze ruimte voorzien van een comfortabele airco. De keuken, met praktische kelderkast, grenst aan de woonkamer en is uitgerust met alle gebruikelijke voorzieningen evenals een plintboiler voor direct warmwater. Vanuit de woonkamer en keuken heb je toegang tot de tuin en tot een praktische garage met wateraansluiting.
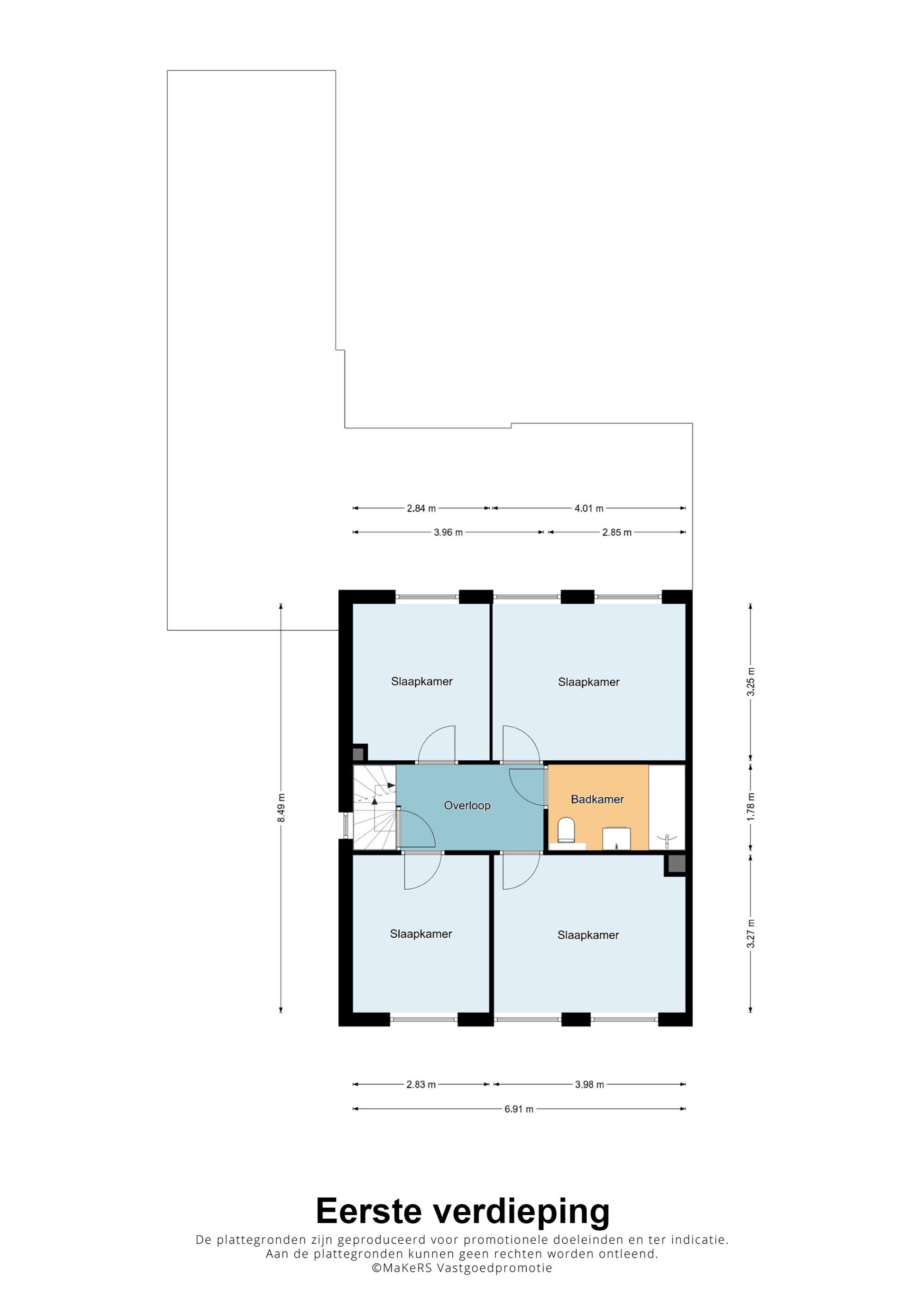
Eerste verdieping
Middels de trap in de ontvangsthal bereik je de eerste verdieping. Hier bevinden zich vier slaapkamers en een badkamer. De slaapkamers zijn allen van ruim formaat en voorzien van nieuwe kunststof kozijnen, HR++ glas en rolluiken. De badkamer is compleet met inloopdouche, toilet, wastafel en een badkamermeubel. Ook hier is een plintboiler aanwezig voor direct warmwater.
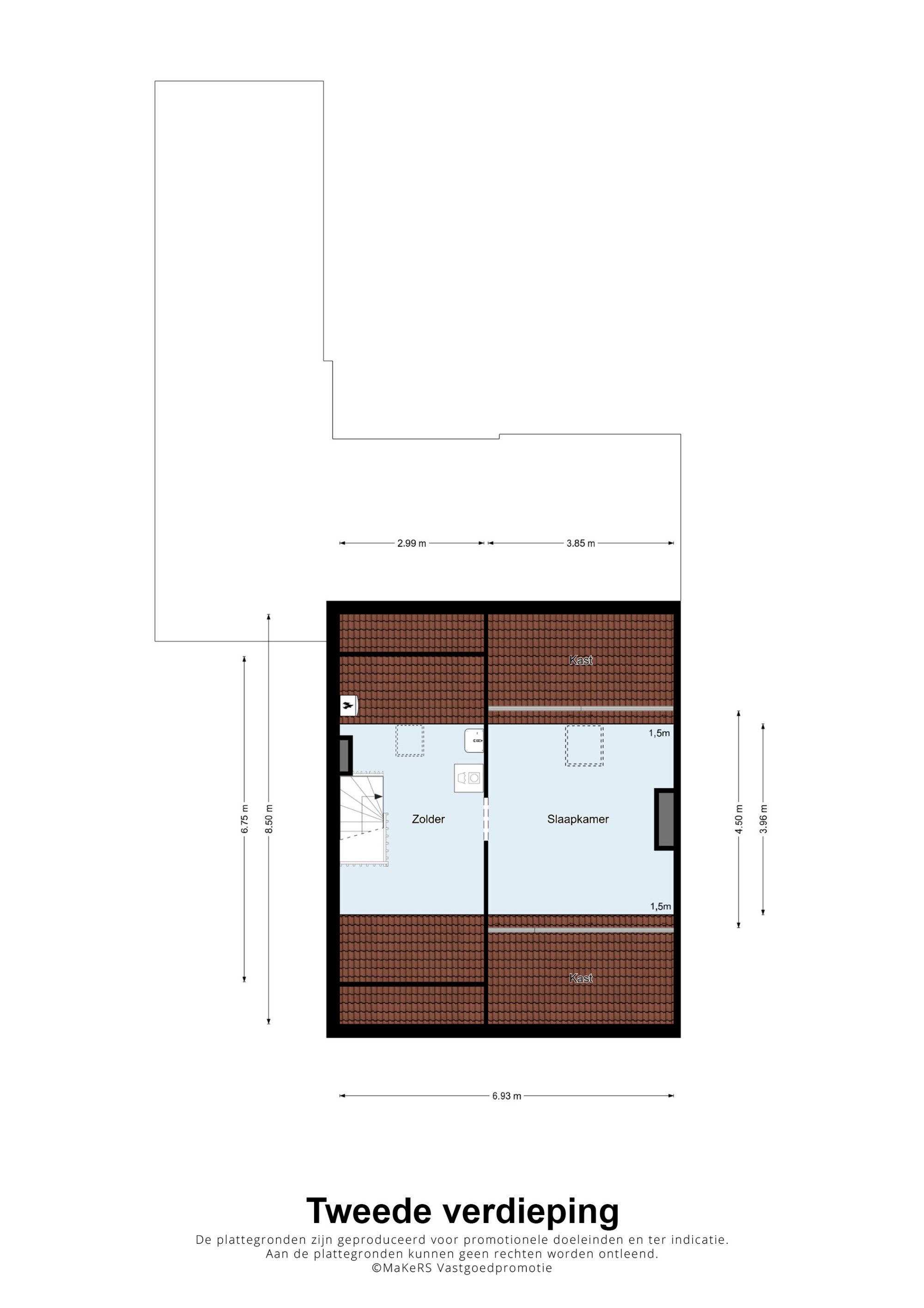
Tweede verdieping
Via een vaste trap kom je uit op de tweede verdieping. Op de voorzolder hangt de combi-ketel en zit de wasmachineaansluiting. Op de zolder is de mogelijkheid om indien gewenst een vijfde (slaap)kamer te realiseren, die ook perfect kan dienen als werkruimte of hobbykamer.
Tuin & buitenruimte
Vanuit de keuken stap je een ruime serre in, die volledig afgesloten kan worden d.m.v. glazen wanden. Achter het huis ligt een fraai aangelegde tuin gelegen op het zuidwesten. Hier kun je van de ochtend tot in de avond genieten van de zon.
De inpandige carport kan dienen als een verlengstuk van de tuin, tezamen met de overdekte veranda waardoor in voor- en najaar nog lang in de tuin genoten kan worden. Deze carport is voorzien van zowel een elektrische kantelpoort als gemakkelijke loopdeur.
Parkeren & voorzieningen
Naast de garage beschikt de woning over parkeergelegenheid op eigen oprit, een carport en is er voldoende parkeerruimte in de straat.
Bijzonderheden van deze woning:
- Woonoppervlakte van 144 m²
- Perceelgrootte van 269 m²
- Energiebesparend: zonnepanelen, dak- en muurisolatie, dubbele beglazing, airco
- Uitgebreide parkeermogelijkheden: eigen oprit, garage én carport met elektrische poort
- Volop wooncomfort: vier ruime slaapkamers, mogelijkheid voor een vijfde (werk)kamer, serre, zonnige tuin op het zuidwesten
- Voorzien van rolluiken
- Gelegen in rustige woonwijk nabij scholen en voorzieningen
Voorstestraat 125, Weert
Welkom in deze verrassend ruime, goed onderhouden twee-onder-een-kapwoning met garage, gelegen in een rustige, kindvriendelijke woonwijk in Weert. Deze instapklare gezinswoning biedt met vier (mogelijk vijf) slaapkamers, een sfeervolle serre, een zonnige tuin én energiebesparende voorzieningen alles wat een modern gezin zich kan wensen. Dankzij de centrale ligging nabij scholen, speeltuinen en uitvalswegen is dit de perfecte plek voor wie comfortabel én praktisch wil wonen.
Indeling
Begane grond
Via de entree kom je binnen in een ruime hal met toegang tot de keuken en een trap naar boven. De woonkamer heeft een fijne lichtinval dankzij een groot raam aan de voorzijde en twee terrasdeuren aan de tuinzijde. Tevens is deze ruimte voorzien van een comfortabele airco. De keuken, met praktische kelderkast, grenst aan de woonkamer en is uitgerust met alle gebruikelijke voorzieningen evenals een plintboiler voor direct warmwater. Vanuit de woonkamer en keuken heb je toegang tot de tuin en tot een praktische garage met wateraansluiting.
Eerste verdieping
Middels de trap in de ontvangsthal bereik je de eerste verdieping. Hier bevinden zich vier slaapkamers en een badkamer. De slaapkamers zijn allen van ruim formaat en voorzien van nieuwe kunststof kozijnen, HR++ glas en rolluiken. De badkamer is compleet met inloopdouche, toilet, wastafel en een badkamermeubel. Ook hier is een plintboiler aanwezig voor direct warmwater.
Tweede verdieping
Via een vaste trap kom je uit op de tweede verdieping. Op de voorzolder hangt de combi-ketel en zit de wasmachineaansluiting. Op de zolder is de mogelijkheid om indien gewenst een vijfde (slaap)kamer te realiseren, die ook perfect kan dienen als werkruimte of hobbykamer.
Tuin & buitenruimte
Vanuit de keuken stap je een ruime serre in, die volledig afgesloten kan worden d.m.v. glazen wanden. Achter het huis ligt een fraai aangelegde tuin gelegen op het zuidwesten. Hier kun je van de ochtend tot in de avond genieten van de zon.
De inpandige carport kan dienen als een verlengstuk van de tuin, tezamen met de overdekte veranda waardoor in voor- en najaar nog lang in de tuin genoten kan worden. Deze carport is voorzien van zowel een elektrische kantelpoort als gemakkelijke loopdeur.
Parkeren & voorzieningen
Naast de garage beschikt de woning over parkeergelegenheid op eigen oprit, een carport en is er voldoende parkeerruimte in de straat.
Bijzonderheden van deze woning:
- Woonoppervlakte van 144 m²
- Perceelgrootte van 269 m²
- Energiebesparend: zonnepanelen, dak- en muurisolatie, dubbele beglazing, airco
- Uitgebreide parkeermogelijkheden: eigen oprit, garage én carport met elektrische poort
- Volop wooncomfort: vier ruime slaapkamers, mogelijkheid voor een vijfde (werk)kamer, serre, zonnige tuin op het zuidwesten
- Voorzien van rolluiken
- Gelegen in rustige woonwijk nabij scholen en voorzieningen
+ Read more
- Read less
Construction: {{
product.build_year }}
Construction: {{ product.build_period.start }} -
{{ product.build_period.end }}
House
, Single-family house
{{ product.rooms }} rooms
{{ product.bedrooms
}} bedrooms
Living space: {{
product.living_space }} m²
Plot: {{
product.plot_surface }} m²
Energy class: {{ product.energy_class }}
Energy index: {{ product.energy_index }}
Characteristics
{{ field.label }}
{{ field.value }}
+ Read more
{{ field.label }}
{{ field.value }}
- Read less
{{ product.company.name }}
Contact us
{{ product.company.phone.replace('-', ' ').substr(0, 7) }}...
{{ product.company.phone.replace('-', ' ') }}
Share:
Date